2022. 12. 23. 13:16ㆍ회원작품 | Projects/Office
The On Place _ Yang-San

양산 디온플레이스는 경남 양산시 물금에 있는 양산 신도시 상업지역 중앙에 위치한다. 흔한 대도시의 상업중심지의 풍경과 같이 서로 경쟁이라도 하는 것 처럼 정신없는 간판들이 즐비한 장소이다. 자본주의의 지대한 영향을 받은 다 수의 건축물이 그렇듯이 조금의 빈틈도 없이 거의 모든 공간이 기능에 맞추어 꽉 메워져 있다. 철저하게 채워진 공간은 서로가 스며들며 만날 공간적 배려가 없다. 하지만 양산 디온플레이스는 이러한 고정관념에서 벗어나 비워냄으로써 다른 가치를 찾는 새로운 제안을 하고 있다.
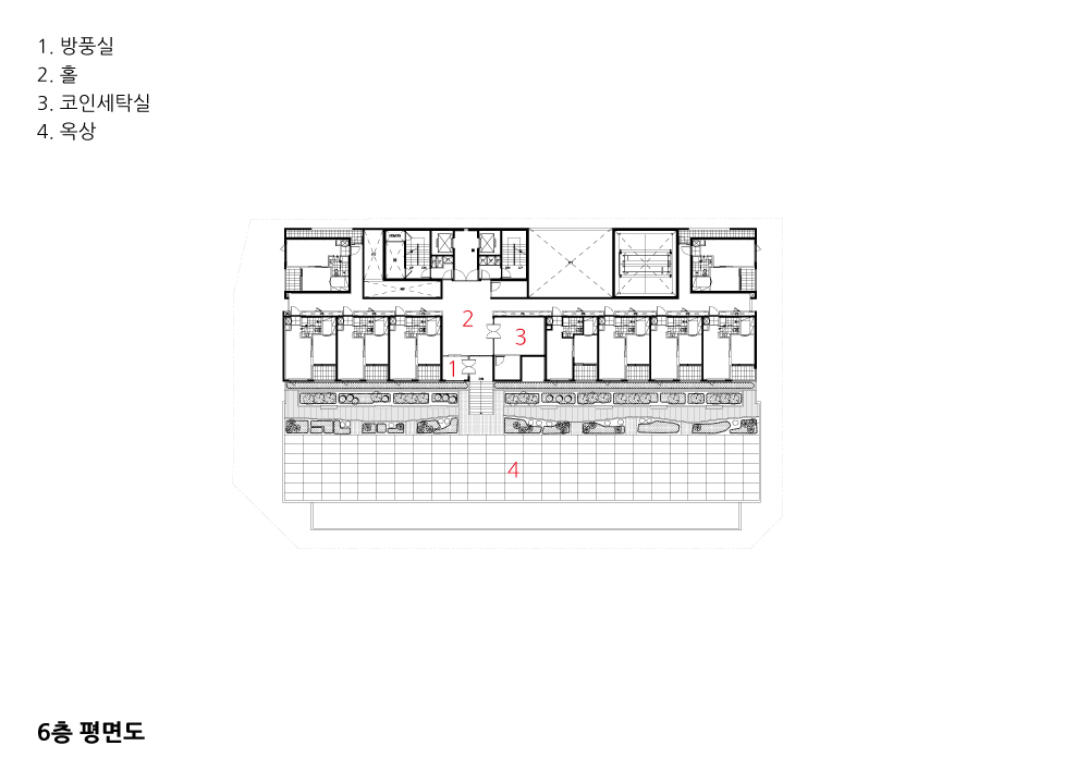
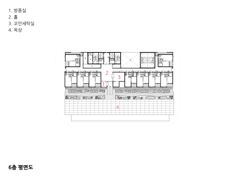
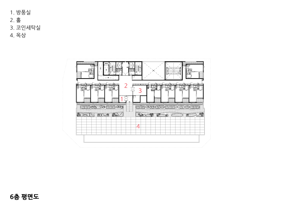
본 프로젝트에서 우리가 제안한 요소는 크게 두 가지다. 저층부 상업시설의 대 형 수직적 실내 중정공간과, 고층부 주거부분의 공용 대형마당이다. 저층부의 상가는 공간을 상업적인 시설로만 채워 넣는 것이 아니라 오히려 비워냄으로 써 도심지 상업건축물에서 찾아볼 수 없는 공용공간을 마련한다. 실내 중정의 천장으로 들어오는 자연광이 시간에 따라 유입되고, 1층에서부터 3층까지 연 결된 수직적 데크와 길을 걸으면 자연스럽게 흘러가는 공간감이 극대화됨을 느낄 수 있다. 시각적으로나 직접적으로 연결된 공간의 흐름은 저층부에 머무 르는 동선을 상부까지 끌어올려 상업시설로서 더욱 좋은 공간이 된다.
고층부 주거공간의 공용마당은 상업지역에서 가질 수 없는 남향의 넓은 마당 으로, 계절에 따라 다양한 역할을 담당한다. 아이들이 뛰어놀고 사람들이 산책 하는 소리를 들을 수 있으며 관찰할 수 있다. 도시에서 임시방편으로 머물 수 있는 ‘도구화된 주거 공간’이 아니라, 낭만적이고 감성적인 느낌을 내부에까지 전달되도록 했다.
상가와 주거에 포함되는 공간을 물리적으로 비워냄으로써 만들어진 곳은 다양 하고 인간미 넘치는 ‘사람들의 활동’이 채워진 풍성한 공간이 됐다. 상업공간 에서 일하는 사람들이나 주거공간에서 거주하는 사람들 모두 삭막함이 아닌 풍요로움을 느낀다.
또한 외장재로 콘크리트가 아닌 흑색벽돌과 황토색 벽돌을 사용하여 공간을 질감으로도 느낄 수 있으며 노출엘리베이터가 아래층 위층을 오르내리며 내외 부에서 발생하는 공간감도 만끽한다.
더 풍부하고 자연스럽게 드러난 내·외부 공간의 접점의 연결은 도시에서 찾기 힘든 감동을 제공하며 결과적으로 각각의 기능에 맞는 공간들이 대립된 모습 이 아닌 자연스러운 조화를 이룬 모습을 보여준다. 거침없이 달리는 자본주의 시대에 살아가는 우리이지만, 그 삶을 둘러싸고 있는 일상의 공간은 이렇게 숨 통 트일 수 있는 느슨한 여유가 필요하다.

The On Place Yangsan is located in the center of the commercial area of Yangsan New Town in Mulgeum, Yangsansi, Gyeongsangnam-do. It is a place where there are so many signboards as if to compete with each other in the commercial center of a large city. As is the case with many buildings that have been greatly influenced by capitalism, almost all spaces are filled to function. Thoroughly filled spaces do not have the spatial consideration to meet each other. However, The On Place Yangsan is making a new proposal to find another value by emptying, getting out of this stereotype.
There are two main factors that we proposed in this project. One is a large vertical indoor courtyard of low-floor commercial facilities, and the other is a public large-sized yard of high-rise residential areas. The low-rise shops do not only fill the space with commercial facilities, but rather empty it, creating a public space that can not be found in commercial buildings in cities. The natural light coming into the ceiling of the indoor courtyard flows over time, and people can feel that naturally flowing space is maximized when they walk along the vertical decks connected from the first floor to the third floor. The visually and directly connected flow of space leads up to the upper part of the movement line staying in lower floors and thenbecomes a better space as a commercial facility.
The public yard of higher-floor residential space is a wide southfacing yard that can not be found in commercial areas, and plays various roles depending on seasons. Children can play, and you can hear and watch people taking a walk. It is not an 'instrumented living space' that can be a temporary means of staying in a city, but it was designed to bring a romantic and emotional feeling to the inside. The place that was created by physically emptying the space that is included in the mall and the residence has become a dynamic space filled with various and humanistic 'people’s activities’. People who work in commercial space or those living in residential space feel richness rather than despair.
In addition, instead of concrete, black bricks and ocher-colored bricks are used as exterior material, so you can feel space through texture and enjoy a sense of space coming from the inside and the outside when an exposed elevator goes up and down.
In addition, instead of concrete, black bricks and ocher-colored bricks are used as exterior material, so you can feel space through texture and enjoy a sense of space coming from the inside and the outside when an exposed elevator goes up and down spaces surrounding that life need room to relax.







| 양산 디온플레이스 설계자 _ Architect. 김용남 _ Kim, Yongnam (주)삼현도시 종합건축사사무소 _ Samhyun Urban & Architecture Group 건축주 | (주)디온개발 감리자 | 김용남 _ (주)삼현도시 종합건축사사무소 시공사 | 덕양건설 설계팀 | 허재녕, 배현송 대지위치 | 경상남도 양산시 물금읍 삽량로 30 주요용도 | 업무시설(오피스텔), 근린생활시설 대지면적 | 2,116.00㎡ 건축면적 | 1,673.45㎡ 연면적 | 16,784.07㎡ 건폐율 | 79.09%(법정 80%) 용적률 | 605.20%(법정 1000%) 규모 | 지하 3층, 지상 14층 구조 | 철근콘크리트조 외부마감재 | 벽돌(검은색, 연갈색), T24 로이 복층유리 내부마감재 | 폴리싱타일 설계기간 | 2014. 11 ~ 2015. 03 공사기간 | 2015. 06 ~ 2016. 11 사진 | 윤준환 구조분야 : (주)인비전코리아 - 기계설비분야 : 나인설비설계사무소 - 전기분야 : (주)광명토탈엔지니어링 - 소방분야 : 나인설비설계사무소, (주)광명토탈엔지니어링 |
The On Place _ Yang-San Client | The On development company Supervisor | Kim, Yongnam _ Samhyun Urban & Architecture Group Construction | Deogyang construction company Project team | Heo, Jaenyeong / Bae, Hyunsong Location | 30, Samnyang-ro, Mulgeum-eup, Yangsan-si, Gyeongsangnam-do, Korea Program | Office / Neighbourhood Living Facility Site area | 2,116.00㎡ Building area | 1,673.45㎡ Gross floor area | 16,784.07㎡ Building to land ratio | 79.09% Floor area ratio | 605.20% Building scope | B3F - 14F Structure | RC Exterior finishing | Brick(Black, Caramel), T24 Low-E Glass Interior finishing | Polishing Tile Design period | Nov. 2014 ~ Mar. 2015 Construction period | Jun. 2015 ~ Nov. 2016 Photograph | Yoon Joonhwan Structural engineer | Invision Korea Mechanical engineer | Nine ENG Electrical engineer | Gwangmyung ENG Fire engineer | Nine ENG / Gwangmyung ENG |

'회원작품 | Projects > Office' 카테고리의 다른 글
| 디자인비따 2019.11 (0) | 2023.01.06 |
|---|---|
| 퀸즈파크 11 2019.7 (0) | 2022.12.23 |
| 가회동 주민센터 리모델링 2019.3 (0) | 2022.12.16 |
| 서귀포 제1청사 별관 2019.3 (0) | 2022.12.16 |
| 빅슨커뮤니케이션 사옥 2019.1 (0) | 2022.12.12 |