2023. 2. 21. 09:19ㆍ회원작품 | Projects/House
Dajungdagam

대지는 한국예술종합학교와 의릉을 품고 있는 천장산의 아래 자락에 있다.
흔히 ‘원룸’이라 불리는 용도와 약 132㎡(40평)의 작은 땅이지만, 가파른 경사지형을 활용해 지하 같지 않은 지하층을 만들고, 산 중턱에서 바라보는 도심의 풍경을 최대한 담아내는 것이 목표였다.
각 실의 독립성과 공용부에서의 조망 등을 위해 평면에서 ’틈'을 많이 만들었고, 그 ‘틈'이 지하 선큰까지 연결되도록 했다.
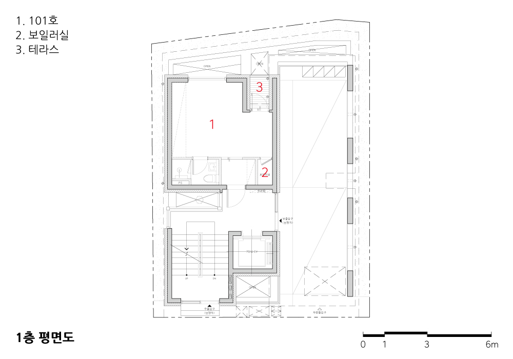
지하에는 5개의 작은 뜰(庭[정]/ 선큰)을 만들어 지하 환경을 개선하고, 각 실 및 공용공간에서 볼(監[감]) 풍경이 많은 건축물을 계획했다.

The site sits around the foot of Cheonjangsan Mountain, which surrounds the Korean National University of Arts and Uireung.
To overcome a limited size of land, about 132 square meters (40 pyeong) with the use of a ‘one-room studio', the goal was to utilize a steep slope to create an underground floor that is not like the basement and to maximize the city's scenery from the site as much as possible.
Many 'crevices' allow each room's independence and the communal space's view. These also expand towards underground sunken. Five small gardens (庭[정])in the underground create a better environment. Each room and communal area commands excellent sights and scenes(監[감]).








| 다정다감(多庭多監) 설계자 | 이동우_스튜디오22 건축사사무소 건축주 | KCL건설 감리자 | 스튜디오22 건축사사무소 시공사 | KCL건설 설계팀 | 서나영, 황지영 대지위치 | 서울특별시 성북구 화랑로18길 73-3 주요용도 | 단독주택(다중주택) 대지면적 | 136.00㎡ 건축면적 | 81.55㎡ 연면적 | 273.30㎡ 건폐율 | 59.96% 용적률 | 145.47% 규모 | 지하 1층 - 지상3층 구조 | 철근콘크리트구조 외부마감재 | 벽돌타일, 로이복층유리 내부마감재 | 지정벽지, 강마루, 목재패널 설계기간 | 2020. 10 - 2021. 03 공사기간 | 2021. 05 - 2022. 01 사진 | 김한석 전문기술협력 - 구조분야 : 제네랄구조엔지니어링 - 기계설비분야 : 코담기술단 - 전기분야 : 코담기술단 - 토목분야 : 제일지오텍엔지니어링 |
Dajungdagam Architect | Lee, Dongwoo_Studio22 architects Client | KCL Construction Supervisor | Studio22 architects Construction | KCL Construction Project team | Seo, Nayoung / Hwang, Jiyoung Location | 73-3, Hwarang-ro 18-gil, Seongbuk-gu, Seoul, Korea Program | Multifamily Housing Site area | 136.00㎡ Building area | 81.55㎡ Gross floor area | 273.30㎡ Building to land ratio | 59.96% Floor area ratio | 145.47% Building scope | B1F - 3F Structure | RC Exterior finishing | Brick tile, Low-e double-layer glass Interior finishing | Wallpaper, Wood flooring, Wood panel Design period | Oct. 2020 - Mar. 2021 Construction period | May 2021 - Jan. 2022 Photograph | Kim, Hansuk Structural engineer | General structural engineering Mechanical engineer | Codam technical group Electrical engineer | Codam technical group Civil engineer | Jeil geotech engineering |

'회원작품 | Projects > House' 카테고리의 다른 글
| 아우어 하우스 2022.7 (0) | 2023.02.21 |
|---|---|
| 연희동 주택 2022.7 (0) | 2023.02.21 |
| 디_프리마 타운하우스 2022.6 (0) | 2023.02.20 |
| 브릭하우스 2022.6 (0) | 2023.02.20 |
| 행복으로 달리는 집 2022.6 (0) | 2023.02.20 |