2023. 2. 20. 09:23ㆍ회원작품 | Projects/House
Brick House

건축주는 기존에 살던 타운하우스 생활을 정리하고 새로운 전원주택을 짓기를 원했다. 주택에서의 오랜 거주 경험을 통해 주택의 장단점과 자신의 취향을 확실하게 정리하고 있었다. 전원주택에 대한 막연한 환상보다는 현실적이고 명확한 요구사항들을 제시하여 설계 과정에서 실질적인 작업으로 바로 접근할 수 있었다.
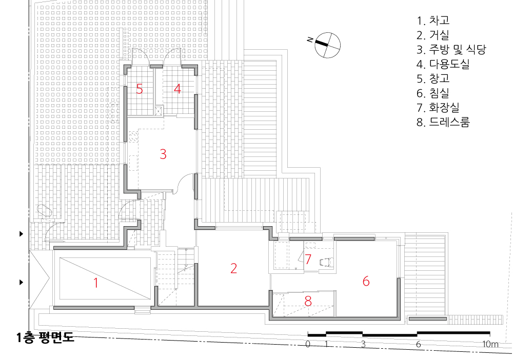
대지는 북쪽에 도로를 두고 남쪽으로 트여 있어 좋은 전망과 채광을 확보하고 있었다. 동쪽으로 숲을 마주 보고 있어 자연을 바로 접할 수 있는, 주택의 입지로 볼 때 여러모로 좋은 땅이었다. 몇 번의 미팅을 통해 널찍한 대지를 니은(ㄴ) 자로 감싸는 형태의 매스로 안이 정리되었다.
‘ㄴ’자 형태의 매스는 건물을 이용해 대지 내·외부를 명확하게 분리하여 마당의 프라이버시를 확보함과 동시에 마당 넓이를 최대한 확보할 수 있다는 장점이 있었다. 1층 메스를 남쪽, 동쪽으로 길게 뻗어 2층에서 접근할 수 있는 테라스를 확보하였고, 테라스 상부에 충분한 크기의 캐노피를 설치하여 테라스를 효과적으로 활용하도록 하였다. 1층에도 거실과 주방, 침실에서 바로 접근할 수 있는 넓은 목재 데크와 조경석을 깔아 외부공간을 충분히 활용하도록 하였다.
1층은 주방과 거실, 침실을 배치하였고, 2층에도 침실, 화장실 등을 두었다. 또 2층에는 별도의 가족실을 두어 제2의 거실 같은 공간으로 만들었다. 난방비가 많이 드는 1~2층이 트인 높은 공간보다는 단층 공간을 선호하였고, 거실을 크게 만드는 것보다는 각 공간들을 충실히 하고자 하였다. 또한 좀 더 큰 보일러실이 필요하지만 난방 효율이 우수한 지열보일러를 설치하기도 하였다. 건축주의 다양한 취향과 요구 조건들이 세심하게 반영되어 가족에게 맞는, 화려하기보다는 내실 있는 집이 만들어질 수 있었다.
이 집은 세 방향으로 뻗은 건물 형상 덕분에 각기 다른 세 개의 테라스를 가지고 있다. 각각 남쪽, 동쪽, 북쪽을 향하고 있는 테라스들은 주변의 조망과 자연환경을 마음껏 즐길 수 있게 해준다. 특히 동쪽 침실 측면의 테라스는, 크기는 작지만 마치 숲속에 들어와 있는 기분을 느낄 수 있게 해주는 특별한 공간이다.
집을 외부에서 보았을 때 여러 개의 매스가 맞물려 있는 형상인데, 외부재료로는 벽돌을 적용하였으며 마감재료인 벽돌의 물성을 더 잘 보여줄 수 있도록 고민하였다.
결과적으로 하단부에는 가로 한 줄마다 내어 쌓기를 하여 수평으로 긴 건물의 인상을 더욱 강하게 하였고, 상·하단부 벽돌의 매지 색상을 각각 회색·적색으로 적용하여 같은 재료이지만 전혀 다른 매스가 결합되어 있는 듯한 형태를 만들어낼 수 있었다.

The client wanted to leave his townhouse life and build a new country house. He understood the pros and cons of a single-detached house and his taste through his long experience of living in a house. He presented realistic and clear requirements rather than vague fantasies of a country house, thus helping us start practical work in the design process.
The site was open to the south with a road to the north, having a good view and lighting. Facing the forest to the east, it was good land in many ways in terms of residential location, where you can directly enjoy nature. After a few meetings, it was designed to surround the spacious site in the form of the nieun(ㄴ)-shaped mass.
The ‘ㄴ’-shaped mass uses a building to separate the inside and outside of the site to secure the yard’s privacy and maximize the yard width. The first-floor mass was extended to the south and east, having a terrace that could be accessed from the second floor, and a large canopy was installed on the upper part of the terrace to effectively use the terrace. In addition, a large wooden deck and landscaping stone, which can be directly accessed from the living room, the kitchen, and the bedroom, were placed on the first floor to make full use of the outdoor space.
There are a kitchen, a living room, and a bedroom on the first floor, and on the second floor, there are also a bedroom and a bathroom. In addition, a separate family room is placed on the second floor, allowing for a space like the second living room. A single-story space was preferred, rather than the high open space of the first and second floors, which cost a lot of heating costs. Each space was faithfully designed rather than making the living room more extensive. Although a larger boiler room was required, a geothermal boiler with excellent heating efficiency was installed. Carefully reflecting the client's various tastes and requirements, the house was built to be practical and suitable for the family rather than luxurious.
This house has three different terraces thanks to the shape of the building extending in three directions. The terraces facing south, east, and north allow you to fully enjoy the view and natural environment. In particular, although small in size, the terrace on the side of the east bedroom is a unique space that makes you feel as if you are in the forest.
When viewed from the outside, the house looks like several masses interlocking. This is because we used bricks as the exterior material, and we considered the better way to show the physical properties of bricks as the finishing material.
As a result, the horizontally long building could be more impressive with projecting bricks per horizontal layer in the lower part, and the joint colors of the upper and lower bricks were gray and red, respectively, so that it could look like the same material, but completely different masses were combined.









| 브릭하우스 설계자 | 강제용 _ 이데아키텍츠 건축사사무소 건축주 | 이상도 감리자 | 강제용 _ 이데아키텍츠 건축사사무소 설계팀 | 김선동 대지위치 | 경기도 용인시 처인구 남동 주요용도 | 단독주택 대지면적 | 591.00㎡ 건축면적 | 118.08㎡ 연면적 | 175.49㎡ 건폐율 | 19.98% 용적률 | 26.59% 규모 | 2층 구조 | 철근콘크리트구조 외부마감재 | 치장벽돌 내부마감재 | 벽·천장 _ 도장 / 바닥 _ 강마루 설계기간 | 2018. 01 – 2018. 07 공사기간 | 2018. 07 – 2019. 05 사진 | 최진보 전문기술협력 - 구조분야 : (주)이든구조컨설턴트 - 기계설비분야 : 아이에코 ENG - 전기분야 : 아이에코 ENG - 소방분야 : 아이에코 ENG |
Brick House Architect | Kang, Jeyong _ IDEEAA Architects Client | Lee, Sangdo Supervisor | Kang, Jeyong _ IDEEAA Architects Project team | Kim, Seondong Location | Namdong, Cheoin-gu, Yongin-si, Gyeonggi-do, Korea Program | Single family house Site area | 591.00㎡ Building area | 118.08㎡ Gross floor area | 175.49㎡ Building to land ratio | 19.98% Floor area ratio | 26.59% Building scope | 2F Structure | RC Exterior finishing | Brick Interior finishing | Paint, Laminated wood floor Design period | Jan. 2018 – Jul. 2018 Construction period | Jul. 2018 – May 2019 Photograph | Choi, Jinbo Structural engineer | Eden Structural Enginerring Group Mechanical engineer | Ieco ENG Electrical engineer | Ieco ENG Fire engineer | Ieco ENG |

'회원작품 | Projects > House' 카테고리의 다른 글
| 다정다감(多庭多監) 2022.7 (0) | 2023.02.21 |
|---|---|
| 디_프리마 타운하우스 2022.6 (0) | 2023.02.20 |
| 행복으로 달리는 집 2022.6 (0) | 2023.02.20 |
| 청연재(淸緣齋) 2022.6 (0) | 2023.02.20 |
| 큰바다영 2022.6 (0) | 2023.02.20 |