2023. 2. 20. 09:20ㆍ회원작품 | Projects/House
Running House to Happiness

세 자녀를 키우는 부부가 약간은 경계(?) 서린 눈빛으로 찾아왔었다. 어떤 연유에선지 최소의 비용으로 작은 주말주택을 짓고자 했다. 상담이 한참 진행된 후에야 늦둥이인 막내아들의 자폐 증상을 이야기했고, 중학생과 초등학생인 두 딸의 학교 문제 등으로 기존 거주지인 아파트를 벗어나기가 힘든 사정도 같이 들었다.
부모의 입장에서, 또한 남편의 입장에서 같이 이야기를 많이 나눴었다. 과연 막내아들에게 좋은 환경은 무엇인지, 또 그 아이를 케어해야 하는 엄마의 노고에 대해서도. 과연 주말 주택으로 가족 모두에게 좋은 환경을 만들 수 있을 것인지, 누구를 위한 주말 주택인 것인지 등 여러 가지 이야기를 나눴다. 그리고 막둥이(아이의 아빠가 늘 그렇게 불렀고, 1년이 넘은 이제는 나도 그렇게 부른다)의 행동패턴과 좋아하고 싫어하는 것, 그로 인해 가족들이 배려하고 이해하고 있는 것들에 대해서도 이야기를 나눴다.
설계를 시작할 당시에는 작은 평수의 주말주택으로 설계를 의뢰받았다. 하지만 나는 처음부터 ‘온 가족에 이사 가기를 원할 만큼 가족들이 좋아하는’ 계획안에 집중했었고, 건축주 부부가 설득되기를 간절히 원했다. 결과는 성공했다. 집과 공간에 치유의 능력이 있음을 믿고 있으며, 그로 인해 가족이 항상 행복하기를 원했었다. 주말만이 아닌 지속적으로…….
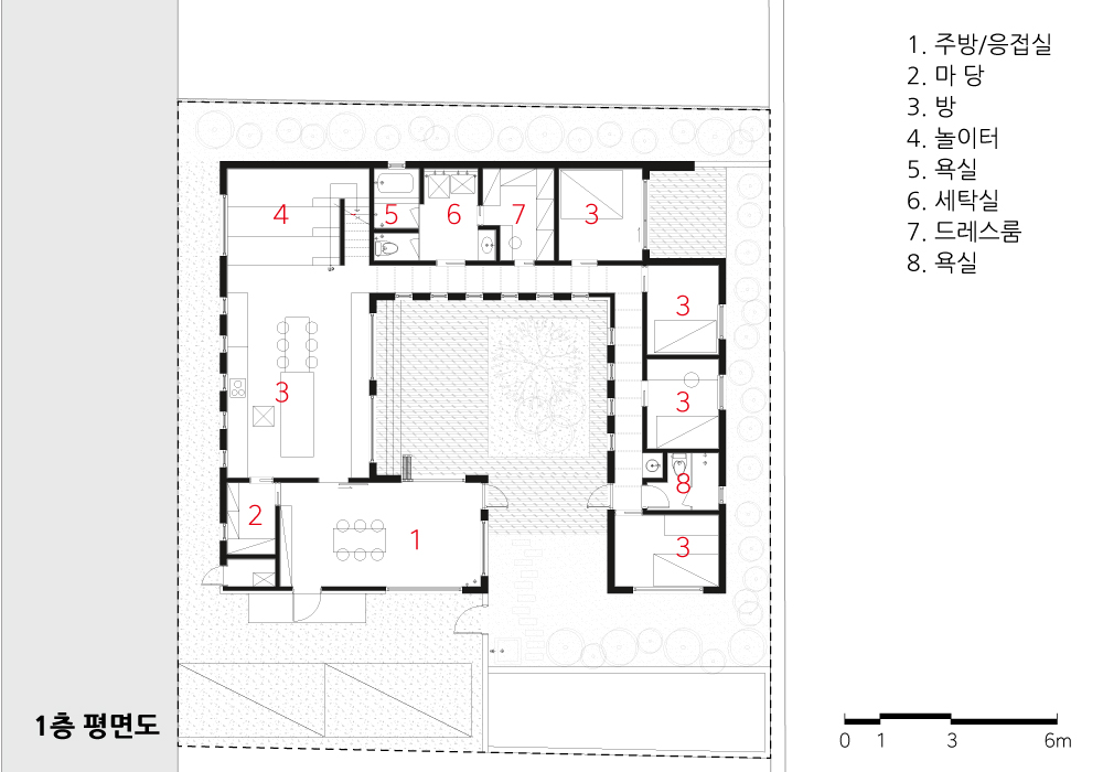
설계할 당시의 집 이름은 ‘달리는 집’이었다. 막둥이의 넘치는 에너지를 담아줄 수 있는 공간이길 바랐고, 안팎으로 자연요소를 쉽게 접할 수 있는 구성으로 계획했다. 시시각각 변하는 복도와 중정의 빛, 그림자, 하늘, 바람, 비, 나뭇잎의 변화, 낙엽, 수돗가, 모래, 촉감을 위한 벽과 바닥재, 밝은 색과 짙은 색의 대비 등등…… 항상 감각과 감정이 깨어있기를, 깨어나기를 바랐다.
또한, 엄마를 위한 집이기를 바랐다. 그러나 입주 후 한 달은 아이들의 등하교, 청소, 긴 동선 등 기존 아파트의 삶과는 너무나 달라서 오는 스트레스가 있었다고 하니 미안할 뿐이다. 막둥이를 안전하게 케어할 수 있는 마당을 제공함과 동시에 좀 더 편한 휴식, 또는 지인들과의 편안한 시간 등을 보낼 수 있는 공간을 제공하고 싶었다.
그 힘든 집짓기 과정 전체를 항상 웃으면서 진행했던 두 부부의 모습이나, 며칠 전 찾아갔을 때 매우 어려운 이야기도 ‘티격태격’ 쉽게 이야기 하며 웃는 모습에서 나 스스로의 삶도 반성하는 계기가 되었다.
‘건축이 마음의 크기나 넓이를 담을 수 있다면 이 집의 중정은 아주 작다’라는 생각을 하면서 돌아왔다. 디자인을 지키자고 일부 불편한 부분이 생겼었는데, 지금 와서 돌이켜 보니 ‘실제적 삶 앞에서’ 아무런 의미가 없을 수 있다는 생각이 들기도 했다. 그리고, 같은 마음으로 이 집을 완성한 시공사 대표와 소장에게도 감사의 마음을 전한다.
막둥이가 많이 좋아지고 있다는 이야기를 들었고, 입주 3개월 즈음 되니 긴 복도 등도 점점 적응이 되고 있다고 했다. 겨울에 공사하며, 추위에 떨면서 먹었던 어묵탕을 소환해 초대하겠다는 건축주의 다짐은 코로나로 인해 미뤄지고 있다. 어묵탕 초대를 하는 날 집의 현판을 전달하고 싶다. 집의 이름을 바꿔서…… ‘행복으로 달리는 집’이라고.

They have 3 children. When I first saw them, I could see their wary eyes. They wanted to build a small weekend house at a minimum cost. As we were talking about the designs, they told me that their youngest has autism. He needs a room for his therapy. I noticed and I realized that this house isn't intended only for the weekends. They need a room that is only intended for their youngest. I listened to them carefully I shared my point of view as a parent and as a husband not just only as an architect.
What would be the best environment for both the youngest son and the hardworking mother who also needs to take good care of him? We talked about whether the weekend home would create a better environment for the family and who the home is exactly for. Would it be okay if the house was built for the youngest person in the family?
We talked about the behavior patterns of the youngest of the litter in the family and their likes and dislikes. Oh, My owner call his last sun the youngest of the litter and I have been calling him that way for more than a year.
To be honest, even though I was asked for just a small weekend house at the beginning of the service agreement for the design, I have had the desire to create something that would be good for every family member. So I focused on that and I hope they will not only use this house on the weekends, they will enjoy it other times as well. And the result? they agree with me.
I believe that the house and space has healing power. I am sure that the healing power of the home will make them happy. The house will not only be good at the weekend, but it would be a good place to stay all year round.
While the project was ongoing, the house was called Running House. I wanted this house to be a space that could capture the baby of the litter's overflowing energy, and I planned to make it easy to access natural elements inside and outside.I hope them to feel the vibe of having enough light at home so that they can also appreciate the nature and the courtyard that isn't given in an apartment. In this design what we wanted to have was the sky, the wind, the rain, the leaves changes, the tap water at the yard, the sand, the walls and floors for touch, to blend in and for them to be able to see the bright and dark contrasts. I hope their senses and emotions will be always awakened.
I also wanted the home to be a place where the mother of the home could relax and take care of herself. Most mothers forget about that. But did I go too far? I feel so sorry for her because she has experienced some difficulties living in this new house. She said that the flow of human traffic is much longer than in apartments and she had some difficulties because of it. But she is used to it now. I expected to give her a space where she can rest with her friends and take good care of the baby of the litter. They were always smiling while the construction of the buiding was ongoing. That was impressive to me. Because I know how hard it is to build a house.
When I visited them a few days ago, they talked comfortably about a very difficult story. They had experienced some difficulties as well. On my way back, I was looking back on my own life, seeing them not losing their laughter and composure despite their hardships. If architecture can show the size of the human heart then I think that the courtyard is too small for them. There were inconveniences in some parts of the house to protect the design, but now that I look back on it, I don't think such things mean much in real life. Oh, and I would like to express my gratitude to the head of the construction company and the director who completed the house with the same heart. They say the long hallway is adaptable in about three months. And it's said that the baby of the litter has improved a lot better.
They want to eat fish cake again, a snack that we ate while building the house during the winter while we shaking due to the cold weather. But our meeting is postponed due to the Pandemic.
If I would be given a chance to meet them again, I want to deliver a signboard for this house and on the signboard, there will be a short quotation saying "a house running with happiness."









| 행복으로 달리는 집 설계자 | 박현근 _ 재귀당 건축사사무소 건축주 | 김** , 김** 감리자 | 박현근 _ 재귀당 건축사사무소 시공사 | 드림팩토리 설계팀 | 강인환, 양정아 대지위치 | 경기도 원주시 호저면 주요용도 | 단독주택 대지면적 | 434.10㎡ 건축면적 | 171.68㎡ 연면적 | 171.68㎡ 건폐율 | 39.54% 용적률 | 39.54% 규모 | 1층 구조 | 경량목구조 외부마감재 | 벽돌 타일 내부마감재 | 원목마루, 수성페인트, 자작합판 설계기간 | 2020. 07 – 2020. 11 공사기간 | 2020. 12 – 2021. 04 사진 | 이한울 전문기술협력 - 구조분야 : SM구조 |
Running House to Happiness Architect | Park, Hyungeun _ JAEGUIDANG ARCHITECTS Client | Kim, ** / Kim, ** Supervisor | Park, Hyungeun _ JAEGUIDANG ARCHITECTS Construction | Dream Factory Project team | Kang, Inhwan / Yang, Jeongah Location | Hojeo-myeon, Wonju-si, Gangwon-do, Korea Program | Single Family House Site area | 434.10㎡ Building area | 171.68㎡ Gross floor area | 171.68㎡ Building to land ratio | 39.54% Floor area ratio | 39.54% Building scope | 1F Structure | Wood Frame Exterior finishing | Brick tile Interior finishing | Wood Floor, Water paint, Birch plywood Design period | Jul. 2020 – Nov. 2020 Construction period | Dec. 2020 – Apr. 2021 Photograph | Lee, Hanul Structural engineer | SM structure |

'회원작품 | Projects > House' 카테고리의 다른 글
| 디_프리마 타운하우스 2022.6 (0) | 2023.02.20 |
|---|---|
| 브릭하우스 2022.6 (0) | 2023.02.20 |
| 청연재(淸緣齋) 2022.6 (0) | 2023.02.20 |
| 큰바다영 2022.6 (0) | 2023.02.20 |
| 세모 반듯 2022.6 (0) | 2023.02.20 |