2023. 2. 20. 09:17ㆍ회원작품 | Projects/House
Triangle House

프롤로그 _ 오래된 주택들이 즐비한 울산광역시 중구 학성동에 위치한 대지는 동네 주민들이 많이 이용하는 도로의 진입부에 위치하여 골목에서도 가장 먼저 눈에 띄는 위치이다. 대지형태는 부정형의 세모꼴이며, 100제곱미터 이하의 협소한 대지라서 건축주는 반듯한 집이 나올 지 걱정이 많았다. 북측의 도로 폭을 법적크기만큼 확보하면서 대지면적이 줄어들어 더 작은 면적에서 계획을 해야 했다. 넉넉지 않은 대지면적이라 건축주가 많은 것을 요구하지는 않았지만, 최대한 반듯한 평면에 가족들이 편하게 사용할 수 있는 공간을 원했다.
배치계획 _ 초기 안은 대지 전체를 빈틈없이 활용하는 계획으로 접근하였으나, 경계복원 측량 후 기존 담장이 경계가 아니고 동네 주민들이 많이 이용하는 도로의 일부분까지 대지경계로 확인되었다. 확인된 경계선을 기준으로 건물을 배치할 경우, 기존 도로가 좁아져서 동네 주민들이 불편함을 겪을 것으로 예상되어 건축주는 경계선에 담장을 쌓지 않기로 했고, 그 덕분에 골목에 개방감을 주면서 주차도 용이하게 할 수 있었다.
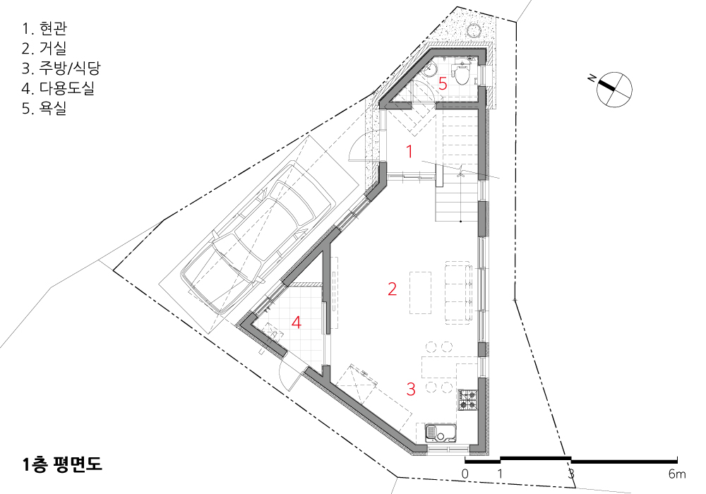
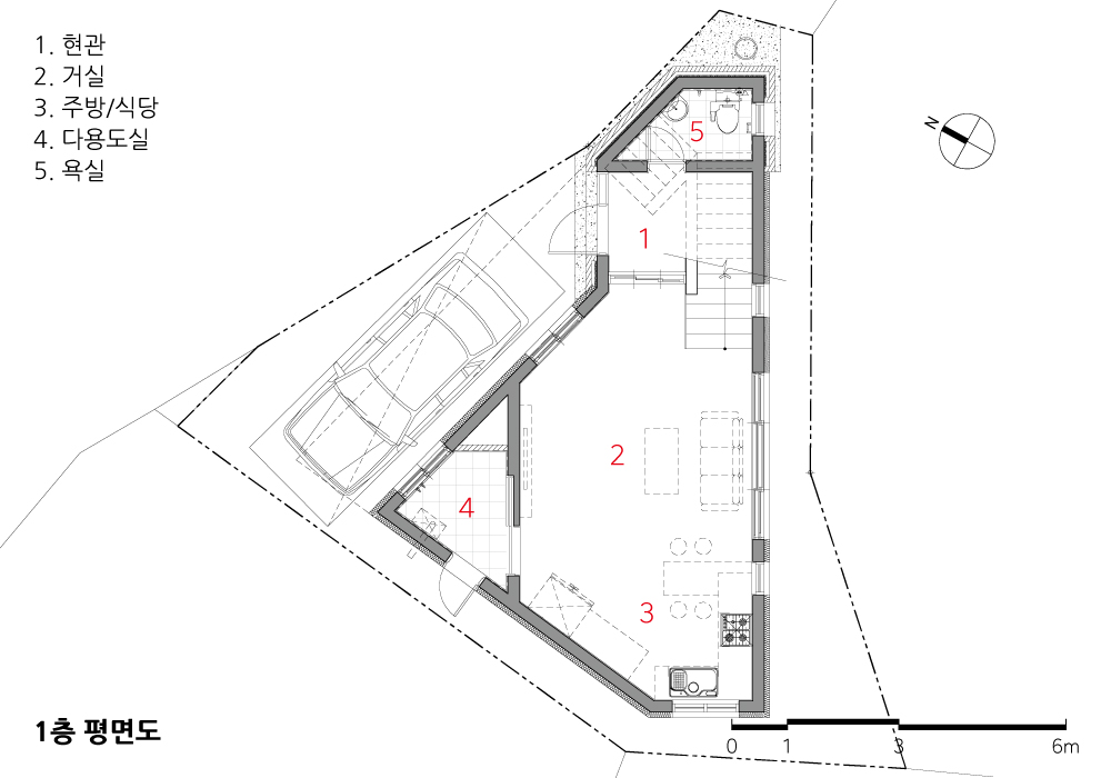
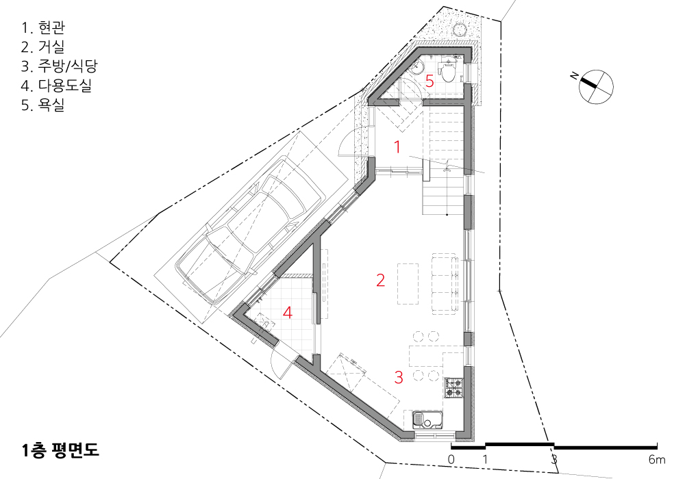
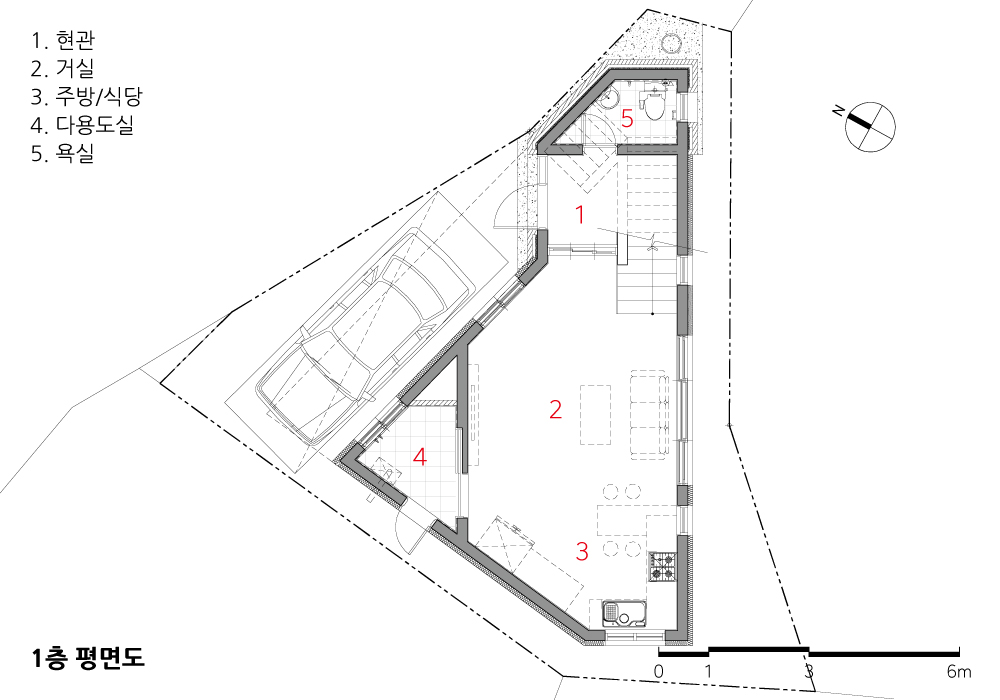
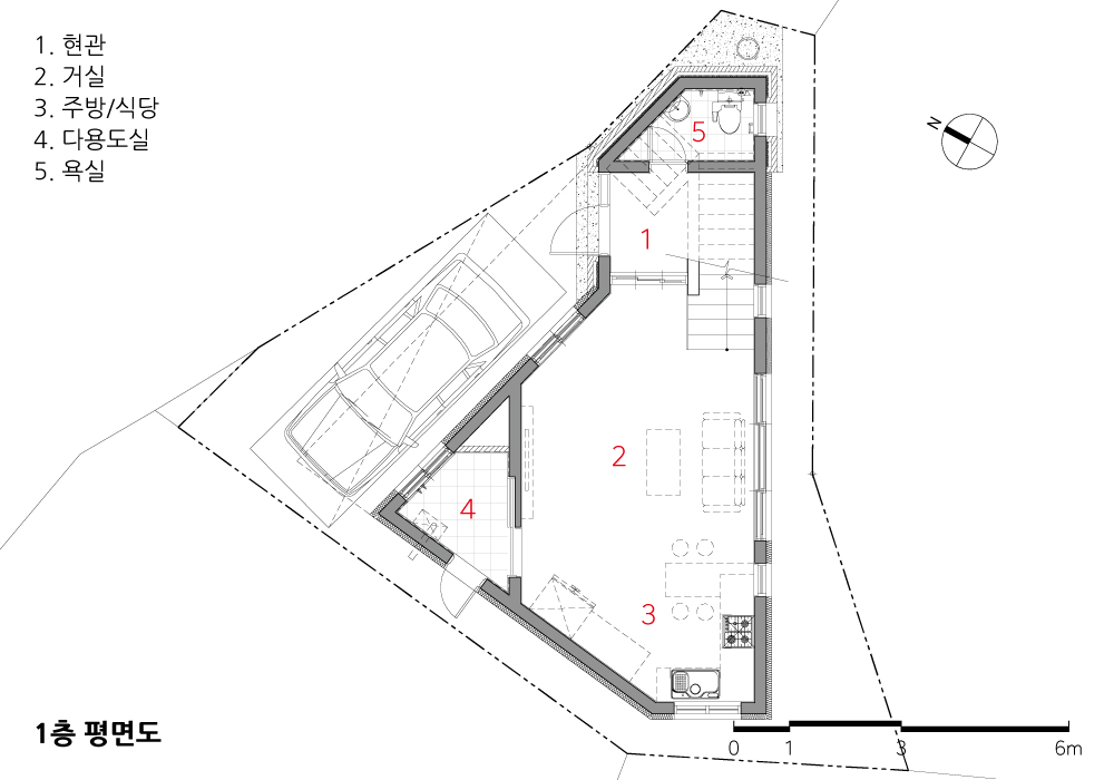
평면계획 _ 현관은 주차장과 인접하게 배치하여 바로 진입할 수 있도록 계획하여 비가 오거나 무거운 짐이 있을 때 더욱 편하다. 현관에서 내부 공간으로 들어서기 전 바로 손을 씻을 수 있도록 별도의 화장실을 구성하였고, 공용공간인 거실, 주방과 멀리 배치하여 소음과 냄새 부분에서도 유리하다. 거실과 주방은 하나의 공간으로 넓어 보이게 배치하였고, 계단실 아래 자투리 공간에는 신발장을 넣을 수 있도록 계획하여 공간의 활용성을 높였다. 도로 및 인접대지에 근접한 1층의 창들은 프라이버시 보호를 위해 지면에서 일정 높이 이상 배치하였다.
2, 3층은 가족들의 개인 공간으로 최대한 반듯한 평면으로 구성하여 가구 배치가 용이하도록 계획하였고, 침실의 문은 포켓도어로 공간 활용성을 높였다. 2층은 딸과 부부의 공간, 3층은 아들과 아빠의 공간, 세탁실, 옥상테라스를 배치하였다. 등산과 캠핑이 취미인 아빠를 위한 작은 공간인 서재에 캠핑 용품도 두고, 옥상 테라스에는 빨래와 캠핑 장비도 건조할 수 있도록 계획하였다.
실내 마감계획 _ 이 집의 메인인 거실의 아트월 벽체 마감재는 건축주의 아이디어에 따라 외벽 마감재와 내부가 연결되는 느낌의 재료를 선택하여 일체감 및 고급스러운 느낌까지 동시에 만족시켰다.
입면계획 _ 골목 입구를 환하게 보이도록 흰색 스타코로 마감하고 청고벽돌로 포인트를 주어 동네와 조화를 이루면서 개성이 돋보이도록 계획하였다. 또 가로등이 많지 않은 어두운 골목에 건물 외벽 조명을 설치하여 밤에도 환하도록 계획하였다.
에필로그 _ 흔하지 않은 협소한 대지에 건축주와 함께 고민하고 설계하던 시간이 좋았다. 새로운 보금자리에서 건축주의 바람대로 동네와 함께 어우러져 살아가는 집이 되길 바란다.

Prologue _ Located in Hakseong-dong, Jung-gu, Ulsan, where old houses are lined up, this site is situated at the entrance to the road frequently used by residents, so it is the first thing people notice even in the alley. The site's shape is an irregular triangle, and since the site is narrow with less than 100㎡, the client was worried about whether it could be a straight house. While securing the width of the road in the north within the legal size, the site area was reduced, so we had to plan it in a smaller area. The client didn't ask for much because the site was not large enough, but he wanted a space that the family could use comfortably on the flat surface as much as possible.
Layout plan _ The initial plan was to utilize the entire site as much as possible. Still, after the boundary restoration survey, the existing fence was not the boundary, but even a part of the road frequently used by residents was found as the site boundary. Suppose the building is placed based on the identified boundary line. The existing road is expected to be narrower, and the locals would experience inconvenience, so the client decided not to build a fence on the boundary line.
Floor planning _ The entrance is designed to be adjacent to the parking lot to enter it directly, so it is more convenient when it rains, or they have heavy luggage. There is a separate toilet to wash their hands immediately before entering the indoor space from the front door, and it is advantageous in terms of noise and odor as it is placed far from the living room and the kitchen, which are shared spaces. The living room and the kitchen are placed to look spacious as one space, and a shoe rack is put in the leftover space under the stairwell, thereby improving spatial utilization. The windows on the first floor close to the road and the adjacent site were installed above a certain height from the ground to protect privacy.
The 2nd and 3rd floors are designed as the family's private space, as flat as possible for more straightforward furniture layout, and the bedroom door is a pocket door to increase the usability of the space. The 2nd floor is a space for their daughter and the couple, and the 3rd floor is a space for their son and the father and a laundry room and a rooftop terrace. In addition, some camping gear was put in a study that is a small space for the father who loves hiking and camping, and the roof terrace is designed to dry laundry and camping gear.
Interior finishing plan _ As for the finishing material for the art wall in the living room, which is the main part of this house, the material that connects the exterior and the interior was selected to satisfy a sense of unity and luxury based on the client's idea.
Elevation plan _ The entrance to the alley was finished with white stucco to make it look bright, and it was planned to harmonize with the neighborhood and highlight its personality by giving points with old blue bricks. In addition, the exterior wall lighting was installed in a dark alley where there were not many street lights so that it would be bright even at night.
Epilogue _ I liked the time I spent thinking and designing with the client on a rare, narrow site. I hope that the new home will be a house where the family can live in harmony with the neighborhood according to the client's wishes.










| 세모 반듯 설계자 | 조영주 _ GN건축사사무소 건축주 | 김숙영 감리자 | 조영주 _ GN건축사사무소 시공사 | 건축주 직영 설계팀 | 장혜정, 남상영 설계의도 구현 | GN건축사사무소 대지위치 | 울산광역시 중구 서원13길 27 주요용도 | 단독주택 대지면적 | 97.00㎡ 건축면적 | 53.75㎡ 연면적 | 141.55㎡ 건폐율 | 55.41% 용적률 | 145.93% 규모 | 3층 구조 | 철근콘크리트구조 외부마감재 | 스타코, 청고벽돌, 세라믹사이딩 내부마감재 | 강마루, 타일, 벽지 설계기간 | 2017. 12 - 2018. 08 공사기간 | 2018. 08 - 2019. 05 사진 | 장혜정, 남상영 전문기술협력 - 구조분야 : 플러스구조이앤씨(주) - 기계설비분야 : 금강디엔에스 주식회사 - 전기분야 : 금강디엔에스 주식회사 |
Triangle House Architect | Cho, Youngjoo _ GN Architects Client | Kim, Sukyoung Supervisor | Cho, Youngjoo _ GN Architects Construction | Owner direct control Project team | Jang, Hyejung / Nam, Sangyeong Design intention realization | GN Architects Location | 27, Seowon 13-gil, Jung-gu, Ulsan, Korea Program | House Site area | 97.00㎡ Building area | 53.75㎡ Gross floor area | 141.55㎡ Building to land ratio | 55.41% Floor area ratio | 145.93% Building scope | 3F Structure | RC Exterior finishing | Stucco, Brick, Ceramic siding Interior finishing | Tile, Wallpaper Design period | Dec. 2017 – Aug. 2018 Construction period | Aug. 2018 – May. 2019 Photograph | Jang, Hyejung / Nam, Sangyeong Structural engineer | Plus Structural ENC Mechanical engineer | Kumkang DNS Electrical engineer | Kumkang DNS |

'회원작품 | Projects > House' 카테고리의 다른 글
| 청연재(淸緣齋) 2022.6 (0) | 2023.02.20 |
|---|---|
| 큰바다영 2022.6 (0) | 2023.02.20 |
| 서초 S 주택 2022.5 (0) | 2023.02.19 |
| 두림이집 2022.5 (0) | 2023.02.19 |
| 플로팅 월 하우스 2022.5 (0) | 2023.02.19 |