2023. 2. 19. 09:17ㆍ회원작품 | Projects/House
FLOATING WALL HOUSE

주변의 산자락과 원경(遠景)의 풍광을 끌어들이는 방법에서 시작
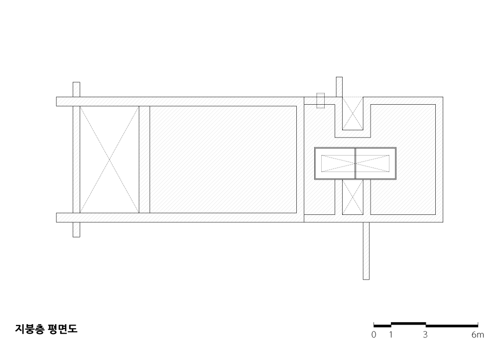
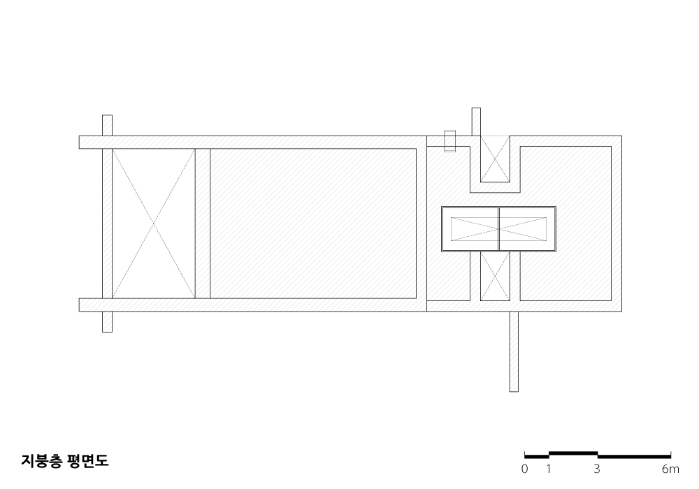
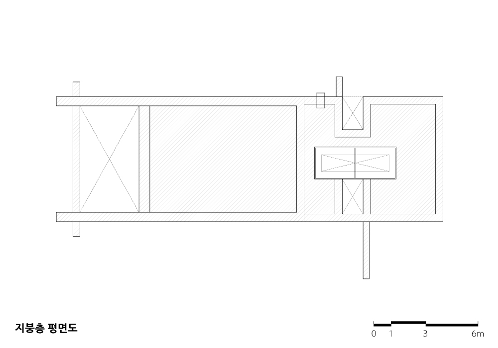
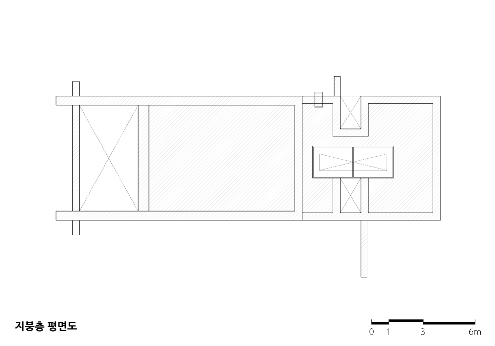
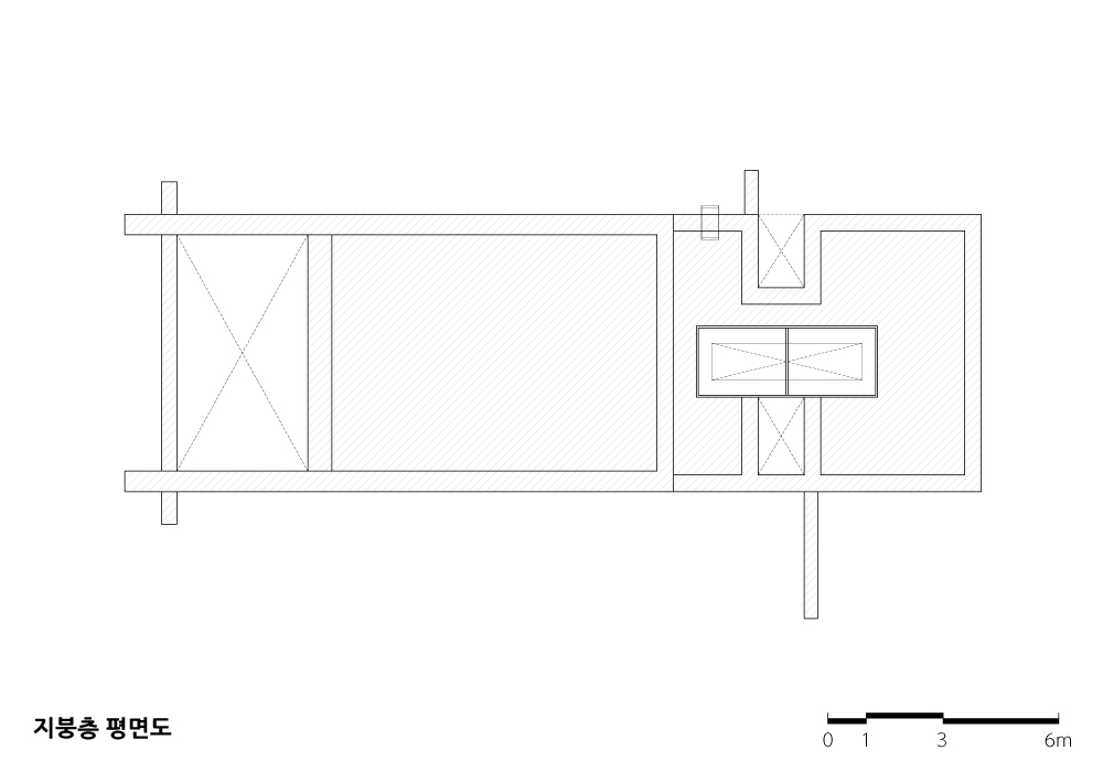
낮은 산자락을 배경으로 하며 장방형으로 긴 형상의 대지는 남쪽으로 매력적인 풍광을 가지고 있다. 계곡 사이로 열린 하늘과 멀리 보이는 고즈넉한 산자락은 이 집을 구성하는 제일 중요한 경관 요소이다. 거실의 위치는 자연스럽게 남쪽으로 자리 잡았다. 거실의 외벽을 띄우는 방법을 통해 외부 테라스를 만들어내고, 이로 인해 자연스럽게 만들어진 프레임화된 외부 경관이 그대로 실내로 들어오게 하였다.
‘벽의 자리 잡음’으로 길·마당·중정·하늘, 풍경의 시퀀스를 만들어내다
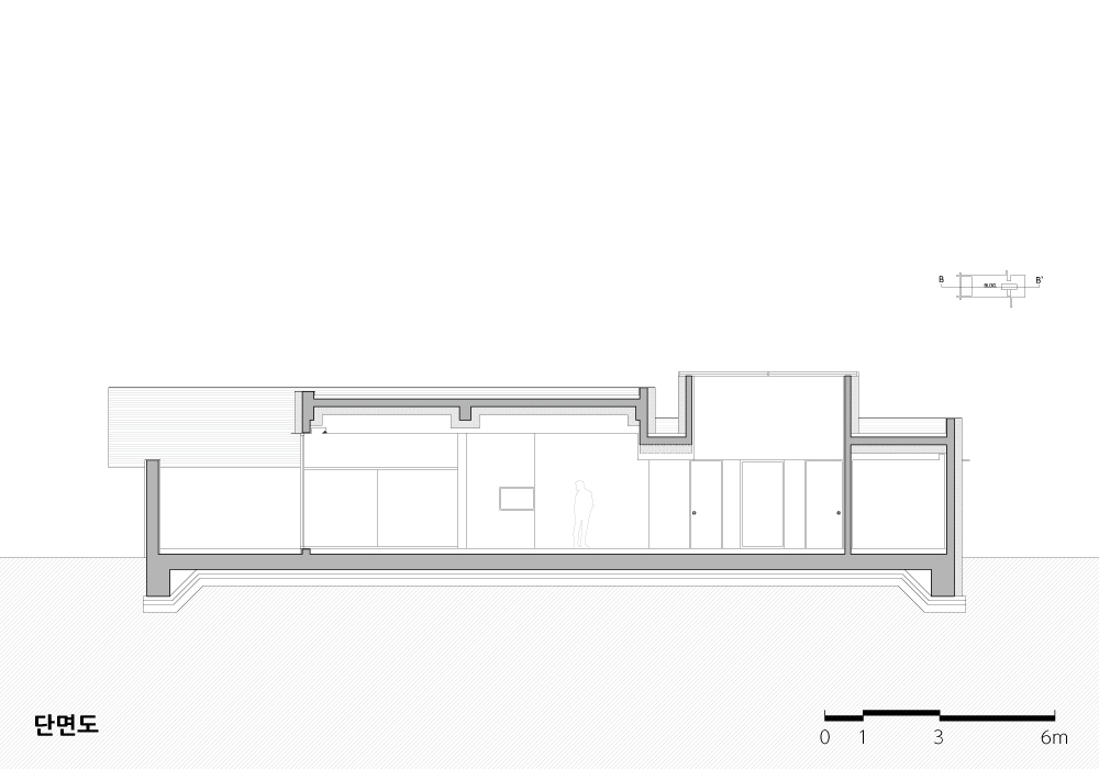
건물을 구성하는 떠있는 벽은 집의 핵심 공간을 만들어내는 주요 요소이다. 남쪽의 벽은 뒷산의 흐름을 중정으로 수렴하게 한다. 이는 거실을 연장하는 효과를 주며, 4계절의 변화를 드라마틱하게 공유하게 해준다. 여름에는 테라스의 적절한 일사를 조절하는 차양의 역할을 해주며 안정적인 옥외 휴식공간을 제공한다.
프라이버시를 고려하여 안정적인 위치에 두 개의 방을 계획하였으며, 방으로 이동하는 복도 공간에는 집의 전면과 후면을 관입하는 창호와 홍천의 하늘을 그대로 끌어들이는 긴 장방형의 천창을 계획하였다. 이는 거실에서 방으로 이동하면서 자연을 느끼는 전이적 공간 역할을 한다. 화장실은 하늘의 느낌을 연장할 수 있도록 높은 층고의 광천장을 적용하였다.
홍천의 하늘과 구름과 별과 시
실내 공간에는 플로팅 클라우드(FLOATING CLOUD) 콘셉트를 적용하여 하늘의 구름과 별빛을 재현할 수 있는 세련된 방법을 탐구하였다. 실내 전체에 풍부한 간접조명을 구성하되 자연스러운 별빛의 형상을 연상할 수 있도록 다운라이트를 흐드러지게 설치하였고, 색온도를 달리하는 조명의 중첩을 통해 자연스럽고 풍부한 공간감을 느끼게 하였다. 천창이 있는 복도 홀은 외부의 자연광이 그대로 느껴질 수 있도록 인공조명을 최소화하였으며, 공간감에 집중하기 위해 장식을 최소화한 히든도어를 적용하였다.
전원(田園)을 넘어 힐링(Healing)의 공간으로
집이 자연과 함께하는 공간을 마주하는 다양한 방식이 있다. 철저히 닫힌 형상 또는 극단적으로 열린 방식은 경계하는 것이 좋다. 대지가 자리 잡은 특수성과 매력을 신중히 고려하여 집을 만드는데 적극적으로 적용하여야 한다. 낭만적인 전원의 삶은 고즈넉한 자연 속에 있다는 단순한 사실로 완결되지 않는다. 집이라는 공간과 함께 주변의 모든 자연이 함께 어우러져 매일매일 힐링되고 새로움이 느껴지는 낭만의 공간이 되어야 하는 이유가 여기에 있다.

It starts with a way to have the scenery of the surrounding mountains and distant views.
With the low hills in the background, the rectangular, long-shaped site has beautiful scenery to the south. The open sky through valleys and the quiet hills in the distance are the essential landscape elements of this house. The location of living room is naturally located to the south. The exterior terrace is created by floating the living room's outer wall, allowing the naturally framed exterior landscape to enter indoors as it is.
Creating a sequence of roads, yards, courtyards, sky, and landscapes with ‘placement of walls’
The floating walls that make up the building are the main elements that create the core space of the house. The southern wall allows the flow of the mountain at the back to converge into the courtyard. This has the effect of extending the living room and dramatically sharing the changes of the four seasons. In summer, it acts as an awning that appropriately adjusts the sunshine of the terrace and provides a stable outdoor resting space.
Two rooms were planned in a stable location in consideration of privacy, and a window that penetrates the front and back of the house and a long rectangular skylight where the Hongcheon's sky comes in through was planned in the corridor leading to the room. It serves as a transitional space to feel nature while moving from the living room to the room. In the bathroom, a high-luminous ceiling was applied to extend the feeling of the sky.
Hongcheon's sky, clouds, stars, and poetry
By applying the concept of FLOATING CLOUD to the indoor space, we explored a sophisticated way to reproduce the clouds and starlight in the sky. Downlights are splendidly installed to bring up the image of natural starlight, with rich indirect lighting provided throughout the interior, and the overlapping of lights with different color temperatures gives a natural and rich sense of space. In the hallway with the skylight, artificial lighting was minimized so that natural light from the outside could be felt as it is, and a hidden door with minimal decoration was applied to focus on a sense of space.
Beyond the countryside to healing space
There are various ways a house faces a space in harmony with nature. It is better to avoid a wholly closed shape or an extremely open way. Carefully considering the specificity and attraction of the site, it should be actively applied to build a house. A romantic rural life does not end with the simple fact that you are in peaceful nature. This is why it should be a romantic space where you can feel healing and new every day with the space of home surrounded by nature.









| 플로팅 월 하우스 설계자 | 주성용 _ 주아키텍츠 건축사사무소 건축주 | 이진 감리자 | 주성용 _ 주아키텍츠 건축사사무소 시공사 | 건축주직영 설계팀 | 이정한, 강동협 대지위치 | 강원도 홍천군 서면 안굴업길 79 주요용도 | 단독주택 대지면적 | 863.00㎡ 건축면적 | 100.92㎡ 연면적 | 100.92㎡ 건폐율 | 11.69% 용적률 | 11.69% 규모 | 1층 구조 | 철근콘크리트구조 외부마감재 | 플라스터 외단열시스템(STO), 우레탄복합방수 내부마감재 | SAMHWA 친환경수성페인트 도장, 이건마루 설계기간 | 2020. 10 – 2021. 01 공사기간 | 2021. 03 – 2021. 09 사진 | 주아키텍츠 건축사사무소 전문기술협력 - 구조분야 : 건축사사무소 주아키텍츠 - 기계설비분야 : 대영ENG - 전기분야 : 대영ENG |
FLOATING WALL HOUSE Architect | Joo, Seongyong _ Joo Architects Client | Lee, Jin Supervisor | Joo, Seongyong _ Joo Architects Construction | Owner direct control Project team | Lee, Jeonghan / Kang, Donghyeop Location | 79, Angureop-gil, Seo-myeon, Hongcheon-gun, Gangwon-do, Korea Program | Single family house Site area | 863.00㎡ Building area | 100.92㎡ Gross floor area | 100.92㎡ Building to land ratio | 11.69% Floor area ratio | 11.69% Building scope | 1F Structure | RC Exterior finishing | STO external Insulation System Interior finishing | Water painting, Wood flooring, Tile Design period | Oct. 2020 - Jan. 2021 Construction period | Mar. 2021 - Sep. 2021 Photograph | Joo Architects Structural engineer | Joo Architects Mechanical engineer | Daeyoung ENG. Electrical engineer | Daeyoung ENG. |

'회원작품 | Projects > House' 카테고리의 다른 글
| 서초 S 주택 2022.5 (0) | 2023.02.19 |
|---|---|
| 두림이집 2022.5 (0) | 2023.02.19 |
| 테트리스 하우스 2022.5 (0) | 2023.02.19 |
| 세 상자 2022.5 (0) | 2023.02.19 |
| 트윈하우스 2022.5 (0) | 2023.02.19 |