2023. 2. 21. 09:22ㆍ회원작품 | Projects/House
Hour House

가장 편한 공간
내가 가장 편안해하는 집은 어떤 것일까?
집을 지어야겠다고 생각하자마자 우연의 겹침으로 홍제동에 집을 짓게 된 개성 넘치는 부부. 그들에게 가장 편안한 공간을 만드는 것이 이 프로젝트의 시작이었다. 첫 건축사에게 설계비를 듣고 집 짓기를 포기했으나 지인의 소개로 만나 다시 집 짓기가 시작되었다. 건축사는 정말 필요한 것들에 대해 리스트를 만들었다. 높은 층고, 탁 트인 공간, 코너창, 중정, 천창! 이들이 어우러지는 공간을 하나하나 실현하는 것은 힘들지만 매우 즐거운 일이었다.
일상과 일
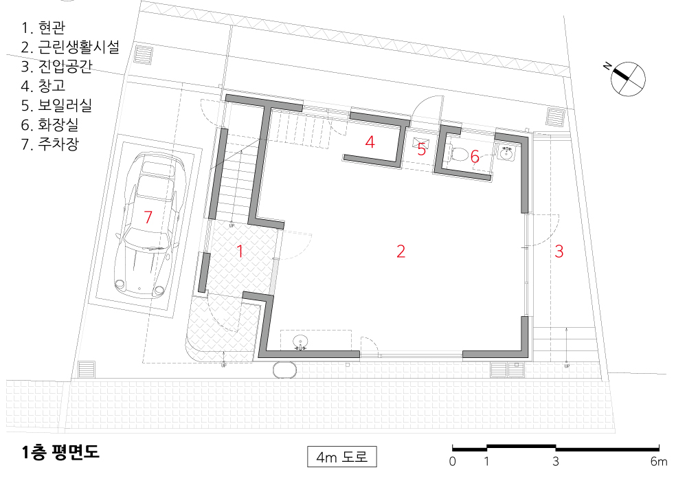
일상이 이루어지는 공간과 일을 하는 공간을 하나의 건축에 담는다. 일상과 작업의 동선을 분리하면서도 필요에 따라 연결되게 하는 것이 중요했다. 1층은 작업의 공간이며, 건물과 동네가 만나는 장소였다. 길에서 바로 진입하지 않고 앞쪽의 작은 마당을 통해 진입하는 것은 개방성과 개인을 동시에 만족시키기 위해서였다.
2층과 3층은 완전한 삶의 일상이 펼쳐지는 공간이다. 잠시 일에서 분리되어 낮잠을 자기도 하고, 조그만 중정에 놓인 안락의자에 몸을 맡길 수도 있다. 퇴근과 출근이 누구에게나 꼭 필수적인 것은 아니니까.
불필요한 것들의 제거
1년에 한번 올까 말까 하는 친구들을 위해 게스트룸을 만들 필요는 없다는 건축주의 생각은 확고했다. 방으로 나눌 필요가 없어지니 많은 벽들이 사라졌다. 방에는 벽지를 반드시 사용해야 한다는 고정관념을 벗어나니 거푸집을 떼어낸 벽에 페인트도장도 좋았다. 코너창의 프레임을 없애니 더 넓고 시원한 풍경이 눈에 들어온다. 음식을 자주 하지도 않는데 커다란 주방은 필요가 없었다. 딱 필요한 만큼의 간결한 주방이 들어왔다. 평수, 방의 개수, 남들이 다하는 마감에 대한 생각을 버리니 오롯이 부부만을 위한 공간이 찾아왔다. 부부를 위한 세상에 단 하나뿐인 집이다.

The most comfortable space
What kind of home do someone feel most comfortable in?
When I, the architect, was pondering about designing a house, I met a couple full of personality who decided to build a house in Hongje-dong by coincidence and creating the most comfortable space for them was the beginning of this project. After hearing the design fee from the first architect, they gave up building the house, but met my firm through an acquaintance and started building a house again. The client made a list of things that are really needed: High ceilings, open space, corner windows, courtyards, skylights! Realizing each and every one of the spaces where these elements mingled was a difficult but very enjoyable task.
Daily life and work
Capture the space where daily life takes place and the space where work is carried out in a single building. It was important to separate the flow of daily life and work, while also allowing them to be connected as needed. The first floor was a workspace and a meeting place for buildings and neighborhoods. It was to satisfy both openness and individuality at the same time to enter through the small yard in front rather than directly from the road. The second and third floors are the spaces where the daily life of a complete life unfolds. The client can take a nap away from work for a while, or can put his/herself in an armchair in a small courtyard. Since commuting to work is not essential for everyone.
Giving up unnecessary things
The owner's idea was firm that there is no need to make a guest room for friends who might come once a year. Many walls have disappeared since there is no need to divide them into rooms. It was also good to paint on the wall where the formwork was removed, as it removed the idea that wallpaper must be used in the room. By removing the frame of the corner window, a wider and cooler landscape catches the eye. “We don’t cook often, so there’s no need for a large kitchen.” A simple kitchen just the way they need it came in. When they gave up thinking about the size of the room, the number of rooms, and the finishing touches that everyone else had, a space just for the couple alone has arrived. It becomes the one and only home in the world for a couple.








| 아우어 하우스 설계자 | 정구원_디에이엘건축사사무소 시공사 | 드림인풋 대지위치 | 서울특별시 서대문구 송죽길 30 주요용도 | 단독주택 대지면적 | 129.00㎡ 건축면적 | 74.44㎡ 연면적 | 137.62㎡ 건폐율 | 57.7% 용적률 | 106.68% 규모 | 3층 구조 | 철근콘크리트구조 외부마감재 | 스타코 외단열시스템, 타일, 컬러강판, 투명로이 삼중유리 내부마감재 | 노출콘크리트 위 수성페인트, 석고보드 위 수성페인트 설계기간 | 2018. 10 - 2019. 03 공사기간 | 2019. 08 - 2020. 02 사진 | 최진보 전문기술협력 - 구조분야 : 허브구조엔지니어링 - 기계설비분야 : 선우엔지니어링 - 전기분야 : 선우엔지니어링 |
Hour House Architect | Jung, Goowon_DAAL Architects Construction | Doulim Location | 30, Songjuk-gil, Seodaemun-gu, Seoul, Korea Program | Single Family House Site area | 129.00㎡ Building area | 74.44㎡ Gross floor area | 137.62㎡ Building to land ratio | 57.7% Floor area ratio | 106.68% Building scope | 3F Structure | RC Exterior finishing | Stucco external Insulation system, Tile, Pre-coated metal roof, Low-E insulation glass Interior finishing | Vinyl paint finish above concret, Vinyl paint finish above Gysum board Design period | Oct. 2018 - Mar. 2019 Construction period | Aug. 2019 - Feb. 2020 Photograph | Choi, Jinbo Structural engineer | HUB STRUCTURAL ENGINEERING CO.ltd Mechanical engineer | SUNWOO ENGINEERING Electrical engineer | SUNWOO ENGINEERING |

'회원작품 | Projects > House' 카테고리의 다른 글
| 달아래세가족집 2022.7 (0) | 2023.02.21 |
|---|---|
| 화가당 2022.7 (0) | 2023.02.21 |
| 연희동 주택 2022.7 (0) | 2023.02.21 |
| 다정다감(多庭多監) 2022.7 (0) | 2023.02.21 |
| 디_프리마 타운하우스 2022.6 (0) | 2023.02.20 |