2023. 2. 21. 09:25ㆍ회원작품 | Projects/House
House for three families below the moon

집짓기 배경 이야기, 월하공방
달아래 세가족집은 파주시 목동동에 세워진 세가구가 함께 거주하는 다가구주택이다.
패션디자이너이자 모델리스트였던 건축주는 매몰되었던 일을 그만두고 삶과 일에 대한 애정을 표출할 공방과, 세 가족이 뒤쪽의 공원과 전면 도로 방향의 남향과 전망을 바라볼 수 있는 집을 원했다. 그리고 자식 같은 반려묘를 위한 전용 공간과 혼자만의 시간을 가질 수 있는 공간을 요청했다. 달아래(월하공방)는 건축주의 패션 공방 이름이면서 이 집의 설계 모티브가 되었고, 밖에서 또는 안에서 집을 바라보는 각도에 따라 보름달, 상현달, 초승달 이미지가 나타난다.
형태와 구성에 대하여
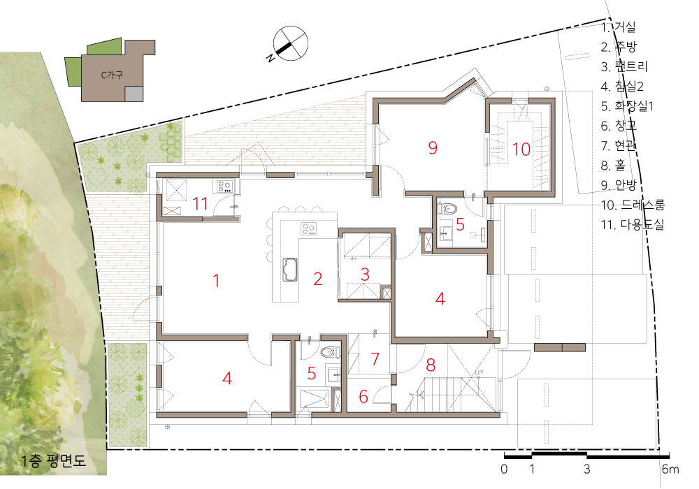
집은 가로세로가 두 번 교차되는 크로스오버 평면과 단면을 가진다.
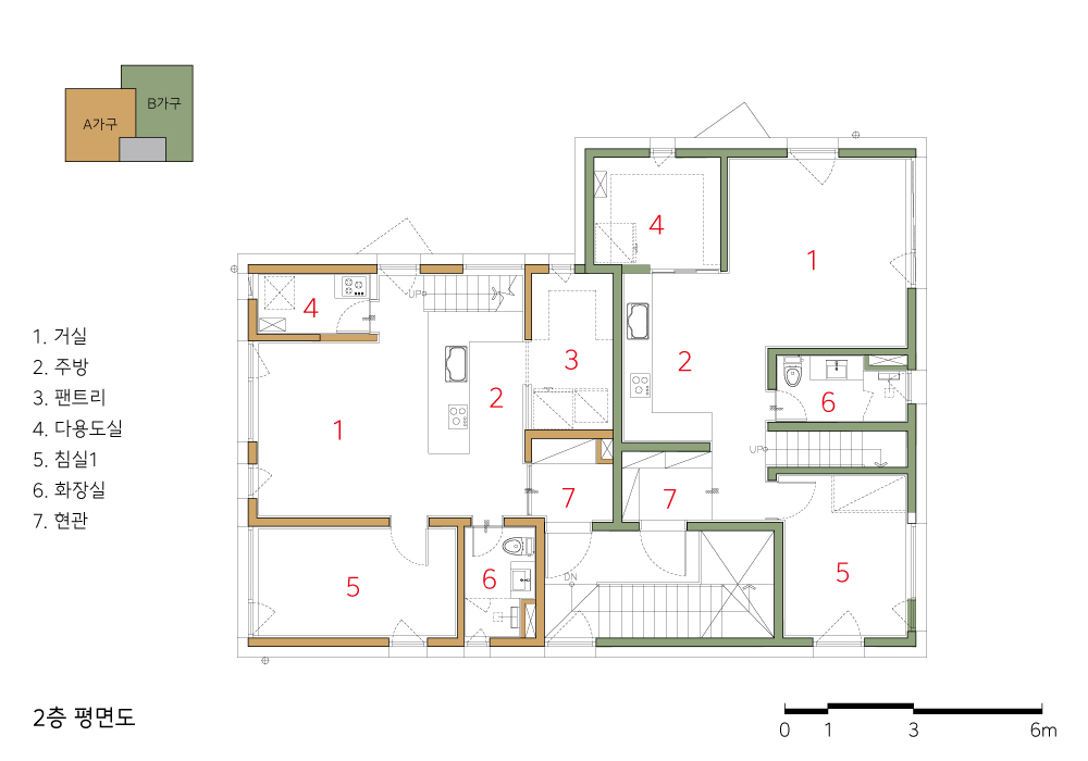
한 세대가 한 개 층씩 생활하는 것이 일반적인 다가구주택의 형태와 생활 유형이나, 그렇게 해서는 건축주의 의뢰 조건들이 충족되지 않았다. 앞쪽은 볕이 좋은 남향이고, 뒤쪽은 북향이며 앞에 공원이 있는 조건 아래, 건축주의 요청에 따라 전 세대가 남향 볕을 받으면서 공원을 볼 수 있는 크로스오버 주택이 완성됐다. 건축주의 부모님을 위한 세대는 연세를 고려하여 1층에 배치됐으며, 도로 쪽으로부터는 다소 막혀있고, 일부 남향 볕을 받을 수 있으면서 1층 작은 정원 2개와 북향의 공원을 바로 면한다. 이제 두 세대는 2층, 3층, 다락의 복층 세대를 구성하되 2층에서 동서를, 3층에서 남북을 나눠 가진다.
집을 만든 과정
이전에 없었던 개념의 3층 주택이라 배관의 이동 경로, 골조의 배치, 전기 콘센트의 위치 등을 시공 당시 일일이 현장팀에 알려줘야 했다. 3층에서 두 세대 각자 남향으로 면한 커다란 외부 테라스도 가져갈 수 있었다. 1층의 아치창의 디자인과 카페처럼 구성된 거실은 가족애가 많은 건축주의 부모님을 위한 배려다.
달의 형태를 닮은 창은 집에서 가장 감성적인 공간이면서, 마치 단독주택에 사는 듯한 분위기로 만든다. 이 집의 백미 중 하나는 건축주의 고양이들을 위한 공간이다. 호두와 콩이 두 냥이를 위한 방이 있으며 감성적인 벽과 문, 냥이들이 골골송을 부를 수 있는 삼각 프리즘 창 등이 있다. 3층에는 형태에 따른 자연스러운 높은 층고의 안방이 있고, 맨 위 공간에는 두 개의 다락이 있다.
숨겨진 이야기
패션디자이너인 건축주는 디자인을 알아보는 안목이 있어, 골조의 태생적 흔적을 남겨두고 싶었던 건축사의 1층 노출 기둥 존치에 동의해 주었다.
루나 테라스는 형태적인 것과 디자인을 위한 것도 있었지만, 다른 한편으로는 한국 건축의 멋이 느껴지는 공간이길 바랐다. 건축사가 형태와 기능, 재정만 생각하는 것이 아닌 달과 같은 운치와 감성을 집에 머물게 했던 옛 선조의 안목을 현대적으로 모방한 결과물이다.

The House for Three Families below the Moon, built in Mokdong-dong in Paju, is a multi-family house where three families live together. The client quit her fashion designer and modelist job and wanted a home workshop for a better work-life balance. She wanted all three families to have views of the park behind the house and of the street, facing south. She also asked for a room for her cats and a private space. Dal_Ale, meaning below the moon, is the name of the client’s handicraft brand. It provided the motif for the house’s architectural design. Depending on the angle from inside or outside the house, the house creates the images of the full moon, waxing moon, and crescent moon,
The house has crossover floors and sections with horizontal and vertical lines crossing over each other twice. In a typical multi-family house, each family resides at a different floor. However, this conventional design would not meet the client’s desire. The client wanted a design that allows all families to enjoy the sunlight on the south side and park views on the north side. The crossover design was created to meet that desire. Her parent’s space was placed on the first floor for safety, considering their age. Though its side view is limited, it receives sunlight from the south side and has direct views of two small gardens and the park on the north side. The client’s family and her brother’s family share the second and the third floors, configured in the direction of east to west and south to north, and the loft.
Due to its unconventional design, the routes of pipes, arrangement of frames, and locations of electrical outlets were specifically outlined for the construction team. On the third floor, both families have spacious terraces facing south. The living room on the first floor was designed like a cafe with arched windows for her parents, who like family time. The windows in the shape of the moon are a unique artistic touch to the house, creating a separation for privacy. One of the highlights of the house is a room that is customized for the client’s cat children, Hodoo and Kongi. The cat siblings have their own room with cat poles, wall-mounted shelves, and a large window for views and sunlight. The third floor has rooms with high ceilings and is topped with two loft rooms.
With a refined design taste, the client respected the architect’s desire to keep an exposed column on the first floor, showing structural frames. The lunar terrace was not only to create a specific design for the client, but also to reflect a Korean architectural tradition. Beyond the design, functionality, and finances, the architect wanted to reflect Korean ancestors’ sentiments toward a house as a space in harmony with nature - a family house below the moon.









| 달 아 래 세 가 족 집 설계자 | 안태만 · 송정한_(주)해담건축 건축사사무소 건축주 | 임채빈, 김보람 시공사 | 해담건축CM 설계팀 | 도영규 대지위치 | 경기도 파주시 교하로133번길 주요용도 | 다가구주택 대지면적 | 269.50㎡ 건축면적 | 154.93㎡ 연면적 | 305.45㎡ 건폐율 | 57.49% 용적률 | 113.34% 규모 | 3층 구조 | 철근콘크리트구조 외부마감재 | 표면 커팅 벽돌 내부마감재 | 실크벽지, 자작나무 합판 설계기간 | 2019. 12 – 2020. 03 공사기간 | 2020. 03 – 2020. 11 사진 | 최진보 전문기술협력 - 구조분야 : 정성욱 _ (주)에스큐브이엔지 - 기계설비분야 : (주)선인기술단 - 전기분야 : (주)선인기술단 |
House for three families below the moon Architect | An, Taeman · Song, Jeonghan_Architectural Design Group HAEDAM Client | Im, Chaebin / Kim, Boram Construction | HAEDAM CM Project team | Do, Younggyu Location | Gyoha-ro 133beon-gil, Paju-si, Gyeonggi-do, Korea Program | Multi-household house Site area | 269.50㎡ Building area | 154.93㎡ Gross floor area | 305.45㎡ Building to land ratio | 57.49% Floor area ratio | 113.34% Building scope | 3F Structure | RC Exterior finishing | Brick, Surface cutting Interior finishing | Coated wallpaper, Birch plywood Design period | Dec. 2019 – Mar. 2020 Construction period | Mar. 2020 – Nov. 2020 Photograph | Choi, Jinbo Structural engineer | S-CUBE ENG Mechanical engineer | Sunin ENG Electrical engineer | Sunin ENG |

'회원작품 | Projects > House' 카테고리의 다른 글
| 청라 더카운티 단독주택 2022.8 (0) | 2023.02.22 |
|---|---|
| 소헌[素軒] 2022.7 (0) | 2023.02.21 |
| 화가당 2022.7 (0) | 2023.02.21 |
| 아우어 하우스 2022.7 (0) | 2023.02.21 |
| 연희동 주택 2022.7 (0) | 2023.02.21 |