2023. 2. 22. 09:13ㆍ회원작품 | Projects/House
Cheongna the county residence

북측 도로와 남측 자연을 면한 대지
대지는 청라 더카운티 내 주택지에 위치한다. 북측으로 7미터 도로와 접하고 남측으로는 자연이 펼쳐진다. 도로로부터는 사생활을 보호하고, 남측으로 자연을 최대한 받아들일 수 있도록 계획했다. 북측으로는 처마가 있는 입구와 최소한의 창을 계획했고, 남측면에는 법적으로 활용할 수 있는 폭을 최대한 활용하여 다양한 표정을 갖는 창들로 채웠다.
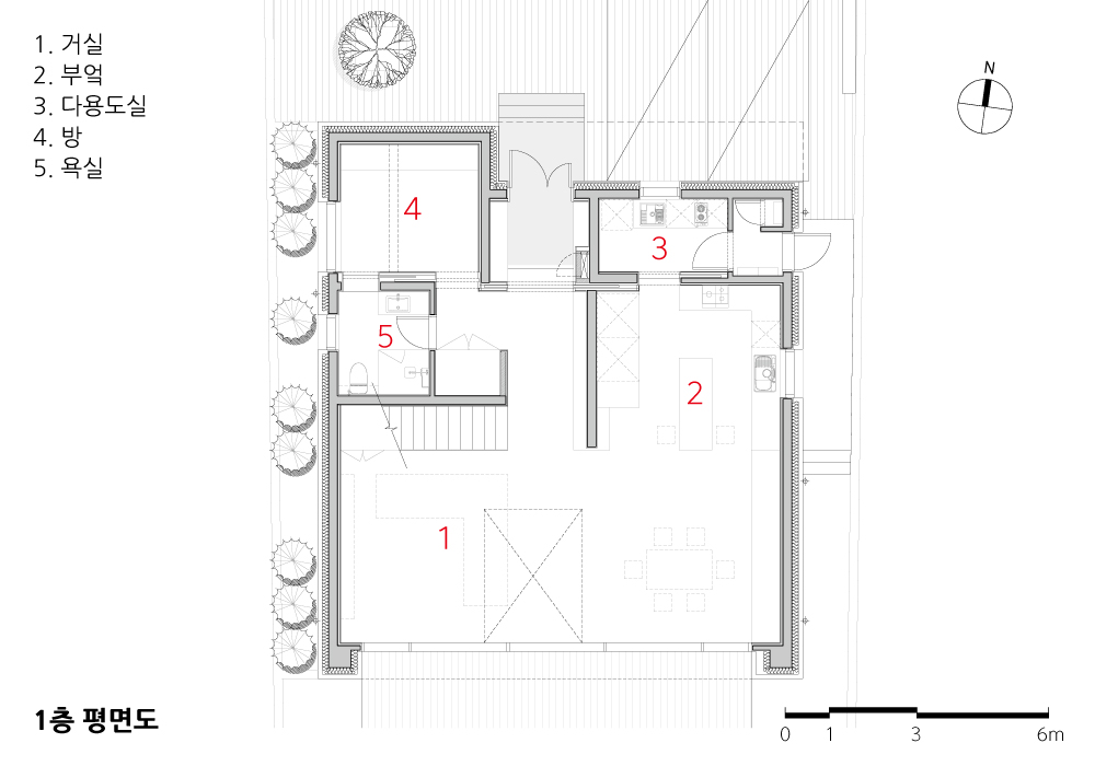
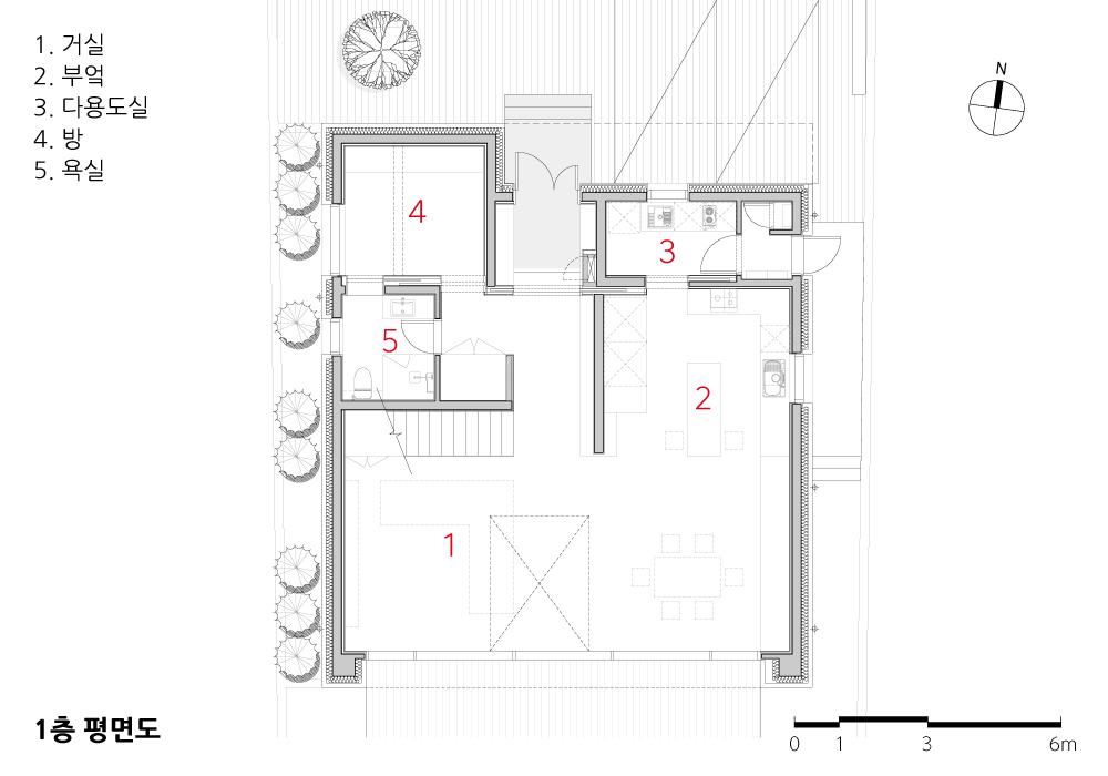
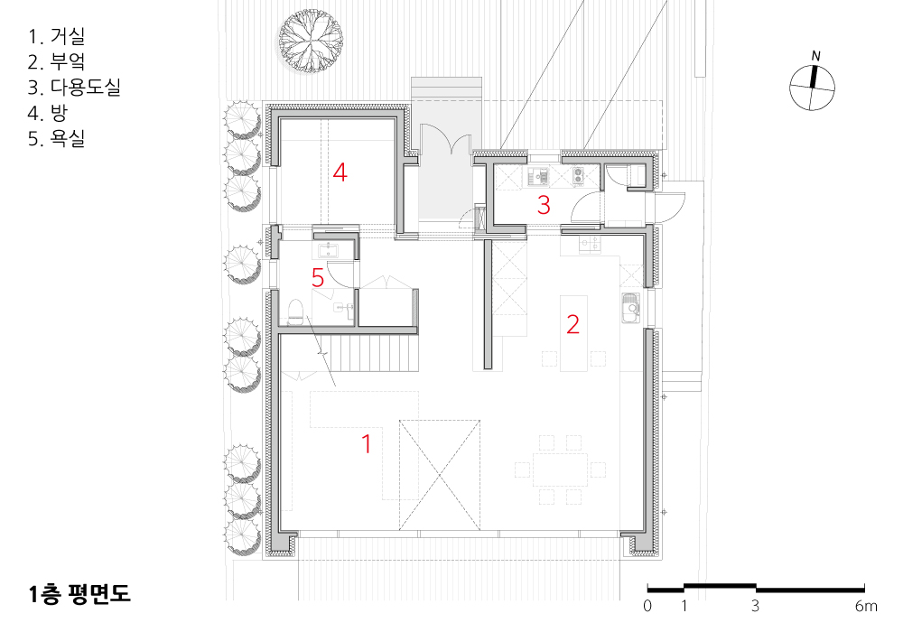
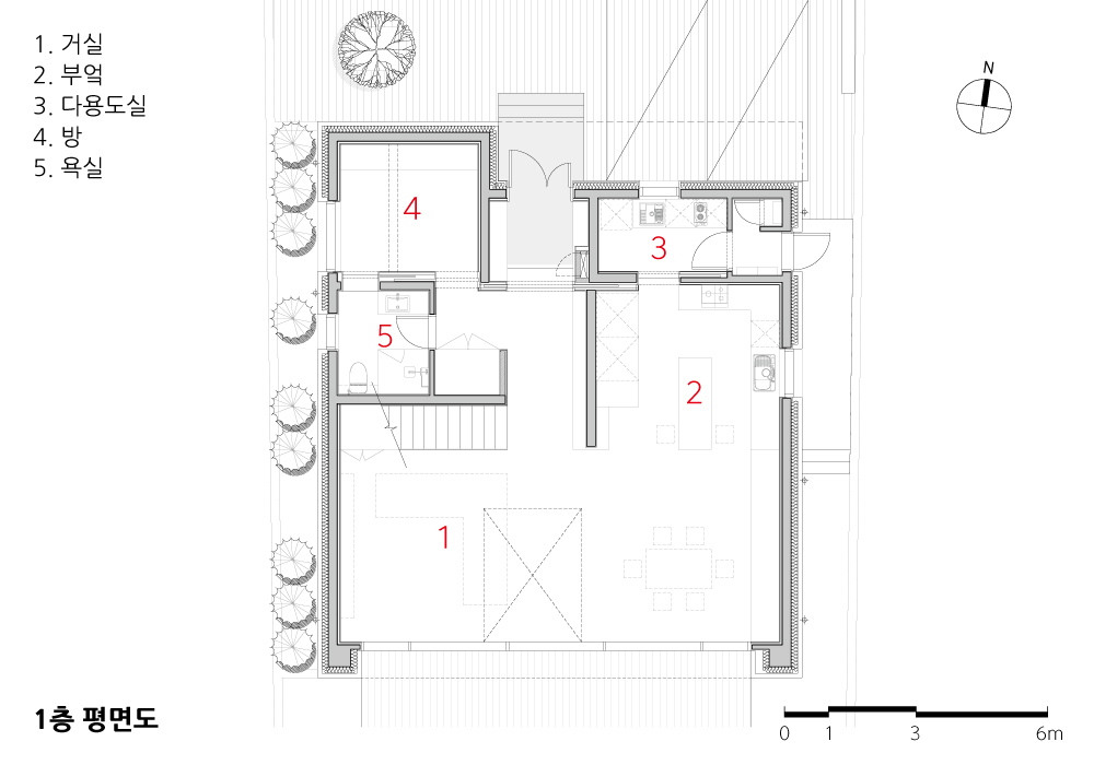
모든 층에 마당을 가지는 주택
주택은 3개 층으로 구성된다. 지상층의 마당을 가지는 1층뿐 아니라 2~3층에서도 각각의 외부마당을 활용할 수 있도록 건물의 동측부분을 테라스 하우스 형태로 계획했다. 2층은 가벽과 함께 마스터룸을 위한 좀 더 내밀한 마당으로, 3층은 패밀리룸과 연계한 가족공간으로 활용된다.
풍경을 담은 다양한 창
건물 남측의 창들은 자연과 내부공간의 관계에 매개 역할을 한다. 공간마다 특색 있는 재료와 공간을 구성하고 남측으로 차양역할을 할 수 있는 처마를 계획했다. 거실과 다이닝룸은 파노라마뷰를 가질 수 있는 창을 설치하여 자연을 최대한 받아들인다. 테라스 공간도 하나의 창 안에 프라이버시가 보호될 수 있는 공간으로 활용하였다.

The site facing the road in the north and nature in the south
The site sits in a residential area in The County, Cheongna. It faces a 7-meter road to the north and nature to the south. It was designed to protect privacy from the road and embrace nature as much as possible to the south. Therefore, the north side came to have an entrance with eaves and minimum windows. The windows with various expressions were filled in the south by maximizing the legally available width.
A house with yards on every floor
The house consists of three floors. The eastern part of the building was designed as a terrace house so that different outdoor yards could be used on the first floor, a yard on the ground floor, and the second and third floors. The second floor is a more private yard for the master room with a temporary wall, and the third floor is used as a family space in connection with the family room.
Various windows with scenery
The windows on the south of the building play a mediating role in the relationship between nature and indoor space. Each space is composed of unique materials and spaces, and eaves that can serve as shading in the south were planned. The living and dining rooms have a window with panoramic views of nature. The terrace space was also used as a space where privacy could be protected within a single window.








| 청라 더카운티 단독주택 설계자 | (주)플로건축사사무소 시공사 | 정일종합건설(주) 설계팀 | 최재원, 권미리, 조경민 설계의도 구현 | (주)플로건축사사무소 대지위치 | 인천광역시 서구 청라동 주요용도 | 단독주택 대지면적 | 414.20㎡ 건축면적 | 124.20㎡ 연면적 | 241.64㎡ 건폐율 | 29.99% 용적률 | 58.34% 규모 | 3층 구조 | 철근콘크리트구조 외부마감재 | 백고벽돌, 고흥석, 합성목재 사이딩, 43T삼중유리 내부마감재 | 도장, 원목마루 설계기간 | 2018. 04 - 2018. 10 공사기간 | 2019. 12 - 2020. 07 사진 | 타별 사진관 전문기술협력 - 인테리어 디자인 : bnd partners - 구조분야 : (주)씨아이에스엔지니어링 - 기계설비분야 : (주)성지이앤씨, (주)삼손공영 - 전기분야 : (주)성지이앤씨, 서부전력(주) |
Cheongna the county residence Architect | FLO Architects Construction | Jungil Project team | Choi, Jaewon / Kwon, Milee / Jo, Kyungmin Design intention realization | FLO Architects Location | Cheongna-dong, Seo-gu, Incheon, Korea Program | Single family house Site area | 414.20㎡ Building area | 124.20㎡ Gross floor area | 241.64㎡ Building to land ratio | 29.99% Floor area ratio | 58.34% Building scope | 3F Structure | RC Exterior finishing | White old brick, Stone tile, Wood siding, Triple glass Interior finishing | Paint, Wood flooring Design period | Apr. 2018 - Oct. 2018 Construction period | Dec. 2019 - Jul. 2020 Photograph | Tabial Intention design | bnd partners Structural engineer | CIS engineering Mechanical engineer | Sungji ENC, Samson construction Electrical engineer | Sungji ENC, Seobu electric power |

'회원작품 | Projects > House' 카테고리의 다른 글
| 신매주택 2022.8 (0) | 2023.02.22 |
|---|---|
| 원당동 단독주택 2022.8 (0) | 2023.02.22 |
| 소헌[素軒] 2022.7 (0) | 2023.02.21 |
| 달아래세가족집 2022.7 (0) | 2023.02.21 |
| 화가당 2022.7 (0) | 2023.02.21 |