2023. 2. 22. 09:14ㆍ회원작품 | Projects/House
WIDE AWAKE

대지는 신도시 개발로 바쁜 대로변을 지나, 조용히 곳에 자리 잡고 있다. 약 246제곱미터(80평 정도)의 네모반듯한 대지는 서쪽으로 약간의 경사를 가지고 있었다.
젊은 디자이너인 건축주는 현재 삶을 담을 수 있는 주택을 필요로 하는 동시에 디자이너로서의 업무가 가능한 공간을 필요로 했다. 주변에는 이미 3층 규모의 건물들이 들어서 있었다. 일조와 사생활 보호를 위한 배려가 필요했다. 건축물에 부가적으로 설치되는 차면시설의 설치 없이 프라이버시를 확보하여 실내 및 각층의 야외 공간에서 이웃의 시선을 신경 쓰지 않고 편히 사용하도록 계획하였다. 인접 대지 및 건물에서의 시선의 방향을 파악하고 벽과 창문의 배치, 벽의 형상과 외부테라스 깊이를 이용하여 외부로부터의 시선을 자연스럽게 차단하였다.
도로에 면한 전면 역시 프라이버시를 보호하면서 동시에 개방감을 주고자 하였다. 거실 내부에서는 열린 느낌을 주되, 도로면에서는 들여다보이지 않도록 입면을 계획하였다, 이에 따라 구축된 입면은 살짝 열린 듯한 문의 모습을 띄고, 도로에 면한 2층의 테라스에서는 조금 더 개방감을 주기 위한 사선의 형태가 이어진다.
공간의 기본구성 – 프라이버시 설정 및 다양한 기능의 유동적 공간 사용
실내공간의 기능은 1층과 2층으로 구분된다. 거실과 주방을 중심으로 한 생활공간은 1층에 배치하였고, 모든 침실과 가족들만의 긴밀한 휴식공간은 2층에 배치되었다.
공간의 가변성
1층에는 거실, 주방/다이닝, 그리고 서재 겸 사무공간이 배치되어 있다.
현관을 들어서면 직접 연결되는 곳이 주방/다이닝 부분이고, 이는 주방에 붙어있는 업무공간으로 이어진다. 주방과 연결된 서재는 독립되어 있지만, 주방과 하나의 오픈 스페이스로 사용될 수 있도록 계획되었다. 낮 시간에 서재가 업무공간으로서 사용되는 동안 주방은 서재의 확장공간으로서 또 하나의 거실로서 작동할 수 있다.
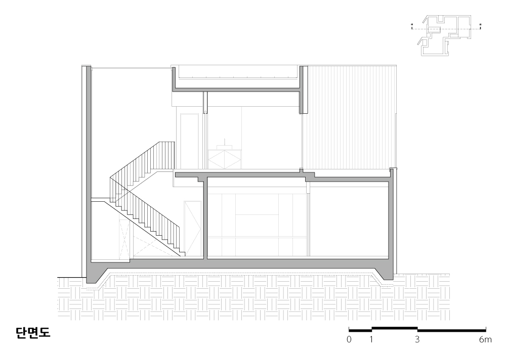
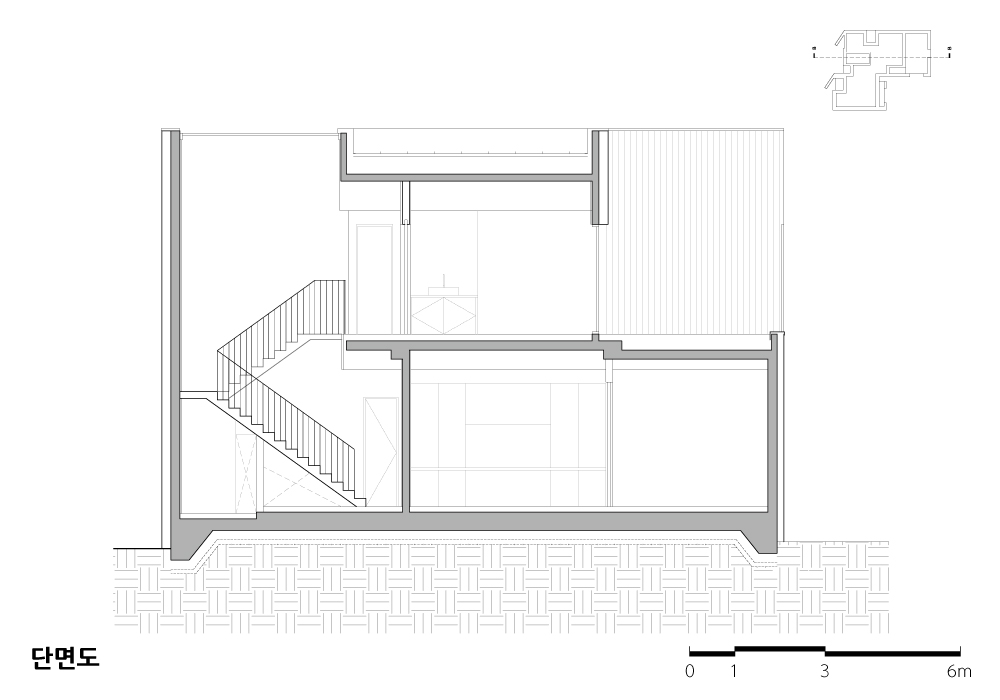
거실은 대지의 경사를 이용하여 1층의 다른 부분과 60센티미터 정도의 단차를 가지고 있다. 1층 주방과는 개방감을 유지하면서도 단차를 통해 어느 정도의 생활 영역의 분리를 유지하여 준다. 이는 업무공간이 작동하는 낮 시간 동안에도, 필요에 따라 가족생활의 공간이 유지될 수 있도록 계획되었다. 간혹 번잡해 질 수 있는 주방과 다이닝 공간에서 어느 정도 차분하게 유지될 수 있는 거실로 유지하고자 하였다.
한편 단차로 인해 자연스레 발생한 3.6미터 층고의 거실은 실제 크기보다 넓게 느껴지며, 남쪽 정원을 통한 낭향의 채광을 충분히 받을 수 있게 하였다. 1층의 정원은 거실, 주방, 서재와 개별적으로 연결되어 있고, 기역(ㄱ)자로 되어있는 1층의 각 부분을 외부공간을 통해 하나로 연결해 주는 역할을 한다.
외부 공간의 연결
2층으로 올라가는 실내 계단 상부에 설치된 천창을 통해 외부공간을 끌어들이고자 하였다. 하늘을 볼 수 있고, 자연광이 부족하여 어두워지기 쉬운 1층과 2층 복도를 밝게 유지할 수 있도록 하였다.
가족욕실의 작은 천창, 침실 사이에 위치한 작은 테라스는 각각의 공간에 충분한 외기와 빛을 제공한다. 2층 외부공간의 중심인 테라스는 작은 정원이 되도록 계획되었고, 이 공간을 통해 각 침실과 가족 욕실, 복도가 긴밀하게 연결되어 있다. 가족 욕실은 완전히 외부로 개방이 가능하도록 계획되어 외부공간인 테라스의 정원을 욕실의 일부로까지 사용할 수 있도록 계획하였다.
현관에서 집으로 들어가는 동선은 다양하게 계획되었다. 현관에서 거실로 직접 진입하는 방법, 그리고 현관에서 창고 안의 신발장 공간을 통해 계단 옆 복도로 주방으로 들어가는 방법이 있다. 이 동선은 앞서 말한 낮 시간, 업무공간이 작동하는 동안에는 가족의 생활이 보 받을 수 있는 동선이다. 현관-수납/화장실 공간의 동선이 한 흐름으로 연결되어 신발을 벗고, 외투를 벗고, 화장실에서 손을 씻고 내부로 들어오는 열린 동선을 계획하였다.
세 번째 진입 방법으로는 현관에서 창고공간을 통해 팬트리로 들어가서 부엌을 통해 진입하는 방법이다. 짐을 들고 들어오고 쓰레기를 내놓기 위한 동선과 생활공간 간에 분리된 동선을 제공한다.

The brief for this project was to suggest a solution which can serve as both a home for a family of three and also a workspace for the client’s business.
The site is located in a quiet residential area, close to a large redevelopment area nearby.
Tightly surrounded by existing neighboring buildings, meeting the privacy and daylight requirements within the constraints of the site context was the main challenge.
The solution led to a facade which is intended to prevent overlooking from the adjacent buildings, yet allowing sufficient daylight to enter internally.
The sight line from the adjacent building was carefully mapped. The external walls are placed to block direct sight where necessary. Also terraces are located in front of the windows to divert direct overlooking from neighbors.
The front elevation was designed to protect privacy yet provide a sense of openness at the same time. The window to the living room is hidden from outside road view but provide sufficient daylight and ventilation to the space.
The function of the internal space is vertically divided. Main living area and workspace are placed on the first floor, while more private space for the family on the second.
The study, which is the main workspace for the client, is planned to be used not only an as an independent space, but also as an expanded open livng- working space when connected to the kitchen/dining area.
The living room which is diagonally adjacent to dining area is stepped down by several steps in order to give sense of visual separation while read as extended space from both direction.
Such spatial arrangement allows the rest of the family members to enjoy the use of living room while workspace is in operation.
The garden is individually connected to the living room, kitchen-dining, and the study. it becomes a central outdoor space, and also functions as a extended living area.
Skylights are applied throughout the building in order the bring daylight and provide openness deep into the plan.
The main skylight on top the stairwell serves as a light source to both first and second floor corridors.
Terraces located between the bedrooms provide air, light, and connectivity to the outside space from each room.
The second floor main terrace, which is the central outdoor space on second floor, is planned to be a small garden and occasionally used as outdoor bathroom.
The family bathroom is designed to be directly open to the main terrace, so that the garden outside the terrace could be used as a part of the bathroom.
The family bathroom opens directly to the main terrace thus blurring the functional, spatial boundary of bathroom and terrace garden.
Diverse access point from entrance hall to internal space natually occurred while accommodating the design brief.
The main access is directly from the entrance hall.
The second access is from entrance hall though corridor adjacent to the stair serves the family members during the working hours when the workspace is in use.
The layout of entrance hall to storage area to wc allows a continuous flow of necessary activity to enter the building. Such separation of access allows minimal interference between two different user groups.
The third access is from entrance hall to pantry area which is ideal for service access for hygiene purpose.










| 원당동 단독주택 설계자 | 최규호_건축사사무소큐제이 건축주 | 개인 감리자 | 최규호 _ 건축사사무소큐제이 시공사 | 건축주 직영 설계팀 | 박증혜 대지위치 | 인천광역시 서구 고산로40번1길 주요용도 | 단독주택 대지면적 | 266.50㎡ 건축면적 | 123.31㎡ 연면적 | 199.73㎡ 건폐율 | 46.27% 용적률 | 74.49% 규모 | 2층 구조 | 철근콘크리트구조 외부마감재 | 라임스톤 내부마감재 | 포세린 타일, 원목마루 설계기간 | 2019. 09 - 2020. 04 공사기간 | 2020. 11 - 2021. 06 사진 | 신경섭 전문기술협력 - 구조분야 : 다우구조연구소 - 기계설비분야 : 정연 엔지니어링 - 전기분야 : 정연 엔지니어링 - 소방분야 : 정연 엔지니어링 |
WIDE AWAKE Architect | Choi, Kyuho_QJ ARCHITECTURE Client | Personal Supervisor | Choi, Kyuho _ QJ ARCHITECTURE Construction | Owner direct control Project team | Park, Jeunghye Location | Gosan-ro 40beon 1-gil, Seo-gu, Incheon, Korea Program | Single Family House Site area | 266.50㎡ Building area | 123.31㎡ Gross floor area | 199.73㎡ Building to land ratio | 46.27% Floor area ratio | 74.49% Building scope | 2F Structure | RC Exterior finishing | Limestone Interior finishing | Porcelain tile, Wood flooring Design period | Sep. 2019 - Apr. 2020 Construction period | Nov. 2020 - jun. 2021 Photograph | Shin, Kyungsub Structural engineer | Dawoo Mechanical engineer | Jungyeon Engineering Electrical engineer | Jungyeon Engineering Fire engineer | Jungyeon Engineering |

'회원작품 | Projects > House' 카테고리의 다른 글
| SONG HOUSE 2022.8 (0) | 2023.02.22 |
|---|---|
| 신매주택 2022.8 (0) | 2023.02.22 |
| 청라 더카운티 단독주택 2022.8 (0) | 2023.02.22 |
| 소헌[素軒] 2022.7 (0) | 2023.02.21 |
| 달아래세가족집 2022.7 (0) | 2023.02.21 |