2023. 2. 22. 09:15ㆍ회원작품 | Projects/House
Shinmae House

첫 만남 
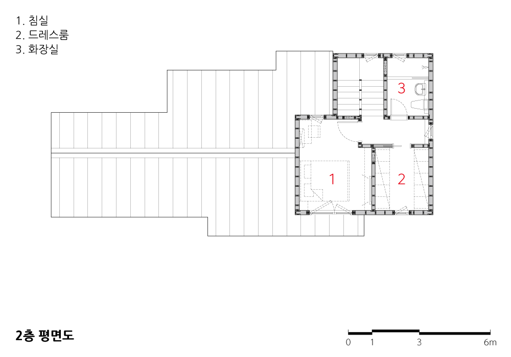
사무실을 찾은 부부는 집을 짓기 위해 북한강변에 작은 땅을 샀다. 중년의 부부는 각자의 직장을 다니고 슬하의 두 아들은 타지로 독립해 나가 있었다. 어떤 집을 짓고 싶으시냐는 물음에 “그냥 두 명이서 조용히 살 집, 주말에 아들이 오거나 어머니께서 오셨을 때 지낼 수 있는 방이 있는”이라는 답을 주었다. 또 다른 요구사항은 없으시냐는 물음에도 “그냥 잘 모르겠어요. 평범한 집이요”라고 말했다. 특별함을 묻는 질문에 그저 ‘평범’이라는 답이 이어졌다. 
결혼 후 20여 년 가까이 아파트에 지내면서 큰 불편이 없었다는 말씀에 조심히 “그러면 왜 집을 지으시려는 거예요?”라는 질문을 던졌고, 그저 조용한 곳에 살고 싶으시다는 답으로 첫 미팅이 마무리되었다. 
지금껏 집을 지으려 찾아오신 분들은 제각기 자신만의 분명한 동기가 있었다. 아이를 위해, 뭔가 특별한 재미를 위해, 체질적으로 아파트가 불편해서 등 각자의 하소연과 불타는 의지가 동반되는 것이 예비건축주들의 평범함이었다. 사실 집을 짓겠다는 생각을 실천한다는 것 자체가 평범한 결정은 아니기에 평범하지 않은 분들의 평범함은 그랬었다. 그런데 신매주택의 건축주 분들은 진짜 평범함 그 자체였다. 
보통의 집 
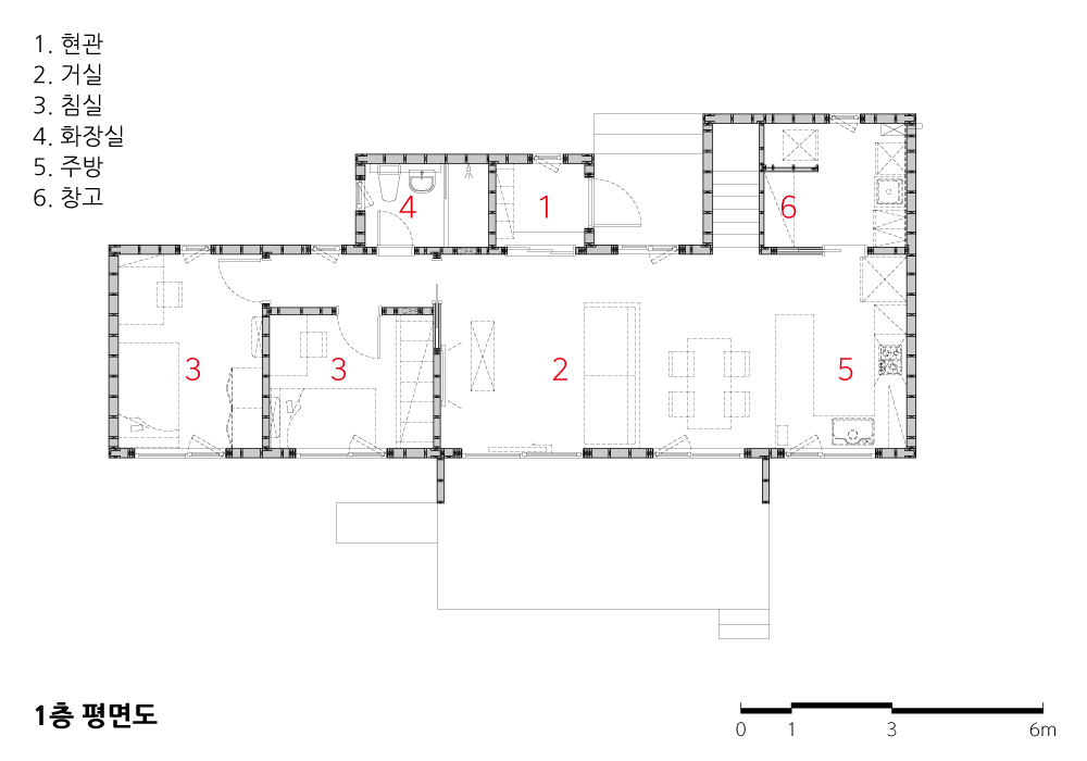
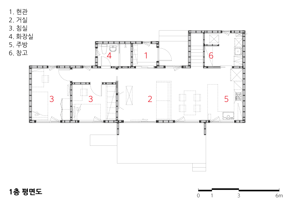
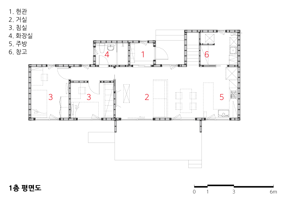
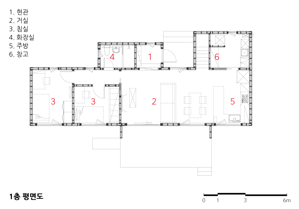
겨우 내놓은 요구는 모든 방이 남향일 것과 차를 두 대 주차할 수 있어야 한다는 것이니 이것으로 전체 집을 그려나가야 하는 건축사의 입장에서는 고민이 될 수밖에 없었다. 어찌 보면 자유롭게 계획할 수 있어 보이지만 평범함을 얘기하는 부부에게 특별한 장치나 공간은 공감받기 어려워 보였다. 
신매주택은 보통사람의 보통의 집이 되어야 했다. 그렇다면 ‘보통의 집’은 무엇일까? 보통의 집은 우리가 가져온 보편적 인식에 근거해야 했다. 남향에 환기가 잘 되고, 관리가 수월하고, 비가 새지 않고, 때로는 따뜻하거나 시원하며, 동선이 명쾌하고 친근한 공간구성을 갖는, 기성가구를 적절히 배치할 수 있는 집. 축약하면 지내면서 딱히 불편할 것 없는 집이었다. 
이방인에서 주민으로 
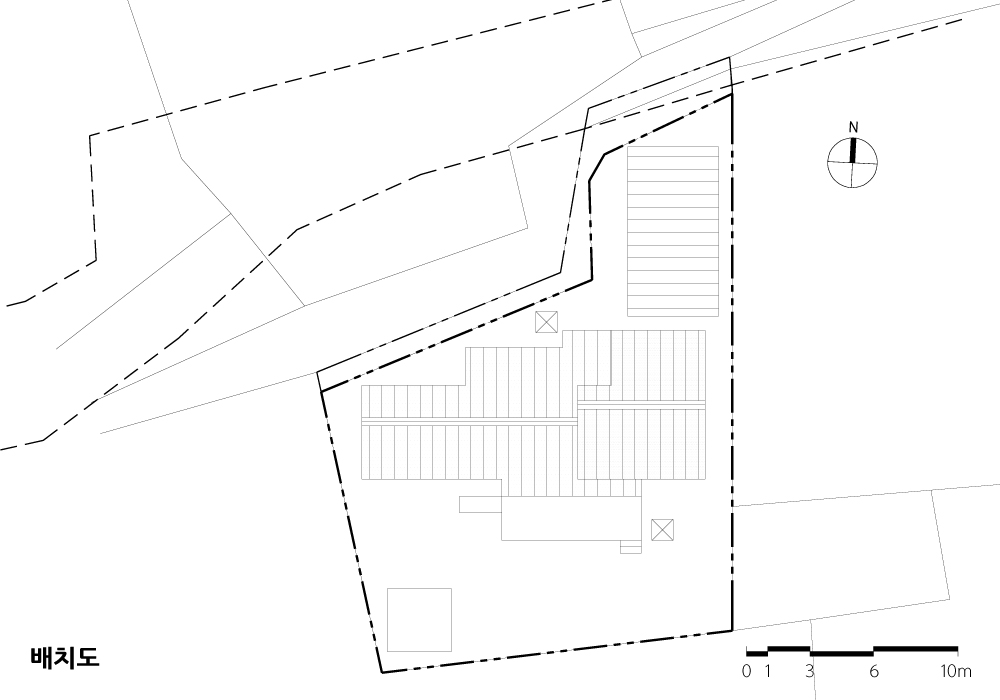
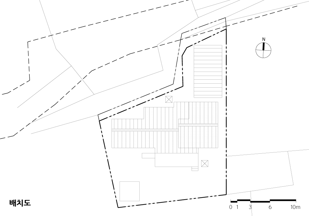
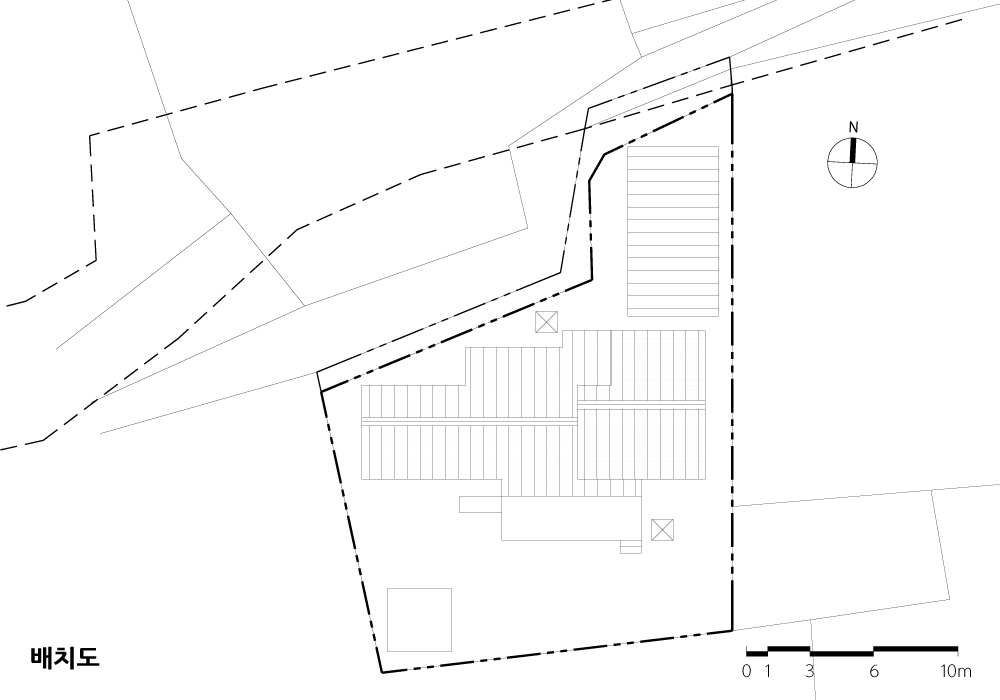
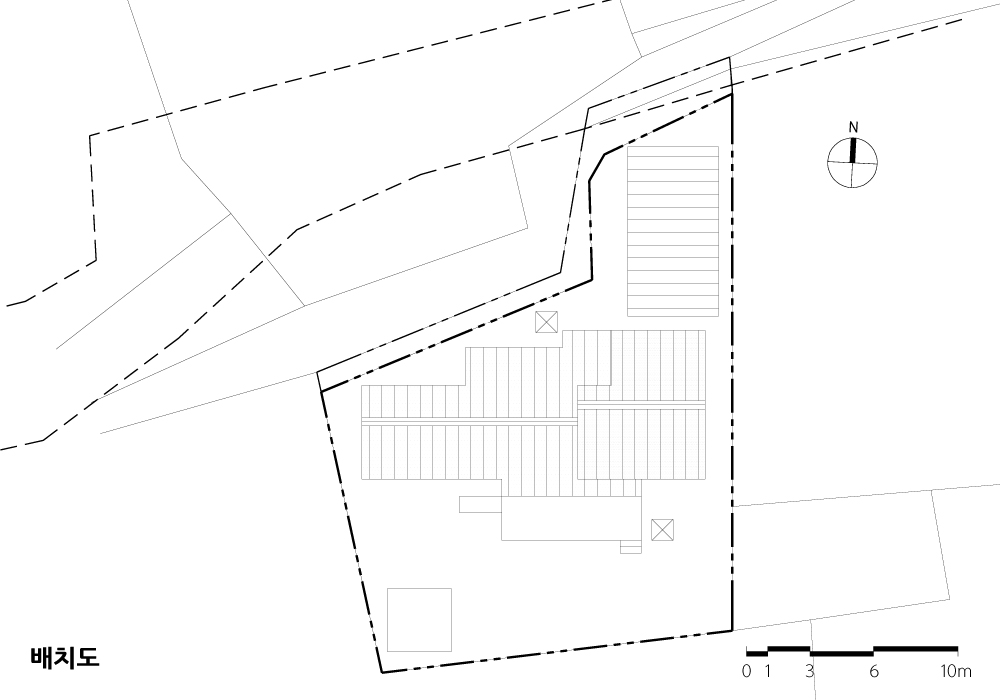
첫 설계미팅을 마치고 다음날 신매주택의 땅을 찾았다. 근래 10여 년 동안 새로운 집이 생긴 적이 없는 작고 조용한 마을이었다. 땅의 경계를 살펴보면서 본격적인 계획에 앞서 측량을 선행할 필요가 있어 보였다. 측량결과는 예상대로 이웃의 농작물과 창고가 상당부분 이쪽 땅으로 넘어와 있었다. 이런 일은 오래된 집이 많은 시골마을에서 비일비재하지만, 긴 시간 지내온 묵시적 합의가 있기에 딱히 문젯거리가 되지 않는다. 누군가 새로 집을 짓기 전까지. 이제 우리가 그 누구가 되었기에 이 문제를 해결해야 하는 상황이 되었다. 원만한 해결을 위해 상의한 결과 욕심 없는 건축주가 지혜로운 답을 내놓으셨다. 침범한 이웃집 창고 건물은 우리 건축주가 비용을 내어 조정하고, 농작물은 수확기까지 건축을 위한 최소 범위만 건드리기로. 
법대로 하지 않으면 바보가 되는 세상에서 건축주는 욕심을 내려놓고 기꺼이 바보가 되어주었다. 오래된 마을에 굴러온 돌이 되는 이 부부는 이곳에 잘 정착하기 위한 고민이 많았을 것이다. 돌이켜보면 양보의 첫 단추를 꿴 것은 현명한 판단이었다. 이로 인해 이후 건축과정에서 이웃의 협조가 필요한 부분은 무탈히 진행될 수 있었다.

First meeting 
A couple, who visited our office, bought a small piece of land on the Bukhan River to build a house. The middle-aged couple had their respective jobs, and his two sons were living on their own. When asked what kind of house they would like to build, they answered, "A house where just two people can live quietly, and where it has a room for their son or mother who may visit on weekends." When asked if there were any other requirements, they said, "We don't know well, just an ordinary house we want." When asked about something unique, their answer was "just normal." 
They said they had no significant difficulty living in an apartment for nearly 20 years after marriage, and we carefully asked, "Why are you building a house then?" The first meeting ended with their answer that they just wanted to live in a quiet place. 
Most clients we have met have clear intentions to build a house. So it was customary for prospective clients to complain or show their strong preferences: for their child, for some unique fun, or the inconvenience of apartment dwelling. Putting the thoughts of building a house into action is not an ordinary decision, so it was the common people who were not expected. However, the clients of Sinmae House were ordinary. 
Ordinary house 
The only demand was to have all rooms facing south and a parking lot for two cars, and it was instead a concern for the architect to design the whole house based on this simple request only. We could create freely, but it didn't seem easy to win a sense of empathy with a special system or space for the couple who talk about the ordinary. 
Sinmae House was supposed to be an ordinary house for ordinary people. But, then, what is an "ordinary house"? The normal house had to be based on the common perception we have brought. A house facing south, good ventilation, easy maintenance, rain-proof, sometimes warm or cool, clear and friendly movement flow, and ready-made furniture that can be properly arranged. In short, it was a house with no inconvenience in dwelling. 
From a stranger to a resident 
We visited the land for Sinmae House the next day after the first design meeting. It was a small, quiet town with no new houses in the last ten years. When we examined the boundary of the land, it was necessary to survey full-scale planning. As expected, the survey results showed that the neighboring crops and warehouses moved to this land to a large extent. This is common in rural villages with many old houses, but it is not a problem because there is an implicit agreement that has been around for a long time. Unless someone builds a new house, we have to solve this problem now that we have become someone. As we discussed an amicable solution, the client, who is not greedy, came up with a wise solution. The invaded neighbor's warehouse building will be adjusted at our client's expense, and the crops will only be removed to the minimum extent of construction until the harvest time. 
In a world where people become fools if we don't go by the law, the clients gave up their greed and willingly became a fool. The couple, a stone that has just rolled in this old village, must have struggled to settle here. But, in retrospect, it was wise to fasten the first button of concessions. As a result, the part that required the cooperation of neighbors in the subsequent construction process could proceed smoothly.











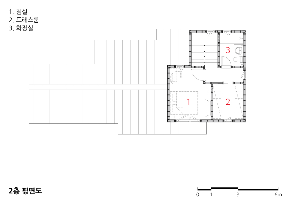
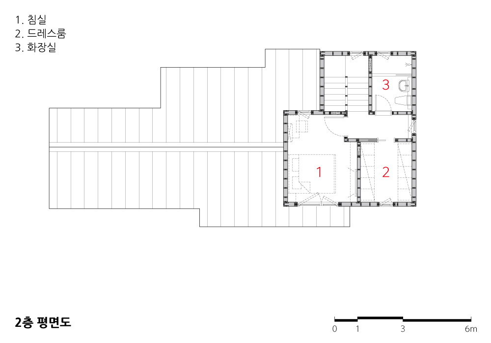
| 신매주택 설계자 | 최성경 _ 무화건축사사무소 건축주 | 이영훈, 이영주 감리자 | 최성경 _ 무화건축사사무소 시공사 | 건축주 직영 대지위치 | 강원도 춘천시 서면 보가터길 76 주요용도 | 단독주택 대지면적 | 338.00㎡ 건축면적 | 116.09㎡ 연면적 | 146.93㎡ 건폐율 | 34.35% 용적률 | 43.47% 규모 | 2층 구조 | 일반목구조 외부마감재 | 세라믹사이딩 내부마감재 | 장폭합지, 강마루, 타일 설계기간 | 2019. 03 - 2019. 06 공사기간 | 2019. 06 - 2019. 08 사진 | 최성경  | 
Shinmae House Architect | Choi, Sungkyung _ Moohwa Architects Client | Lee, Yeonghoon / Lee, Yeongjoo Supervisor | Choi, Sungkyung _ Moohwa Architects Construction | Owner direct control Location | 76, Bogateogil, Seo-myeon, Chuncheon-si, Gangwon-do, Korea Program | Single family house Site area | 338.00㎡ Building area | 116.09㎡ Gross floor area | 146.93㎡ Building to land ratio | 34.35% Floor area ratio | 43.47% Building scope | 2F Structure | Wooden structure Exterior finishing | Ceramic siding Interior finishing | Wall paper, Wood flooring, Tile Design period | Mar. 2019 - Jun. 2019 Construction period | Jun. 2019 - Aug. 2019 Photograph | Choi, Sungkyung  | 

'회원작품 | Projects > House' 카테고리의 다른 글
| 닫힌집, 열린집 2022.8 (0) | 2023.02.22 | 
|---|---|
| SONG HOUSE 2022.8 (0) | 2023.02.22 | 
| 원당동 단독주택 2022.8 (0) | 2023.02.22 | 
| 청라 더카운티 단독주택 2022.8 (0) | 2023.02.22 | 
| 소헌[素軒] 2022.7 (0) | 2023.02.21 |