2023. 2. 21. 09:24ㆍ회원작품 | Projects/House
Hwa Ga Dang

프롤로그
서산에 주택을 짓고 싶다는 연락을 받고 상담을 하면서부터 화가당(和加當)은 시작되었다. 부모님이 여생을 살기 위한 집을 짓고자 아들이 직접 고민하고, 또 고민한 내용을 들고 방문하였다. 의뢰인의 관심사항과 직접 그린 도면, 그리고 외부형태까지 표현된 29장의 주택 구상을 보면서 디자이너의 구상이 느껴졌다. 긴 상담을 마친 후, 설계와 시공 후 노년으로 접어드는 부모님을 위한 가족의 화목을 크게 이루는 집 화가당이 완성되었다.
주택 설계 콘셉트
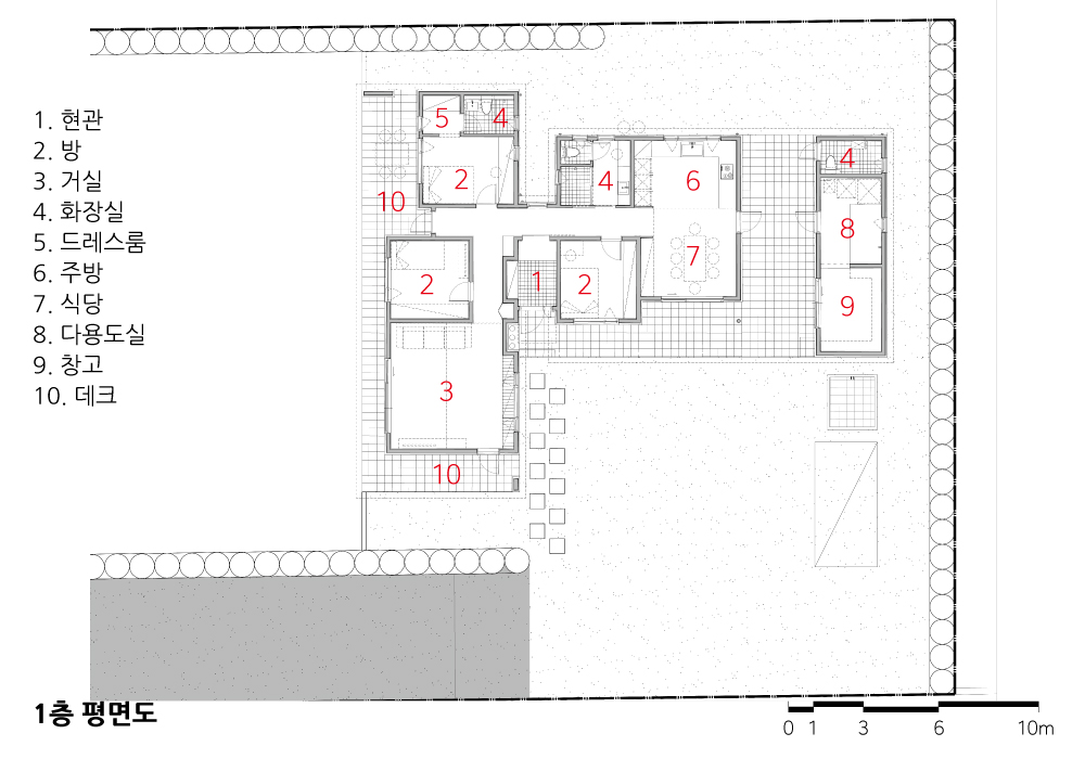
화가당은 단층 주택으로 주변 대지의 흐름에 순응하면서 자연으로 열린 형태를 지니고 있다. 현관을 중심으로 크게 아버지의 공간과 어머니의 공간으로 나누어진 구성을 취하고 있고, 아버지의 공간은 공공의 성격을 가진 거실과 손님방, 사적인 영역인 안방이 있다. 어머니의 공간은 주방과 식당, 침실이 내부에 있고, 창고와 넓은 데크공간은 외부에 위치한다. 각 공간들을 동선으로 구분하고 연결하면서 마당이나 자연으로 시선이 확장되고, 내부와 외부의 연결을 통해 자연을 내부로 끌어들이는 계획을 하였다. 부모님 두 분이 사시는 심플하고 정갈한 집을 짓기 위해 단순한 평면 구성을 염두에 두고 디자인했으며, 부모님 두 분의 의견을 수용하여 기능적인 부분과 수납공간을 충분히 담기 위해 치수를 여러 번 수정하면서 다듬어갔다.
경사로를 통해 석재 옹벽으로 조성된 넓은 부지에 들어서면 남쪽에 진입마당이 맞이하고 있다. 진입마당에 면해있는 식당과 방, 창고 등은 어머니의 공간영역이다. 남쪽으로 펼쳐진 밭에서 일을 하다가 식당, 창고 등을 쉽게 이용하기 위한 구성이다. 어머니를 위한 공간을 남향으로 구성하여 따스함이 느껴지게 했고, 처마를 길게 내밀어 여름의 강한 빛을 차단하고 본동과 창고동 사이의 데크에 김장이나 추수 등 농사와 관련된 작업도 가능한 공간을 마련하였다. 현관에 들어서면 북쪽의 녹음을 느낄 수 있고, 동측의 식당으로 열린 복도와 서측의 마당으로 열린 복도가 각 공간을 연결하고 있다. 아버지가 주로 쓰는 안방에는 작은 드레스룸을 두어 독립된 수납공간을 가지게 하였고, 어머니가 주로 쓰는 방에는 작은 기도 공간을 둘 수 있게 계획하였다.
손님방을 지나 거실에 들어서면 서측 마당과 멀리 서산의 원경이 시야에 들어오며 진입마당으로의 시선도 확보된다. 서쪽입면은 마당으로 처마가 길게 뻗어 있고, 석재데크가 있어 손자손녀들이 옹기종기 모여 앉아서 여유로운 시간을 보내는 장소가 될 것이다.
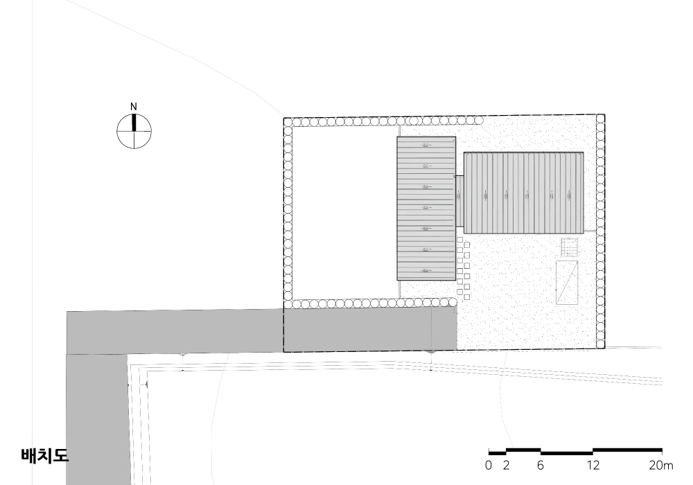
주택의 배치
두 개의 마당과 두 개의 매스는 각각의 성격에 맞게 서쪽과 남쪽을 향하고 있고, 네 영역의 공간을 큰 두 지붕으로 덮고 작은 지붕으로 연결하는 방식으로 계획하였다. 초기계획에서 창고동이 추가되면서 건물과 마당과의 관계를 조율하는 것이 어려웠던 작업이다. 하지만 마당의 크기만이 외부공간이 아니고, 주변의 산과 들판도 화가당의 마당이기 때문에 지붕의 부유하는 모습이 과하게 느껴지지 않았다.
평면계획과 각 실별 특징
대가족이 한곳에 모이는 것을 고려한 거실에는 박공면 천정과 윈도우 시트와 외부로 통하는 출입구가 2곳이나 있다. 안방 앞에는 작은 테이블을 놓고 마당을 즐길 수 있는 작은 외부공간이 있고, 식당 앞에는 남향 빛을 쬘 수 있는 넓은 외부공간이 있다. 명절이나 모임 때도 편리하게 쓸 수 있게 화장실과 샤워실, 세면대를 분리하였고, 식당 공간도 넉넉하게 계획하였다. 내부에서도 환기가 잘되고 바람길이 나도록 창과 문을 계획하고, 긴 처마로 그늘을 만들어 자연친화적인 집이 되도록 하였다.
입면계획
기단부를 석재데크로 올리고 회색 스타코로 매스를 마감했다. 기둥과 사이 공간들에는 짙은 색 석재타일로 구분을 강조하였다. 창고동은 별도의 스타코 색을 써서 분리된 것을 강조하였다. 지붕의 루버는 탄화목을 사용해 내구성을 높였고, 나무의 질감을 많이 드러내어 시원함을 주었다. 지붕은 면적이 넓고 경사가 낮아서 빗소리 등의 소음에 강한 세라믹 지붕을 사용하였다.
인테리어 콘셉트
심플하고 정갈한 내부를 위해 밝은 색 벽지와 자작나무 합판으로 마감하고 짙은 색 마루로 안정감을 더했다. 간접조명을 길게 계획하여 좁은 복도에 깊이감을 주었고, 거실과 식당의 층고를 높여 공간감을 더했다.

Prologue
Hwagadang began after consultation after we heard the client wanted to build a house in Seosan. The client wanted to make a house for the rest of his parent's life and visited us with his request. Looking at 29 pages of house concept that expressed the client's concerns, drawings he made, and external shape, we could feel the designer's idea. After lengthy consultation, design, and construction, the house, which will significantly contribute to family harmony, was eventually completed for his old parents.
House design concept
Hwagadang is a single-story house that adapts to the flow of the surrounding land and has a concave shape to nature. It primarily consists of the father's and mother's spaces around the entrance. The father's space has shared areas of a living room, a guest room, and a private main room, whereas the mother's space has a kitchen, a dining room, and a bedroom indoors, but a warehouse and an ample outdoor deck space. In terms of a movement flow, the gaze expands to the yard and nature, and nature flows into the interior through the connection between the inside and the outside. To build a simple and neat house where the parents live, it was designed with a simple flat structure in mind, and the dimensions were revised several times to accommodate functional parts and storage space in response to the opinions of both parents.
Getting through a ramp into the open site made of stone retaining walls, you can see an entrance yard in the south. The dining room, the room, and the warehouse facing the yard belong to the mother's space domain. This layout allows easy access to a restaurant and a warehouse while working in the fields spread out to the south. The space for the mother faces south to give a sense of warmth, and the eaves are extended to block the strong sunlight during the summer. There is also a space for farming-related tasks, such as kimchi-making and harvesting, on the deck between the main building and the warehouse building. When you step in the entrance, you can feel the greenery of the north, and the corridors open to the eastern dining room and the passage to the western yard connect each space. A small dressing room was placed in the father's main bedroom to have an independent storage space, and a small prayer space was planned in the mother's main room.
When you enter the living room through the guest room, you can see the western yard and the distant view of Seosan. The west façade has extended eaves to the yard and a stone deck, so it will be a place for the grandchildren to sit in a huddle and relax.
House layout
The two yards and two masses face west and south to suit their respective characteristics, and the space of four areas is covered with two large roofs and connected with a small top. It was challenging to coordinate the relationship between the building and the yard as the warehouse building was added to the initial plan. However, since the size of the yard is not the only outdoor space, but the surrounding mountains and fields are also the yard of Hwagadang, the floating roof didn't look excessive.
Floor plan and characteristics of each room
Considering the gathering of a large family in one place, the living room has a gabled ceiling, window seats, and two entrances to the outside. In front of the main room is a small outdoor space with a small table to enjoy the yard, and in front of the dining room is an ample outdoor space facing south. A toilet, a shower stall, and a sink are separate for convenient use even during holidays and gatherings, and the dining space is spacious. The windows and doors secure ventilation and wind inside, with extended eaves to make the house environment-friendly.
Elevation design
The base sits on a stone deck, and the mass finishing is gray stucco. Dark stone tiles emphasize a division between the spaces between columns and in-between spaces. The warehouse building emphasized the separation by using a different stucco color. For the louver of the roof, carbonized wood increases its durability and gives coolness by revealing the texture of the wood a lot. Since the top has a large area and a low slope, a ceramic roof can block outside noise such as rain.
Interior design concept
For a simple and neat interior, finishing consists of light-colored wallpaper and birch plywood, and dark flooring adds a sense of stability. Long indirect lighting would give a sense of depth to the narrow hallway, and the living room and the dining room with the higher ceiling would add a sense of space.







| 화가당 설계자 | 최성호_소하 건축사사무소 건축주 | 이경수 시공사 | 지음건설 대지위치 | 충청남도 서산시 팔봉면 장군산길 187-13 주요용도 | 단독주택 대지면적 | 998.00㎡ 건축면적 | 194.96㎡ 연면적 | 194.96㎡ 건폐율 | 19.54% 용적률 | 19.54% 규모 | 1층 구조 | 경골목구조 외부마감재 | 벽체 스타코, 기단부 에코브릭 내부마감재 | 합지, 적삼목사이딩 설계기간 | 2019. 06 - 2020. 05 공사기간 | 2020. 06 - 2020. 11 사진 | 이한울 _ 나르실리온 전문기술협력 - 구조분야 : (주)위너스BDG - 기계설비분야 : (주)태영E.M.C - 전기분야 : (주)태영E.M.C - 소방분야 : (주)태영E.M.C |
Hwa Ga Dang Architect | Choi, Sungho_SoHAArchitecture Client | Lee, Kyungsu Construction | JEEEUM Location | 187-13, Janggunsan-gil, Palbong-myeon, Seosan-si, Chungcheongnam-do, Korea Program | House Site area | 998.00㎡ Building area | 194.96㎡ Gross floor area | 194.96㎡ Building to land ratio | 19.54% Floor area ratio | 19.54% Building scope | 1F Structure | Stick or Light Frame Construction Exterior finishing | Staco, Ecobrick Interior finishing | Wallpaper, Wood siding Design period | Jun. 2019 - May 2020 Construction period | Jun. 2020 - Nov. 2020 Photograph | Lee, Hanul _ Narsilion photography Structural engineer | Winus Building Design Group Mechanical engineer | TaeYeong E.M.C Electrical engineer | TaeYeong E.M.C Fire engineer | TaeYeong E.M.C |

'회원작품 | Projects > House' 카테고리의 다른 글
| 소헌[素軒] 2022.7 (0) | 2023.02.21 |
|---|---|
| 달아래세가족집 2022.7 (0) | 2023.02.21 |
| 아우어 하우스 2022.7 (0) | 2023.02.21 |
| 연희동 주택 2022.7 (0) | 2023.02.21 |
| 다정다감(多庭多監) 2022.7 (0) | 2023.02.21 |