2023. 3. 17. 17:40ㆍ회원작품 | Projects/House
Kelk haus





시작
이 프로젝트의 건축주는 독일로 장기간의 출장을 떠나기 직전 한 번의 상담 후 온라인을 통해 설계과정을 함께 진행하였다. 두 자녀를 둔 부부는 잔디가 덮인 너른 마당과 계단이 있는 독일 집에서 코로나로 인한 격리 생활에도 큰 어려움을 모르고 지냈다. 아들은 “축구를 할 수 없는 것은 집이 아니다.”라고 했지만 ‘켈크하우스’는 겉보기와는 다르게 내부에 아주 특별한 계단과 공간을 갖추고 있다.


구조
이 집의 구조는 중목구조이다. 서울 중구의 협소한 삼각형 대지 위에 지어진 집은 여느 협소주택처럼 정면을 볼만한 곳이 딱히 없고, 사방이 집으로 둘러싸여 있다. 좁은 골목길로 이어진 도심에서는 무엇보다 빠르게 집을 짓는 것이 중요하다. 전체 구조에 공장 생산된 중목구조를 사용함으로써 공기를 단축했다. 목구조는 벽체를 얇게 만들 수 있는 효과가 있어 공간 활용에도 효과적이다. 주택에서 필요한 주차 1대를 확보하기 위해 건물의 끝부분을 기둥이 없는 캔틸레버로 처리하여 공간을 알뜰하게 사용한 것도 특징이다. 목구조에서 이런 캔틸레버구조는 처짐을 발생시켜 장기적으로 건물이 변형되기 쉬운데, 이를 방지하기 위해 구조계산된 공학 목재를 이용하여 구조적 처짐을 잡아내었다.
공간의 구조적 특징
도심 협소 주택의 특징인 주변 건물들과의 밀착된 배치로 인해 불편해진 큰 창 대신 기능적인 작은 창들을 적절히 배치하여 주변 집들과의 간섭이 거의 없는 상태를 만들었다. 창이 작은 어두운 1층의 현관을 지나 주택에 들어서면 중문에서 3층까지 연결되는 기다란 계단과 계단을 따라 이어지는 ‘가족서가(家族書架)’가 가장 먼저 보인다. 이 가족서가는 책을 위한 역할뿐 아니라 책상, 옷장, 장식장 등 여러 용도로 쓰이는데 계단과 각각의 공간을 분리해주는 역할도 하고 있다. 계단을 따라 위 층으로 이동하면서 층마다 바뀌고 확장되는 공간의 변화를 감상할 수 있다.
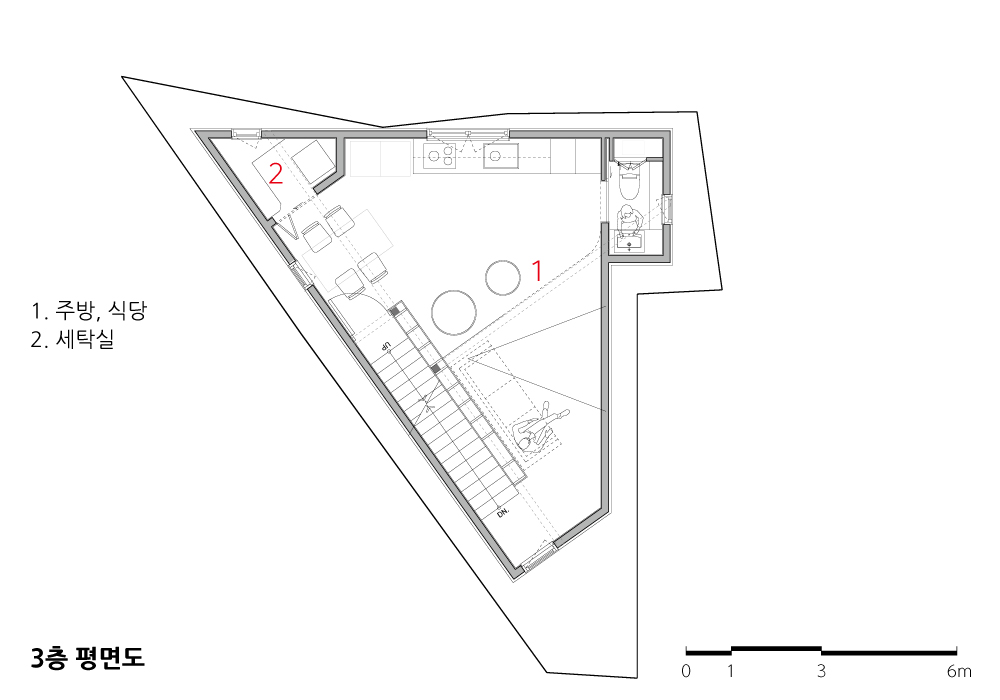
평면 구성
평면은 삼각형 모양으로 가장 긴 변에 현관으로부터 3층까지 연결된 계단을 배치했다. 1층은 지역주민과 교류할 수 있는 공간으로 주차장의 통창으로부터 남쪽의 작은 데크 공간까지 연결된다. 계단을 한 층 올라와 처음 만나는 2층은 ‘공부방’을 중심으로 아들과 딸을 위한 각각의 방을 좌우로 배치하고, 욕실 공간을 그 사이에 배치했다. 2층 아이들 공간에서 보이는 둥근 형태의 문과 공간은 건축주가 머물던 독일 주택의 이미지에서 차용했다. 다시 계단을 오르면 3층이다. 3층은 가족 전체를 위한 공간인 거실과 주방이 있다. 이곳은 ‘켈크하우스’의 가장 넓고 높은 공간으로 두 개의 천창과 오각형 창을 통해 풍부한 광량과 개방감을 느낄 수 있다. 천창으로부터 떨어지는 빛은 원형의 바닥 창을 통해 2층의 공부방까지 확대된다. 주방에서 계단을 오르면 다락 공간이 있다. 다락은 낮은 층고를 극복하기 위해 돌출된 천창을 만들었다. 이 공간은 부부침실로 쓰인다.
“개별적인 방의 공간보다는 계단과 공용공간에 공간을 아낌없이 사용했다.”





Start _ For this project, we worked on design together with the client online after having a meeting once right before he left for a long business trip to Germany. Client couple with two children lived in a German house with a wide grassy yard and stairs, unaware of the great difficulties of quarantine due to the COVID-19. Their son said, “It is not a house where you cannot play soccer,” but ‘Kelk House’ has a very special staircase and space inside unlike its appearance.
Structure _ This house has designed heavy timber structure. The house built on a narrow triangular site in Jung-gu, Seoul has no views to see from the front like any other narrow houses and is surrounded by neighboring houses on all sides. In the city center that leads to narrow alleys, it is most important to build a house quickly. The construction period was shortened by using a prefabricated heavy timber construction for the entire structure. The timber construction has the effect of making the wall thin, so it is also effective for space utilization. In addition, it is characterized by economical use of space since the end of the building is treated with column-less cantilever to secure one parking space for a house. In the case of timber construction, this cantilever structure causes deflection, which makes buildings prone to deformation in the long run. To prevent this, structural calculation-based engineered wood was used to solve structural deflection.
Structural features of space _ Instead of large windows that becomes inconvenient due to the layout standing close to surrounding buildings, which is a characteristic of narrow houses in the city, functional small windows were appropriately placed to make little interference with neighboring houses. When entering the house through the dark entrance with small windows on the first floor, the first thing they can see is the long staircase leading from the inner gate to the third floor and the ‘family bookshelf (家族書架)’ along the stairs. This family bookshelf is used not only for books, but also for various purposes such as a desk, a closet, and a decorative cabinet, and it can also separate spaces from the stairs. As they move to the upper floor along the stairs, they can appreciate the changes in space that changes and expands each floor.
Floor plan _ The floor plan is in the shape of a triangle, and a staircase connected from the entrance to the third floor is placed on the longest side. The first floor is a space for interact with neighborhood, and it is connected from the whole window in the parking lot to the small deck space on the south side. On the second floor, which they first encounter after going up the stairs, rooms for their son and daughter are placed on the left and right of the ‘study room’, and the bathroom space is placed in between. The round door and space seen in the children's space on the second floor were borrowed from the image of the house in Germany where the client stayed. If they go up the stairs again, there is the third floor with a living room and a kitchen, which are spaces for the entire family. This is the widest and tallest space of ‘Kelk House’, and they can feel abundant light and openness through two skylights and pentagonal windows. The light from the skylight extends to the study room on the second floor through the circular window that goes to the floor. If they go up the stairs from the kitchen, there is an attic space. The attic has a protruding skylight to overcome the low floor height. This space is used as the client couple's bedroom.
“Rather than the space of individual rooms, we tried to utilize the space of the stairs and common areas as much as possible.”
| Kelk haus 설계자 | 이재혁 _ (주)에이디모베 건축사사무소 시공사 | (주)수피아건축 설계팀 | 임동연, 송시열, 강현보 대지위치 | 서울특별시 중구 신당동 주요용도 | 단독주택 + 근린생활시설 대지면적 | 80.07㎡ 건축면적 | 45.24㎡ 연면적 | 119.92㎡ 건폐율 | 56.50% 용적률 | 148.76% 규모 | 3F 구조 | 중목구조 외부마감재 | 벽 _ STO K1.5 / 지붕 _ THK5.0 칼라강판 내부마감재 | 바닥 _ thk8 합판마루(구정마루) / 벽+천장 _ 종이벽지 / 계단재 _ thk30 스프러스 집성목+투명 스테인 설계기간 | 2020. 01 - 2020. 09 공사기간 | 2021. 03 - 2021. 09 사진 | 김창묵 구조분야 : 마영민 _ 금나구조 기술사사무소 기계설비분야 : 김기표_거산ENG / 김성률_유영설비기술연구소 전기분야 : 김기표_거산ENG / 김성률_유영설비기술연구소 |
Kelk haus Architect | Yi, Jaehyuk _ Admobe Architect Construction | Supia Construction Project team | Lim Donghyun, Song Siyeol, Kang Hyunbo Location | Shindang-dong, Jung-gu, Seoul, Korea Program | Detatched house + Neighborhood facilities Site area | 80.07㎡ Building area | 45.24㎡ Gross floor area | 119.92㎡ Building to land ratio | 56.50% Floor area ratio | 148.76% Building scope | 3F Structure | Light-frame wood structure Exterior finishing | Wall _ STO(EIFS) / Roof _ Steel sheet Interior finishing | Wood flooring, Wall paper, Laminated wood Design period | Jan. 2020 - Sep. 2020 Construction period | Mar. 2021 - Sep. 2021 Photograph | Kim, Changmook Structural engineer | Ma, Youngmin Mechanical engineer | Kim, Kipyo Electrical engineer | Kim, Kipyo / Kim, Sungryul |
'회원작품 | Projects > House' 카테고리의 다른 글
| 봄빛담 2023.3 (0) | 2023.03.17 |
|---|---|
| 호미양양 2023.3 (0) | 2023.03.17 |
| 새솔동 단독주택Ⅰ2022.9 (0) | 2023.02.23 |
| 지우네집(문호리 패시브 주택) 2022.9 (0) | 2023.02.23 |
| 묘각형주택 2022.8 (0) | 2023.02.22 |
