2023. 3. 17. 17:42ㆍ회원작품 | Projects/House
BOMBITDAM




건축주 부부는 주거의 변화가 주는 삶의 긍정적인 측면을 믿고 한적한 시골에 집을 짓고 싶다며 찾아왔다. 집에 대한 밑그림도 어느 정도 만들어두었을 만큼 집에 대한 기대감이 높았던 분들이었다. 설계의 첫 단추는 언제나 건축주들의 생각을 듣는 것에서 시작한다. 우리가 살고 싶은 집, 우리가 원하는 공간, 우리가 집에서 하고 싶은 것, 가족 구성원이 원하는 각자의 집에 대한 생각들… 설계는 항상 이런 수많은 의견들을 경청하고 밑그림을 그려가는 것으로 시작된다.
본 건축물의 대지는 과거 논이었던 공간을 개발하여 도로와 4개의 필지로 만들었고 그중 중간에 위치한 한 필지였다. 전면에 위치한 도로를 제외하고 사이트의 전면과 후면으로 농지가 펼쳐져 있는 평야와 같은 곳에 대지는 조용히 자리 잡고 있었다. 사방이 트여있는 이곳에 어떤 건축물을 앉혀야 좋을까라는 고민으로 계획은 시작되었다. 농지를 면한 대지는 4계절의 변화에 민감하다. 봄이 되면 다시 생명을 품기 위한 준비를 하고, 여름에는 초록빛으로 물든 바람에 나부끼는 넓은 초록바다가 펼쳐지고, 가을에는 황금빛으로 물들고, 겨울이 되면 수확이 끝난 공허한 평야가 펼쳐지고 가끔 새하얀 세상이 되기도 한다. 이곳에 복잡한 형태의 건물보다는 단순하지만 개성이 있는 집을 그려봐야겠다는 마음이 들었다. 단순하지만 가로로 놓인 사각형 매스와 세로로 놓인 사각형 매스 2개를 결합한 형태로 건축물의 형태는 결정되었다. 대지의 뒤쪽으로 넓은 농지와 멋진 산이 보이는 곳이어서, 뒷마당을 활용할 수 있도록 계획한 것은 어쩌면 당연한 결과였던 것 같다.
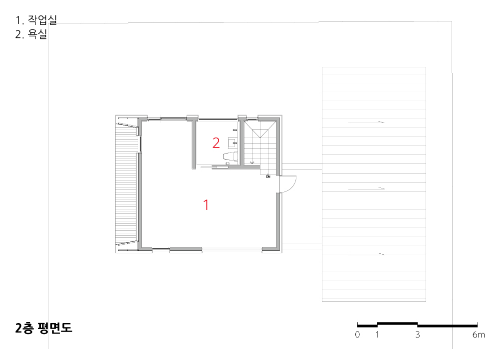
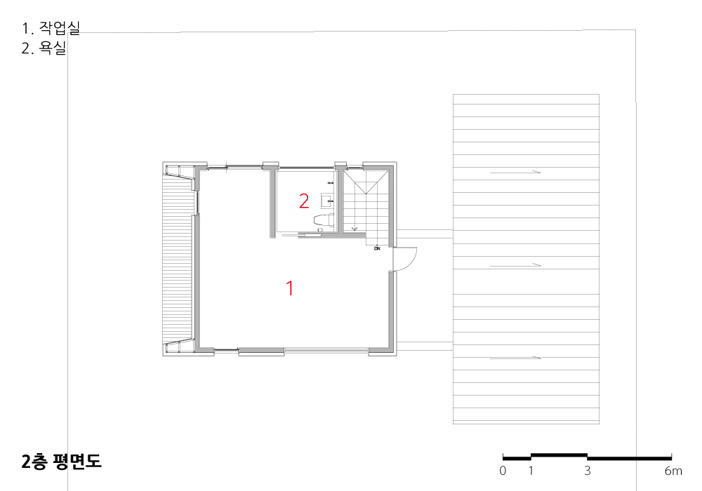
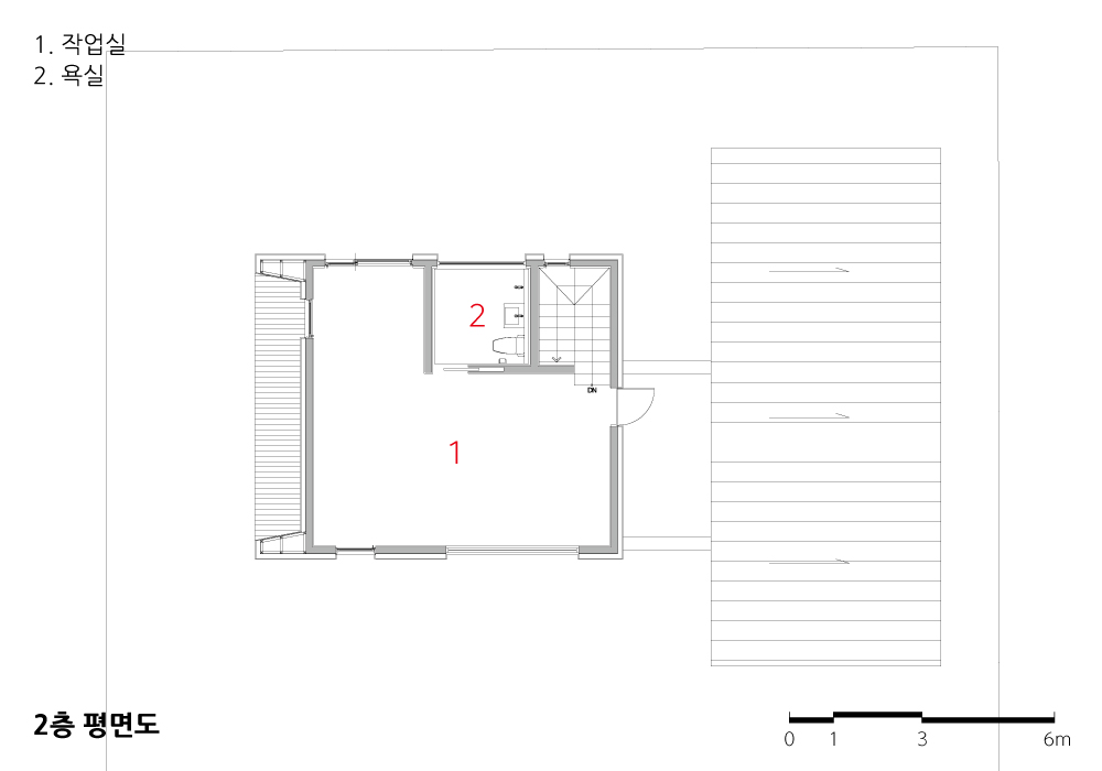
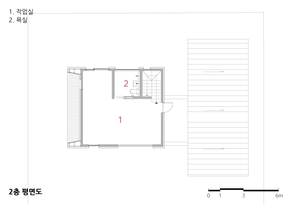
건축주의 이야기에 귀를 기울여 집을 그려나갔다. 집의 첫 시작인 현관을 중심으로 오른쪽은 거실과 주방이 위치한 공용의 공간을 왼쪽은 아이방과 안방이 있는 사적인 공간으로 분리시켰다. 또 사적공간이 위치한 왼쪽 매스의 1층은 주거, 2층은 작업공간으로 나누어 한 집에서 세 가지 성격을 가진 공간을 자연스럽게 분리시키고 또한 연결시켰다.
현관문을 열고 들어서면 넓은 통창으로 매력적인 외부공간인 중정과 멀리 솟아있는 산이 눈에 들어온다. 거실과 주방은 연결되어 있어서 상황에 따라 아일랜드 형식의 바가 달려있는 거실이 되기도 하고, 또 어떤 때에는 아주 넓은 파티룸이 될 수 있다. 아파트는 보통 거실과 주방을 집의 가운데 두어 이런 역할을 하기 힘들지만, 주택은 충분히 가능한 이야기다. 넉넉지 않은 건축면적의 제한으로 1층의 화장실은 안방, 거실, 아이방 세 곳에서 이용이 가능하도록 문을 두 개 설치했다. 이런 계획들로 그리 넉넉지 않은 건폐율의 제한을 해결할 수 있었다.
외경사 지붕을 갖는 주택의 외부 모습은 경사면을 그대로 활용한 천정을 만들어 실내공간으로 끌고 들어와 다소 밋밋해 보일 수 있는 평면적인 공간들을 공간감이 풍부하도록 디자인했다. 거의 모든 공간의 색상은 화이트로 통일했다. 가장 많이 쓰는 색상이면서 보편적인 색상이지만 형태를 어떻게 하느냐, 창호의 변화로 빛이 유입되는 양을 어떻게 조절하느냐 등에 따라 채도의 변화가 느껴질 수 있고, 공간을 넓어 보이게 하는 효과도 있기 때문에 화이트 색상을 적극적으로 도입했다. 하얀 도화지와 같은 공간은 화려하지는 않지만 조명과 가구, 그리고 화분 등을 이용한 건축주의 센스로 완성되어가고 있다.



The client couple came to our office to build a house in the quiet countryside with a belief in the positives of life from changes in housing. They had high expectations for the house to the extent that they had lots of ideas and sketches of their future home. The first step in design always begins by listening to the client’s thoughts. The house we want to live in, the space we want, what we want to do at home, each family member's thoughts about home, etc... Design always begins by listening to a large number of opinions and making a rough sketch.
The site of this building was developed from a space that used to be a rice field and turned into a road and four parcels, and it was one of the parcels in the middle. Except for the road in the front, the site is quietly located in a plain where farmland spreads to the front and back of the site. The plan began with the thought of what kind of building should be placed in this open space. The site facing farmland is sensitive to the changes of 4 seasons. In spring, it prepares to embrace life again, the vast green sea flying in the wind spreads out in summer, it turns golden in autumn, and empty plains where harvest is finished spread out and the whole world turns white in winter. We felt the need to sketch a simple but unique house rather than a complicated building. The shape of the building was determined as a combination of a horizontally placed rectangular mass and two vertically placed rectangular masses, although simple. It is a place where you can see wide farmland and nice mountains in the back of the site, so it was naturally designed to utilize the backyard.
We started design the house by listening to the client's story. Centering on the entrance which is the first start of the house, sections are divided into the right side as a shared space having a living room and a kitchen, and the left side as a private space having a children's rooms and a master bedroom. In addition, the left mass, where the private space is located, is divided into the first floor for residence and the second floor for work space, so that the spaces with three characteristics are naturally separated yet connected in one house.
When you open the front door to enter, you can see the attractive outdoor courtyard and the distant mountains through the wide windows. The living room and the kitchen are connected, so it can be a living room with an island-style bar or a very spacious party room depending on the situation. An apartment usually has a living room and a kitchen in the middle of the house, making it difficult to play such a role, but it is possible for house. Due to the limited construction area, the toilet on the first floor has two doors installed so that it can be used from a master bedroom, a living room, and children's rooms. These plans were able to solve the limitation of insufficient building-to-land ratio.
With the ceiling that utilizes the slope as it is to bring the slope into indoor space, the exterior of the house with the shed roof was designed to create an impression of space for flat spaces which may look rather plain. Almost all spaces are colored in white consistently. Although white color is most commonly used and universal, it is possible to feel the change in saturation depending on the shape and the amount of light entering through the change of windows. It can also make a space look wider. The space like white drawing paper is not flashy, but it is being completed with the client's good sense, such as using lighting, furniture, and flower pots.



| 봄빛담 설계자 | 김대영 _ 인우건축사사무소 건축주 | 백종성 감리자 | 김대영 _ 인우건축사사무소 시공사 | (주)예진건설 설계팀 | 김민영, 노현주 설계의도 구현 | 인우건축사사무소 대지위치 | 전라남도 장성군 진원면 진남2로 312-5 주요용도 | 단독주택 대지면적 | 528.00㎡ 건축면적 | 105.05㎡ 연면적 | 147.78㎡ 건폐율 | 19.90% 용적률 | 27.99% 규모 | 2F 구조 | 스틸하우스 외부마감재 | 스타코, 고내식 합금 도금강판 내부마감재 | 강마루, 벽지, 폴리싱타일 설계기간 | 2020. 09 - 2021. 04 공사기간 | 2021. 05 - 2021. 11 사진 | 김성희 _ 사진짓기 |
BOMBITDAM Architect | Kim, Daeyeong _ Inwoo architect Client | Baek, jongsung Supervisor | Kim, Daeyeong _ INWOO Architecs Construction | Yejinhouse Project team | Kim, Minyoung / No, Hyunju Design intention realization | Kim, Daeyeong _ INWOO Architecs Location | 312-5, Jinnam 2-ro, Jinwon-myeon, Jangseong-gun, Jeollanam-do, Korea Program | House Site area | 528.00㎡ Building area | 105.05㎡ Gross floor area | 147.78㎡ Building to land ratio | 19.90% Floor area ratio | 27.99% Building scope | 2F Structure | Steelhouse Exterior finishing | Staco, Steel plate Interior finishing | Wallpaper, Woodfloor, Tile Design period | Sep. 2020 - Apr. 2021 Construction period | May 2021 - Nov. 2021 Photograph | Kim, Sunghee |
'회원작품 | Projects > House' 카테고리의 다른 글
| 안림동 필로티 하우스 2023.4 (0) | 2023.04.19 |
|---|---|
| 아레아코메 2023.4 (0) | 2023.04.19 |
| 호미양양 2023.3 (0) | 2023.03.17 |
| Kelk haus 2023.3 (0) | 2023.03.17 |
| 새솔동 단독주택Ⅰ2022.9 (0) | 2023.02.23 |
