2023. 8. 18. 15:03ㆍ회원작품 | Projects/House
IRIRU

이리루는 두 개의 누마루가 있는 집이라는 뜻으로 건축주가 직접 지은 이름이다. 비록 264제곱미터(80평) 남짓한 소규모 한옥이지만, 다층건물, 복합용도로 고밀도 도시에 적응하는 한옥으로서 현명한 해법을 찾는데 의미 있는 작업이 되었다.
배치와 구성
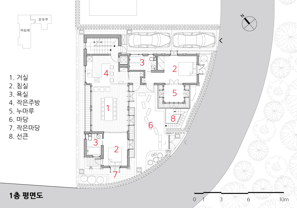
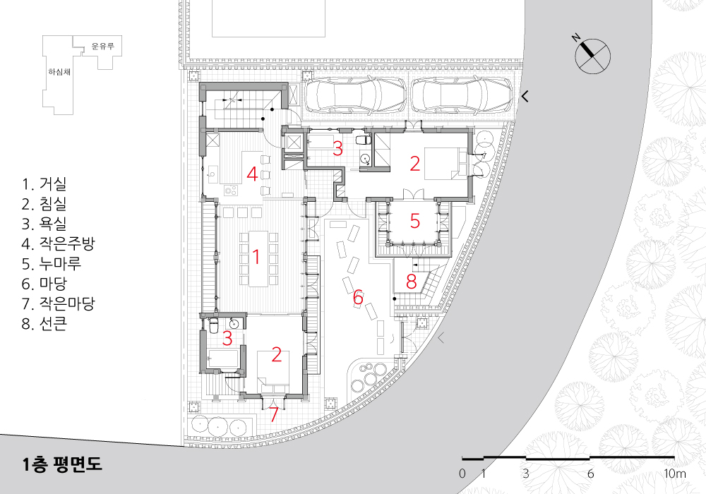
대지는 두 개의 직선과 동그랗게 말린 곡선이 만든 부채꼴 모양이다. 동·서·북 방향으로 세 개의 인접대지와 맞닿아 있고, 남향 습지공원과 경계를 만들면서 전면도로가 지나고 있다. 길 건너에는 사계절마다 옷을 갈아 있는 ‘습지공원’과 동북방향으로는 2층 정도 높이에서 공원 넘어 멀리 ‘북한산’ 전경이 그림처럼 펼쳐진다. 설계 조건은 명확했다. 한 지붕, 작은집 세 채. 지상 1층에 게스트하우스 운영을 위한 두 채 ‘하심채’와 ‘운유루’, 지상 2층에 주인집이 생활할 살림집 한 채 ‘윤이재’. 그리고 지하에 세 채의 집이 공유하며 생활에 필요한 다목적공간인 노닐마루를 넉넉한 크기로 마련하는 것이 설계 과제였다. 이렇게 총 3개 층 다층 한옥에서 각각의 프로그램과 기능이 복합적이고 독립적으로 공존하기 위해서는 합리적인 동선 계획이 중요하다. 이를 위해 북쪽으로 이 집의 규모에 맞게 자주식 연접 주차 2대를 계획했고, 동일한 켜에 퇴칸을 내어 돌음식 계단실을 만들었다. 계단은 층별로 1층 게스트하우스와 2층 주인집, 지하 1층 다목적 공간을 유기적으로 연결하는 수직 이동 공간이며, 동시에 층간 간섭을 받지 않고 각 층별로 접근할 수 있는 출입 공간 역할을 한다. 이와 더불어 ‘덤웨이터' 설비는 3개 층 수직 샤프트를 가지고 지하의 메인 주방, 세탁실, 창고 공간을 기점으로 이 집의 훌륭한 운송수단 역할을 해내고 있다.
두 집과 작은 마당
길의 중간 정도에서 대문을 열고 들어오면 마당이 있다. 이곳에서 하심채와 운유로 그리고 지하공간으로 곧장 접근이 가능하다. 하심채와 운유루는 게스트하우스를 운영 하고자 기획된 공간이라 그 구성은 일반 살림집과는 조금 다르다. 두 집은 마당을 공유 하지만, 각각의 작은 마당을 가진다. 또한 내부는 침실과 화장실 기본 조합으로 크기와 용도에 맞게 필요실 들을 추가로 마련했다. 이는 두 집이 하나의 틀 안에서 공존하지만, 각각의 독립된 공간체계를 만들어주고자 한 의도다. 평면과 더불어 단면 구성은 한옥의 단면과 창호 원리를 적극적으로 응용했다. 마당, 기단, 현관, 식당, 대청(거실), 침실까지 점진적으로 변화하는 바닥의 높이와 들어열개창의 기능적 성격은 공간의 점진적 확장과 개방감을 극대화한다. 운유루의 누마루는 이리루의 첫번째 누각이다. 안으로는 마당의 풍경이, 밖으로는 남쪽 습지공원이 3면의 창에 담기는 가장 극적인 공간이다.
작지만 내실 있는 살림 공간
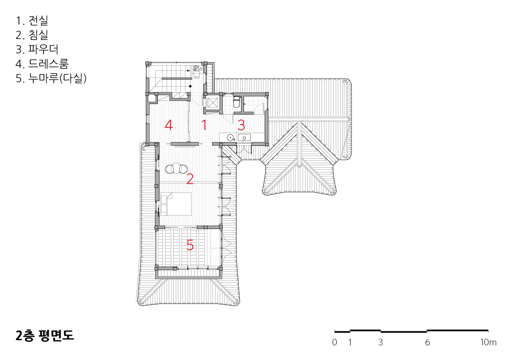
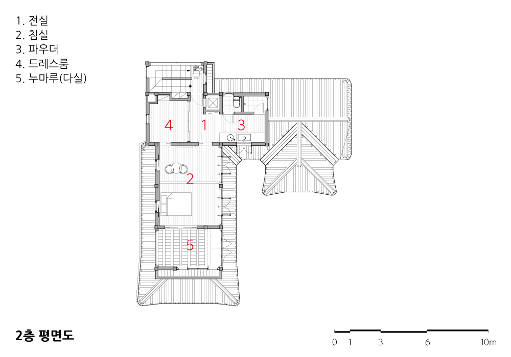
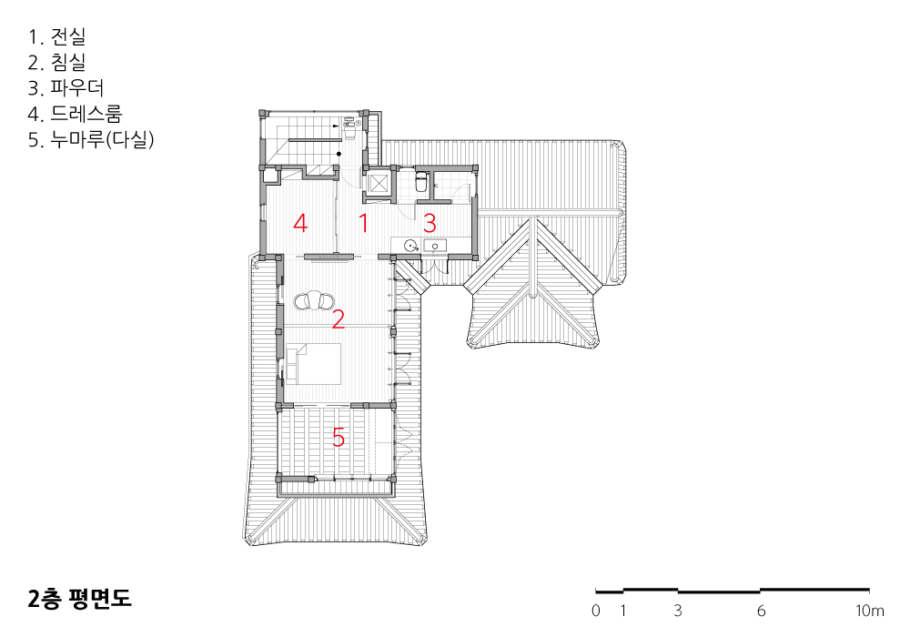
2층 윤이재는 집주인의 거주 공간이다. 두 칸 침실을 중심으로 파우더룸과 욕실, 드레스룸, 차실이 있는 단순한 구조다. 각종 조리와 식사, 세탁, 저장 기능을 지하 1층 노닐마루가 담당하고 있기에 가능한 구조다. 덤웨이터 설비는 윤이재와 노닐마루를 기능적으로 이어주는 매개체로서, 층별로 기능을 분담하는 공간 전략이 가능하게 하는 주요 요소 중 하나다. 특히 퇴칸으로 별도 구획한 계단실을 통해서 1층 하심채와 윤이재에 투숙객이 있을 경우 주차장으로 난 지상층 출입문과 지하층까지 곧바로 접근 가능하다. 윤이재의 공간적 백미는 침실을 지나 있는 이리루의 두 번째 누마루다. 공간의 위계상 이리루의 최고 정점에 있는 공간이다. 누마루의 네짝 창에는 가까이 습지공원과 저 멀리 북한산의 산세가 그림처럼 담긴다.
부족함 없는 다기능 공간
지하층 노닐마루는 지상 1·2층에 있는 3채의 집들을 지원하는 서비스 공간이다. 이리루 연면적의 약 40% 정도를 차지하는 크기다. 접근은 실내 계단과 외부 썬큰으로 난 작은 계단을 통해서 가능하다. 널찍한 현대식 아일랜드 주방과 AV시스템이 갖춰진 노닐마루는 이름 그대로 손님을 맞이하고 요리를 하거나 영화를 보면서 휴식을 취하는 널찍한 유희 공간이다. 노닐마루의 식사공간은 특별하다. 누마루의 단면구조를 이용해 층고를 높게 만들었고, 썬큰 방향으로 전면창을 설치해 개방감을 극대화했다. 이는 날씨 좋은 날에는 따스한 햇살을, 비가 오는 날에는 비를 내려 이곳이 지하 공간임을 잠시 잊게 한다. 세탁실은 살림집과 게스트 하우스에 나오는 작지 않은 양의 세탁물들을 처리할 수 있도록 충분한 크기로 계획했고, 종류별로 분리 보관할 수 있는 크고 작은 창고를 만들었다.



"Iriru" is a name coined by the client, which means a house with two Numa-ru (raised wooden floor verandas). Although it is a relatively small-sized Hanok (traditional Korean house) with an area of about 80 pyeong, it has become a meaningful project as a Hanok that adapts to high-density urban areas with multi-story buildings and mixed-use functions, finding intelligent solutions.
Placement and Composition
The site is shaped like a fan created by two straight lines and a curved line. It is adjacent to three neighboring sites in the east, west, and north directions, and a front road passes through, forming a boundary with a south-facing wetland park. Across the road, there is a wetland park where clothes are changed according to the four seasons, and to the northeast, a panoramic view of "Bukhansan" mountain unfolds from a height of about two floors beyond the park.
The design requirements were clear: one roof and three small houses. On the ground floor, there are two guesthouses, "Hasimchae" and "Unyuru," for guesthouse operations, and on the second floor, there is a main living house, "Yoonijae," for the owners. In addition, a spacious multi-purpose space called "Nodilmalu" is located underground, shared and used by all three houses for their daily needs. In a multi-story Hanok like this with three levels, each program and function must coexist in a complex and independent manner, making a rational circulation plan crucial.
To achieve this, the design incorporated two self-parking spaces tailored to the size of the house on the northern side, and a stone step chamber was created by recessing part of the floor, forming a vertical circulation space that organically connects the first-floor guesthouses, the second-floor main house, and the underground multi-purpose space. This staircase serves as an access point for each floor without interfering with each other.
Furthermore, the "dumbwaiter" system has three vertical shafts, serving as an excellent transportation method for this house, with the main kitchen, laundry room, and storage space in the basement as the main hub.
Two Houses and a Small Yard
At about the midpoint of the road, there is a gate that opens into the courtyard. From this point, direct access is possible to "Hasimchae," "Unyuru," and the underground space. "Hasimchae" and "Unyuru" are spaces planned for operating guesthouses, so their layout differs slightly from a regular living space. While both houses share the courtyard, each has its own small courtyard. Moreover, the interior is designed with a basic combination of bedrooms and bathrooms, with additional utility rooms arranged according to size and purpose. This intention is to allow the two houses to coexist within one framework while maintaining independent spatial systems.
Along with the floor plan, the sectional composition extensively applies the principles of a traditional Hanok's section and window design. Gradual changes in the floor height from the courtyard, steps, entrance, dining area, main living room, to bedrooms, along with the functional nature of the openable windows, maximize the spatial expansion and openness. The Numa-ru (wooden floor veranda) of "Unyuru" serves as the first Nugaek (veranda) of "Iriru." Inside, it offers a dramatic space where the landscape of the courtyard is captured, and outside, it provides the most dramatic view with the southern wetland park framed by windows on three sides.
Small but Substantial Living Space
The second floor, "Yoonijae," is the residence of the homeowner. It features a simple layout centered around two bedrooms, with a powder room, bathroom, dressing room, and tea room. Since various cooking, dining, laundry, and storage functions are handled by the underground first-floor "Nodilmalu," this structure is made possible.
The "dumbwaiter" system acts as a functional intermediary that connects "Yoonijae" and "Nodilmalu," enabling a spatial strategy that allocates functions to different levels. The separate stone step chamber created by the recessed floor, specifically for the staircase, allows direct access to the ground floor entrance and the basement level from the parking area when there are guests staying in "Hasimchae" and "Yoonijae."
The spatial highlight of "Yoonijae" is the second Numa-ru (wooden floor veranda) of "Iriru," accessed through the bedrooms. Positioned at the pinnacle of spatial hierarchy in "Iriru," it offers a breathtaking view. The four-sided windows of the Numa-ru frame the nearby wetland park and distant Bukhansan mountain, creating a picturesque scene like a painting.
Multifunctional Space with No Scarcity
The underground "Nodilmalu" serves as a service area supporting the three houses on the ground and second floors, occupying approximately 40% of the total floor area of "Iriru." Access is possible through an indoor staircase and a small external sunken staircase. This spacious area is equipped with a modern-style island kitchen and AV system, making it a generous recreational space where guests can be welcomed, cook, and relax while watching movies. The dining area in "Nodilmalu" is especially noteworthy. By utilizing the sectional structure of the Numa-ru, the ceiling height was increased, and large front windows were installed in the sunken direction to maximize openness. This allows the space to be flooded with warm sunlight on sunny days and gives the illusion of forgetting that it is an underground space on rainy days.
The laundry room is planned to be sufficiently large to handle a significant amount of laundry from the main house and guesthouses, and it includes larger and smaller storage rooms for separate storage of various items.





| 이리루 설계자 | 양정원 _ (주)건축사사무소 오브 건축주 | 이윤정 감리자 | 양정원 _ (주)건축사사무소 오브 시공사 | 김호준 _ (주)현영종합건설 대지위치 | 서울특별시 은평구 연서로50길 11-44 주요용도 | 단독주택 대지면적 | 229.00㎡ 건축면적 | 98.14㎡ 연면적 | 281.47㎡ 건폐율 | 42.78% 용적률 | 72.14% 규모 | B1F - 2F 구조 | 한식목구조 + 철근콘크리트구조 외부마감재 | 목재, 스터코플렉스, 한식기와 내부마감재 | 한식벽지 설계기간 | 2018. 05 – 2018. 12 공사기간 | 2019. 02 – 2021. 08 사진 | 박영채, 박기훈 _ 아크팩토리 구조분야 | (주)이든구조컨설턴트 기계설비분야 | (주)이래엠이씨 전기분야 | 삼설엔지니어링 |
IRIRU Architect | Yang, Jeongwon _ AUBE architects Client | Lee, Yunjeong Supervisor | Yang, Jeongwon _ AUBE architects Construction | HYEONTYEONG Location | 11-44, Yeonseo-ro 50-gil, Eunpyeong-gu, Seoul, Korea Program | Detached house Site area | 229.00㎡ Building area | 98.14㎡ Gross floor area | 281.47㎡ Building to land ratio | 42.78% Floor area ratio | 72.14% Building scope | B1F - 2F Structure | Korean timber structure + RC Exterior finishing | Wood, Stucoflex Interior finishing | Korean wall paper Design period | 2018. 05 – 2018. 12 Construction period | 2019. 02 – 2021. 08 Photograph | Park, Youngchae / Park, Kihun Structural engineer | Eden Structural Engineering Group Mechanical engineer | Erae MEC Electrical engineer | Samsul Engineering |
'회원작품 | Projects > House' 카테고리의 다른 글
| 영월 네모난 집 2023.8 (0) | 2023.08.18 |
|---|---|
| 고덕동 상가주택ⅠTimeless 2023.8 (0) | 2023.08.18 |
| 플라잉하우스 2023.7 (0) | 2023.07.24 |
| 연연재 2023.7 (0) | 2023.07.24 |
| 우록리 주택 2023.6 (0) | 2023.06.23 |
