2023. 9. 14. 19:16ㆍ회원작품 | Projects/House
Yu Yeon Jae

여유로움과 부드러움이 머무는 집
한 부부가 귀여운 유치원생 아들과 함께 찾아왔다. 아이를 갖기 전 주로 양평에서 데이트를 했고, 양평의 매력에 반해 서울에서 이사 와 주택 생활을 했다. 아이를 키우면서 친구들을 사귀고 육아정보를 나누다 보니 주택을 짓고 아이들을 함께 돌보는, 비슷한 관심사를 공유하는 사람들이 직접 만든 주택단지와 연이 닿았다고 한다. 첫 주택 생활의 아쉬웠던 점들을 보완하고 곧 초등학생이 되는 아들과 부부의 라이프스타일에 맞는 집을 원했고, 무엇보다 답답하지 않으면서 건강한, 합리적인 집을 짓고자 했다.
대지는 용문산과 남한강 사이에 자리해 남동향으로 경사가 흐르는 주택단지의 가운데에 위치해 있었고 집터에서 남향으로 마을의 풍경을 볼 수 있었다. 주택단지가 세심하게 기획된 마스터플랜에 의한 결과물이었는데, 한편으로 마을의 모든 이웃집들이 같은 외장 마감재를 사용하여 일관된 톤 앤 매너를 만들고 있기에 집의 외향에 우선해 집중하기보다 내부의 공간구성과 필요한 기능 고려에 충실하게 설계하고자 했다. 공간의 합리적 디자인이 형태에도 자연히 영향을 주어 결과적으로는 마을의 풍경에 약간의 유연한 표정을 더할 수 있는 집이 되길 바랐다.
‘유연재(裕軟齋)’는 여유로움과 부드러움이 머무는 집이라는 뜻이다. 1층은 가족의 라이프스타일을 고려해 식탁을 중심으로 구성했다. 식탁 앞으로는 넓은 창을 통해 남측마당이 보이고, 뒤로는 아일랜드 주방이 배치되어 있으며 조리공간은 안쪽에 숨어 있다. 식탁 공간이 여유롭고 개방적인 볼륨을 갖도록 2층에서 오프닝을 유지해 집 전체와 소통할 수 있도록 했다. 깔끔하면서도 아늑한 느낌을 주도록 아일랜드와 벽면 일부를 오크 톤으로 마감했다.
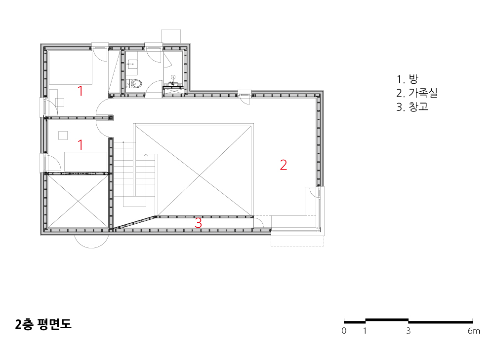
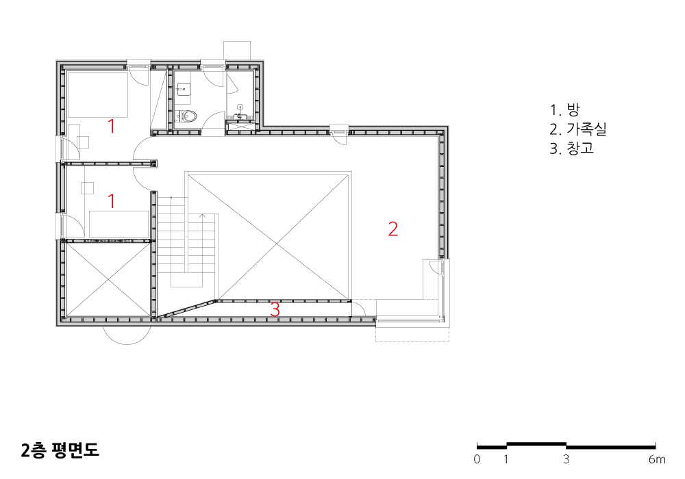
아이방 역시 1층의 남측 영역에 배치해 마당과 채광을 잘 누릴 수 있도록 했다. 아지트로 쓸 수 있는 자작나무 평상과 벙커 스페이스를 만들어 기억이 아이에게 오래 남는 장소가 되길 바랐다. 2층은 마을 풍경을 즐길 수 있는 남측에 가족실을 두고, 부부의 침실은 프라이버시와 숙면을 고려해 각각 안쪽에 두었다.
유연재의 지붕은 과하지 않은 볼륨을 유지하기 위해 박스의 한쪽을 눌러 만들어진 유형에서 착안했는데, 두 방향의 경사지붕이 만나고 지붕골도 경사져 내려온다. 경사진 지붕골은 매입 물받이를 설치해 적극적으로 빗물을 유도하도록 설계했는데, 지붕의 구성에서 통기층 각재 위에 추가로 각재를 엇갈려서 원활한 통기와 물받이의 깊이를 확보할 수 있도록 했다. 물받이의 끝은 외벽에서 돌출되도록 하여 우수량이 많더라도 건물의 외벽이 간섭받지 않도록 했다. 남쪽 마당에 놓인 툇마루 공간은 비를 맞지 않고 즐길 수 있도록 안쪽으로 들어와 있고, 마찬가지로 현관문 앞 우산을 접고 문을 여는 작은 공간도 들어와 있다. 남측 창에 설치된 알루미늄 차양은 한여름 일사량을 조절하기 위한 건축 장치인데, 아이방과 가족실의 존재를 드러내는 디자인 요소이기도 하다.
유연재는 패시브 주택 인증 과정에 포함된 설계 컨설팅을 받으며 딱 필요한 만큼의 성능을 구현하도록 패시브 건축 요소를 적용 검토하고 투자했다. 협회에 인증받은 패시브 주택 전문 시공사는 설계 시 검토된 자재를 정해진 시공방식에 준하여 시공했고, 다소 생소한 디자인의 집을 완성하기 위해 협력해 주었다. 지난 2월 착공한 유연재는 8월에 무사히 공사를 마치고 이 주택단지의 첫 번째 패시브 인증 주택이 되었다. 좋은 이웃과 함께 오랫동안 이름처럼 여유로움과 부드러움이 늘 머무는 집이 되길 소망한다.




A Home of Leisure and Gentleness
A couple arrived with their adorable kindergarten-aged son. Prior to having a child, they used to frequent Yangpyeong for dates and fell in love with its charm. They eventually moved from Seoul to a house in Yangpyeong to enjoy a more tranquil lifestyle. While raising their child, they made friends and shared parenting information, leading them to discover a housing complex built by individuals who shared similar interests and built houses together, with a focus on raising children. Wanting a home that would complement their lifestyle as a couple with a soon-to-be elementary school student and aiming for a house that was not only practical but also spacious and healthy, they set out to build their ideal home.
The site was located between Yongmun Mountain and the Namhan River, with a gentle slope facing the southeast in the middle of the housing complex. The house provided a view of the village landscape from its southern facing side. While the housing complex adhered to a carefully planned masterplan, where all neighboring houses utilized the same external finish to maintain a consistent tone and character, the couple chose to prioritize the interior space layout and required functions over the outward appearance. The rational design of the spaces naturally influenced the overall form of the house, aiming to create a residence that could add a touch of flexibility to the village's landscape.
The name "Yu Yeon Jae" translates to "a home where leisure and gentleness reside." The first floor was designed with the family's lifestyle in mind, centered around a dining table. Large windows facing the south courtyard were positioned in front of the dining table, and behind it, an island kitchen was placed with the cooking area tucked away on the inside. To maintain a spacious and open volume in the dining area, the second floor was designed with openings that allowed communication with the entire house. The island and portions of the wall were finished in oak tones to provide a clean yet cozy ambiance.
The child's room was also situated on the southern side of the first floor to receive ample daylight and courtyard views. A custom-made wooden platform and a bunk space were incorporated, creating a memorable place where memories could be made. On the second floor, a family room was placed on the southern side to enjoy the village landscape. The couple's bedroom, designed for privacy and rest, was located on the inner side of the second floor.
The roof of "Yu Yeon Jae" was inspired by a type of box design that involved pressing one side to maintain a modest volume. The intersection of two sloping roofs created an angular roof ridge that was designed to encourage rainwater drainage through the installation of rainwater collectors. The roof's construction featured additional rafters crisscrossed over the ventilation layer to secure efficient ventilation and deeper rainwater collection. The edge of the rainwater collector extended outward from the exterior wall to prevent interference even with a substantial amount of rainwater. A covered space on the southern courtyard provided a sheltered area for enjoyment regardless of rain, and a small space was designed near the entrance for folding umbrellas and entering the house. Aluminum shades on the south facing windows not only controlled summer sunlight but also served as a design element revealing the presence of the child's room and family room.
During the process of designing "Yu Yeon Jae" the couple received consulting for Passive House certification to implement passive architectural elements that would provide just the necessary performance. A Passive House certified construction company approved by the association executed the design and chosen materials according to the prescribed construction methods. They collaborated to complete the unique design of the house. Construction of "Yu Yeon Jae" began in February and was completed successfully in August, making it the first Passive House-certified residence in the housing complex. The couple hopes for their home to be a place of tranquility and gentleness, just as its name suggests, where they can reside peacefully with good neighbors for years to come.







| 유연재 裕軟齋 설계자 | 박경미 · 장정우 _ 건축사사무소 사무소아홉칸 건축주 | 이종환 시공사 | 빌드앤픽스 설계의도 구현 | 건축사사무소 사무소아홉칸 대지위치 | 경기도 양평군 공흥리 주요용도 | 단독주택 대지면적 | 271.00㎡ 건축면적 | 94.63㎡ 연면적 | 142.82㎡ 건폐율 | 34.92% 용적률 | 52.70% 규모 | 2F 구조 | 경량목구조 외부마감재 | 벽돌타일, 컬러강판 (외벽_우성벽돌타일 슬림그레이, T0.5컬러강판 / 지붕_T0.5컬러강판 돌출이음) 내부마감재 | 석고보드 위 수성페인트, 원목마루, 타일 (벽_벤자민무어 친환경 도장, 에덴바이오 벽지, 템바보드(오크) / 바닥_노바강마루 블랑오크) 설계기간 | 2021. 07 – 2022. 01 공사기간 | 2022. 02 – 2022. 08 사진 | 노경 구조분야 | (주)인터이앤씨 기계설비분야 | (주)건창기술단 전기/통신분야 | (주)성진티이씨 인증 | 한국패시브협회 인증주택 (4.0L/㎡a) |
Yu Yeon Jae Architect | Park, Kyoungmi · Jang, Jeongwoo _ Architects office9kahn Client | Lee, JongHwan Construction | Build & Fix Design intention realization | Architects office9kahn Location | Gongheung-ri, Yangpyeong-gun, Gyeonggi-do, Korea Program | Single Family House Site area | 271.00㎡ Building area | 94.63㎡ Gross floor area | 142.82㎡ Building to land ratio | 34.92% Floor area ratio | 52.70% Building scope | 2F Structure | Light weight wood frame Exterior finishing | Brick tile, Pre-coated metal Interior finishing | Gypsumboard, Vinyl paint finish, Wood flooring, Tile Design period | Jul. 2021 - Jan. 2022 Construction period | Feb. 2022 - Aug. 2022 Photograph | Roh, Kyung Structural engineer | Inter ENC Mechanical engineer | Geonchang ENC Electrical engineer | Sungjin TEC Certification | Passive House certification (4.0L/㎡a) by Passive House Institute Korea |
'회원작품 | Projects > House' 카테고리의 다른 글
| 담빛95 2023.10 (0) | 2023.10.31 |
|---|---|
| 미술관을 닮은 집 2023.9 (0) | 2023.09.15 |
| 숲속의 하얀집 2023.9 (0) | 2023.09.14 |
| 하갈동 ‘코트야드 블루’ 주택단지 2023.9 (0) | 2023.09.14 |
| 다온 2023.8 (0) | 2023.08.18 |
