2023. 8. 18. 17:01ㆍ회원작품 | Projects/House
COMING GOODS

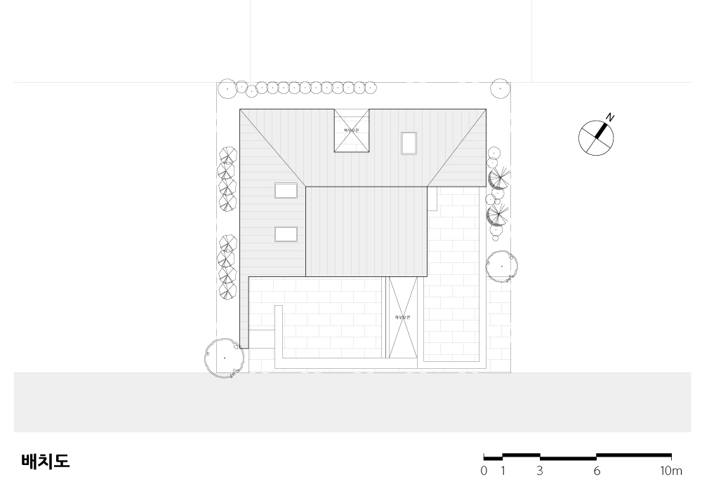
‘다온’은 북위례 단독주택 택지지구의 단독주택이며 2세대로 구성되어 있다. 도심 내의 공급지이기에 프라이버시 확보와 각 가구의 개별성을 고려한 분리가 가장 중요한 이슈였다. 이 집은 인간의 본성과 깊게 연결되며 개인의 사유와 심상을 생성하고 확장시킨다. 단순한 집, 그 너머의 이야기를 하고자 했다.
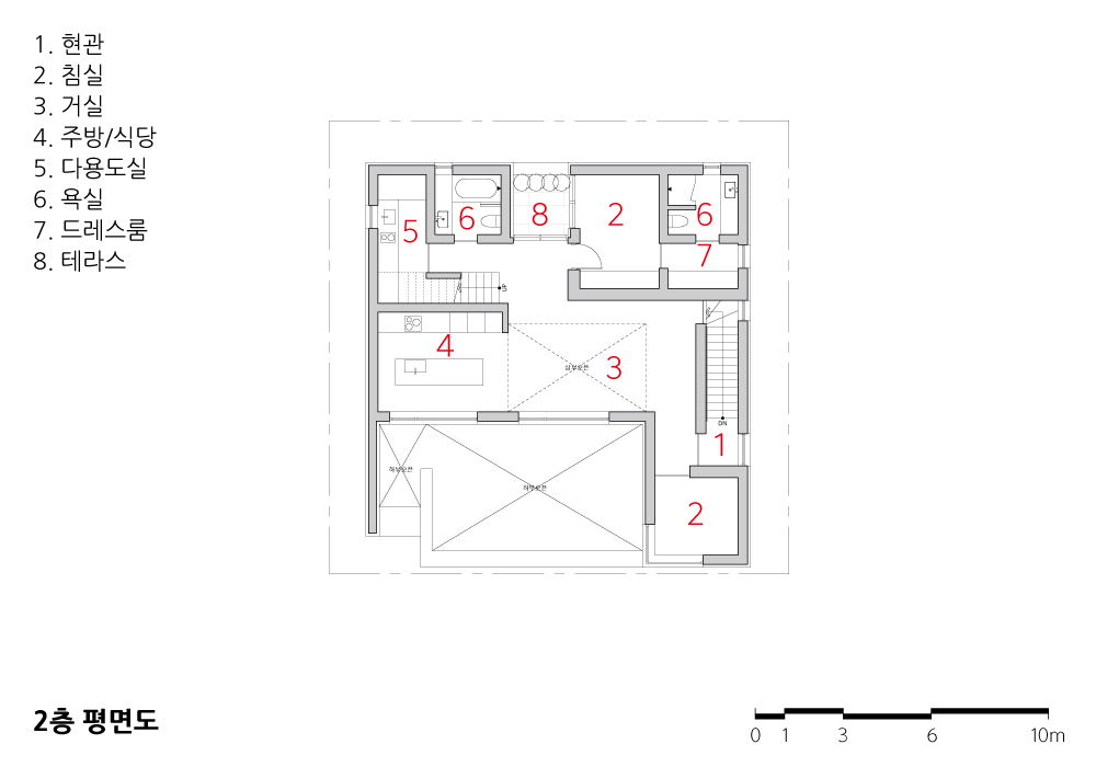
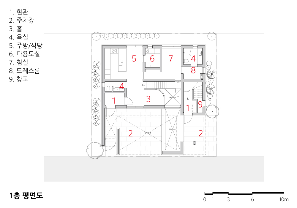
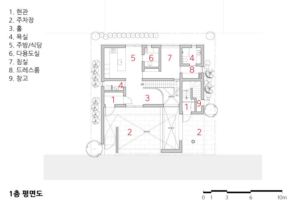
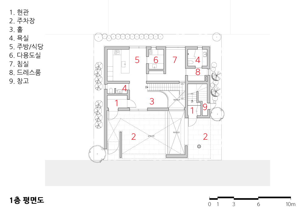
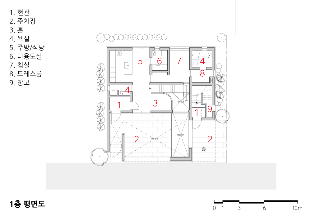
독립된 진입 _ 각 세대는 전면의 좌우 양측 단부로 설정하여 독립적 공간으로 진입하게 했다. 특히 2층 세대는 ‘루’ 하부를 진입의 여정에 보여줌으로써 감성적 분위기를 유도했다.
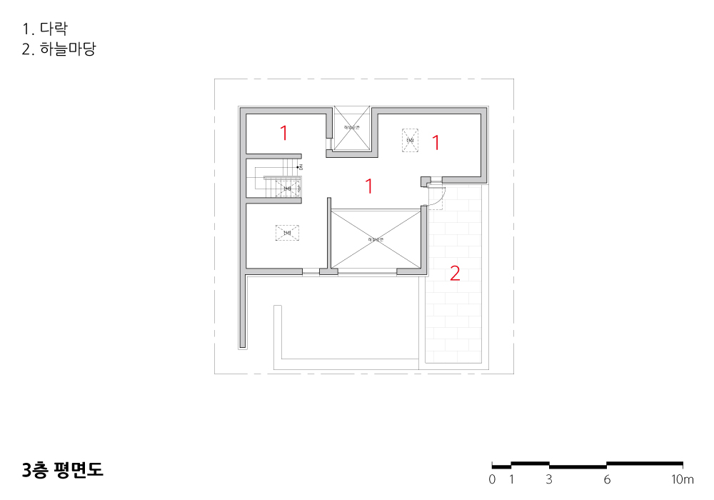
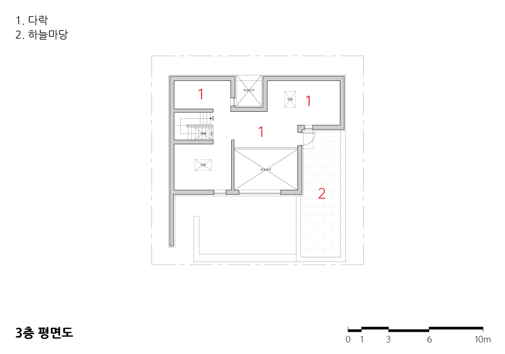
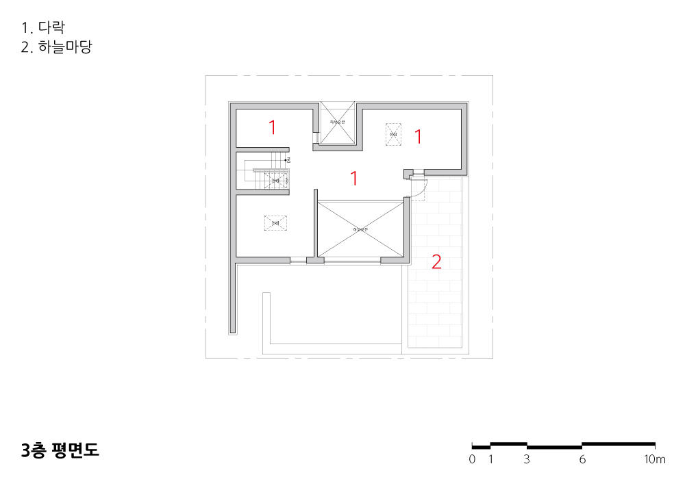
시선의 확장 _ 각 층은 수평적으로 공간을 확장하며, 가벽이라는 장치를 통해 시선의 한계를 제어했다. 그 결과 지하는 선큰, 1층은 외부마당, 2층은 사이중정, 다락은 루프테라스로 도출되었다.
수직동선의 변이 _ 공간의 협소함을 해결하기 위해 곡선의 공간을 따라 흐르듯 지하로 동선을 연계한다. 극적인 표현을 위해 지하와 1층을 오픈하여 수직적인 공간감을 확대하고, 중정 사이로 내려오는 빛을 통하여 깊이감을 극대화했다.
공간에 더한 숨결 _ 지하를 향한 오픈된 수직공간이 안내해 준 곳에는 다시 외부 공간을 관입시켰고, 그 선큰을 둘러싼 세 개의 공간을 내부의 마지막 여정으로 풀어놓았다.
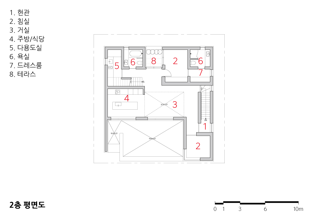
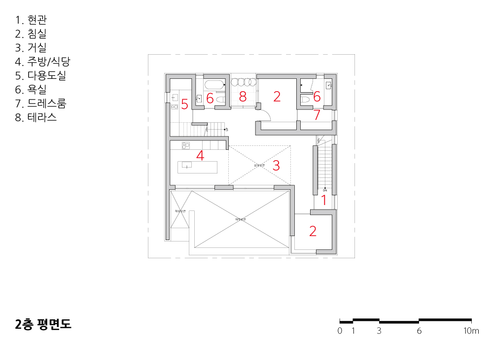
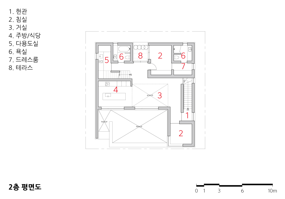
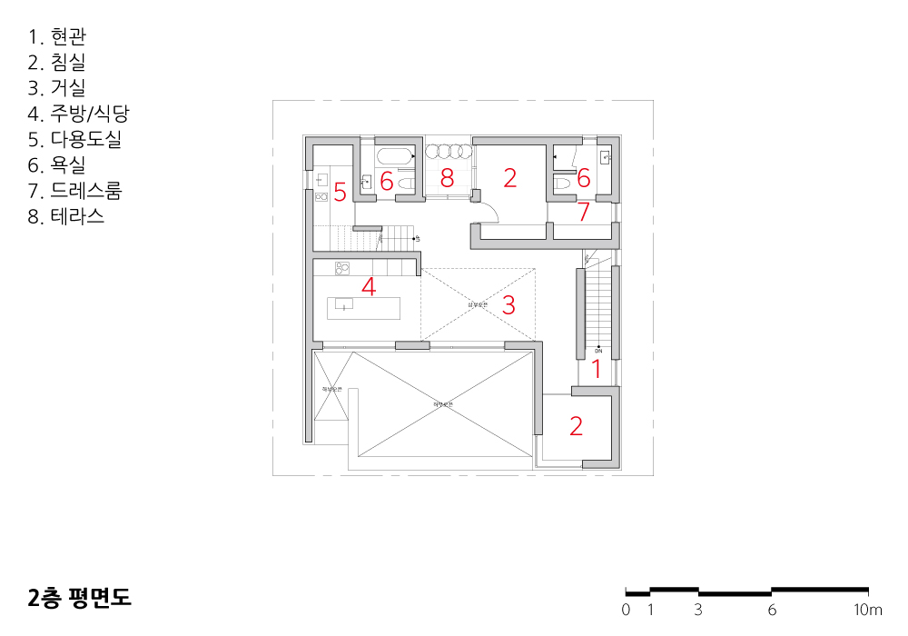
2층 세대는 ‘루’ 하부의 진입으로 현관을 마주하며, 상부에서 내려오는 빛을 따라 수직 동선으로 이어진다. 대지 경계와 평행한 수직 동선은 하나의 켜로 내부공간과 분리된다. ‘ㄱ’자 형태의 내부 공간 속에 다시 ‘숨결’과 같은 작은 외부공간이 스며들듯 존재하게 했다. 대나무를 식재해 북쪽임에도 아스라이 들어오는 빛을 조우하게 하고 바람을 담는다.
두 가구가 살아가는 데 있어 서로의 시선이 교차하지 않는 공간적 아름다움과 함께 빛과 공간이 함께할 건축이 되기를 바랐다.



'Daon' is a detached house located in the Bukwirye Single-Family Housing Zone and is designed as a two-generation home. As it is situated within the urban area, ensuring privacy and individuality for each household was the most critical issue. This house deeply connects with human nature, fostering personal contemplation and imagination. It aims to tell a story beyond just being a simple home.
Independent Entry _ Each household is designed to have independent access from the front sides on both the left and right. Particularly, for the second-floor unit, we emphasized the entrance journey by showcasing the space under the 'Ru' (roof eave), creating an emotional and atmospheric experience.
Extension of Vision _ ach floor is designed to expand the space horizontally, and we controlled the visual boundaries through the use of partitions, creating a sense of continuity. As a result, the basement became a spacious area, the first floor opened up to an external courtyard, the second floor led to an inner courtyard, and the loft was transformed into a roof terrace.
Variation of Vertical Moving Lines _ To address the compactness of the space, we seamlessly connect the circulation through curved spaces in the basement, creating a flowing movement. For a dramatic effect, we opened up the basement and first floor to enhance the vertical sense of space. By allowing light to filter down through the central courtyard, we maximized the sense of depth and added a sense of drama to the design.
Breath added to a Space _ The open vertical space leading towards the basement guided us to introduce external spaces once again. We allowed these spaces to surround the central courtyard, unfolding them as the final journey within the interior.
The second-floor unit faces the entrance through the 'Ru' eave and connects vertically along the path of incoming light from above. A vertical circulation line parallel to the site boundary is separated from the internal space by a single line. Within the 'ㄱ' shaped interior, small external spaces, like breaths, are delicately integrated. Bamboo plantings capture the northern light and embrace the wind.
We aimed for an architectural design where light and space coexist, creating spatial beauty where the two households can live without their views intersecting.








| 다온 설계자 | 정승이 _ 유하우스・유스페이스건축사사무소(주) 건축주 | 디엔디주택건설 감리자 | 정원건축사사무소 시공사 | 스페이스에이앤씨 설계팀 | 정상교, 투르벌드 설계의도 구현 | 유하우스・유스페이스건축사사무소(주) 대지위치 | 서울특별시 송파구 위례북로 3길 30-3 주요용도 | 단독주택 대지면적 | 243.30㎡ 건축면적 | 121.28㎡ 연면적 | 356.93㎡ 건폐율 | 49.84% 용적률 | 83.07% 규모 | B1F - 2F 구조 | 철근콘크리트구조 외부마감재 | STO(외단열시스템), 거창석 버너구이, 칼라징크 내부마감재 | 석고보드 위 수성페인트, 원목마루, 포슬린타일 설계기간 | 2023. 03 - 2022. 08 공사기간 | 2022. 08 - 2023. 03 사진 | 윤현기 구조분야 | 진구조엔지니어링 기계설비분야 | 세원엔지니어링 전기분야 | 세원엔지니어링 소방분야 | 세원엔지니어링 |
COMING GOODS Architect | Chung, Seungyi _ UHUAS・USPACE architects Client | D&D construction Supervisor | JEONGWON architects Construction | SPACE A&C Project team | Jeong, sangkyo / Turbold Design intention realization | U-HUAS・U-SPACE architects Location | 30-3, Wiryebuk-ro 3-gil, Songpa-gu, Seoul, Korea Program | Residence Site area | 243.30㎡ Building area | 121.28㎡ Gross floor area | 356.93㎡ Building to land ratio | 49.84% Floor area ratio | 83.07% Building scope | B1F - 2F Structure | RC Exterior finishing | STO, Granite, Galvanized steel sheet Interior finishing | Water paint finish above gypsum board, Wood floor, Porcelain tile Design period | 2023. 03 - 2022. 08 Construction period | 2022. 08 - 2023. 03 Photograph | Yoon, Hyeongi Structural engineer | Jin engineering Mechanical engineer | Sewon engineering Electrical engineer | Sewon engineering Fire engineer | Sewon engineering |
'회원작품 | Projects > House' 카테고리의 다른 글
| 숲속의 하얀집 2023.9 (0) | 2023.09.14 |
|---|---|
| 하갈동 ‘코트야드 블루’ 주택단지 2023.9 (0) | 2023.09.14 |
| 이태원동 단독주택 2023.8 (0) | 2023.08.18 |
| 영월 네모난 집 2023.8 (0) | 2023.08.18 |
| 고덕동 상가주택ⅠTimeless 2023.8 (0) | 2023.08.18 |
