2024. 7. 31. 10:30ㆍ회원작품 | Projects/House
Red Rock

레드락(Red Rock) : 가족을 위한 성(城)
레드락(Red Rock)은 가족을 위해 설계된 주택으로, 심플하고 단단하며 따뜻한 외형을 가지고 있다. 어수선한 주택들 사이에서 담담하고 묵직한 바위처럼 자리하며, 울타리를 없애고 조경을 보행자에게 개방해 마을 풍경을 변화시키고자 했다.
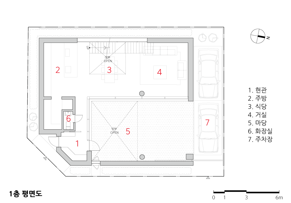
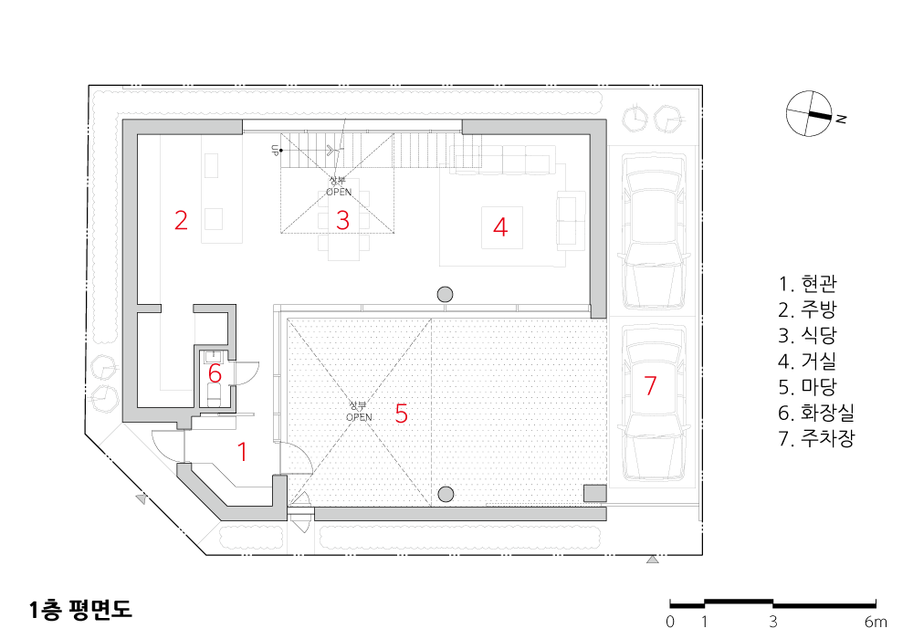
주택의 중심에는 넓은 마당이 있으며, 실내공간은 ‘ㄷ’자 형태로 마당을 둘러싸고 있다. 마당에 면한 커튼월을 통해 자연광이 실내로 들어와 밝고 따뜻한 분위기를 연출한다. 도로와의 경계에는 유리블록을 사용해 소음과 시선을 차단하면서도 빛을 받아들인다.
마당은 놀이, 휴식, 소셜 활동이 이루어지는 다목적 공간이다. 아이들과 놀거나 이웃과 파티를 즐기며 채소를 가꾸는 등 다양한 활동을 통해 소소한 즐거움을 누릴 수 있다. 마당의 일부는 필로티 구조로 되어 있어 비와 눈을 피할 수 있으며, 거실과 마당 사이에는 단차가 없어 전창을 열면 거실, 마당, 주방이 하나의 연속된 공간으로 변한다. 이 모호한 경계의 공간은 좁은 대지에서 공간의 확장을 극대화하며, 가족 구성원 모두가 함께할 수 있는 공간을 만든다.
2층은 가족 구성원의 개별적인 공간으로 설계됐다. 중앙의 계단을 중심으로 자녀의 영역과 부부의 영역이 나뉘어 있으며, 각 침실은 넓은 창을 통해 마당을 향해 열려 있다. 이를 통해 바쁜 생활 속에서도 가족 구성원들이 서로를 바라보며 소통할 수 있다. 각자의 침실에서 각자 다른 곳을 보는 아파트와 다른 구조이다.
다락은 단순한 수납공간을 넘어 다양한 취미를 즐길 수 있는 특별한 공간으로 설계됐다. 천창을 통해 비를 바라보며 음악을 듣거나, 창이 없는 낮은 공간에서 영화를 감상할 수 있다. 구석에 앉아 이야기를 나누거나 베란다에서 하늘을 올려다보며 사색에 잠길 수 있는 공간이기도 하다.
레드락은 가족의 행복한 이야기가 비밀스럽게 채워질 특별한 성이다.



Red Rock: A Castle for a Family
Red Rock is a house designed for a family, featuring a simple, solid, and warm exterior. It stands like a calm and steadfast rock amidst a clutter of houses, with the intention of changing the neighborhood landscape by removing fences and opening the landscaping to pedestrians.
At the heart of the house is a spacious courtyard, with the interior spaces arranged in a U-shape around it. Natural light streams into the house through curtain walls facing the courtyard, creating a bright and warm atmosphere. Glass blocks are used along the boundary with the road, effectively blocking noise and views while still allowing light to pass through.
The courtyard is a versatile space for play, relaxation, and social activities. It offers simple joys such as playing with children, hosting parties with neighbors, and growing vegetables. Part of the courtyard features a piloti structure, providing shelter from rain and snow. With no steps between the living room and the courtyard, opening the full-height windows transforms the living room, courtyard, and kitchen into one continuous space. This ambiguous boundary maximizes the sense of space on the narrow plot, creating an area where all family members can spend time together.
The second floor is designed as individual spaces for family members. Centered around the main staircase, the children’s area and the parents’ area are separated. Each bedroom opens up to the courtyard through large windows, allowing family members to see and communicate with each other even amidst their busy lives.
The attic is designed as a special space for enjoying various hobbies, going beyond simple storage. Through the skylight, you can listen to music while watching the rain, or enjoy a movie in the cozy, windowless area. It’s also a place where you can sit in a corner and chat or gaze up at the sky from the balcony, lost in thought.
Red Rock is a special castle where the happy stories of the family will be secretly filled.









| 레드락 설계자 | 박성기 _ (주)세이브 종합건축사사무소 건축주 | 이경민 감리자 | (주)세이브 종합건축사사무소 시공사 | 건축주 직영 설계팀 | 류근학, 이종민 설계의도 구현 | (주)세이브 종합건축사사무소 대지위치 | 경기도 남양주시 진접읍 해밀예당1로189번길 21-1 주요용도 | 단독주택 대지면적 | 239.90㎡ 건축면적 | 117.88㎡ 연면적 | 194.82㎡ 건폐율 | 49.14% 용적률 | 81.21% 규모 | 2F 구조 | 철근콘크리트구조 외부마감재 | 외벽 _ 큐블럭 SE500(탱고레드), 글래스블럭 지붕 _ 알루미늄시스템판넬 내부마감재 | 바닥 _ 포세린타일, 원목마루 벽 _ 포세린타일, 대리석, 수성페인트, 지정벽지마감 설계기간 | 2020. 10 – 2021. 03 공사기간 | 2021. 04 – 2022. 03 사진 | 이한울 _ 나르실리온 구조분야 | (주)라임 기계설비·전기·소방분야 | (주)선화기술단사무소 |
Red Rock Architect | Park, Sungki_ SAVE Architects Client | Lee, Kyungmin Supervisor | SAVE Architects Construction | Owner direct control Project team | Lyu, Geunhak / Lee, Jongmin Design intention realization | SAVE Architects Location | 21-1, Haemiryedang 1-ro 189beon-gil, Jinjeop-eup, Namyangju-si, Gyeonggi-do, Korea Program | House Site area | 239.90㎡ Building area | 117.88㎡ Gross floor area | 194.82㎡ Building to land ratio | 49.14% Floor area ratio | 81.21% Building scope | 2F Structure | RC Exterior finishing | Q block(Tango red), Glass block / Panel system Interior finishing | Porcelain tile, Ondol floor / Porcelain tile, Marble Design period | Oct. 2020 – Mar. 2021 Construction period | Apr. 2021 – Mar. 2022 Photograph | Lee, Hanul Structural engineer | LAIM Information Technology Co., Ltd Mechanical·Electrical·Fire engineer | SUNHWA Engineering Co., Ltd |
'회원작품 | Projects > House' 카테고리의 다른 글
| 탄탄가 2024.8 (0) | 2024.08.31 |
|---|---|
| 온휴(溫休) 2024.8 (0) | 2024.08.31 |
| ASI 2024.7 (0) | 2024.07.31 |
| ALC 패시브하우스 동락(同樂) 2024.6 (0) | 2024.06.30 |
| 정다운 집 2024.6 (0) | 2024.06.30 |
