2024. 6. 30. 10:35ㆍ회원작품 | Projects/House
ALC Passibe House Dong-nak

2.1리터 패시브하우스의 의미 
가장 추운 날 새벽에 보일러를 30분정도 가동한 후 그 날은 더 이상 보일러가 가동될 일이 없는 주택. 즉 에너지 소요량을 적게 하려는 주택을 뜻한다. 이런 성능을 구현하기 위해 기밀/열교차단은 기본이고 외부전동블라인드, 전열교환기를 설치했다. 그 결과 외부 기온 변화에 쉽게 대응하고 실내공기질이 건전하다. 준공 후 인터뷰한 건축주는 “평소 쾌적한 것은 말할 것 없고, 특히 봄과 가을에는 이보다 더 좋은 주택이 있을까 하는 생각으로 살고 있습니다”라고 말했다. 이런 실내의 쾌적함은 오로지 경험을 통해 이해할 수 있다. 
준공 후 실증(열교·기밀·실내공기질 등)을 통한 금산패시브하우스 성능 확인 
준공 1년 이후 연중 가장 추울 때 열화상카메라 열교테스트 결과 패시브하우스 성능을 유지하고 있었으며, 준공 약 2년 후 추가 블로우 도어 테스트(Blow Door Test)로 기밀성능을 확인했으나 바람 한 점 새는 곳이 없었다. 황사로 언론에서 뉴스화 되던 시기인 2023년 1월 7일 오전 12시간 동안 금산ALC패시브하우스의 실내공기질 수준은 상당히 양호했다. 정량적 결과값으로 표현하면 외부 미세먼지농도(PM10=32~186㎍/㎥, PM2.5=20~169㎍/㎥, PM1.0=19~137㎍/㎥) 대비 거실 미세먼지농도(PM10=8~20㎍/㎥, PM2.5=8~19㎍/㎥, PM1.0=7~18㎍/㎥)는 큰 차이를 보였다. 그 외 온도, 습도, VOCs, CO2, 라돈 등의 결과도 양호했으며 외부 소음 등 눈에 보이지 않지만 재실자에 불쾌감을 주는 요소들 역시 거의 없었다. 
Beyond 패시브하우스 
(WIFI pro, WIFI 2d 등 이용한 이론적 결과 + 실증을 통한 정량적 결과) 
한국적 환경을 고려한 ALC주택의 성능을 명확하게 분석하고 분석체계를 만들려 애썼으며, 지역별·방위별 특징을 고려해 전체 디테일을 분석했다. 나아가 디테일 내부 재료별 접합지점을 지정해 장기적인 마감재의 탈락·동파여부 등 내구성을 검토하거나 곰팡이 발생여부 등 실내위생상태도 사전 검토가 가능하다. 이런 결과를 바탕으로 향후 설계 진행시 도면에 표현되지 않는 청목재만의 노하우가 반영되길 기대했다. 더 나아가 2024년 준공예정인 몇몇 ALC주택을 대상으로 ALC벽체에 센서를 매립 후 실제 벽체가 건조되는 과정을 정량적 결과로 확인할 예정이며, 오로지 태양광이 생산한 전기로만 유지되는 전전화주택(가스, 기름을 사용하지 않는 주택)도 곧 착공될 것이다. 
하이브리드구조(ALC구조+철골구조)  
현대주택의 다양한 요구사항을 만족하기 위해 ALC주택의 구조적 한계를 극복할 필요가 있다. 그래서 보조수단인 최소한의 철골구조가 추가된 ALC하이브리드구조는 필수 요소라 생각하며, ALC와 철골부재 접합부에 대한 검증 역시 완료되었다. 
거주자가 건강해지는 집 
다시 말해 ALC는 사람에게 악영향을 끼치는 VOCs(휘발성유기화합물) 등을 배출하지 않는다. 그래서 준공 전후로 전열교환기를 가동하지 않더라도 새집 냄새가 거의 없다. 이런 장점은 꽤 중요하게 생각할 필요가 있다. 그 외 불에 전소되지 않는 내화구조, 축열 능력, 국내 생산 등 다양한 장점이 있는 ALC주택은 그 성질을 이해하고 설계, 시공한다면 우리나라 단독주택 구조형식의 대안이 될 수 있다고 생각한다. 




2.1L Meaning of Passive House 
A house where the boiler is turned on for about 30 minutes in the early morning on the coldest day, and then the boiler is no longer turned on for the rest of the day. In other words, it refers to a house that seeks to reduce energy consumption. To achieve this performance, airtightness/thermal blocking is basic, and external electric blinds and an electric heat exchanger are installed. As a result, it easily responds to changes in external temperature and ensures healthy indoor air quality. In the words of the owner interviewed after completion, “It goes without saying that it is always comfortable, but especially in spring and fall, I live with the thought that there is a better house than this.” Such indoor comfort can only be understood through experience. 
Verification of Geumsan Passive House performance through verification (thermal bridging, airtightness, indoor air quality, etc.) after completion 
One year after completion, a thermal imaging camera thermal bridge test conducted during the coldest time of the year showed that the passive house performance was maintained. Approximately two years after completion, airtightness was confirmed through an additional blow door test, but there was not a single wind leak. The indoor air quality level at Geumsan ALC Passive House was quite good for 12 hours on the morning of January 7, 2023, when yellow dust was making news in the media. Expressed as a quantitative result, the fine dust concentration in the living room (PM10= 8~20㎍/㎥, PM2.5=8~19㎍/㎥, PM1.0=7~18㎍/㎥) showed a big difference. In addition, the results for temperature, humidity, VOCs, CO2, and radon were good, and there were almost no invisible but unpleasant elements such as external noise that caused discomfort to occupants. 
Beyond Passive House (theoretical results using WIFI pro, WIFI 2d, etc. + quantitative results through demonstration) 
We tried to clearly analyze the performance of ALC housing considering the Korean environment and create an analysis system, and analyzed all details considering the characteristics of each region and direction. Furthermore, by designating the joining point for each detailed internal material, it is possible to review durability, such as whether the long-term finishing material falls off or freezes, or to review the indoor hygiene condition, such as the occurrence of mold, in advance. Based on these results, it was hoped that Cheongmokjae’s know-how, which is not expressed in drawings, would be reflected during future design progress. Furthermore, for several ALC houses scheduled to be completed in 2024, we plan to embed sensors in the ALC walls and confirm the actual wall drying process with quantitative results, and electrified houses (gas, oil, etc.) that are maintained only by electricity produced by solar energy. An unused house) will also begin construction soon. 
Hybrid structure (ALC structure + steel structure) 
In order to meet the diverse requirements of modern housing, it is necessary to overcome the structural limitations of ALC housing. Therefore, the ALC hybrid structure with the addition of a minimum steel structure as an auxiliary means is considered an essential element, and verification of the connection between ALC and steel members has also been completed. 
A home where residents are healthy 
In other words, ALC does not emit VOCs that have a negative effect on people. Therefore, even if the heat exchanger is not operated before or after completion, there is almost no new house smell. These advantages need to be considered quite important. I believe that ALC houses, which have various advantages such as fire-resistant structure, heat storage capacity, and domestic production, can be an alternative to Korea’s single-family home structure if designed and constructed with an understanding of their properties.







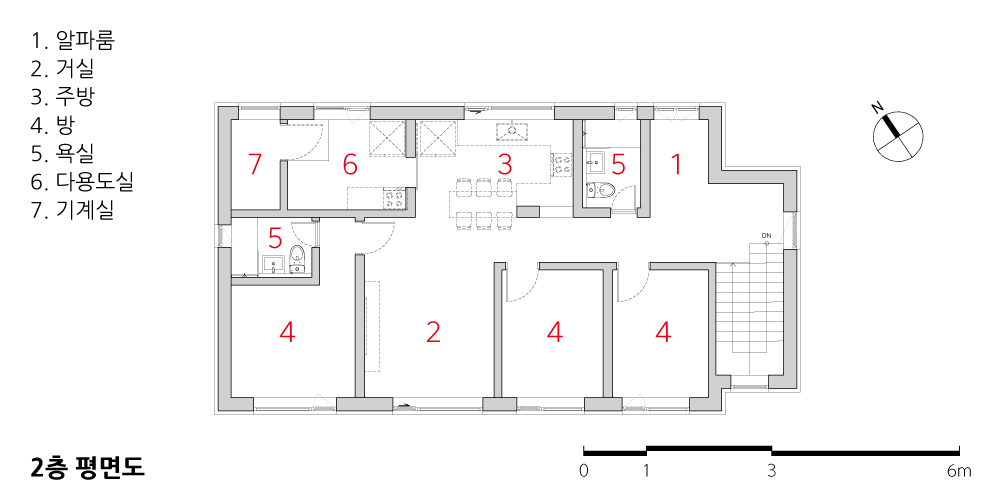
| ALC 패시브하우스 동락(同樂) 설계자 | 서정수 _ 건축사사무소 청목재 건축주 | 비공개 시공사 | THE집 대지위치 | 충청남도 금산군 추부면 주요용도 | 단독주택 대지면적 | 983.00㎡ 건축면적 | 112.04㎡ 연면적 | 198.64㎡ 건폐율 | 11.40% 용적률 | 20.21% 규모 | 2F 구조 | ALC조적구조 외부마감재 | STO 내부마감재 | 아우로 천연페인트 설계기간 | 2021. 01 - 2021. 04 공사기간 | 2021. 08 - 2021. 11 사진 | 석정민 구조분야 | 조우엔지니어링 습열분석 컨설팅 | 소울텍처  | 
ALC Passibe House Dong-nak Architect | Seo, Jeong-Soo _ Chung Mog Jae Architects Client | Private Supervisor | Seo, Jeong-Soo _ Chung Mog Jae Architects Construction | The Zip Location | Chubu-myeon, Geumsan-gun, Chungcheongnam-do, Korea Program | Single house Site area | 983.00㎡ Building area | 112.04㎡ Gross floor area | 198.64㎡ Building to land ratio | 11.40% Floor area ratio | 20.21% Building scope | 2F Structure | ALC(Autoclaved Lightweight Concrete) masonry structure Exterior finishing | STO Interior finishing | Auro paint Design period | 2021. 01 - 2021. 04 Construction period | 2021. 08 - 2021. 11 Photograph | Seok, Jeong-Min Structural engineer | JOWOO Structual Eng. Hygrothermal engineer | Soultecture  | 
'회원작품 | Projects > House' 카테고리의 다른 글
| 레드락 2024.7 (0) | 2024.07.31 | 
|---|---|
| ASI 2024.7 (0) | 2024.07.31 | 
| 정다운 집 2024.6 (0) | 2024.06.30 | 
| 월락동 여러 집 2024.6 (0) | 2024.06.30 | 
| 오 마이 북 2024.5 (0) | 2024.05.31 | 
