2024. 9. 30. 10:20ㆍ회원작품 | Projects/House
Ihyunjae

대지를 처음 방문한 때는 2022년 봄과 여름의 사이였다. 대지를 방문하며 경험한 두 번의 인상적인 풍경은 양양고속도로를 타고 톨게이트를 나와 마주하는 웅장한 설악산의 모습, 그리고 대지에 도착하여 보이는 설악산과 울산바위의 풍경이었다. 대지는 설악산의 근사한 경치와 울산바위의 강력한 조망을 가지고 있었다. 대지에서 이를 바라보며 첫 번째로 떠오른 생각은 울산바위의 풍경을 건물 안으로 담는 것이었다.
건축주는 주말주택으로 이용하면서, 추후 서울에서의 삶을 정리한 뒤 노후를 보낼 곳을 찾고 있었다. 그러던 중 이 경치에 반해 대지를 결정했고, 이에 따라 대지가 갖고 있는 울산바위 조망을 최우선으로 요구했다. 또한 전원생활에 따른 외부로부터의 안전, 프라이버시를 필요로 했다.
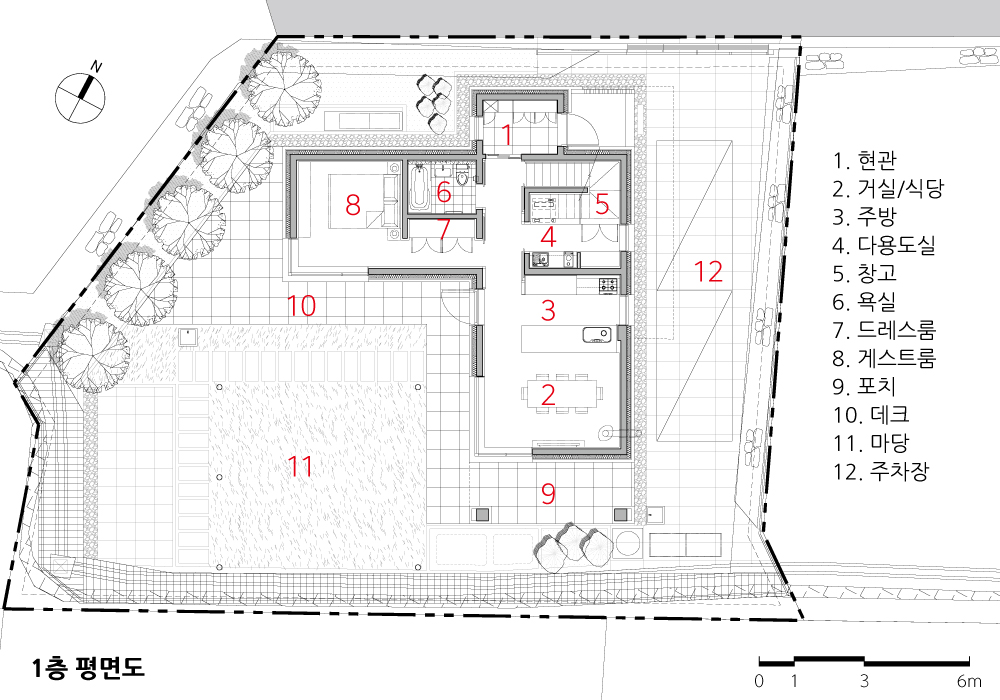
대지는 주택용지로 개발된 마을 안의 필지로 동·서측의 인접대지와 1.5미터 레벨로 구분돼 있었고, 남쪽 인접대지는 3미터 정도 낮아 막힘없이 열린 조망을 가지고 있었다. 북쪽 도로에서 진입해 주차하고 집으로 진입하는 과정을 생각하며 배치를 고민했다. 조망과 프라이버시. 이 상반된 요구사항에 대응하기 위해 대지의 조망, 프라이버시, 진입 동선 등을 고려해 ‘ㄴ’자 형태로 북측 도로에는 건물로 마주하고 남서쪽의 설악산 조망을 향해 열리는 배치로 마당을 안으며 자리 잡았다.
설계를 진행하며, 서울에서의 복잡한 일상을 뒤로하고 도착한 전원 속의 집에서 자연과 어떻게 관계를 맺어야 하는가가 주요한 고민이었다. 대지에서 경험할 수 있는 자연과의 접점을 위해 주요한 곳마다 창을 설치하고 코너창을 통해 조망을 극대화했다. 밝은 빛이 맞이하는 현관에 진입해 거실에 들어서면 마당과 설악산의 원경이 펼쳐진다. 거실 겸 식당, 주방, 다용도실 등 공용공간을 1층에 두고 마당과 면한 부분에는 포치와 데크가 있어 자연을 느낄 수 있는 외부 활동을 적극적으로 지원한다.
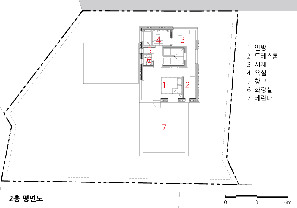
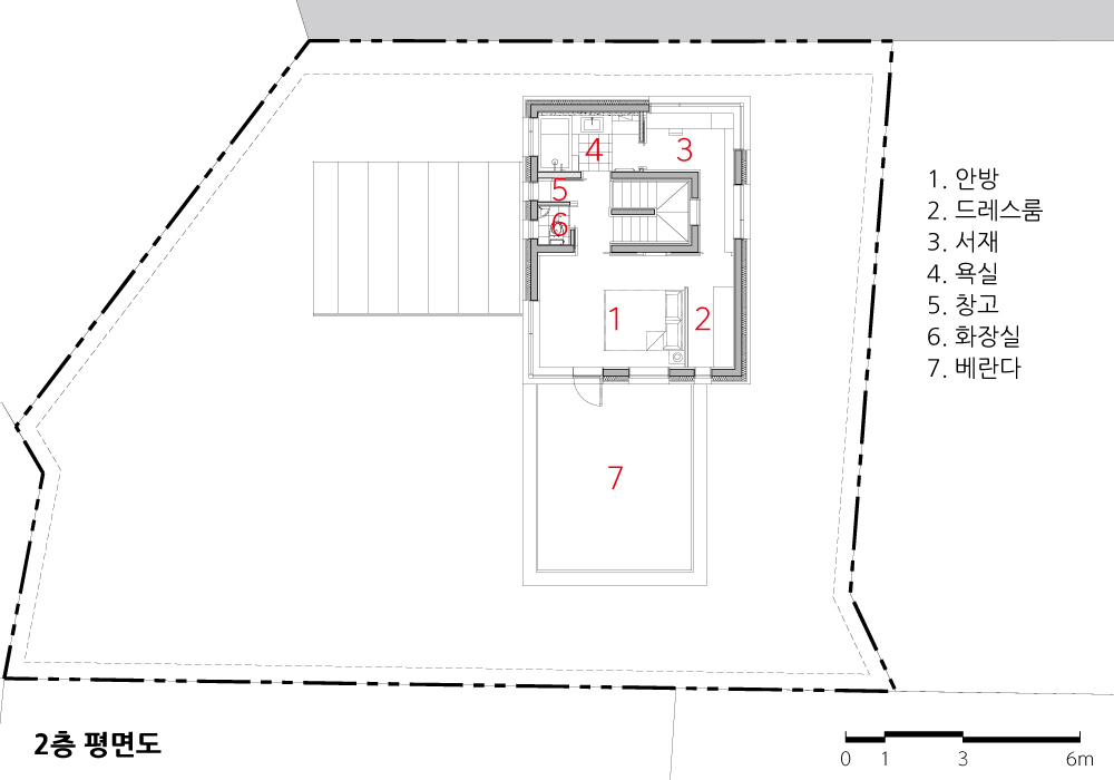
2층은 안방과 서재, 욕실을 배치했고, 계단을 중심으로 각 공간이 연결되어 있다. 이에 따라 각 공간들을 순환할 수 있도록 하여 동선의 효율과 공간의 연속성을 경험하도록 계획했다. 또한 공간을 이동하며 보이는 곳에 적절히 창을 배치해 동선 상에서 자연을 느끼고 시선의 끝에서 내부 공간이 외부로 확장될 수 있도록 의도했다. 서재에서는 마을의 전경과 멀리 바다까지 바라볼 수 있게 하고, 안방에서는 옥상테라스를 이용해 1층에서 보는 조망과는 다른 자연으로 둘러싸인 파노라마 뷰를 선사한다.
장성한 두 자녀의 돌림자를 써서 건축주가 직접 정한 집의 이름인 ‘이현재(二賢齋)’가, 설악산의 조망과 시시각각 변화하는 자연의 아름다움을 다양한 공간에서 즐기며 복잡한 일상을 떠나 자연과 함께하는 여유로운 삶의 장소가 되길 기대한다.



The initial visit to the site occurred between the spring and summer of 2022. Two impressive landscapes left a strong impression during this visit: the majestic view of Seoraksan Mountain upon exiting the tollgate on the Yangyang Expressway, and the breathtaking scenery of Seoraksan and Ulsanbawi Rock upon reaching the site. The site boasted a magnificent view of Seoraksan and a powerful outlook towards Ulsanbawi Rock. The first thought that came to mind when observing this was to capture the view of Ulsanbawi Rock within the building.
The client, in search of a weekend home that would eventually serve as a retirement residence after settling their life in Seoul, was captivated by this landscape, leading to the decision to purchase the land. Consequently, the top priority was to ensure an unobstructed view of Ulsanbawi Rock. Additionally, the client emphasized the need for safety and privacy, typical of country living.
The site, located within a residentially developed village, is separated from adjacent plots by a 1.5-meter level difference on the east and west sides, while the southern adjacent plot is about 3 meters lower, offering an uninterrupted view. Considering the entry sequence from the northern road—parking and then entering the house—the design was carefully planned. To address the conflicting requirements of view and privacy, the layout took into account the site’s views, privacy needs, and access paths. The house was designed in an “L” shape, with the building facing the northern road and opening towards the southwest, embracing the yard while directing the view towards Seoraksan.
As the design process unfolded, a key concern was how to connect with nature in a countryside home that serves as a retreat from the complex daily life in Seoul. To maximize the experience of nature available from the site, windows were strategically placed in key areas, with corner windows used to enhance the views. Upon entering the bright, welcoming entrance and stepping into the living room, one is greeted by a panoramic view of the yard and the distant Seoraksan. The common areas, including the living room, dining room, kitchen, and utility room, are located on the first floor. A porch and deck facing the yard facilitate outdoor activities that allow the residents to fully engage with nature.
The second floor houses the master bedroom, study, and bathroom, with the spaces connected by a central staircase. This layout enables a circular flow through the spaces, promoting efficiency and a sense of continuity. As one moves through the spaces, windows are thoughtfully placed to bring in nature, with the internal space extending towards the outside at the ends of sightlines. The study offers views over the village and out to the distant sea, while the master bedroom, through the rooftop terrace, provides a different panoramic view surrounded by nature, distinct from that seen on the first floor.
The house, named “Ihyeonjae” (二賢齋) by the client using the generational character of his two grown children, is expected to be a place where one can enjoy the view of Seoraksan and the ever-changing beauty of nature from various spaces. It promises to be a serene retreat where one can leave behind the complexities of daily life and live in harmony with nature.









| 이현재(二賢齋) 설계자 | 장경환 _ 건축사사무소 단단 건축주 | 홍승수, 권순라 시공사 | 니즈하우스 대지위치 | 강원특별자치도 고성군 토성면 신평리 주요용도 | 단독주택 대지면적 | 437.60㎡ 건축면적 | 100.55㎡ 연면적 | 138.24㎡ 건폐율 | 22.98% 용적률 | 31.59% 규모 | 2F 구조 | 철근콘크리트구조 외부마감재 | 치장벽돌 내부마감재 | 도장, 원목마루 설계기간 | 2022. 07 - 2023. 07 공사기간 | 2023. 10 - 2024. 05 사진 | 최진보 구조분야 | 한경이앤씨 기계설비분야 | 성일이앤씨 전기분야 | 나라기술단 소방분야 | 성일이앤씨 |
BAEKUNJE Architect | Jang, Kyunghwan _ DANDAN Architects Client | Hong, Seungsoo / Kwon, Soonra Construction | Needs House Location | Sinpyeong-li, Toseong-myeon, Goseong-gun, Gangwon-do, Korea Program | Single House Site area | 437.60㎡ Building area | 100.55㎡ Gross floor area | 138.24㎡ Building to land ratio | 22.98% Floor area ratio | 31.59% Building scope | 2F Structure | RC Exterior finishing | Brick Interior finishing | Paint, Wood Floor Design period | Jul. 2022 - Jul. 2023 Construction period | Oct. 2023 - May 2024 Photograph | Choi, Jinbo Structural engineer | HK ENC Mechanical engineer | Sungil ENC Electrical engineer | Nara Engineering Consultant Fire engineer | Sungil ENC |
'회원작품 | Projects > House' 카테고리의 다른 글
| 안빈재(安貧齋) 2024.9 (0) | 2024.09.30 |
|---|---|
| 여름방학 2024.9 (0) | 2024.09.30 |
| 양평 백운재 2024.9 (0) | 2024.09.30 |
| 죽성리 성환당 2024.9 (0) | 2024.09.30 |
| 메종 드 엘리프 송산 2024.8 (0) | 2024.08.31 |
