2024. 10. 31. 10:40ㆍ회원작품 | Projects/House
Dear Wave

‘동해 푸른 바다로 금방이라도 빨려 들어갈 것 같은 바닷가 언덕에 서서 바다를 바라본다. 도로 넘어 해변에 위치한 단층의 낮은 오래된 집들은 조만간 사라질 것이고, 이 언덕에 지어질 숙박시설은 저 푸른 파도와 정면으로 마주하게 될 것이다.’ 처음 대지와 만났을 때의 느낌이다.
바다 방향으로 도시계획도로가 있지만, 아직 확장되기를 기다리는 상황이라 남측면의 소로를 통해서 진입 동선을 계획했다. 대지는 기존의 자연지형을 온전히 갖고 있어 지형을 이용해 도로에서 직접 진입 가능한 지하층은 주차장과 기계실을 배치하고, 남측면과 서측면 경사지를 이용해 지하에서 1층으로 연결되는 외부 동선과 휴게공간을 계획했다.
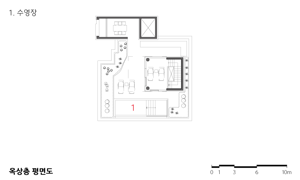
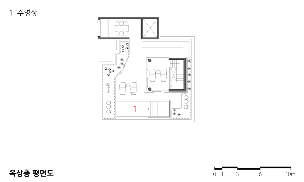
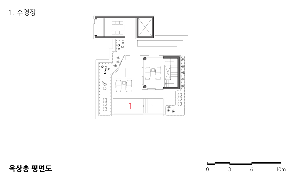
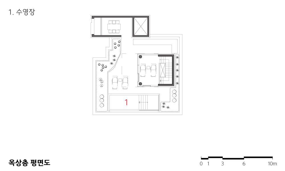
전면도로와 경사진 지형의 높이차가 2개 층 정도 형성된 것을 이용해 지하층에는 주차장에서 진입하여 수직의 진입 동선과 연결하고, 1층에 손님들을 위한 서비스 공간인 카페를 배치하고 넓은 테라스와 폴딩도어를 통해 확장 가능한 공간과 숙박객들이 처음 파도와 만나는 공간을 만들었다. 1층부터 4층까지 층당 하나의 독립된 객실을 만들고, 모두 바다를 향해 열려있는 구조로 만들어 언제나 파도를 만날 수 있게 했다. 1층에서 3층까지의 객실에는 외부 발코니 공간에 바다와 시각적으로 연결되는 수영장을 계획하여 수평선과 연결되게 했으며, 1층 객실은 현관에서 진입하면 썬큰을 만들어 다이닝 공간에서 자연과 접할 수 있도록 배려했다. 최상층 객실은 복층의 형태로 지붕층 테라스 공간과 인피니티 수영장을 계획하여 복층 구조의 다양한 공간의 느낌을 가질 수 있도록 했다.
동해 바다와 마주한 ‘파도에게(디어 웨이브)’는 경포대 해변에서 바다를 보고 숙박을 하는 여행객들에게 가장 필요한 것을 제공하고자 한다. 푸른 바다의 파도와 언제 어디서나 만나고 파도에게 말을 건넬 수 있는 공간, 그리고 건축을 통해서 자연스럽게 파도와의 만남을 유도하려 했다.



“I gaze at the East Sea standing at a nearby knoll, where I feel as if I would be absorbed any moment in the deep blue sea. The old low single-story houses by the beach across the road will disappear soon, and the lodging facility to be built at this knoll will stand face to face with the azure waves,” I felt when I first visited this site.
As the city planning road by the seaside is still awaiting extension, the main approach to this site was designed through the small road at the south. The existing natural topography maintained through the site was utilized to place parking and mechanical spaces at the basement accessible directly from the road, while the southern and western slopes were used to design the outdoor circulation and resting space running from the basement to the first (ground) floor.
The level difference of about two stories between the front road and the sloping landform was leveraged to place a basement parking lot connected to vertical circulation and place a cafe on the first floor as a service space, along with a spacious terrace and folding doors that enable spatial extension and provide a space for guests to first encounter the view of waves. On each of the first to the fourth floor, one independent guest room was placed, all designed with open structures facing the sea, enabling guests to see the waves anytime. Each guest room from the first to the third floor has an outdoor balcony space where a swimming pool was designed to visually connect with the sea and the horizon. The first-floor guest room was designed to connect with nature through a sunken dining space next to the entrance. The top-floor guest room was designed in a duplex structure, offering various spatial senses with a rooftop terrace and an infinity pool.
Facing the East Sea, Dear Wave aims at providing the essentials for the guests who stay after enjoying the seascape at Gyeongpodae Beach. This is to encourage a natural interaction with the blue sea waves through the architecture of the space where one can encounter and speak to the waves anytime at any place.









| 파도에게 설계자 | 최이선 _ 건축사사무소 예인 건축주 | 조규창 감리자 | 최이선 _ 건축사사무소 예인 시공사 | (주)오케이종합건설 설계팀 | 이명선, 박지은 대지위치 | 강원특별자치도 강릉시 해안로 633-4 주요용도 | 숙박시설 대지면적 | 833.00㎡ 건축면적 | 232.19㎡ 연면적 | 776.94㎡ 건폐율 | 27.87% 용적률 | 69.50% 규모 | B1F - 4F 구조 | 철근콘크리트구조 외부마감재 | 고벽돌(브릭코.주), 코르텐강, 스터코 외단열시스템 내부마감재 | 수성친환경 도장(KCC) 설계기간 | 2021. 04 - 2021. 08 공사기간 | 2021. 10 - 2022. 08 사진 | 윤준환 구조분야 | (주)나라구조엔지니어링 기계설비·전기․소방분야 | (주)이엘이엔지 |
Dear Wave Architect | Choi, Yesun _ Architecture Studio YEIN Client | Jo, GyuChang Supervisor | Choi, Yesun _ Architecture Studio YEIN Construction | OK Construction Co. Ltd Project team | Lee, Myungsun / Park, Jieun Design intention realization | Location | 633-4, Haean-ro, Gangneung-si, Gangwon-do, Korea Program | Accommodation Site area | 833.00㎡ Building area | 232.19㎡ Gross floor area | 776.94㎡ Building to land ratio | 27.87% Floor area ratio | 69.50% Building scope | B1F - 4F Structure | RC Exterior finishing | OLD STYLE BRICK(BRICKO ㏇), Stucco System(External insulation) Interior finishing | Water-based eco-friendly paint Design period | Apr. 2021 - Aug. 2021 Construction period | Oct. 2021 - AUG. 2022 Photograph | Yoon, Joonhwan Structural engineer | NARA Structural Engineering Co. Ltd Mechanical·Electrical·Fire engineer | EL Engineering Co. Ltd |
'회원작품 | Projects > House' 카테고리의 다른 글
| FOREB 2024.11 (0) | 2024.11.30 |
|---|---|
| 연을 머금은 집 2024.11 (0) | 2024.11.30 |
| 블랙 래빗 하우스 2024.10 (0) | 2024.10.31 |
| 둥근집 2024.10 (0) | 2024.10.31 |
| 더 끌림 2024.10 (0) | 2024.10.31 |
