2026. 1. 30. 10:50ㆍ아티클 | Article/특집 | Special
Edumasil #5
Seyeon High School Spatial Restructuring Preliminary Planning Report
1. 사업 개요 및 배경
학교 개요 : 부산, 세연고등학교
▹ 설립구분 : 사립(특성화고등학교)
▹ 주소 : 부산광역시 남구 진남로 82-19
사전기획가 : 나모건축사사무소 건축사 김현효
사업 추진 배경
세연고등학교는 1976년에 준공하여 48년이 경과되었다. 이에, 교육공동체가 함
께 참여하는, 「공간혁신, 스마트교실, 그린학교, 학교복합화, 안전」의 5대 핵심
요소를 갖춘 미래학교로 변화시키는 “공간재구조화” 사업을 통하여, 미래형 교
육과정의 구현과 학생들의 전인적인 성장에 기여하고자, 리모델링으로 사업을
추진하고자 한다.
과업의 목적
미래 교육여건 변화에 능동적으로 대응할 수 있는 교육환경 및 사용자 설문조사,
디자인워크숍 등의 사용자 요구를 반영한 대상학교만의 특징있는 미래학교 공간
(안) 제시
2. 현황분석
건물배치 및 도로현황





▹ 서측 8M도로 및 남측 6M 막다른 도로는 학교부지와 고저차가 심하여, 해당도로로부터 진출입은 불가능함.
기존 현황 3D 모델링 이미지

대지 종횡단면도


동선현황

▹ 동선현황 : 정보관 하부 필로티 주차장은 학생들의 등하교길이지만, 보차분리가 되지 않아 보행자 안전에 부적합함.
3. 교육기획
교육 프로그램에 대한 SWOT분석


4. 공간계획(사용자 참여디자인)
4.1 사용자 설문조사(학생)
▹ 현재의 공간 이외 필요하다고 생각하는 공간

▹ 학생 설문조사 결과


4.2 미래학습환경 조성방향
- 교육과정과 연계한 유연하고 다양한 공간
: 변화하는 미래사회에서 요구하는 전문교과 과목의 효율적 진행을 위한 공간
: 개별 학습, 그룹 학습, 창의적 활동을 지원할 수 있는 다양한 학습 공간
- 공간의 유동성
: 변화하는 미래 교육환경을 수용할수 있는 유연한 공간
- 휴식과 소통 중심 공간
: 학습, 취미, 휴식과 함께 소통, 교류할수 있는 복합 공간
공간혁신 조성방향
- 미래교육을 위한 요구시설에 따른 공간부족과 증축이 없는 리모델링의 한계를 극복하기 위하여, 일반교과 수업이 없는 3학년의 일반교실을 과감하게 삭제하고, 그에 따른 공간 활용을 통하여 미래학교로서의 가치를 더하고자 한다. 또한, 3학년은 일반교실이 없는점을 감안하여 공간계획시 고려한다.
- 고교학점제 운영 및 3학년 일반교실 삭제에 따른 운영방안
: 3학년 교육과정 운영 상 보통교과 수업이 없으므로 행정상의 교실 필요하지 않은 상황
: 3학년 일과 시간 중 행정 교실이 필요한 시간으로는 조,종례 시간 및 창체시간임
: 조,종례 시간 및 창체 시간은 학과에 구비된 실습실을 활용하거나 홈베이스 활용할 수 있음
: 고교학점제 운영을 바탕으로 학생 수요(선택) 중심의 수업을 운영하나, 학과별 의무 검정 자격 및 과정평가 자격 이수 등으로 인하여 학생들의 과목 선택권이 제한적인 상황으로 선택과목 수업을 위해 필요한 교실은 학급 수 +1 개 과목 정도로 예상됨. 이에 따라 일반교실이 많이 필요한 상황이 아닐뿐더러 소인수 과목 운영을 대비하여 3개 교실을 가변형 학습 공간으로 조성하고자 함.
- 각 시설은 학생들의 교육환경을 우선적으로 고려하여 계획하고 학년별, 용도별 조닝 구분을 통하여 효율적인 학습환경을 조성한다
- 교무행정 영역은 기능별 연계 및 공간 구분을 통하여 원활한 교무행정 환경을 고려한다.
- 교사와 학생간의 소통 및 관리를 고려하여 공간계획 한다.
- 앞으로 5년~10년 이후의 교육과정을 고려하여 실별구성 및 공간계획 한다.
- 융합 및 분리등 다양한 미래교육환경에 능동적으로 대응할수 있는 공간구성을 고려한다.
- 장애인 이용에 최대한 불편함이 없는 학교환경을 조성 한다.
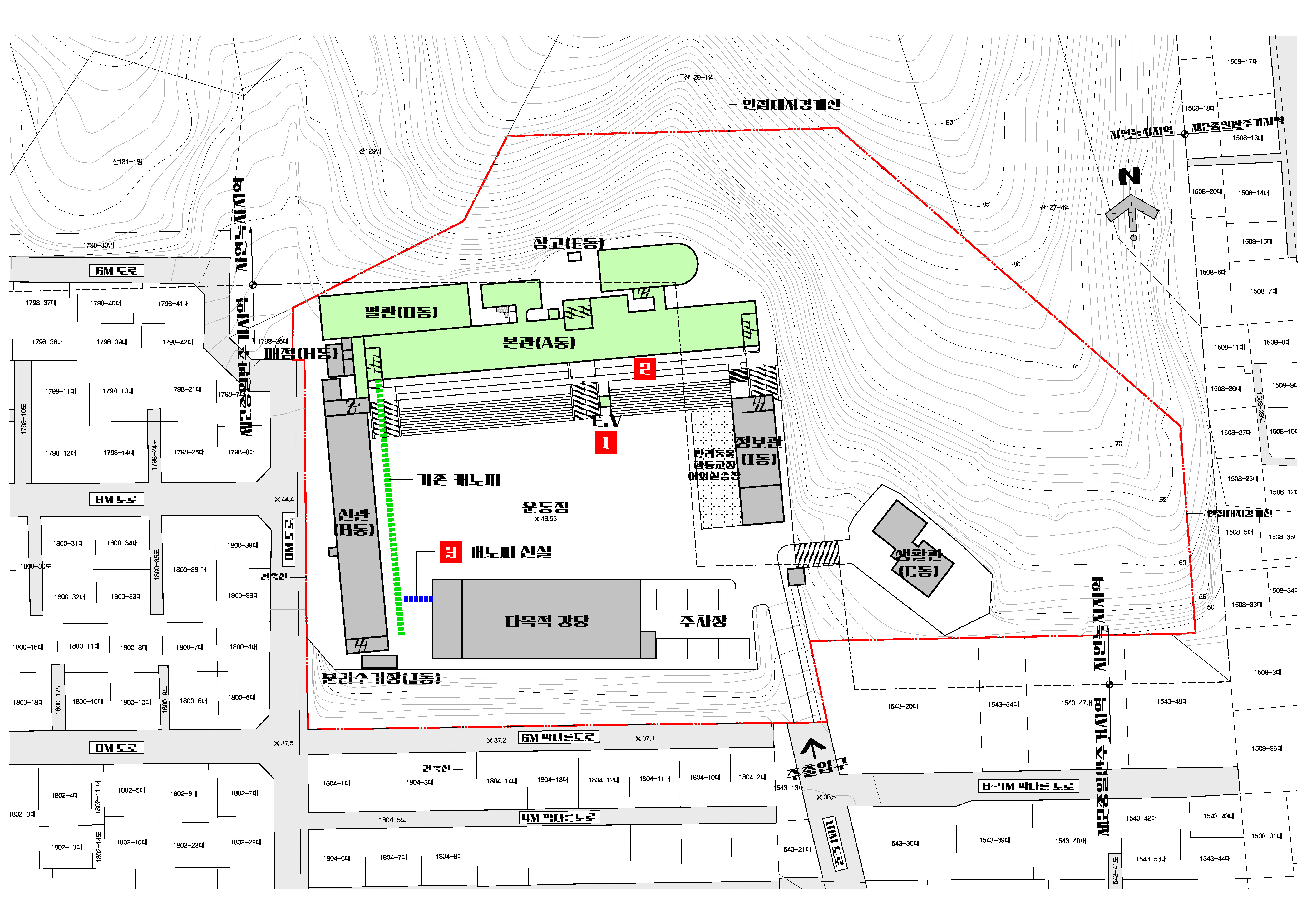
4.3 건물 및 전체배치도
- 과업범위(초록색) : 본관(A동) 및 별관(D동)

1. 승강기 또는 수직형 리프트 설치: 장애인 또는 지체 부자유자들의 원활한 학교 동선 이동을 위하여 운동장과 본관동과의 LEVEL차를 고려한 승강기 설치.
2. 본관동 전면 외부 통로
: 학생들의 이동 동선과 녹지가 어우러진 그린 조경공간 구성.
: 동선의 중간중간 녹지 전망 쉼터 조성
3. 신관(B동)과 다목적 강당 연결 캐노피 설치
: 우천시에도 비를 맞지 않고 강당과 연결가능한 동선구축
4.4 평면도
본관, 별관, 생활관 1층 평면 / 다목적강당, 신관, 정보관 : 2층 평면

- 기존 본관동 복도와 별관동 복도를 구획하고 있는 비내력벽을 철거하여, 전시공간 활용 및 소규모 라운지 조성.
- 화장실 연결 외부동선구간: DECK 설치 및 환경개선 ⇒ 휴게공간 조성 및 로비 인접공간 환경 개선.
본관, 별관, 생활관 : 2층 평면 / 다목적강당, 신관, 정보관: 3층 평면

본관, 별관 : 3층 평면 / 신관, 정보관: 4층 평면 / 다목적 강당: 무대상부 평면

본관, 별관: 4층 평면 / 신관: 5층 평면 / 다목적강당, 정보관: 옥상층 평면

친환경 에너지
- 저탄소 제로 에너지를 지향하는 그린학교.
- 친환경 에너지 이용을 통한 비용절감 및 환경보호.
(향후 별도의 사업을 통한 태양광 설치 예정)
휴식 및 생태공간 구축
▹휴식공간: 별관동 3층 옥상공간 및 층별 차이에 따른 옥외 공간.


▹생태학습장(야외 텃밭 또는 실내 스마트팜 조성)
- 별관동 3층 옥상공간 활용하여, 자연과 함께 학생들이 즐길수 있는 학교.
- 야외벤치 및 텃밭을 이용하여 학생들이 자연스럽게 자연과 접할수 있는 기회 제공.
- 생태환경 관련 동아리 편성 운영.



김현효 건축사·나모 건축사사무소
1997년 2월 부산 동의대학교 건축공학과를 졸업하였다.
이후 건축사사무소에서 설계공모 참여 및 다양한 용도의 실무경험을 쌓았으며, 2015년 건축사사무소를 설립하여 공동주택 및 교육시설 설계등 여러 프로젝트를 통해 지역 건축사로서의 역할을 수행하며 현재까지 운영하고 있다.
namo2015@daum.net
'아티클 | Article > 특집 | Special' 카테고리의 다른 글
| 2025 한국건축문화대상 2025.12 (0) | 2025.12.31 |
|---|---|
| 한국교육시설안전원과 함께하는 에듀마실 #4. 용일초등학교 공간재구조화 사전기획보고서 2025.12 (0) | 2025.12.31 |
| 제21회 건축의 날 “사람과 사회를 따뜻하게 잇는 건축” 2025.11 (0) | 2025.11.28 |
| 한국교육시설안전원과 함께하는 에듀마실 #3. 삽교초등학교 그린스마트스쿨 사전기획보고서 2025.11 (0) | 2025.11.28 |
| 인천에서 만난 대한민국 건축사 비롯한 아시아 건축사,더 나은 미래로…제21차 아시아건축사대회 성료 2025.10 (0) | 2025.10.31 |