2026. 2. 27. 11:05ㆍ회원작품 | Projects/House
Eun jin jae

본 사업부지는 폭이 7미터에 길이가 15미터 정도 되는 대지이면서 남동 측으로 8미터 도로에 접해 있고 대지의 장변 방향으로 북동 측 근린공원에 접해 있다.
건축주는 1~2층에 근린생활 시설을 3~4층에 부부와 자녀 3명이 거주할 수 있는 공간을 요청하였다. 대지가 협소하여 수직 동선을 간결하게 계획하고 최소화해, 거주공간을 최대한 확보하면서 효율적인 공간을 구성하는 것이 계획의 주안점이다.
또한 사업부지에 대한 최대 용적의 직육면체 매스에서 최소한의 출입구, 주차장 공간, 일조사선을 적용하면서 원석을 조각하듯이 매스의 형대를 구성하고 내부공간을 계획하는 방법으로 작업을 진행하였다.
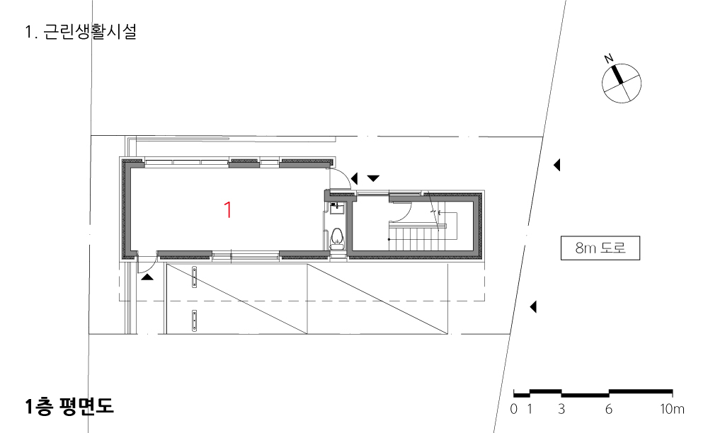
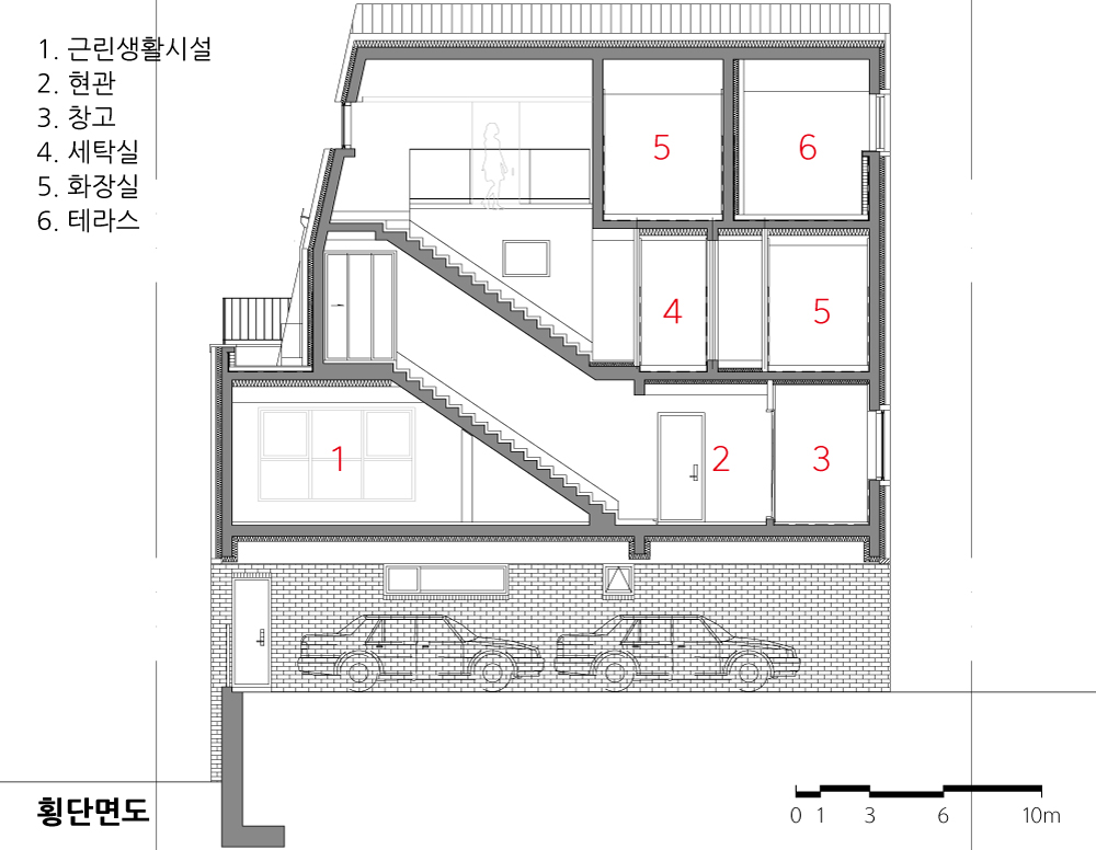
1층의 경우 좌측 인접부지에 주차장이 설치되어 있는 방향으로 주차장을 계획하고 우측공원 방향으로 보행 출입로를 계획하여 전면의 계단실과 자연스럽게 연결되도록 하였다. 1~2층 근린생활시설은 전면의 계단실 뒤쪽으로 배치하고 계단실과 동선을 연결하였으며, 근린공원 방향으로 시야가 열리도록 계획하였다. 3층 주거공간은 2층 계단실에 출입구를 계획하여 계단을 통해 진입할 수 있도록 하고 3층 공간은 주방과 거실, 부부침실로 공간을 구성하고 일조사선 적용으로 생기는 테라스는 주방과 인접하여 배치하였다. 공간이 협소해 주방과 거실은 하나의 공간으로 구성, 최대한 넓은 공간이 될 수 있도록 하였다. 4층의 경우 근린공원 방향으로 자녀방을 연접하여 계획하고 자연스럽게 생기는 복도와 계단의 천정을 박공지붕 형태로 오픈해 층고를 의도적으로 높여 개방감을 확보했다. 또한 전면부에 자녀들의 공용공간인 테라스도 계획하였다. 건물 전체 주요 공간을 최대한 공원 방향으로 시야가 열릴 수 있도록 계획하여 자연을 최대한 끌어들임으로써 물리적으로 좁은 공간을 상쇄할 수 있도록 했다.
건물의 외관 구성은 단색의 치창벽돌과 기능적 창문구성으로 단순화하여 출입구 및 주차장 공간, 일조사선을 적용하면서 다듬어진 매스의 형태가 조형감으로 느껴질 수 있도록 하였다.



The site measures approximately 7 meters in width and 15 meters in depth. It faces an 8-meter-wide road on the southeast side and is adjacent to a neighborhood park along its long edge to the northeast. The client requested neighborhood commercial facilities on the first and second floors, with residential space for a couple and their three children on the third and fourth floors. Given the limited size of the site, the primary focus of the design was to simplify and minimize vertical circulation, securing as much residential area as possible while maintaining spatial efficiency.
The project began with a rectangular mass maximizing the allowable floor area ratio. From this solid volume, the form and interior spaces were shaped through a process similar to carving stone—applying minimum requirements for entrances, parking, and solar setback regulations to gradually refine the mass.
On the ground floor, the parking area was placed along the left side, adjacent to a neighboring parking lot, while the pedestrian entrance was planned on the right, facing the park. This entry connects naturally to the stair hall at the front. The neighborhood commercial spaces on the first and second floors are located behind the stair hall and directly connected to it, with open views oriented toward the park.
The residential unit on the third floor is accessed via the stair from the second floor. This level contains the kitchen, living room, and the master bedroom. Due to the limited floor area, the kitchen and living room were planned as a single open space to create a greater sense of openness. A terrace formed by the application of solar setback regulations was placed adjacent to the kitchen.
On the fourth floor, the children’s rooms are arranged along the park-facing side. The naturally formed corridor and stair ceiling were opened into a gabled roof shape, intentionally increasing the ceiling height to enhance spatial openness. A shared terrace for the children was also planned at the front of the building. Throughout the building, major spaces were oriented toward the park to maximize views and draw nature into the interior, helping to offset the physical constraints of the narrow site.
The exterior composition was simplified using monochrome facing bricks and a functional window arrangement. As entrances, parking spaces, and solar setbacks shaped the mass, the refined form itself was allowed to emerge as the building’s primary architectural expression.












| 은진재 설계자 | 조용일 건축사_ (주)와이플랜 건축사사무소 건축주 | 허미현 감리자 | 건축사사무소 푸리 시공사 | 한동씨앤씨 설계팀 | 정창용 설계의도 구현 | (주)와이플랜 건축사사무소 대지위치 | 경기도 군포시 대야미동 주요용도 | 단독주택 및 근린생활시설 대지면적 | 109.60㎡ 건축면적 | 56.42㎡ 연면적 | 185.43㎡ 건폐율 | 51.47% 용적률 | 169.18% 규모 | 4F 구조 | 철근콘크리트구조 외부마감재 | 치장벽돌, 징크패널 내부마감재 | 석고보드위 페인트, 포세린 타일, 실크벽지 설계기간 | 2021. 12 - 2022. 06 공사기간 | 2022. 10 - 2023. 06 사진 | 김한얼 구조분야 | 연이구조 기계설비·전기·소방분야 | 엠케이청효 |
Eun jin jae Architect | Cho Youngil_YPLAN Architects Client | Heo Mihyeon Supervisor | Architects PURI Construction | Handong C&C Project team | Jeong Changyong Design intention realization | YPLAN Architects Location | Daeyami-dong, Gunpo-si, Gyeonggi-do Program | Single-family house, Neighborhood living facilities Site area | 109.60㎡ Building area | 56.42㎡ Gross floor area | 185.43㎡ Building to land ratio | 51.47% Floor area ratio | 169.18% Building scope | 4F Structure | RC Exterior finishing | Face brick, Zinc panel Interior finishing | Paint, Porcelain tile, Real silk wallpaper Design period | Dec. 2021 - Jun. 2022 Construction period | Oct. 2022 - Jun. 2023 Photograph | Kim Haneol Structural engineer | Younlee consulting & structural Mechanical·Electrical·Fire engineer | MK Chunghyeo engineering |
'회원작품 | Projects > House' 카테고리의 다른 글
| 효우당 사랑채 2026.3 (0) | 2026.03.31 |
|---|---|
| 화록당(和綠堂) 2026.2 (0) | 2026.02.27 |
| 비채家 _ 비우고채운집 2026.1 (0) | 2026.01.30 |
| 호와원 2026.1 (0) | 2026.01.30 |
| 담양 삼다리 주택 2026.1 (0) | 2026.01.30 |
