2022. 12. 11. 15:09ㆍ회원작품 | Projects/Commercial
Yeosu pension

대지는 여수 평사리 인근 북쪽에 바다를 둔 경사지 해 안가이다. 남쪽 진입도로가 높은 지형으로 향과 조망 이 같은 방향이 아닌 대지이다. 전면 바다라는 자연환 경, 여행이라는 설렘의 공간, 탈일상이라는 사건의 장 소를 키워드로 “어떻게 관계를 조직할 것인가?”가 계 획의 출발점이었다.
여수 풍경이 되는 너레
우리는 건축물이 여수의 수려한 해안가 풍경으로 동화 되기를 원했다. 바위절벽과 작은 산으로 절경을 이루 는 여수의 바다 풍경을 모티브로 기하학적인 바위들이 해안가 절벽의 모습으로 펼쳐져 여수 해안가 풍경으로 공존하고자 했다. ‘매우 넓고 큰 바위로 된 땅바닥’ 뜻 의 순우리말인 ‘너레’ 라는 이름과 함께 외벽 재료를 문양콘크리트나 콘크리트 블록을 사용한 이유도 여기 에 있다.
바다를 거니는 설레임의 여정
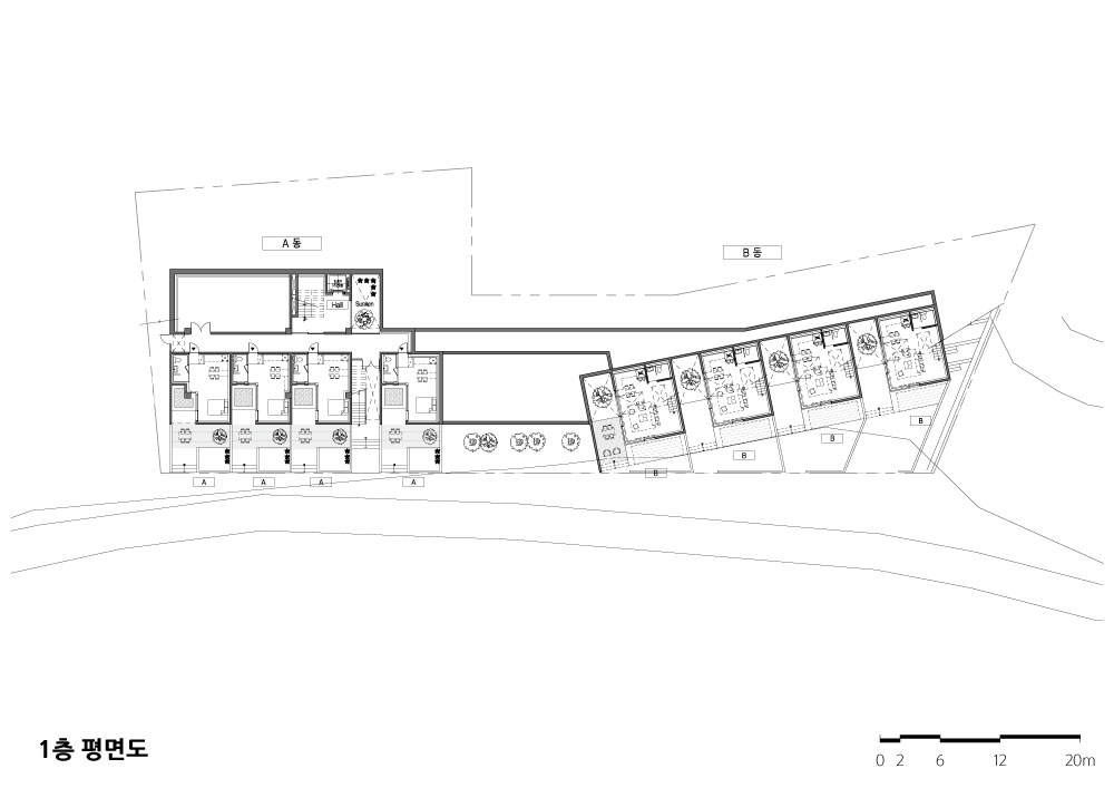
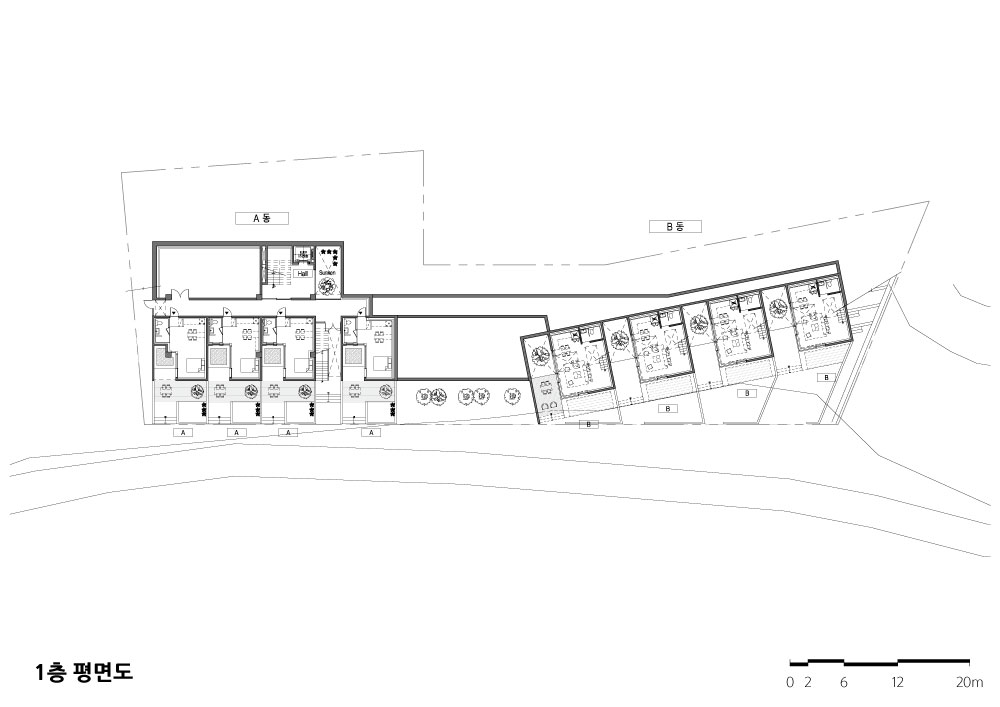
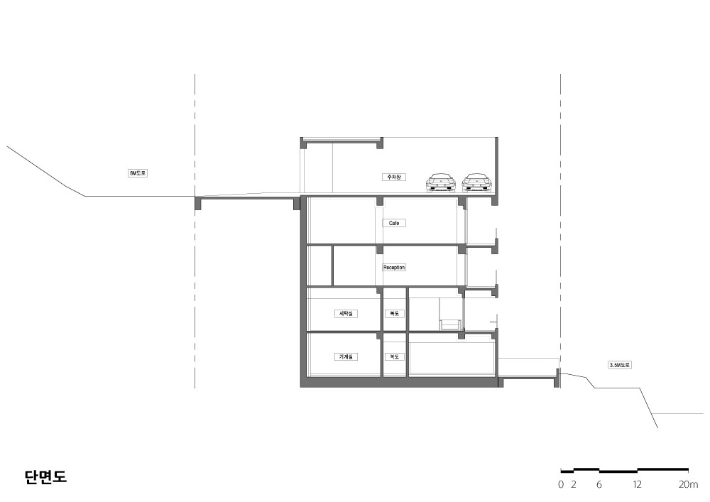
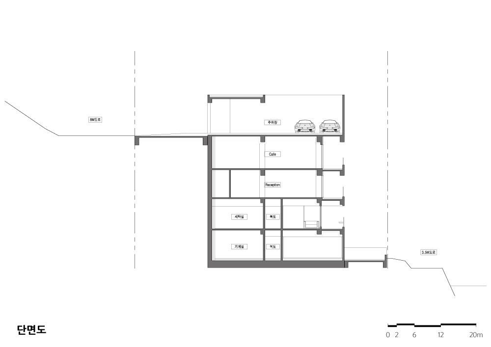
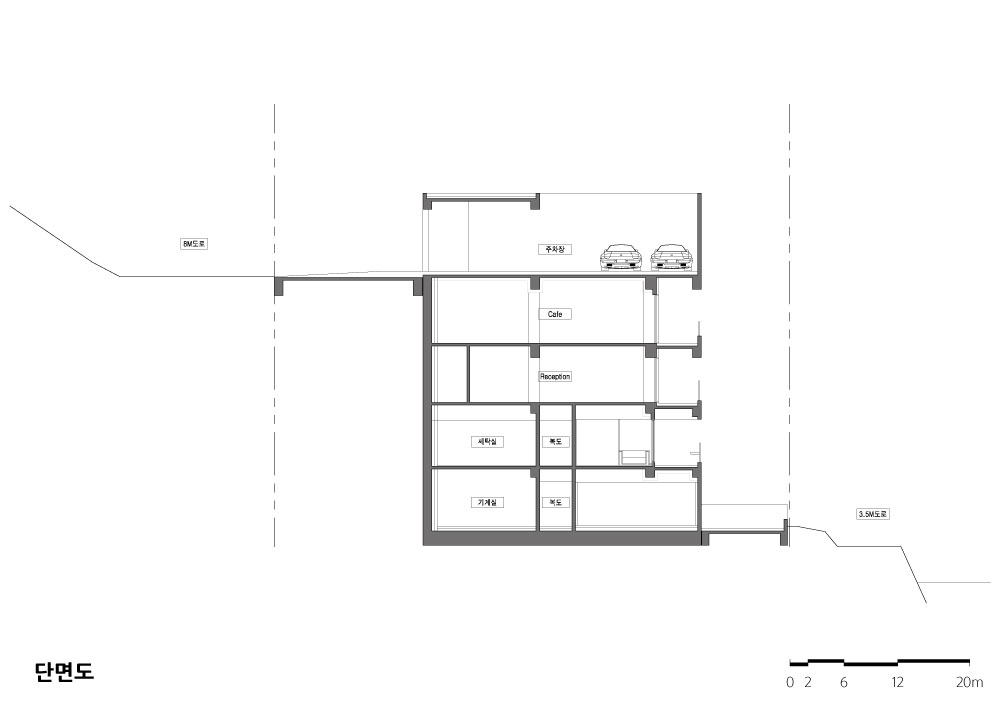
5층 높이의 남쪽 도로에서 진입하는 너레 펜션의 여 정은 여행이라는 설렘의 공간을 경험하게 한다. 주차 장을 내려 4층 카페를 거쳐 3층 라운지를 지나 객실로 이어지는 동선은 북쪽 바다풍경을 입체적이고 극적이 며 풍부한 방식으로 경험하게 해준다. 여행이라는 설 렘을 바다와 함께 공간화 하고 있는 것이다.
바다를 즐기는 사건의 장소
80미터 남짓 바닷가 해안가에 펼쳐진 너레 펜션은 입 체적인 동선과 함께 다양한 프로그램들이 엮여져 있 다. 인피니트 풀, 스텐드형 계단식 공연장, 건물사이 의 풍경들, 수평적으로 확장하는 카페공간, 다양한 바 다쪽 풍경이 있는 풀빌라 타입들 등 너레 펜션은 탈일 상의 사건들이 프로그램화 되어있는 사건의 장소가 되고 있다.

The site is a sloping shore with the ocean in the north of Pyeongsa-ri, Yeosu. The southern entrance road is a high terrain whose landscape is not the same direction as the view. How to organize the relationship with key words such as the natural environment of the front sea, the space of a thrill of traveling, and the place of the event of departing from the daily routine? This question was the starting point of our plan.
Neore creating Yeosu’s Landscape
.We hoped that the building is assimilated into Yeosu's beautiful coastal scenery. We wanted the Geometric rocks to spread out in the form of coastal cliffs with the motif of Yeosu's sea scenery that makes up a magnificent view of rock cliffs and small mountains, and to coexist as Yeosu’s coastal scenery. This is why we used patterned concrete or concrete block for the exterior wall, along with the name of 'Neore,' a pure Korean word that means 'very wide and large rocky ground'.
A thrill of journey walking along the beach
The journey of the five-story Neore Pension, entering from the road on the south, allows you to experience the space with the thrill of traveling. The movement flow, from the parking lot, a four-story cafe, a three-story lounge to guest rooms, make the scenery of the sea to the north a three-dimensional, dramatic and rich experience. The thrill of traveling is becoming a space together with the sea.
A place of events to enjoy the sea
Neore Pension spreads out the seaside coast of over 80 meters, with various programs mixed with threedimensional movement flow. Including an infinite pool, a stand-type tiered stadium, the landscapes between buildings, horizontally expanding café space, pool villas with various sea-side scenes, etc, Neore Pension has become a place of events where escapism happenings are part of the program.






| 여수 너레 펜션 설계자 ┃ 홍만식 KIRA ┃ (주)리슈 건축사사무소 설계팀 | 김새롬 대지위치 | 전라남도 여수시 돌산읍 평사리 산555-4 주요용도 | 다가구주택, 근린생활시설 대지면적 | 1,834.52㎡ 건축면적 | 673.80㎡ 연면적 | 2,014.59㎡ 건폐율 | 36.73% 용적률 | 109.82% 규모 | 지상 4층 구조 | 철근콘크리트조 외부마감재 | 노출콘크리트 설계기간 | 2018. 01 ~ 2018. 02 |
Yeosu pension Architect | Hong, Mansik _ Richue Architects Project team | Kim, Saerom Location | San555-4, Pyeongsa-ri, Dolsan-eup, Yeosu-si, Jeollanam-do, Korea Program | Housing, Neighborhood facility Site area | 1,834.52㎡ Building area | 673.80㎡ Gross floor area | 2,014.59㎡ Building to land ratio | 36.73% Floor area ratio | 109.82% Building scope | 4F Structure | RC Exterior finishing | Exposed concrete Design period | Jan. 2018 ~ Feb. 2018 |
'회원작품 | Projects > Commercial' 카테고리의 다른 글
| 스테이비 호텔 2019.3 (0) | 2022.12.16 |
|---|---|
| 강릉호텔 2018.12 (0) | 2022.12.11 |
| 연신내 타오 호텔 2018.10 (0) | 2022.12.08 |
| 호텔 포레 프리미어 2018.10 (0) | 2022.12.08 |
| 영주 붉은서원 2018.9 (0) | 2022.12.07 |