2022. 12. 7. 09:17ㆍ회원작품 | Projects/Commercial
Red Brick Academy

‘붉은서원’(Red Brick academy)은 최초의 사액서원인 소수서원이 있던 영주시에 새로 들어서는 학원 프로젝트다. 경상북도 영주시 가흥택지개발지구에 새롭게 들어서는 ‘붉 은서원’은 초·중·고 전체 학생들을 대상으로 하는 전과목 종합학원으로, ‘제 2의 학교’라 는 이미지로 계획됐다.
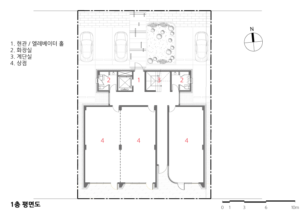
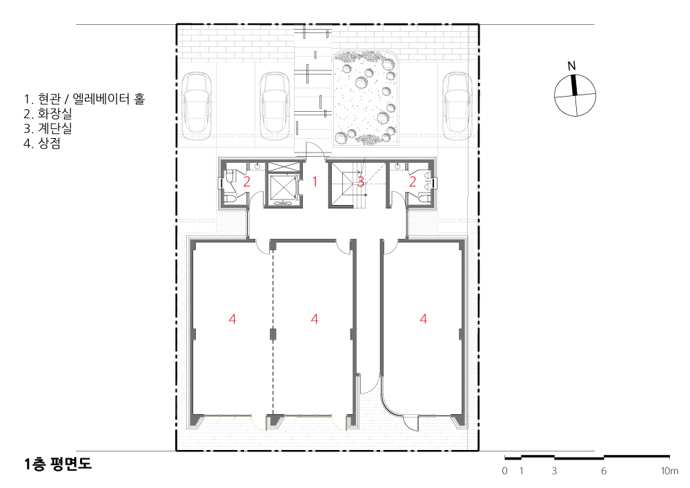
건축물 1층의 큰 도로쪽 정면은 학원의 진입부로 사용됐다. 2층, 3층의 창은 반복되는 패 턴으로 학교건축을 연상시킨다. 2층으로 올라오면 오고 가는 친구들을 보며 소통할 수 있는 학생들의 휴식공간이 펼쳐진다.
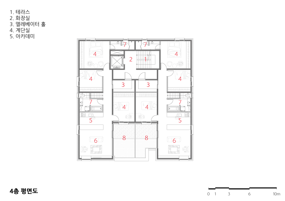
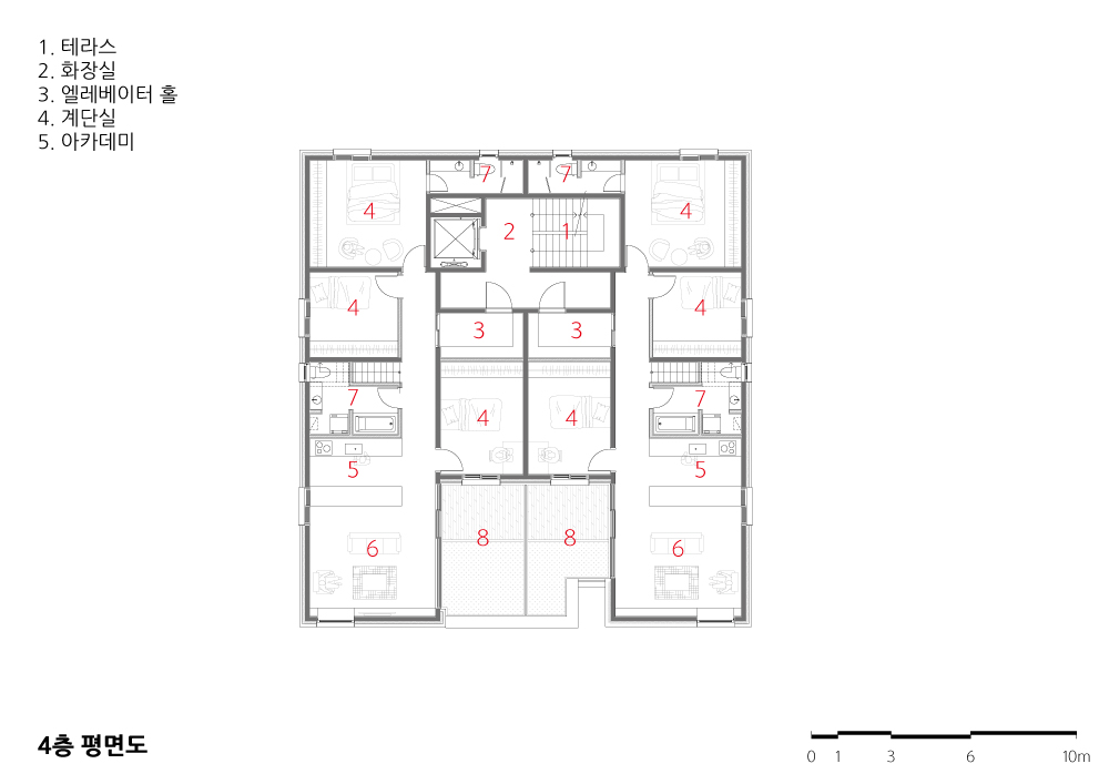
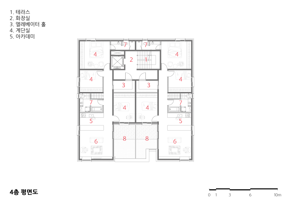
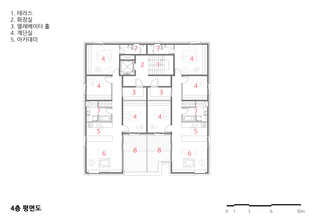
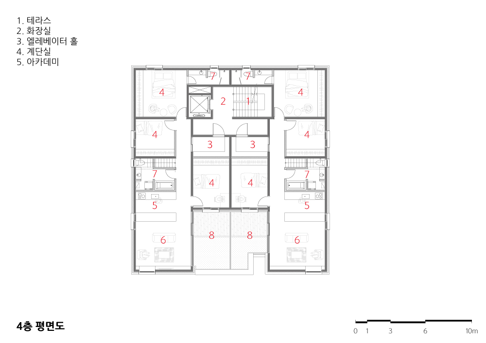
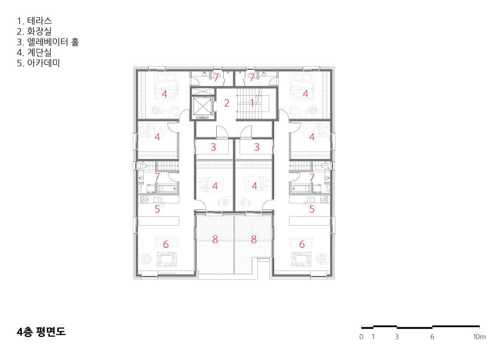
4층 주거공간에는 학원 원장님 집과 부모님집이 대칭을 이루고 있으며, 공용마당과 함 께 각자의 마당과 다락으로 구성되어 있다. 학원건물과 분리하여 외부공간을 만들고 두 세대간의 프라이버시를 확보하기 위해 건축주와 함께 만들어낸 공간이다.
공용계단실에서 바로 접근이 가능한 옥상에 학생들을 위한 이벤트 공간이 있다. 이벤트 공간은 구조물과 함께 이용할 수 있으며, 정기적인 파티를 열 수도 있다.

"Red Brick Academy" is the first private academy project in Youngju city where there is Sosuwon. 'Red Brick Academy', which will be newly built in Gaheung Housing Site Development Zone in Yeongju, Gyeongsangbuk-do, as a comprehensive institute covering all subjects for all elementary, middle and high school students, and is planned as the 'Second School’.
The front side facing the big road on the first floor of the building was used as the entrance to the academy. The windows on the second and third floors are reminiscent of school architecture and are used in a repeatative pattern. On the second floor, there is a resting place for students to communicate with their friends.
On the 4th floor residential area, the academy director’s and parents’ accommodation are symmetrical and each area has a yard and attic, but share the common yard. It is a space created with the client to make an external space separated from the academy building and to secure privacy between the two generations.
There is an event space for students on the rooftop with direct access from the common staircase. This event space can be used in conjunction with the structure and can hold regular parties.















| 영주 붉은서원 설계자 ┃ 신현보 KIRA ┃ (주)디자인밴드요앞 건축사사무소 건축주 | 학림교육 감리자 | 정상훈 _ 그리다 건축사사무소 시공사 | 무원건설 설계팀 | 류인근, 김도란 대지위치 | 경상북도 영주시 대동로 55 주요용도 | 근린생활시설 대지면적 | 446.20㎡ 건 축면적 | 266.56㎡ 연면적 | 891.37㎡ 건폐율 | 59.74% 용적률 | 199.77% 규모 | 지상 4층 구조 | 철근콘크리트조 외부마감재 | 세화 치장 적벽돌, 라임스톤 내부마감재 | 신한 실크벽지, 구정강마루, 모자이크타일, 포세린 타일 설계기간 | 2016. 06 ~ 2016. 09 공사기간 | 2016. 10 ~ 2017. 05 사진 | 류인근 구조분야 : 한길구조 기계설비분야 : 정연엔지니어링 전기분야 : 정연엔지니어링 소방분야 : 정연엔지니어링 |
Red Brick Academy Architect | Shin, Hyunbo _ designband YOAP Client | HAKLIM Academy Supervisor | Jung, Sanghun _ Grida Architect Construction | Moowon Construcrion Project team | Ryoo, Inkeun / Kim, Doran Location | 55, Daedong-ro, Yeongju-si, Gyeongsangbuk-do, Korea Program | Neighborhood living facility Site area | 446.20㎡ Building area | 266.56㎡ Gross floor area | 891.37㎡ Building to land ratio | 59.74% Floor area ratio | 199.77% Building scope | 4F Structure | RC Exterior finishing | Brick, Limestone Interior finishing | Wallpaper, Paint, Wood flooring, Mmosaic tile, Porcelain tile Design period | Jun. 2016 ~ Sep. 2016 Construction period | Oct. 2016 ~ May. 2017 Photograph | Ryoo, Inkeun Structural engineer | Hangil engineering Mechanical engineer | Jungyeon engineering Electrical engineer | Jungyeon engineering Fire engineer | Jungyeon engineering |
'회원작품 | Projects > Commercial' 카테고리의 다른 글
| 연신내 타오 호텔 2018.10 (0) | 2022.12.08 |
|---|---|
| 호텔 포레 프리미어 2018.10 (0) | 2022.12.08 |
| 홀스빌딩 2018.9 (0) | 2022.12.07 |
| 커빙스케이프 2018.08 (0) | 2022.12.06 |
| 캔버스 2018.08 (0) | 2022.12.06 |