2022. 12. 6. 09:21ㆍ회원작품 | Projects/Commercial
Curving Scape

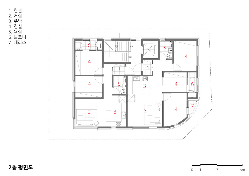
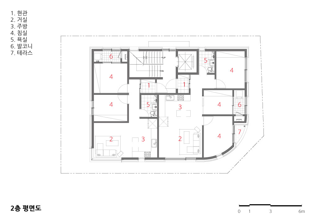
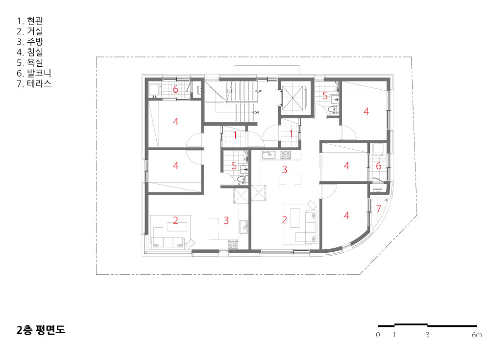
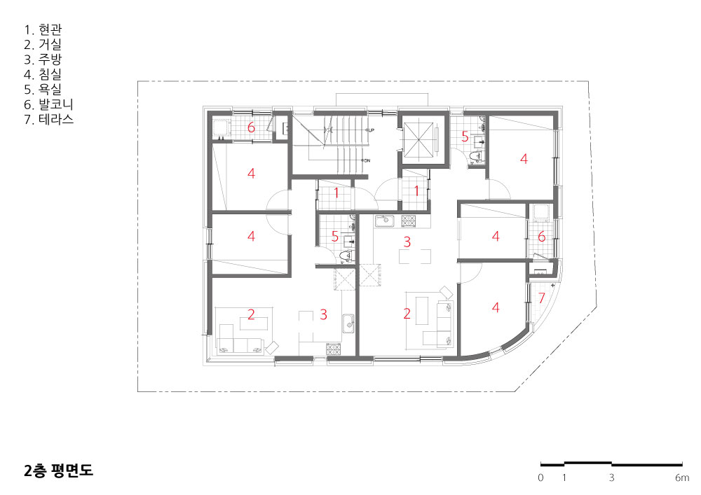
대지는 2면이 도로에 접한 코너에 위치한다. 정북일조의 영향을 받아 한쪽 매스가 잘리 는 형상을 가지며 코너대지의 특성을 살려 곡선의 풍경이 느껴지는 벽돌집으로 계획됐 다. 주요 재료로 산토리니 화이트·블랙펄 벽돌을 사용하여 전면과 후면이 다른 입면으로 느껴지기도 한다. 경계부는 화이트, 블랙의 대조적 입면이 조화를 이루며, 곡면부 공간은 테라스로 계획하여 기능성과 조형성을 동시에 충족시켰다.
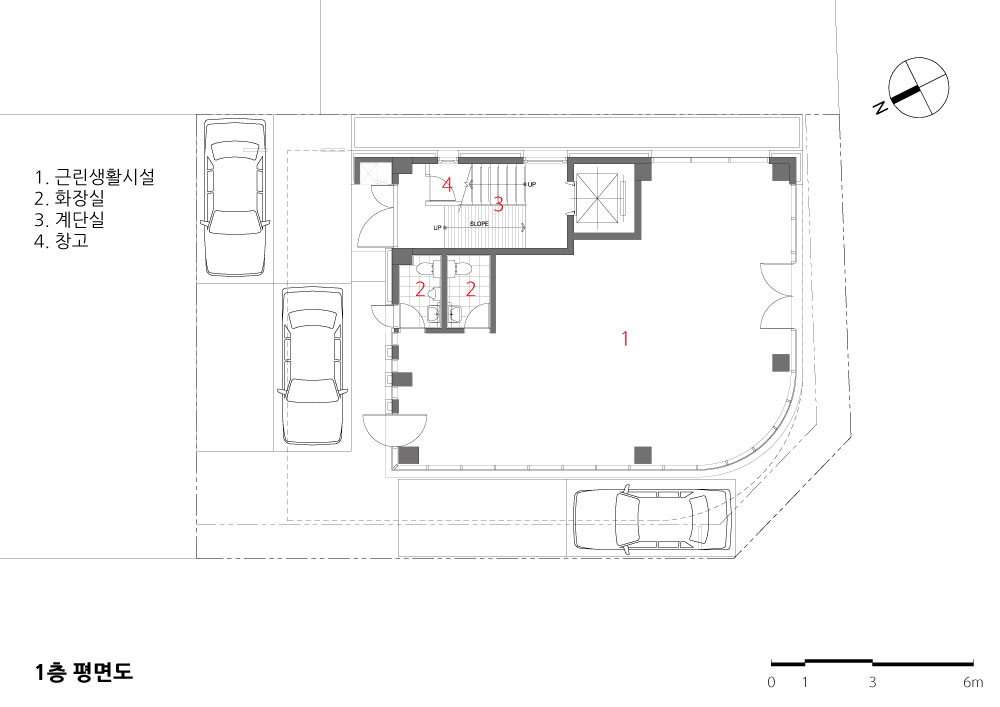
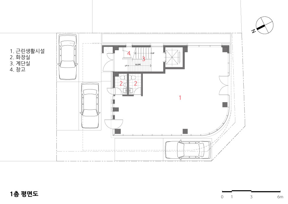
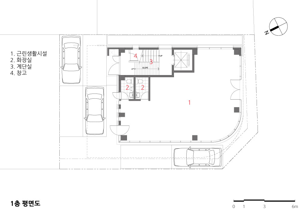
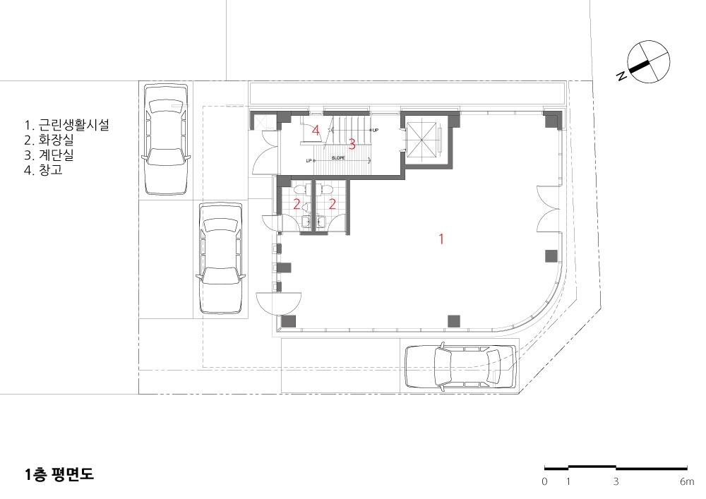
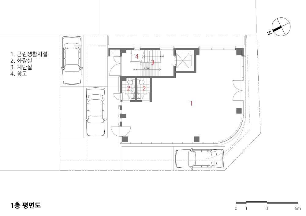
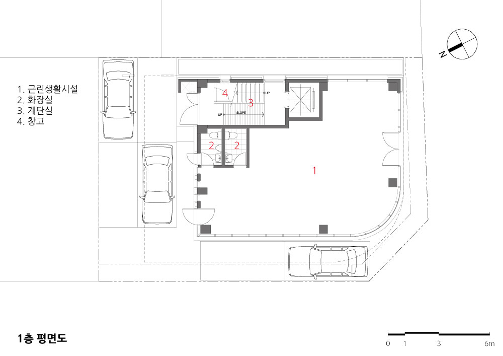
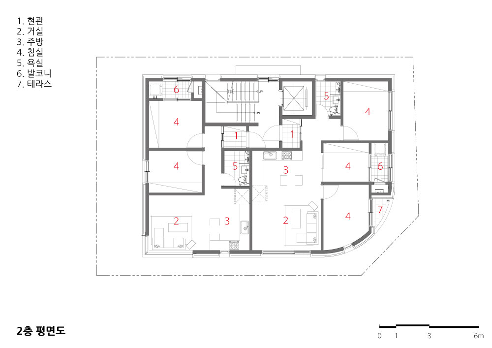
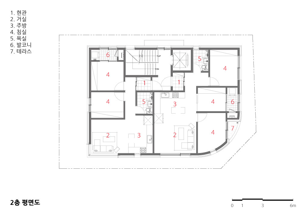
1층은 근린생활시설, 2, 3층은 총 4가구의 임대세대 그리고 4층 및 다락은 주인세대로 구성되었다. 4층에서 일조권 계획에 의해서 자연스럽게 생긴 공간을 긴 테라스로 계획 하여 내외부 공간의 소통이 원활하도록 했다. 건물 이름은 도심 속 오브제 ‘curving scape'라 지었다.

The site is a corner site, bounded on two sides by roads. The structure is planned to be a brick house where the natural curve of the landscape of can be taken advantage of with the shape of one side mass cut under the influence of north-up sunlight. Santorini white and black pearl bricks are used as the main material. The front and rear elevations are at different elevations. On the boundary, the contrasting elevation of white and black is in harmony. The curved space is planned as a terrace and both functionality and formality are satisfied at the same time.
The first floor is a neighbourhood living facility, the second and third floors are used for four(4) rental apartments and the fourth floor and loft are the owner’s residence. On the fourth floor, the space naturally formed by the right of sunlight is planned as a long terrace so that the communication of indoor and outdoor spaces seamless. The building is named 'Curving scape'.










| 커빙스케이프 설계자 ┃ 윤동원 KIRA ┃ AAG 건축사사무소 건축주 | 안완식 감리자 | 윤동원 _ AAG 건축사사무소 시공사 | 안완식 설계팀 | 설정우, 안용일, 이현주 대지위치 | 경기도 구리시 갈매순환로 126번길 17 (갈매동 562-4) 주요용도 | 근린생활시설 대지면적 | 248.00㎡ 건축면적 | 146.68㎡ 연면적 | 484.12㎡ 건폐율 | 59.95% 용적률 | 195.21% 규모 | 지상 4층 구조 | 철근콘크리트조 외부마감재 | 산토리니 화이트벽돌, 산토리니 블랙펄 벽돌, 우성초코벽돌, 리얼징크 내부마감재 | 강마루, 데코타일, 자작나무합판, 실크벽지 설계기간 | 2016. 08 ~ 2016. 11 공사기간 | 2016. 11 ~ 2017. 05 사진 | 윤동원 구조분야 : 광림구조엔지니어링 기계설비·전기·소방분야 : 진화이엔씨 |
Curving Scape Architect | Yoon, Dongwon _ AAG architecten Client | Ahn, Wansik Supervisor | Yoon, Dongwon _ AAG architecten Construction |Ahn, Wansik Project team | Seol, Jeongwoo / Ahn, Yongil / Lee, Hyeonhoo Location | 17, Galmaesunhwan-ro 126beon-gil, Guri-si, Gyeonggi-do, Korea Program | Neighbourhood facility Site area | 248.00㎡ Building area | 146.68㎡ Gross floor area | 484.12㎡ Building to land ratio | 59.95% Floor area ratio | 195.21% Building scope | 4F Structure | RC Exterior finishing | Santorini white brick, Santorini black pearl brick, Woosung choco brick, Real zinc Interior finishing | Wood floor, Deco tile, Birch plywood, Silk wallpaper Design period | Aug. 2016 ~ Nov. 2016 Construction period | Nov. 2016 ~ May. 2017 Photograph | Yoon, Dongwon Structural engineer | GWANGLIM STRUCTURE Engineering Mechanical·Electrical·Fire engineer | JINHWA E&C |
'회원작품 | Projects > Commercial' 카테고리의 다른 글
| 영주 붉은서원 2018.9 (0) | 2022.12.07 |
|---|---|
| 홀스빌딩 2018.9 (0) | 2022.12.07 |
| 캔버스 2018.08 (0) | 2022.12.06 |
| 마호가니 카페 강화점 2018.07 (0) | 2022.12.05 |
| 지젤엠청라 2018.07 (0) | 2022.12.05 |