2022. 12. 5. 09:26ㆍ회원작품 | Projects/Commercial
MAHOGANY in Ganghwado

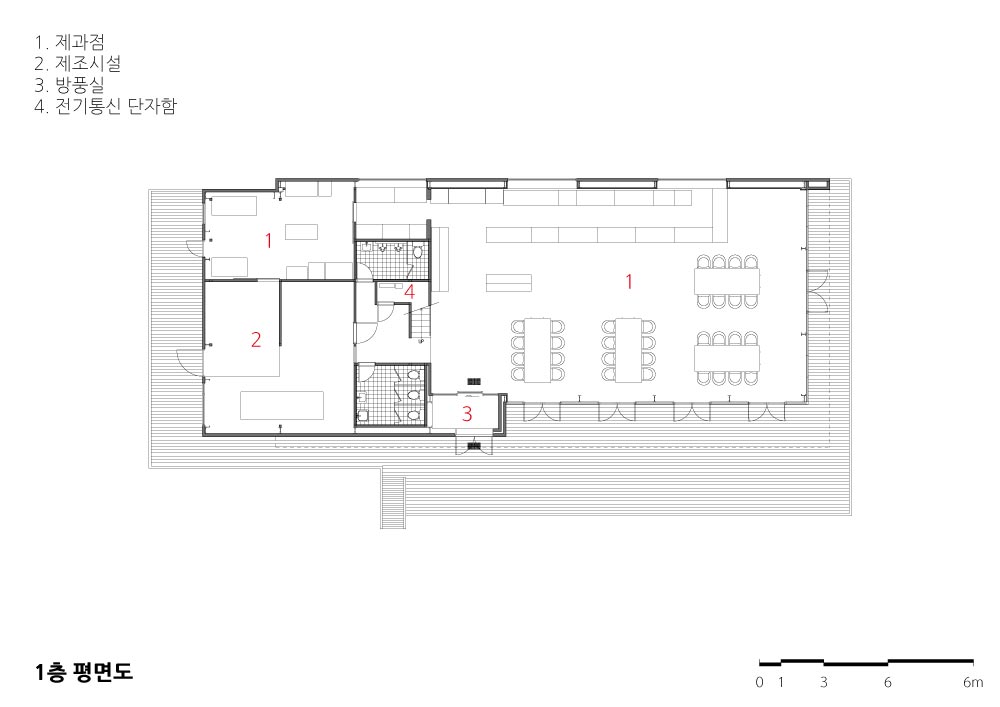
새롭게 들어설 마호가니 카페의 부지는 기존 도레도레 카페가 놓여진 부지에서 약 3미 터 정도의 레벨 아래에 놓여져 있다. 야외카페와 실내카페가 구분없이 이어질 수 있도록 마호가니 카페 전면의 마당을 공간적으로 감싸는 형태로 설계됐다. 강화의 여름 햇빛을 차단하기 위해 처마는 길게 계획됐고, 구조는 조립식 경량철골을 사용했다. 내부에서 조 립식 경량철골이 그대로 드러나도록 아무 마감도 하지 않으려고 했지만 카페 실내 인테 리어를 고려하여 마감을 한 것이 조금 아쉬운 부분이다. 외관은 단순한 박공의 형태로 기 존 도레도레 카페의 독특한 형태와 대비되도록 구성했다. 마감은 골강판을 사용하여 형 태가 가지는 심플함을 더욱 강조했다. 접어서 만들어진 판의 형태를 강조하고, 전면의 정 원(garden)에서 지붕처마와 옆의 에지(edge)부분은 스테인리스 스틸 미러(mirror)마 감을 통해 주변 환경이 투영될 수 있도록 처리했다. 정원을 담고 있는 창고로서 마호가 니 카페는 설계됐다.

The site of mahogany cafe which is newly stood is located one step below the site, about 3 meters below the level, where the existing 'Dore-Dore' Cafe is located. It was designed of shape that the yard of mahogany cafe's front surrounds spatially to connect outdoor cafe and indoor cafe without any division. In order to protect summer sunlight, the eaves were designed long and the structure used the prefabricated lightweight steel. It was not trying to do any finishing to reveal prefabricated lightweight steel as it was, but it is something to feel sorry that the finishing was done considering indoor interior of cafe. The exterior was a simple shape of gable board, and was composed to contrary to the unique shape of the existing Dore-Dore cafe. The simpleness was more emphasized using a valley steel plate for the finishing. In order to emphasize the shape of plate which was made by bending and the bending at the front garden, the eaves of roof and edge portion was treated to project surrounding environment through stainless steel mirror finishing.












| 마호가니 카페 강화점 설계자 ┃ 김정숙 KIRA ┃ (주)이드 건축사사무소 건축주 | 김현하 외 1명 감리자 | 김인성 _ 세기건축도시 건축사사무소 시공사 | 이토건설 설계팀 | 이민호, 김인철 대지위치 | 인천광역시 강화군 화도면 해안남로 1844번길 19 주요용도 | 제조시설 및 제과점 대지면적 | 6,378.00㎡ 건축면적 | 329.59㎡ 연면적 | 397.67㎡ 건폐율 | 5.17% 용적률 | 6.24% 규모 | 지상 2층 구조 | 경량 철골조 외부마감재 | 골강판, 스테인리스 스틸 미러 내부마감재 | 수성페인트, 에폭시코팅 설계기간 | 2017. 04 ~ 2017. 05 공사기간 | 2017. 05 ~ 2017. 10 사진 | (주)이드 건축사사무소 구조분야 : 금나구조 기계설비분야 : 경기기술단 전기분야 : 경기기술단 |
MAHOGANY in Ganghwado Architect | Kim, Jeongsuk _ Architects' ID Client | Kim, Hyunha and 1 others Supervisor | Kim, Insung _ Seki Architecture Construction | IttoConstruction Project team | Lee, Minho / Kim, Incheol Location | 19, Haeannam-ro 1844beon-gil, Hwadomyeon, Ganghwa-gun, Incheon, Korea Program | Cafa and Bakery Site area | 6,378.00㎡ Building area | 329.59㎡ Gross floor area | 397.67㎡ Building to land ratio | 5.17% Floor area ratio | 6.24% Building scope | 2F Structure | Lightweight steel frame Exterior finishing | Steel plate, Stainless steel mirror Interior finishing | Water paint, Epoxy coating Design period | Apr. 2017~ May. 2017 Construction period | May. 2017~ Oct. 2017 Photograph | Architects' ID Structural engineer | Gumna structure Mechanical engineer | Gyeonggi ENG Electrical engineer | Gyeonggi ENG |
'회원작품 | Projects > Commercial' 카테고리의 다른 글
| 커빙스케이프 2018.08 (0) | 2022.12.06 |
|---|---|
| 캔버스 2018.08 (0) | 2022.12.06 |
| 지젤엠청라 2018.07 (0) | 2022.12.05 |
| 아라플라자 2018.07 (0) | 2022.12.05 |
| 큐브호텔 리노베이션 2018.02 (0) | 2022.11.09 |