2022. 11. 9. 18:49ㆍ회원작품 | Projects/Commercial
CUBE Hotel Renovation

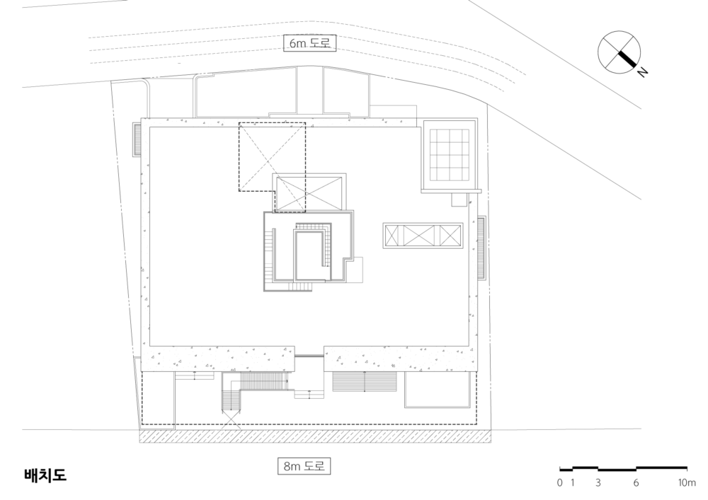
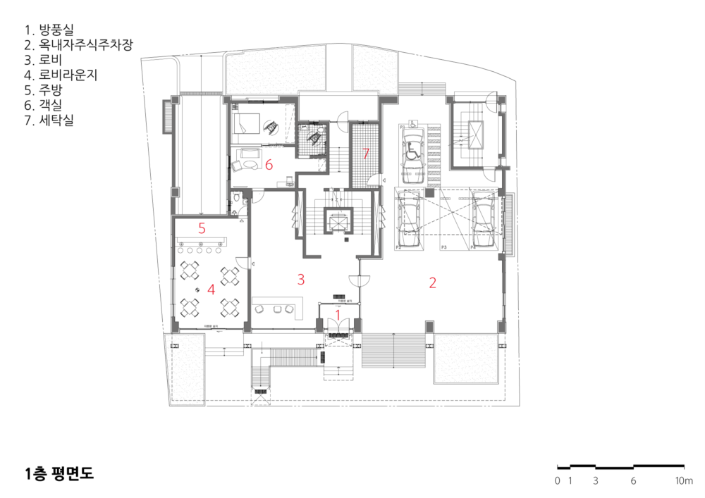
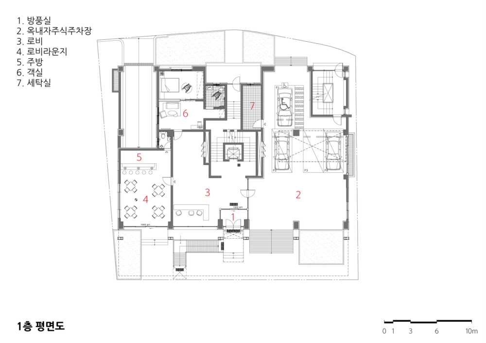
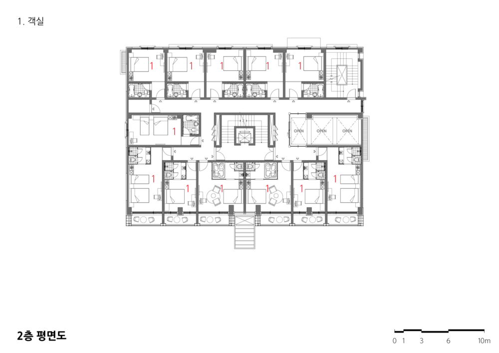
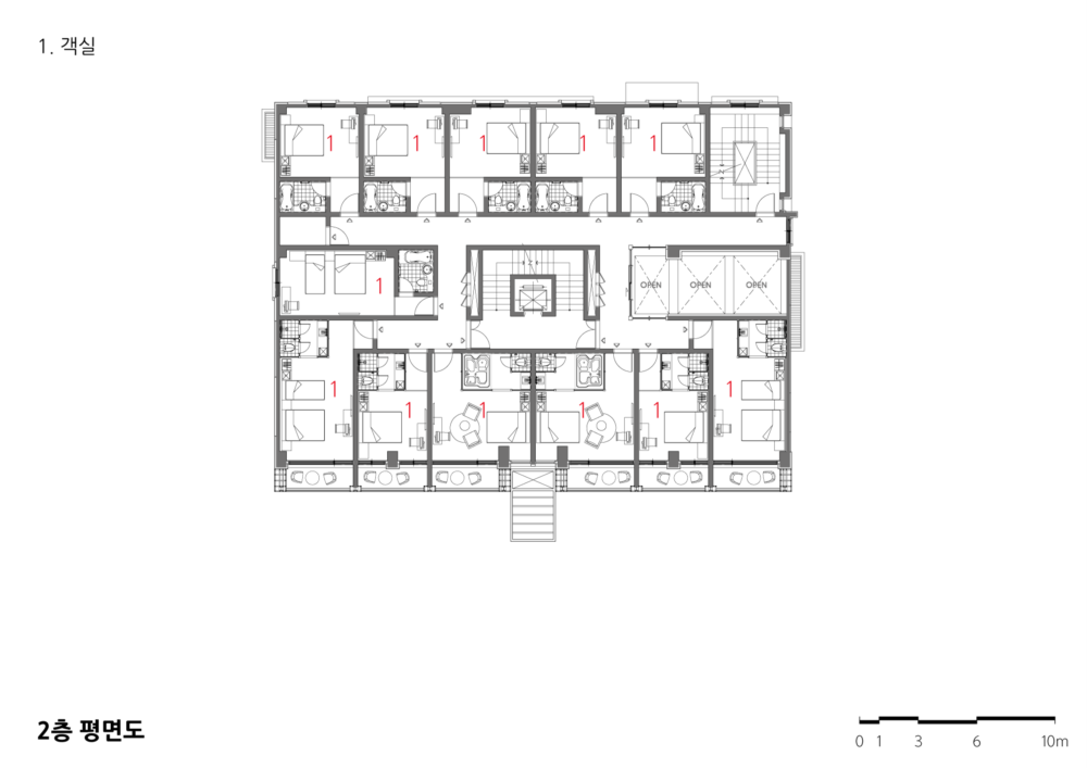
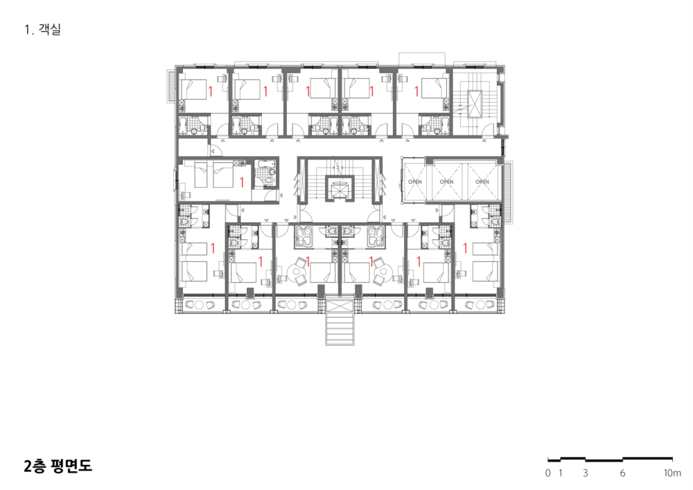
큐브호텔은 리노베이션을 통해 새롭게 탄생한 건물이다. 건물전면은 푸른 경포해변을 바라보고 있고 뒤로는 가까이 경포호수를, 멀리는 대관령을 마주보고 있는 뛰어난 자연경관을 지니고 있다. 큐브호텔의 탄생을 위해 먼저 기존 숙박시설의 중앙코어 우측에 있던 객실을 수직축으로 전 층을 오픈시켜 중정으로 탈바꿈시켰다. 이렇게 확보한 중정은 중복도에 외부와 소통할 수 있는 빛과 바람의 통로를 제공하게 된다. 중정을 만드는 과정에서 자연스럽게 생긴 여유 건축면적은 건축주가 요구한 경포해변 방향으로 향한 발코니를 건물전면에 확보할 수 있게 했다. 이러한 일련의 과정을 통해 직사각형의 비례체계를 적용한 큐브형태의 발코니는 블랙과 화이트칼라의 대비감을 통해 간결하고도 역동적인 외관으로 변신하게 됐다. 특히 옥탑 층에 조성된 휴게공간과 전망대에서 바라보이는 경포호수와 해변의 풍경은 잔잔한 여운을 주고 있다.

Cube Hotel is a newly created building through renovations. The front of the ground commands a superb view of nature, with the coast of Gyeongpo facing the lake and facing the lake behind. For the establishment of the Cube Hotel, a room to the right of the central core of the existing accommodation was opened throughout the entire floor and turned into a courtyard. The courtyard will provide a path for light and wind to interact with the outside. The extra floor area of the courtyard enabled the builders to make the required balcony for the Gyeongpo beach. And the simple and dynamic look was finally accomplished with a cube - shaped foot connie and black versus white collar contrast. In particular, the scenery of Gyeongpo Lake or Beach from the observation deck and the lounge area built on the ground floor of the Okseop give a gentle impression.




















| 큐브호텔 리노베이션 설계자 | 최승용 KIRA _ 명진 건축사사무소 건축주 | 윤덕용 감리자 | 최승용 _ 명진 건축사사무소 시공사 | (주)세상 설계팀 | 최장순, 유복순 대지위치 | 강원도 강릉시 창해로 431 주요용도 | 숙박시설 대지면적 | 795.50㎡ 건축면적 | 473.23㎡ 연면적 | 2699.02㎡ 건폐율 | 59.49% 용적률 | 250.49% 규모 | 지하 1층, 지상 5층 구조 | 철근콘크리트조 외부마감재 | AL판넬, 외단열공법, 실리콘페인트 내부마감재 | AL천장, 세라믹타일, 화강석 설계기간 | 2016 .01 ~ 2016. 04 공사기간 | 2016. 04 ~ 2017. 06 사진 | 제임스 정 구조분야 : 네오이앤아이 설계사무소 기계설비분야 : 신호 ENG 전기분야 : 신호 ENG 소방분야 : 신호 ENG | CUBE Hotel Renovation Architect | Choi, Seungyong _ Myeong Jin Architects Client | Yun, Deokyong Supervisor | Choi, Seungyong _ Myeong Jin Architects Construction | (Co)Sesang Project team | Choi, Jangsoon / Yu, Boksoon Location | 431, Changhae-ro, Gangneung-si, Gangwon-do, Korea Program | Accommodation Site area | 795.50㎡ Building area | 473.23㎡ Gross floor area | 2699.02㎡ Building to land ratio | 59.49% Floor area ratio | 250.49% Building scope | B1F – 5F Structure | RC Exterior finishing | AL panel, Insulation, Silicone paint Interior finishing | AL ceiling, Granite, Ceramic tile Design period | Jan. 2016 ~ Apr. 2016 Construction period | Apr. 2016 ~ Jun. 2017 Photograph | James Jung Structural engineer | NEO ENI Ltd Mechanical engineer | Sin Ho ENG Electrical engineer | Sin Ho ENG Fire engineer | Sin Ho ENG | 
'회원작품 | Projects > Commercial' 카테고리의 다른 글
| 커빙스케이프 2018.08 (0) | 2022.12.06 | 
|---|---|
| 캔버스 2018.08 (0) | 2022.12.06 | 
| 마호가니 카페 강화점 2018.07 (0) | 2022.12.05 | 
| 지젤엠청라 2018.07 (0) | 2022.12.05 | 
| 아라플라자 2018.07 (0) | 2022.12.05 |