2022. 12. 14. 10:20ㆍ회원작품 | Projects/Religious
Yonghyun Churc

전원형 미니 신도시
계획 대상지는 의정부 동남부 초입으로 이전된 미군부대 부지와 자연취락 지 역이 합쳐져 계획된 만가대 지구단위계획구역 내에 입지하고 있다. 주변의 자 연 경관을 품은 전형적인 전원형 미니 신도시로 향후 계획적 개발이 예상되는 지역이다.
버추얼코리도
자연과 친구 되기 위해 대상지 남쪽 수락산을 향해 1층 앞마당과 2층 테라스, 3층 발코니 등 외부공간을 계획해 버추얼코리도를 완성했다. 각층 내부에서 원경은 수락산을, 근경은 정원을 즐길 수 있다.
젠스타일
내·외부 디자인은 본래 용도와 향후 조성될 주변 환경을 고려해 기존 교회와 는 다른 디자인을 적용했다. 전체 매스는 도시적 맥락을 고려해 모던하고 심플 하게 구성했고, 입면은 선적인 요소를 강조하여 경건함과 단아함을 지니도록 했다. 그리고 인테리어는 자연적 느낌의 가구 등 원목자재와 목모보드(흡음재) 를 사용해 여유로움을 주려 했다.
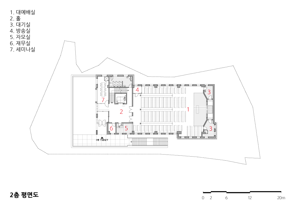
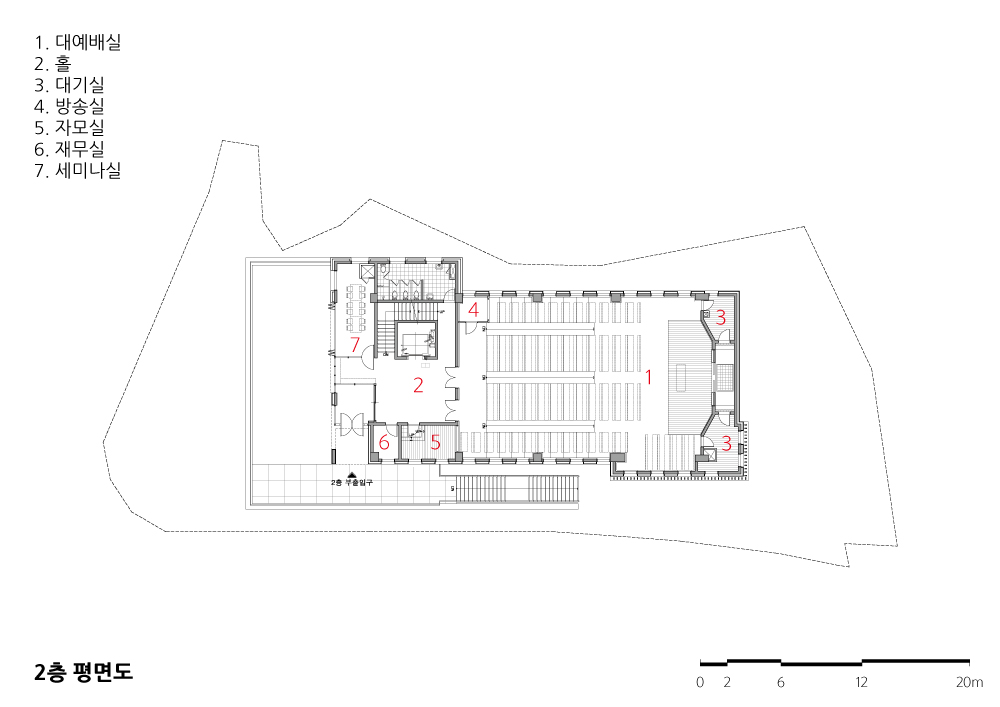
교회건축
교회도 여느 건축물처럼 사람뿐만 아니라 도시와 자연과도 함께 조응할 수 있 어야 한다. 또한 남녀노소 모두에게 열려있어야 한다. 심지어 공공성까지 갖추 어야 한다. 그러나 가장 중요한 것은 교회의 본질인 영성을 훼손하지 말아야 한다. 영성을 훼손하지 않으면서도 주변 환경을 반영하고 교우들의 소망을 담 아내고 사회적 믿음과 인류의 사랑을 실천하는 장이 돼야 한다.

Idyllic Mini New Town
The planned site is located within the Mangadae District Unit Planning Zone planned by combining the US military bases transferred to the southeastern entrance of Uijeongbu and natural settlement area. It is a typical idyllic mini-new town with natural scenery nearby, and is expected to be strategically developed in the future.
Virtual Corridor
In order to be friends with nature, we planned outdoor spaces such as the front yard on the first floor, the terrace on the second floor, and the balcony on the third floor so that they all face southward towards Mt. Suraksan to complete a Virtual Corridor. You can enjoy the distant view of Mt. Suraksan and the close view of gardens indoors at every floor.
Zen Style
The interior and exterior design was differently from the existing church in consideration of the original use and the surrounding environment to be created in the future. The whole mass was constructed modernly and simply and in a modern way considering the urban context, and the elevation was designed to emphasize the element of lines to have piety and simplicity. And the interior was constructed with wooden materials and wood-wool boards (soundabsorbing material), including natural furniture, to give composure.
Church Architecture
The church should be able to accommodate not only man, but also city and nature, like other buildings. It should also be open to men and women of all ages. It must have even publicness. But the most important thing is not to undermine spirituality, the essence of the church. It should be a place that reflects the surrounding environment, realizes the wishes of church members, and practices social beliefs and human love without damaging spirituality.






|
용현교회 설계자 _ Architect. 김민찬 _ Kim, Minchan (주)디에스앤유 종합건축사사무소 _ DSNU Architectural Consultant Co., Ltd 건축주 | 제칠일안식일예수재림교 용현교회 감리자 | 김민찬 _ (주)디에스앤유 종합건축사사무소 시공사 | 김연옥 _ 주석종합건설 주식회사 설계팀 | 곽나영, 변수정, 배지은 대지위치 | 경기도 의정부시 송산로1161번길 147 주요용도 | 종교시설 대지면적 | 1,212.00㎡ 건축면적 | 552.73㎡ 연면적 | 984.85㎡ 건폐율 | 45.60% 용적률 | 81.26% 규모 | 지상 3층 구조 | 철근콘크리트구조 외부마감재 | 화강석, 청고벽돌, 로이복층유리, 현무암 내부마감재 | 화강석, 목모보드, 고무나무 설계기간 | 2017. 01 ~ 2017. 05 공사기간 | 2017. 07 ~ 2018. 05 사진 | 이상재 구조분야 : (주)디에스앤유 종합건축사사무소 기계설비분야 : 제이앤영 엔지니어링 전기분야 : 제이앤영 엔지니어링 |
Yonghyun Church Client | Yonghyun Church Supervisor | Kim, Minchan _ DSNU Architectural Consultant Co., Ltd. Construction | Kim, Yeonok Project team | Kwak, Nayoung / Byeon, Sujeong / Bae Jieun Location | 147, 1161road, Songsan-ro , Uijeongbu, Gyeonggi-do, Korea Program | Religious facilities Site area | 1,212.00㎡ Building area | 552.73㎡ Gross floor area | 984.85㎡ Building to land ratio | 45.60% Floor area ratio | 81.26% Building scope | 3F Structure | RC Exterior finishing | Granite, Cheonggo brick, Low-E double-layer glass, Basalt Interior finishing | Granite, Wood wool boards, Rubber tree Design period | Jan. 2017 ~ May 2017 Construction period | Jul. 2017 ~ May 2018 Photograph | Lee, Shangjae Structural engineer | DSNU Architectural Consultant Co., Ltd. Mechanical engineer | J&Y Engineering Electrical engineer | J&Y Engineering |
'회원작품 | Projects > Religious' 카테고리의 다른 글
| 명례성지 2019.11 (0) | 2023.01.06 |
|---|---|
| 건축사 이희태 2019.4 (0) | 2022.12.19 |
| 제따와나 선원 2019.1 (0) | 2022.12.13 |
| 대한불교조계종 자비선사 템플스테이 호선당 2018.10 (0) | 2022.12.08 |
| 양구중앙교회 2018.07 (0) | 2022.12.05 |