2022. 12. 5. 09:25ㆍ회원작품 | Projects/Religious
Yanggu jungang church

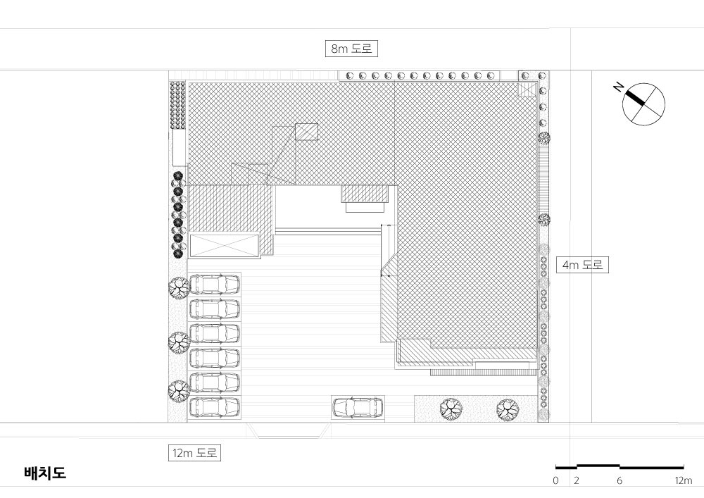
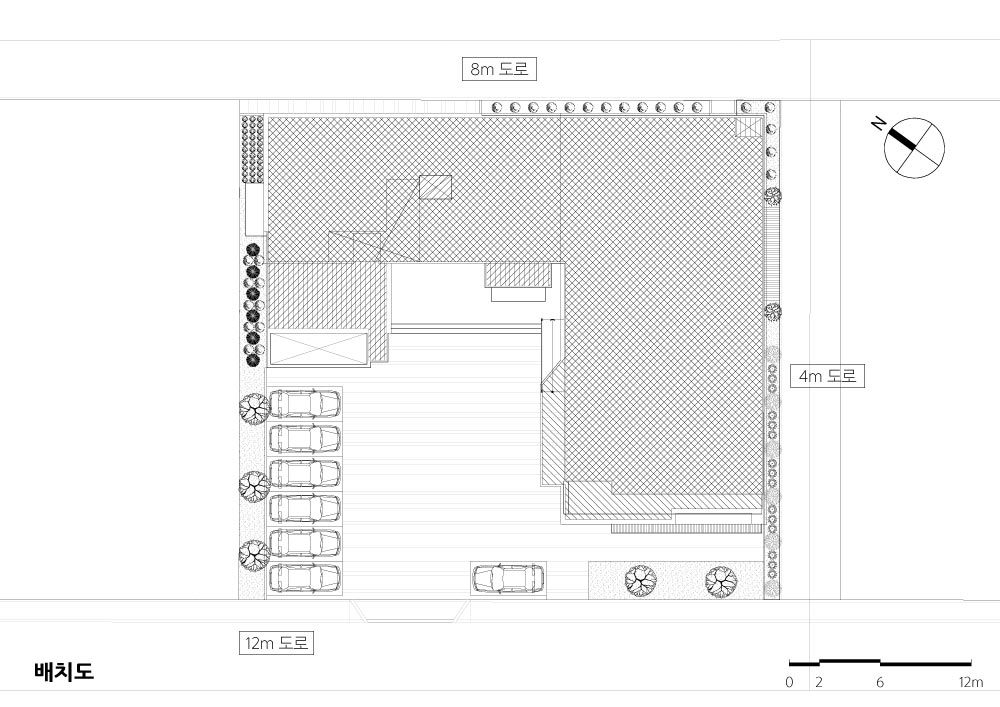
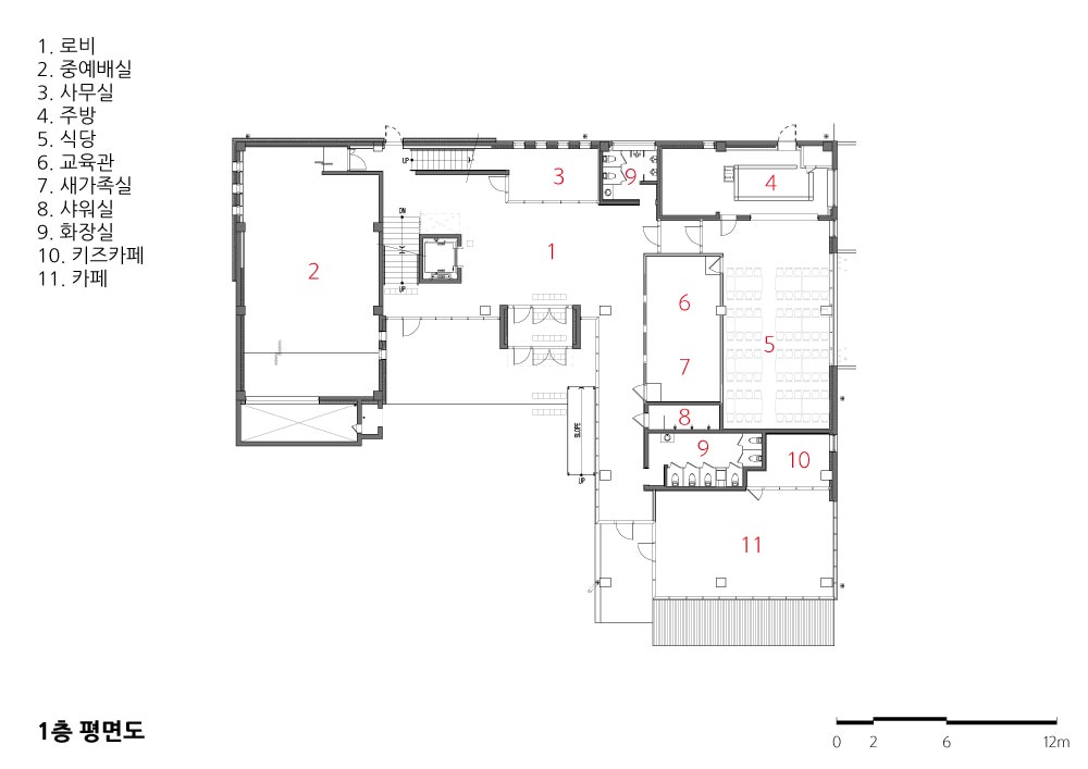
기존 교회가 있던 곳은 시가지의 슬럼화가 진행중이었다. 토지를 매각한 후 새로 개발이 이뤄지고 있는 본 대지는 일반주거지역으로 도시와 양구 특유의 자연환경이 조화롭게 어우러져 있다. 도시계획적 맥락을 고려하여 단아하고 모던하지만 동시에 상징적이고 조형적인 매스감이 느껴지도록 입면을 디자인했다. 노출콘크리트 매스와 강하게 맞물린 어두운 매스는 커튼월디자인으로 누하진입과 떠있는 구조로 계획됐다. 밝고 어두운 재 료의 대비로 건축물의 중요한 색채계획을 의도했다. 매스의 연결은 이어주고 선의 흐름 은 긴장감을 부여하며, 적절한 재료분리를 취하므로 건축미학을 더하고자 했다.

The existing church is the location that the slumming was under processing. the site that sell off the present site and is developed newly is the general residence area, and a city that an unique natural environment of Yanggu is merged harmoniously. The elevation was designed to be felt the sense of mass which is simple and modern, but symbolic and structural simultaneously by considering the city planning context. The mass which is dark and engaged strongly with exposed concrete mass was planned as the entering under the roof with curtain wall design and the floating structure. It was intended an important color plan of the structure with the contrast of bright and dark materials. The inter-connection of mass was connected and the flow of line gives the sense of tension, and the beauty of structure was added due to the division of suitable materials.













|
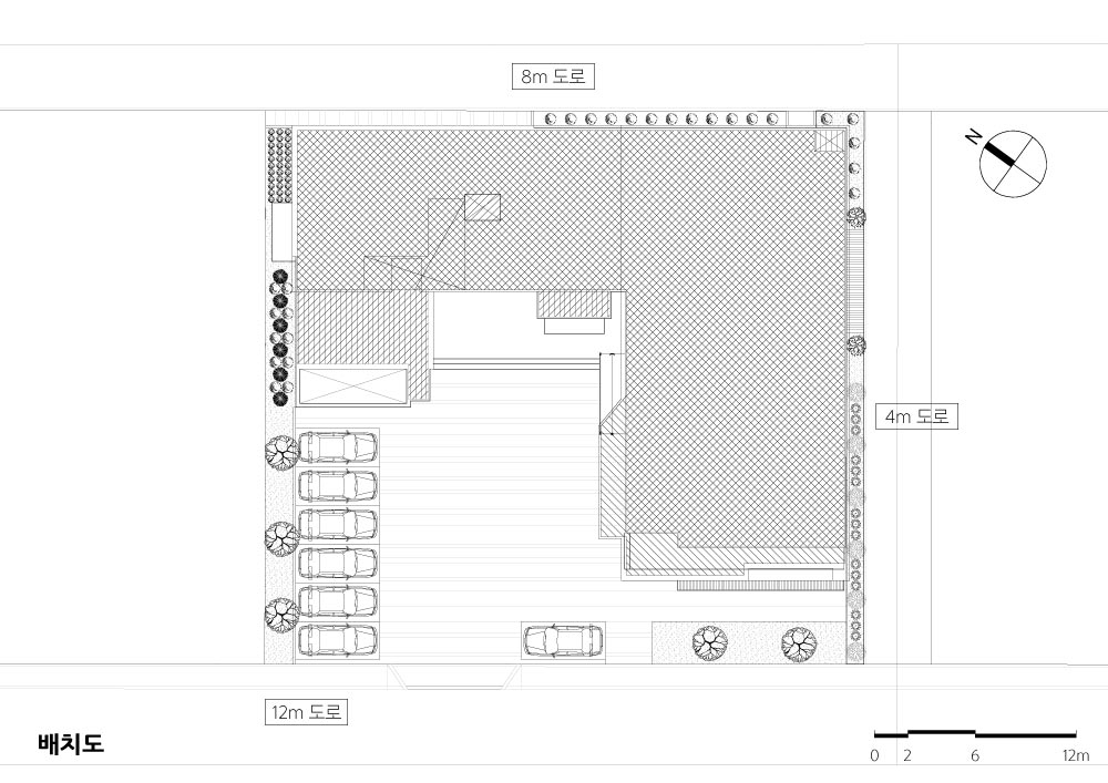
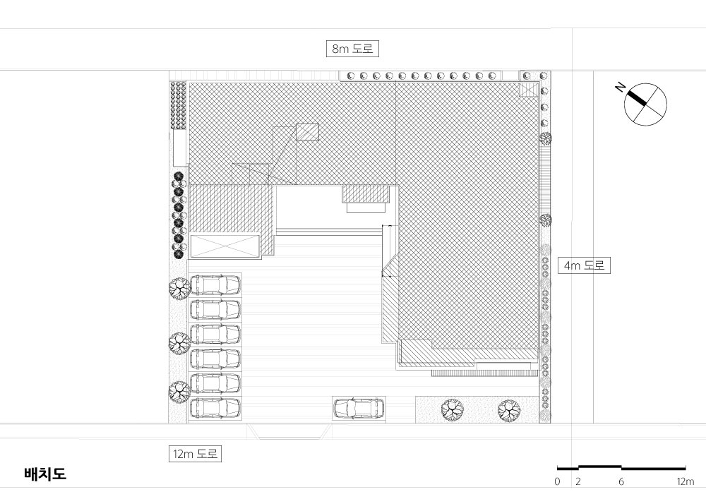
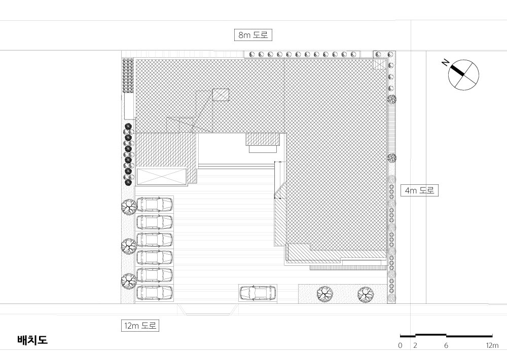
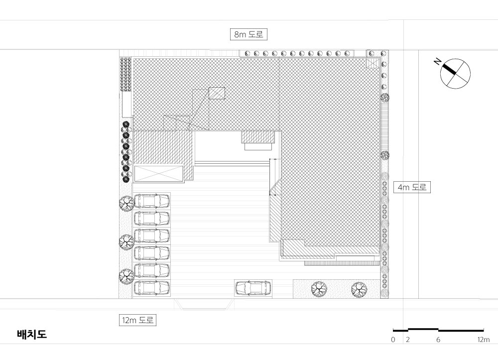
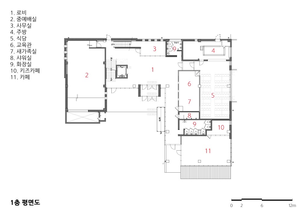
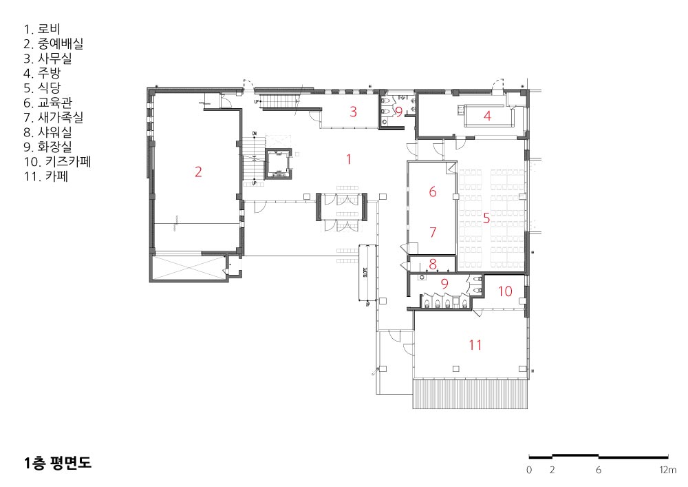
양구중앙교회 설계자 ┃ 양민수 KIRA ┃ (주)아벨 종합건축사사무소 건축주 | 재단법인대한예수교장로회(교신) 총회유지재단 감리자 | (주)형제케이 종합건축사사무소 시공사 | (주)구유종합건설 설계팀 | 조강석, 박진희, 명나영 대지위치 | 강원도 양구군 양구읍 청춘로 82-64 주요용도 | 종교시설 대지면적 | 1,175.40㎡ 건축면적 | 581.65㎡ 연면적 | 1,089.90㎡ 건폐율 | 49.49% 용적률 | 91.07% 규모 | 지하 1층, 지상 2층 구조 | 철근콘크리트조 외부마감재 | 노출콘크리트, 현무암 내부마감재 | 석고보드 위 백색비닐페인트 설계기간 | 2016. 07 ~ 2016. 10 공사기간 | 2017. 03 ~ 2018. 02 사진 | 최정복 구조분야 : (주)다스구조엔지니어링 기계설비분야 : 창이앤씨기술단(주) 전기분야 : (주)천일이앤씨 |
Yanggu jungang church Architect | Yang, Minsu _ Abel General Architect(co.) Client | Juridical Foundation Department of the P.C.K Supervisor | HyeongjaeGeneral Architect Co., Ltd Construction | Goou Construction Co., Ltd Project team | Jo, Gangseok / Bak, Jinhui / Myeong, Nayeong Location | 82-64, Cheongchun-ro, Yanggu-eup, Yanggu-gun, Gangwon-do, Korea Program | Religion facility Site area | 1,175.40㎡ Building area | 581.65㎡ Gross floor area | 1,089.90㎡ Building to land ratio | 49.49% Floor area ratio | 91.07% Building scope | B1F - 2F Structure | RC Exterior finishing | Exposed concrete, Basalt Interior finishing | White vinyl paint finish above Gypsum board Design period | Jul. 2016 ~ Oct. 2016 Construction period | Mar. 2017 ~ Feb. 2018 Photograph | Choi, Jeong-bok Structural engineer | Das Structural engineering Co.,Ltd Mechanical engineer | Chang E&C Technical group Co.,Ltd Electrical engineer | Chunil E&C Co.,Ltd |
'회원작품 | Projects > Religious' 카테고리의 다른 글
| 제따와나 선원 2019.1 (0) | 2022.12.13 |
|---|---|
| 대한불교조계종 자비선사 템플스테이 호선당 2018.10 (0) | 2022.12.08 |
| 샘물교회 2018.07 (0) | 2022.12.05 |
| 월랑성당 2018.06 (0) | 2022.12.02 |
| 빛들의 교회 2018.01 (0) | 2022.11.07 |