2022. 12. 2. 18:17ㆍ회원작품 | Projects/Religious
Wollang Church

월랑성당은 6.25때 피난 온 한 신자분이 이곳 아산시 월랑리에 정착하며 시작한 신앙 공 동체를 모태로 한다. 그리 많지 않은 신자들로 구성된 공동체임에도 깊은 신앙심으로 공 소에서 현재에 이르는 월랑성당은 지역의 신앙공동체가 신앙을 통해 어떻게 성장해 갈 수 있는지 잘 보여주고 있다.
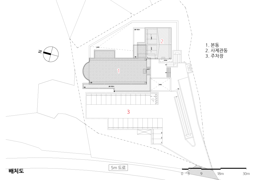
성당은 월랑리 들판의 한편에 자리하여 주변 구릉의 자그만 시골집들과 함께 하고 있다. 되도록 지형 가운데 도드라지지 않고, 남측에 면한 야트막한 야산이 성당부지 내로 자연 스럽게 스며들 수 있도록 배치하여 산과 들 그리고 시골마을을 연결시켜주는 매개체가 되게 하였다. 그래서 성전 문을 나서면 눈 앞에 자연이 펼쳐질 수 있도록 하고, 사무실, 교리실 등을 낮게 배치하여 전체적으로 지형에 순응할 수 있도록 하였다.
그리이스의소박한지역건축에대한경외감으로부터시작한이성당의외형은‘다볼산의예수’ 라는성경의이야기를모티브로예수님과성경속다섯인물을십자가로등장시켜구성하였다.

Wollang Cathedral is a community of believers who took refuge because of the Korean War and started settling in Wollang-ri, Asan-si. Even though today it is a community composed of few believers, it shows how the community of a region can grow through deep faith.
The cathedral is located on one side of the Wollang-ri field and is surrounded by little cottages in the surrounding hills. The layout was planned to allow the low hills facing the south to harmonize naturally within the site of the cathedral, rather than outstanding in the middle of the terrain so that it became a mediator to connect mountains, fields and rural villages.If you walk out the door, you will be able to see nature unfold before your eyes, and the low height of offices and doctrine rooms were designed to harmonize with overall terrain.
Starting from awe of the rustic regional architecture of Greece, the cathedral's appearance was based on the story of the Bible, "Jesus on Mount Tabor", by showing Jesus and five Biblical figures as crucifixes.








| 월랑성당 설계자 ┃ 최현규 KIRA ┃ M.A.C.K 건축사사무소 건축주 | 재단법인 대전교구천주교회유지재단 감리자 | 최현규 _ M.A.C.K 건축사사무소 시공사 | 스타종합건설 설계팀 | 윤석준, 임우석 대지위치 | 충청남도 아산시 음봉면 월암로 64-33 주요용도 | 종교시설 대지면적 | 3,248.00㎡ 건축면적 | 790.02㎡ 연면적 | 1,060.30㎡ 건폐율 | 24.32% 용적률 | 32.64% 규모 | 지상 2층 구조 | 철근콘크리트조 외부마감재 | 치장벽돌 내부마감재 | 목재, 석고보드, 치장벽돌 설계기간 | 2016. 05 ~ 2016. 09 공사기간 | 2016. 09 ~ 2018. 09 사진 | 최현규 구조분야 : 단구조 기계설비분야 : 가람설비 전기분야 : 상아전기 소방분야 : 가람설비 / 상아전기 인테리어 : 이도플래닝 |
Wollang Church Architect | Choi, Hyunkyu _ M.A.C.K architect’s office Client | Daejeon Catholic Supervisor | Choi, Hyunkyu _ M.A.C.K architect’s office Construction | Star Construction Project team | Yoon, Seokjun / Lim, Wooseok Location | 64-33, Woram-ro, Eumbong-myeon, Asan-si, Chungcheongnam-do, Korea Program | Religious facility Site area | 3,248.00㎡ Building area | 790.02㎡ Gross floor area | 1,060.30㎡ Building to land ratio | 24.32% Floor area ratio | 32.64% Building scope | 2F Structure | RC Exterior finishing | Brick Interior finishing | Wood, Gypsum board, Brick Design period | May. 2016 ~ Sep. 2016 Construction period | Sep. 2016 ~ Sep. 2018 Photograph | Choi, Hyunkyu Structural engineer | Dan engineering Mechanical engineer | Ga-ram mechanic eng Electrical engineer | Sang-A electric eng Fire engineer | Ga-ram / Sang-A electric eng Interior | IDO Planning |
'회원작품 | Projects > Religious' 카테고리의 다른 글
| 제따와나 선원 2019.1 (0) | 2022.12.13 |
|---|---|
| 대한불교조계종 자비선사 템플스테이 호선당 2018.10 (0) | 2022.12.08 |
| 양구중앙교회 2018.07 (0) | 2022.12.05 |
| 샘물교회 2018.07 (0) | 2022.12.05 |
| 빛들의 교회 2018.01 (0) | 2022.11.07 |