2022. 12. 14. 10:22ㆍ회원작품 | Projects/House
Baegun-dong Housing(White nest)

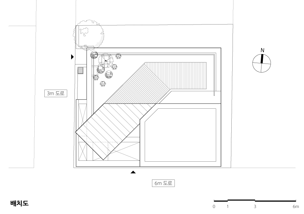
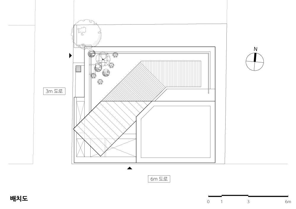
백운동주택은 원도심 일원인 광주광역시 남구 백운동 단독주택지 내 위치한 다. 30∼40년 된 오래된 적벽돌 주택과 무분별하게 들어선 원룸 일색인 동네 에서 대안적 주거유형으로서 그 가능성을 드러내고자 했다.
화가 부인과 건축사 남편, 그리고 이제 갓 18개월 된 어린아이의 보금자리로 지어진 이 공간은 천편일률적인 거주환경으로부터 자발적 유배를 선언한 부부 의 삶에 대한 남다른 가치관을 투영하고 있다. 환금성이 떨어지더라도 아이들 이 자유롭게 뛰어놀고 유년기의 추억에 남다르게 각인될 환경을 제공하고, 브 랜드와 규모, 그리고 지역으로 가치평가 되는 공급자의 논리에 맞서 가족의 정 체성을 가장 우위에 두는 선택을 한 것이다.
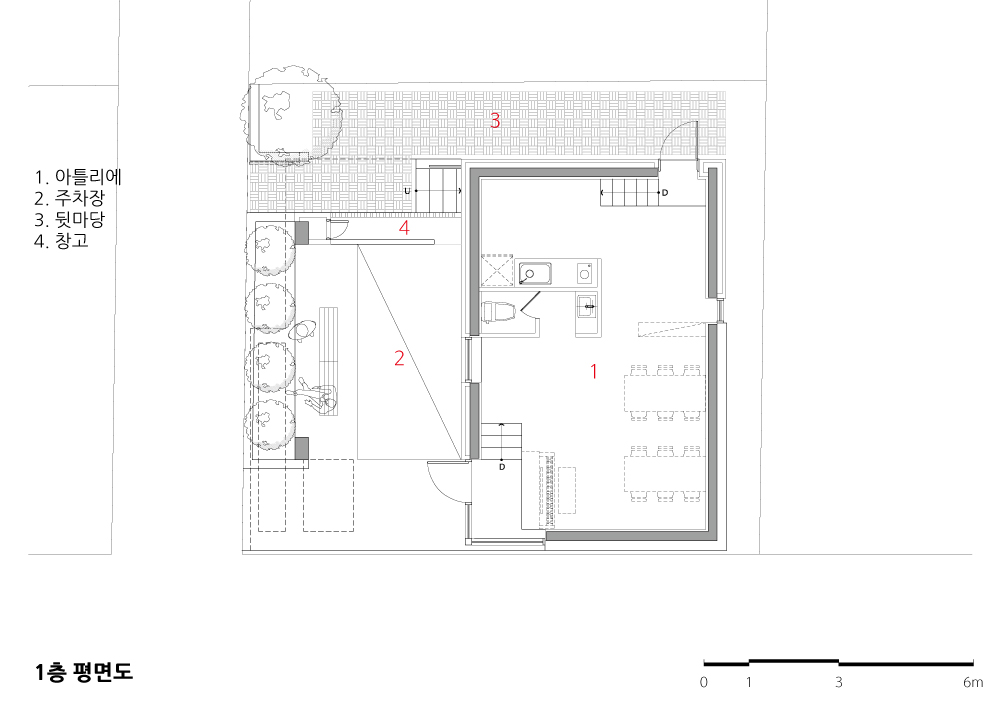
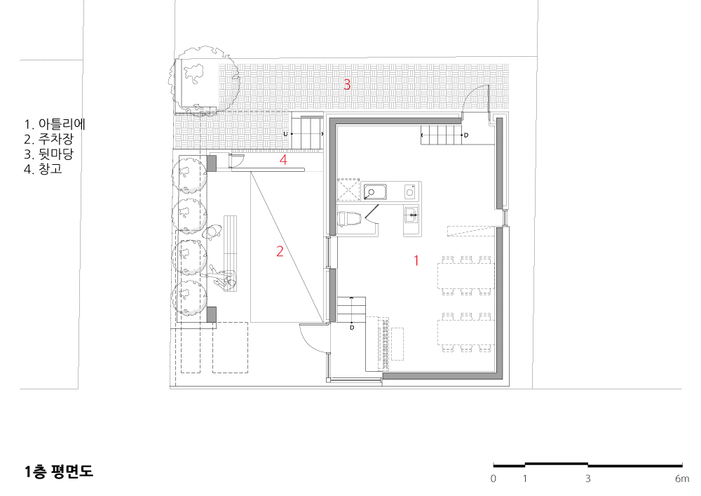
집의 공간 구성은 가족 구성원들이 꿈꾸던 삶의 모습을 담아낼 수 있게 맞춤형 으로 설계됐다. 어려서부터 미술을 전공한 화가가 작품활동을 지속할 수 있도 록 마련된 아뜰리에 공간, 좁은 대지에서 최대한 개방적인 내·외부공간을 구현 하기 위해 설치된 가벽과 복층 공간, 아이가 자라면서 점차 용도와 형태를 달 리하며 쓰이게 될 다목적 공간, 근처 푸른길 공원과 멀리 무등산을 조망하고 옥상의 활용도를 높여 줄 그늘 공간 등은 이 조밀한 집의 가장 특징적인 부분 이다.
특히 남서측의 가벽은 직사광선을 차단하고 반사광이 유입된 밝고 부드러운 실 환경을 연출하며, 하늘과 산의 풍경을 조망하는 소소한 일상의 즐거움을 제 공한다. 일부 단면에 적용된 스킵플로어 기법은 일조권 적용지역에서 최대한 다양한 볼륨을 지닌 단면을 만들어 내고, 시각적으로 넓은 공간을 연출한다.

Baegun-dong Housing is located in the detached housing area at Nam-gu(southern part) which is the original downtown of the metropolitan city. And it intended to unfold the possibility as an alternative type of residence in the town that is prevailed with the 30 to 40 years old red brick houses and indiscreetly built one-rooms. This space that has been built as a nest for the wife, a painter, and the husband, an architect, and their child who is just 18 months old, is reflecting the different sense of value toward the life of the couple who declared the voluntary exile from the monotonous residential environment. Even lower marketability, they made a choice that provides an environment where their children can play freely and the memories of childhood may be engraved differently, and that puts family's identity first rather than the provider’s theory that brand, size and region are valued.
The space composition of the house was designed customizing to reflect the appearance of the life their family members had been dreaming of. The atelier space designed to enable the artist who majored in fine arts since early childhood to continue her art activities, the free-standing wall and double-layer space installed to realize inner and outer spaces as open as possible in a narrow site, the multipurpose space that will be used gradually in different purposes and shapes as the child grows, the shade space to enhance the utilization of the rooftop overlooking Mudeungsan Mountain and the nearby purungil park(Greenway Park), etc. are the most characteristic parts of this compact house. In particular, the freestanding wall in the south west shields direct sunlight, creates a bright and soft indoor environment with reflected light, and provides small pleasure of everyday life taking a view of the sky and mountain scenery. The skip floor technique applied to some cross sections creates a section with as many volumes as possible in the area where the right to enjoy sunshine is applied, and it creates a visually large space.







| 백운동주택(백소헌) 설계자 _ Architect. 임태형 _ Lim, Taehyung (주)건축사사무소 플랜 _ PLAN Architects office Co., Ltd. 건축주 | 임태형, 윤다미 감리자 | 임태형 _ (주)건축사사무소 플랜 시공사 | 임태형 설계팀 | 조하니, 김예은 대지위치 | 광주광역시 남구 백운로5번길 14-1 주요용도 | 단독주택, 근린생활시설(교습소) 대지면적 | 121.50㎡ 건축면적 | 72.51㎡ 연면적 | 183.41㎡ 건폐율 | 59.68% 용적률 | 150.95% 규모 | 4층 구조 | 철근콘크리트조 외부마감재 | 스톤코트, 적고벽돌, 스테인리스 부식강판, 칼라로이복층유리 내부마감재 | 친환경 도장, 친환경 벽지, 강마루 설계기간 | 2015. 11. ~ 2016. 02. 공사기간 | 2016. 03. ~ 2016. 09. 사진 | 윤준환 전문기술협력 구조분야 : (주)정구조엔지니어링 기계설비분야 : 플랜이엔지 전기분야 : (주)조은 엔지니어링 소방분야 : (주)조은 엔지니어링 |
Baegun-dong Housing(White nest) Client | Lim, Taehyung / Yoon, Dami Supervisor | Lim, Taehyung _ PLAN Architects office Co.,Ltd Construction | Lim, Taehyung Project team | Jo, Hanne / Kim, Yeeun Location | 14-1, Baegun-ro 5-gil, Nam-gu, Gwangju, Korea Program | House, Neighborhood facility Site area | 121.50㎡ Building area | 72.51㎡ Gross floor area | 183.41㎡ Building to land ratio | 59.68% Floor area ratio | 150.95% Building scope | 4F Structure | RC Exterior finishing | Stone coat, red brick, Corroded stainless steel sheet, Color low-e paired glass Interior finishing | Eco-friendly paint, Eco-friendly wall paper, laminate floor Design period | Nov. 2015 ~ Feb. 2016 Construction period | Mar. 2016 ~ Sep. 2016 Photograph | Yoon, Joonhwan Structural engineer | Jung Structural Engineer Co., Ltd. Mechanical engineer | Plan ENG Electrical engineer | Joeun Engineer Co., Ltd. Fire engineer | Joeun Engineer Co., Ltd |
'회원작품 | Projects > House' 카테고리의 다른 글
| 집_에뚜왈 2019.2 (0) | 2022.12.14 |
|---|---|
| bi-house 2019.2 (0) | 2022.12.14 |
| 에멜무지로 2019.2 (0) | 2022.12.14 |
| 빌라지 2019.1 (0) | 2022.12.12 |
| 피시팜 하우스 2019.1 (0) | 2022.12.12 |