2022. 12. 12. 10:27ㆍ회원작품 | Projects/House
Villa G

대지는 오랜 기간 이어지던 재개발 사업이 취소된 후, 건축업자에 의해 똑같은 모습의 다세대주택으로 바뀌어가는 것을 안타까워하는 건축주의 의뢰에서 시 작됐다. 건물은 코너에 위치한 부지의 특성에 맞추어 곡선의 형태로 계획했으 며, 되도록 각 집마다 작은 테라스를 두어 집에서 골목길의 풍경이 더 가깝게 다 가오고 지나가는 주민과 인사라도 나눌 수 있도록 했다. 이런 모습이 된다면 동 네의 풍경이 더 친근하게 남을 것 같았다.
2, 3층 코너에는 양쪽 골목길을 볼 수 있는 발코니를 두었고 북측의 경우 면적과 이웃집과의 프라이버시를 고려해 포켓모양의 발코니를 특성에 맞게 적용했다. 5 층에는 바닥면적은 작지만 다락을 이용한 복층세대를 계획하여 높고 시원한 공 간을 품을 수 있게 했다. 또 동선이 외부 테라스 정원으로 연결되도록 계획했다. 건물의 입면에서 중요한 요소인 창문은 각층의 평면에 따라 최적의 위치에 계 획됐으나 입면에서는 불규칙한 모습으로 나타나게 되는데, 연속적이면서 대비 가 되는 수평띠를 창문높이에 맞춰 디자인함으로써 건물 전체를 인식하는 통일 된 입면과 골목길과 반응하는 특별한 리듬감을 줄 수 있도록 했다.
개발 논리가 우선할 수밖에 없는 다세대주택이지만 약간의 변화를 통해 주변과 반응하고 골목길의 풍경을 더 풍요롭게 만들 수 있었으면 좋겠다.

Description of the Work After the cancellation of the long-suspended urban redevelopment, most of the neighbourhood buildings have been changed into stereo-typed multi-family housings. The owner of the project asked to design something out of the stereo-type. The architect intended to make the atmosphere of the neighbourhood more friendly by designing a terrace for each unit, where residents can enjoy the scenery of streets and greet with neighbors. It is also articulated into a curved geometry at the corner according to the characteristics of the site. And it has balconies at the corner of the 2nd and 3rd floors to see streets at both directions. At the north corner, it has the pocket-shaped balconies for the privacy and the more floor areas. Although the floor area of the 5th floor is small, it is a double-spacious loft, where you can go to the terrace garden directly. For the elevation, the windows are located irregularly to avoid monotonous facade, and the continuous and contrasting horizontal strips are designed at the heights of the windows in order to make the consistency with the unique rhythm in the entire building.
Although the priority is in profitability normally in multifamily housings in Seoul, the architect pursues the better neighbourhood by adding architectural flavors in designing.







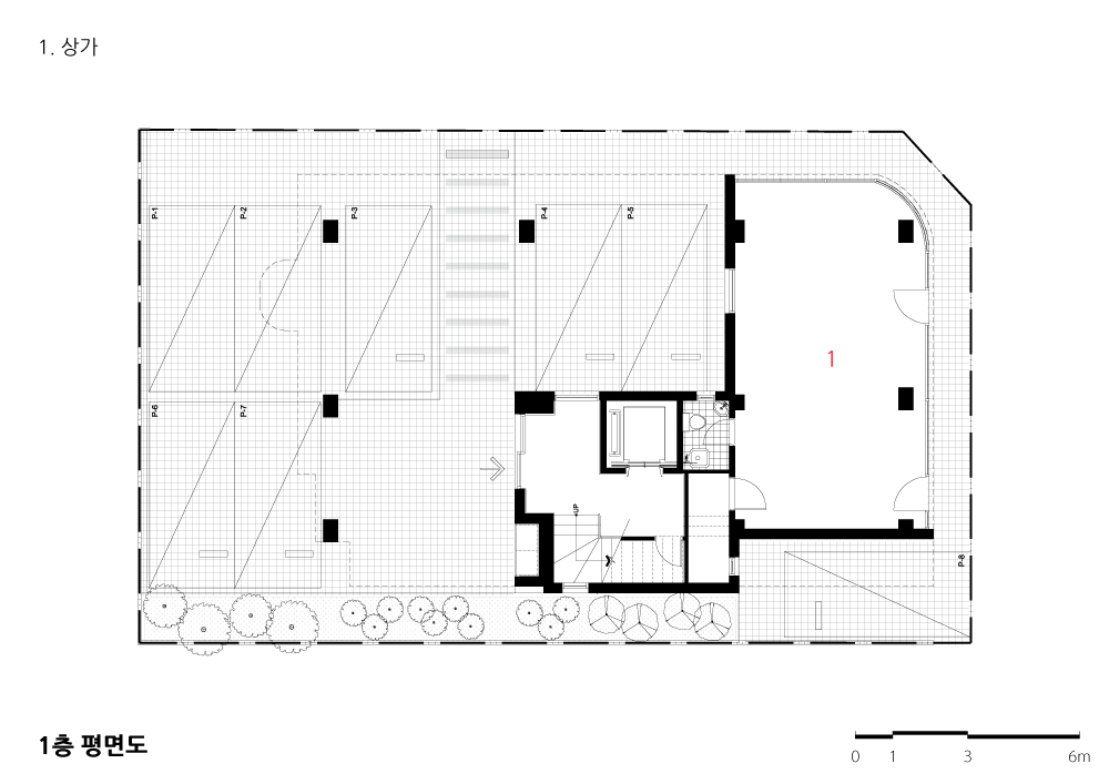
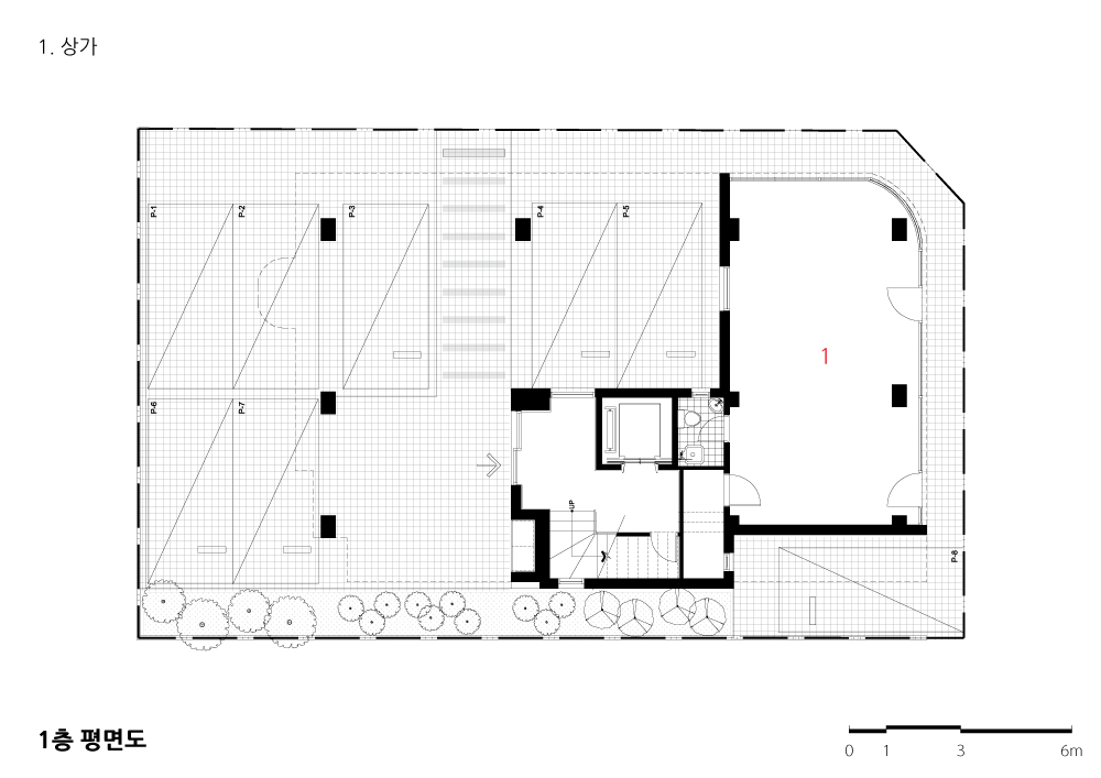
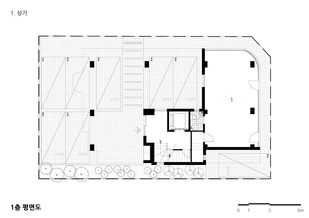
| 빌라지 설계자 _ Architect. 유경동 _ You, Kyungdong 이이케이 건축ㅅ사사무소 _ eek ARCHITECTS 건축주 | 유태후 감리자 | 유경동 _ 이이케이 건축사사무소 시공사 | (주)동명건설 설계팀 | 김준기 대지위치 | 경기도 부천시 부천로121번길 24-3 주요용도 | 근린생활시설, 공동주택(다세대) 대지면적 | 303.50㎡ 건축면적 | 173.74㎡ 연면적 | 641.39㎡ 건폐율 | 57.25% 용적률 | 211.33% 규모 | 지상 5층 구조 | 철근콘크리트조 외부마감재 | 벽돌타일 및 외단열마감 내부마감재 | 우드플로어링, 석고보드 위 실크벽지, 석고보드 위 천장지 설계기간 | 2015. 11 ~ 2016. 02 공사기간 | 2016. 04 ~ 2016. 12 사진 | 이남선 전문기술협력 구조분야 : SWJ 기계설비분야 : (주)대광엔지니어링 전기분야 : (주)대광엔지니어링 소방분야 : (주)대광엔지니어링 |
Villa G Client | You, Taehoo Supervisor | You, Kyungdong _ eek ARCHITECTS Construction | DONG MYUNG CONST. Project team | Kim, Junki Location | 24-3, Bucheon-ro 121beon-gil, Bucheon-si, Gyeonggi-do, Korea Program | Neighborhood facility, Multi-family housing Site area | 303.50㎡ Building area | 173.74㎡ Gross floor area | 641.39㎡ Building to land ratio | 57.25% Floor area ratio | 211.33% Building scope | 5F Structure | RC Exterior finishing | Bric tile, Stucco Interior finishing | Wood flooring, Gypsum board + Wallpaper Design period | Nov. 2015 ~ Feb. 2016 Construction period | Apr. 2016 ~ Dec. 2016 Photograph | Lee, Namsun Structural engineer | SWJ Mechanical engineer | DaeGwang Engineering Electrical engineer | DaeGwang Engineering Fire engineer | DaeGwang Engineering |
'회원작품 | Projects > House' 카테고리의 다른 글
| 백운동주택(백소헌) 2019.2 (0) | 2022.12.14 |
|---|---|
| 에멜무지로 2019.2 (0) | 2022.12.14 |
| 피시팜 하우스 2019.1 (0) | 2022.12.12 |
| 동광1 주거환경개선사업 공동주택 신축공사 공모 2018.12 (0) | 2022.12.11 |
| 안산 K 하우스 2018.10 (0) | 2022.12.08 |