2022. 12. 12. 10:25ㆍ회원작품 | Projects/House
Fish Farm House

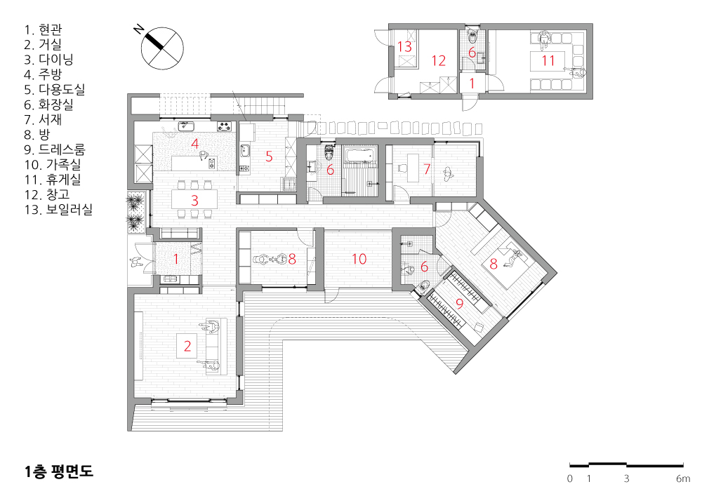
경상남도 거제시 가배리라는 작은 어촌 마을에 있는 부지는 동망산 산 자락에 있어 조용하고 경치가 좋으며, 무엇보다도 운치 좋은 바다가 시원하게 보인다. 건축주는 현재 통영에 거주하지만 고향인 이곳에서 양식업을 하는 부부이다. 노모를 모시고 함께 노후를 보낼 집을 계획 하던 중 딸의 권유로 건축사를 만나 조금은 특별한 집을 짓기로 했다.
건축주에게 바다는 고향이고 삶의 터전이며 생활이다. 그래서 집은 무 엇보다 바다와의 관계에 가장 큰 비중을 두었다. 바다와 함께 호흡하 는 쉼터가 될 수 있도록 바다를 향해 개방적이고 열려있는 구조로 했 다. 그리고 단층으로 계획하여 후면의 갈대숲과 그 너머의 동망산을 건물의 배경으로 차용했다.
노출 콘크리트의 경우 현 동네에서 그동안 사용되지 않은 이질적인 재 료인데, 비교적 익숙한 석재와 목재를 함께 사용하여 조화와 대비를 통해 친숙하게 보이도록 했다. 그리고 각각의 재료가 가진 물성이 잘 표현될 수 있도록 디테일을 살리는 데 많은 노력을 들였는데, 부지런 히 현장을 다니면서 시공자와 끊임없이 대화와 협력을 시도하여 하나 씩 구현할 수 있었다.

The land available for the new building is located in the foothills of the Mt. Dongmang in a small village called Gabaeri in Geoje, Gyeongsangnam-do. This place is quiet and its scenery is really beautiful and, moreover, possesses a charm of its own since it has a sea view. The building owners are a couple who currently live in Tongyeong but operate a fish farm here. They were planning to build a house to live with elderly mother and their daughter and met an architect on the recommendation of their daughter to start to build a little special house.
For the client, the sea means home, ground for living and life. So above all, the greatest focus was set on their relationship with the sea. 'Younghaeawon(迎海雅院)' which represent a house greeting sea was made into structure open to the sea in order to be a shelter to keep in tune with the sea. As a one-storied house, reed field in the rear of house and Mt. Dongmang beyon were used as a background.
In the case of exposed concrete, it is far unused material in this fishing village. However, I used combination of familiar materials e.g. stone and wood in order to look familiar. It requires much efforts for me to pay attention in detail to express each property of matter. Through many discussions and cooperation with contractors, it was realized one by one gradually.









| 피시팜 하우스 설계자 _ Architect. 이중희 _ Lee, Junghee 투엠투 건축사사무소 _ 2M2 Architects 건축주 | 박상종, 김복영 감리자 | 이중희 _ 투엠투 건축사사무소 시공사 | 박영석 대지위치 | 경상남도 거제시 동부면 거제남서로 2290-8 주요용도 | 단독주택 대지면적 | 995.00㎡ 건축면적 | 265.93㎡ 연면적 | 242.35㎡ 건폐율 | 26.73% 용적률 | 24.36% 규모 | 지상 1층 구조 | 철근콘크리트조 외부마감재 | 송판무늬 노출콘크리트, 라임스톤, 멀바우 내부마감재 | 석고보드 위 수성페인트, 라임스톤 설계기간 | 2015. 01 ~ 2015. 04 공사기간 | 2015. 10 ~ 2016. 04 사진 | 신경섭 전문기술협력 구조분야 : SDM 기계설비분야 : (주)하나기연 전기분야 : (주)하나기연 소방분야 : (주)하나기연 | Fish Farm House Client | Park, Sangjong / Kim, Bokyoung Supervisor | Lee, Junghee _ 2m2 Architects Construction | Park, Youngsuk Location | 2290-8, Geojenamseo-ro, Dongbu-myeon, Geoje-si, Gyeongsangnam-do, Korea Program | house Site area | 995.00㎡ Building area | 265.93㎡ Gross floor area | 242.35㎡ Building to land ratio | 26.73% Floor area ratio | 24.36% Building scope | 1F Structure | RC Exterior finishing | Pine-wood texture exposed concrete, Lime stone, Merbau Interior finishing | Paint on plasterboard, Lime stone Design period | Jan. 2015 ~ Apr. 2015 Construction period | Oct. 2015 ~ Apr. 2016 Photograph | Shin, Kyungsub Structural engineer | SDM Mechanical engineer | Hana Consulting Engineers Electrical engineer | Hana Consulting Engineers Fire engineer | Hana Consulting Engineers | 
'회원작품 | Projects > House' 카테고리의 다른 글
| 에멜무지로 2019.2 (0) | 2022.12.14 | 
|---|---|
| 빌라지 2019.1 (0) | 2022.12.12 | 
| 동광1 주거환경개선사업 공동주택 신축공사 공모 2018.12 (0) | 2022.12.11 | 
| 안산 K 하우스 2018.10 (0) | 2022.12.08 | 
| 위례 단독주택 (工자집) 2018.10 (0) | 2022.12.08 |