2022. 12. 23. 13:20ㆍ회원작품 | Projects/House
Urban Terrace

어반테라스는 대구광역시 수성구 범어동에 위 치한 여러 개의 테라스를 가진 상가주택이다. 대지는 대구의 중요한 대로 중 하나인 동대구 로의 이면도로에 위치한다. 주변상황은 기존 에 있던 낡은 단독주택과 연립주택이 주상복 합건축물과 오피스로 바뀌어가고 있는 과도 기적 상황에 있다. 우리는 과밀의 대도시에서 살아가는 이들을 위한 대안적 건축물이 되길 바라며 어반테라스를 설계했다. 중간적 성격 을 갖는 외부공간의 가능성을 그 대안으로 검 토하며 디자인했다.
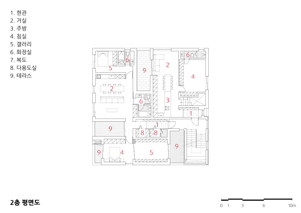
중간적 외부공간은 실내공간에 인접 배치되 어, 내·외부를 이어주는 역할을 하는 공간으 로서 중정, 데크, 그리고 테라스 등이 포함된 다. 이러한 외부공간은 계획방식에 따라 주거 공간의 프라이버시를 보호할 수 있으며, 처마 확보를 통한 계절에 맞는 일사량을 획득 할 수 있게 한다. 또한 외부로 확장된 내부의 공 간감으로 더욱 넓은 실내의 공간감을 만들어 낸다. 1층은 임대목적의 근린생활시설로 계 획되었으며, 2층과 3층은 건축주 내외와 2 명의 자녀가 거주하게 될 복층형 주택 1가구 와 건축주 부모님 내외가 거주하게 되는 1가 구를 합해 2가구로 계획됐다. 요구조건을 수 렴함과 동시에 테라스를 군데군데 배치하여, 답답하지 않고 열려있는 공간이 되도록 계획 했다.
외부에서 보여지는 형태는 이처럼 건축주의 요구사항과 요구사항 사이에 테라스 끼워넣 기 방식의 결과이다. 건축주는 내·외부 모두 백색으로 마감되기를 선호했다. 백색을 사용 하되 재료의 물성과 마감재가 설치되는 위치 를 고려하여 스타코, 아연도강판, 알루미늄루 버를 적절히 사용하여 마감했다.

URBAN TERRACE is a commercial house with several terraces located in Beomeo-dong, Suseong-gu, Daegu
The site is located on the narrow street to Dongdaegu-ro, one of the most important streets in Daegue. Its surroundings are in a transitional situation where old single-family houses and multi-family houses have been replaced by residential and commercial buildings and offices. We designed URBAN TERRACE, hoping that it will be an alternative building for those living in overcrowded metropolises. We designed considering the possibility of outdoor space with an intermediate character as the alternative.
Intermediate outdoor space is placed adjacent to indoor space, and courtyards, decks, and terraces are included to serve as a space for interconnecting the interior and the exterior. This outdoor space can protect the privacy of residential space according to the planning method, and it can acquire solar radiation suitable for seasons through the securing of eaves. In addition, wider indoor space that expands to outdoor space creates the spacious interior. The first floor is planned to be a neighborhood living facility for rent, and the second and third floors are planned to include two houses: one duplex house where the client’s couple and their two children will reside, and the other where the client's parents will live. Based on the client’s requirements, terraces were placed in different places to make space uninterrupted and open. The external appearance is the result of the way of putting terraces between the client's requirements. The client preferred to make both interior and exterior white finished. White was used but stuco, galvanized steel sheet and aluminum louver were properly used considering the physical properties of materials and the location of finishing materials









| 어반테라스 설계자 | 김건철_스마트 건축사사무소 건축주 | 김점남 감리자 | 김건철 _ 스마트 건축사사무소 시공사 | 김점남 설계팀 | 이승은, 김종규, 배춘근 대지위치 | 대구광역시 수성구 동대구로17안길 13 주요용도 | 다가구주택 대지면적 | 331.20㎡ 건축면적 | 251.22㎡ 연면적 | 484.06㎡ 건폐율 | 75.85% 용적률 | 146.15% 규모 | 지상 3층 구조 | 철근콘크리트조 외부마감재 | 외단열공법피니쉬마감, 아연도강판 내부마감재 | 강마루, 수성페인트, 벽지 설계기간 | 2017. 01 ~ 217. 06 공사기간 | 2017. 06 ~ 2018. 03 사진 | 윤동규 전문기술협력 구조분야 : 보루구조 기계설비분야 : 한국기연 전기분야 : 우진전기 |
Urban Terrace Architect | Kim, Guncheol_ SMART Architectur Client | Kim, Jeomnam Supervisor | Kim, Guncheol _ SMART Architecture Construction | Kim, Jeomnam Project team | Lee, Seungeun / Kim, Jonggyu / Bae, Chungeun Location | 13, Dongdaeguro17angil, susung-gu, Daegu, Korea Program | Housing Site area | 331.20㎡ Building area | 251.22㎡ Gross floor area | 484.06㎡ Building to land ratio | 75.85% Floor area ratio | 146.15% Building scope | 3F Structure | RC Exterior finishing | EIFS, Galvanized steel sheet Interior finishing | Wood, Water paint, Wallpaper Design period | Jan. 2017 ~ Jun. 2017 Construction period | Jun. 2017 ~ Mar. 2018 Photograph | Yoon, Dongkyu Structural engineer | Boru Mechanical engineer | Hankukgiyoun Electrical engineer | Woojin Eng |

'회원작품 | Projects > House' 카테고리의 다른 글
| 산청 C 주택 2019.8 (0) | 2022.12.24 |
|---|---|
| 퍼블리베이트 하우스 2019.8 (0) | 2022.12.24 |
| 정릉 다가구주택+ 지하서재 2019.7 (0) | 2022.12.23 |
| 로지아Y 2019.7 (0) | 2022.12.23 |
| 오손도손家 2019.7 (0) | 2022.12.23 |