2023. 1. 6. 09:14ㆍ회원작품 | Projects/Religious
Muhakro Methodist Church, Hayang

교회를 가리키는 라틴어의 단어는 에클레시아(Ecclesia)인데 부름을 받은 이들이라는 뜻이라고 한다. 그리고, 신약성서의 에베소서 1장에는 ‘교회는 그(그리스도)의 몸이니 만물 안에서 만물을 충만케 하시는 이의 충만함이니라’라고 적혀 있기도 하다. 그러니 건물로 교회를 이해하는 것은 잘못된 것이며 교회당의 원형이나 전형도 사실은 존재하지 않는다. 부름을 받는다는 것, 이는 스스로 자신을 세상의 경계 밖으로 추방하는 일이다. 아마도 예수 그리스도가 그렇게 부름을 받아 세상의 경계 밖으로 스스로 추방하여 불멸이 되었으며 그의 삶을 본받아(이미타티오 크리스티) 사는 이들이 기독교도들인 게다. 순교라는 것은 최고의 신앙 행위이지만 그럴 수 없는 이들은 세상의 욕심과 욕망, 욕정들을 버리며 청빈과 순결 그리고 순종의 삶을 살아야 그나마 예수를 본받는 일이 된다는 것이다. 무소부재한 신이 교회당에만 있을 턱이 없으니 교회당은 신의 집이 아니며 부름을 받은 자들 곧 세상의 욕망으로부터 스스로 추방된 자들의 집이다. 그러니 교회당이란 이들이 모인 집인 까닭에 가장 단순한 형태, 본질로만 빚은 모습이어야 하지 않을까? 폴 발레리는 명료한 것만큼 신비로운 게 없다고 했다. 명료하고 단순한 공간, 그 진리 속에서 자유하고자 하는 이들의 집, 바로 교회당의 본질이다.
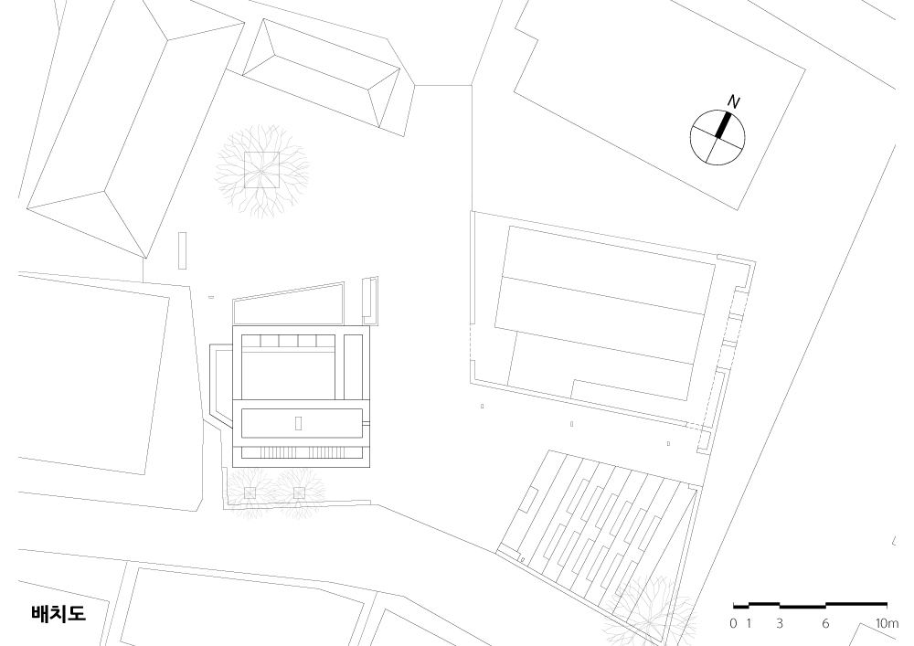
물볕이라는 아름다운 뜻을 가진 한적한 마을 하양에 위치한 이 교회의 규모는 불과 50제곱미터에 불과하다. 시골의 작은 교회지만 설계해달라는 청을 두말없이 승낙한 까닭은 이 교회의 목사와의 오랜 인연도 있지만 교회의 본질을 잘 나타낼 수 있기 때문이었다. 벽돌회사에서 붉은 벽돌을 무상으로 제공하여 모든 재료를 벽돌로만 처리하게 된 것도 이 건축의 진정성을 더욱 높였다. 가장 단순한 형태로 가장 명료한 공간을 만들고 빛을 넣는다. 명료한 것만큼 신비스러운 것이 없다는 말을 다시 실감하게 된다. 모자라는 공간은 옥외예배당을 만들어 보충한다. 이 장소는 동네사람들이 쉽게 찾아와 서로 공동체를 확인하는 공간이 됐다.

The etymology word for the church is ecclesia in Latin, which means those who are called-out. And the Bible says, in the New Testament Book of Ephesians (Chapter 1), "…. the church, which is His (Christ’s) body, the fullness of Him who fills all in all." Thus it is wrong to understand the church as a building, and there is no prototype or typical model of the church. Calling out is to expel oneself out of the boundary of the world. Perhaps it seems that Jesus Christ was called-out and expelled himself by himself out of the boundary of the world to immortalize himself. It seems that Christians are those who imitate the life of Christ (Imitatio Christi). Although martyrdom is the supreme act of faith, those who are not able to do so are to imitate Jesus in order to live a life of Christian poverty, chastity, and obedience, abandoning greed, envy, and lust of the world. As it is nonsense that the church is the only place where the omnipresent God resides, the church should not be the house of God, but the house of those who have been called-out, and who have been exiled from the desires of the world. So, it will be natural that the church, which houses those people, should be made of only essence and of the simplest form. Paul Valery said that there is nothing as mysterious as clarity. The essence of the church is a clear and simple space, the home of those who want to be free within truth.
Located in Hayang, a secluded village with a beautiful name meaning “riverine sunshine,” the church is only 50 square meters in area. It is a very small size church in a rural village but good enough to express the essence of the church. A brick company offered red bricks for free, and all the construction work was done only with bricks. In its simplest form, it creates the clearest space and light. The words that there is nothing as mysterious as clarity could be realized here. The space that is not enough has been complemented by the outdoor chapel. This place has become a place of communion where people in the neighborhood can easily come and renew their communal life.








| 하양 무학로교회 설계자 | 승효상_(주)종합건축사사무소 이로재 건축주 | 기독교대한감리회유지재단 감리자 | 김성희 시공사 | 이병해 _ 디자인엠 대지위치 | 경상북도 경산시 하양읍 무학로 9-4 주요용도 | 교회 대지면적 | 178㎡ 건축면적 | 69㎡ 연면적 | 69㎡ 건폐율 | 39% 용적률 | 39% 규모 | 지상 1층 구조 | 철근콘크리트조 외부마감재 | 벽돌 내부마감재 | 벽돌 설계기간 | 2017. 01 ~ 2018. 02 공사기간 | 2018. 04 ~ 2019. 04 사진 | 김종오 전문기술협력 - 구조분야 : 더나은구조 - 기계설비분야 : 디이테크 - 전기분야 : 우림전기 |
Muhakro Methodist Church, Hayang Architect | Seung H-Sang_IROJE architects & plenners Client | The Korean Methodist Church Foundation Supervisor | Kim, Sunghee Construction | Lee, Byeonghye _ DESIGN M Location | 9-4, Muhak-ro, Hayang-eup, Gyeongsan-si, Gyeongsangbuk-do, Korea Program | Methodist church Site area | 178㎡ Building area | 69㎡ Gross floor area | 69㎡ Building to land ratio | 39% Floor area ratio | 39% Building scope | 1F Structure | RC Exterior finishing | Brick Interior finishing | Brick Design period | Jan. 2017 ~ Feb. 2018 Construction period | Apr. 2018 ~ Apr. 2019 Photograph | Kim, Jongoh Structural engineer | The Naeun Structural Eng. Mechanical engineer | DE-Tech Electrical engineer | Woolim E&C |

'회원작품 | Projects > Religious' 카테고리의 다른 글
| 새문안교회 2020.3 (0) | 2023.01.11 |
|---|---|
| 대전 관평동성당 2020.1 (0) | 2023.01.09 |
| 명례성지 2019.11 (0) | 2023.01.06 |
| 건축사 이희태 2019.4 (0) | 2022.12.19 |
| 용현교회 2019.2 (0) | 2022.12.14 |