2023. 1. 10. 09:08ㆍ회원작품 | Projects/Commercial
Largeroof Dakgalbi

건축주는 소양댐 하부쪽 닭갈비집과 카페들이 많이 위치한 신북읍 천전리에 기존의 닭갈비집과는 다른 콘셉트를 가지는 닭갈비집을 설계하고자했다. 건축물은 단순하고 명료하여 쉽게 공간을 이해할 수 있도록 구성하고, 조경 및 내부 인테리어 디자인에서 다양함을 주어 단조로움을 해소하는 것으로 설계방향을 정했다.
서비스 동선을 고려하여 층수는 단층으로 결정했고, 고객의 주차를 고려하여 건축물은 도로에서 깊숙한 곳에 배치하기로 했다. 도로에서 60미터 가량 위치한 곳에 단층건물이 존재하면 외부에서 건물을 인지하기가 쉽지 않았기에 단순한 형태로 건물을 인지할 수 있는 입면을 구상하여 커다란 지붕을 계획했다.
건축물 구조체에 대한 공사비를 절감하기 위하여 일반철골구조에 샌드위치 패널로 외벽 및 지붕을 선정하고, 지붕의 포인트로 철판루버를 설치했다.
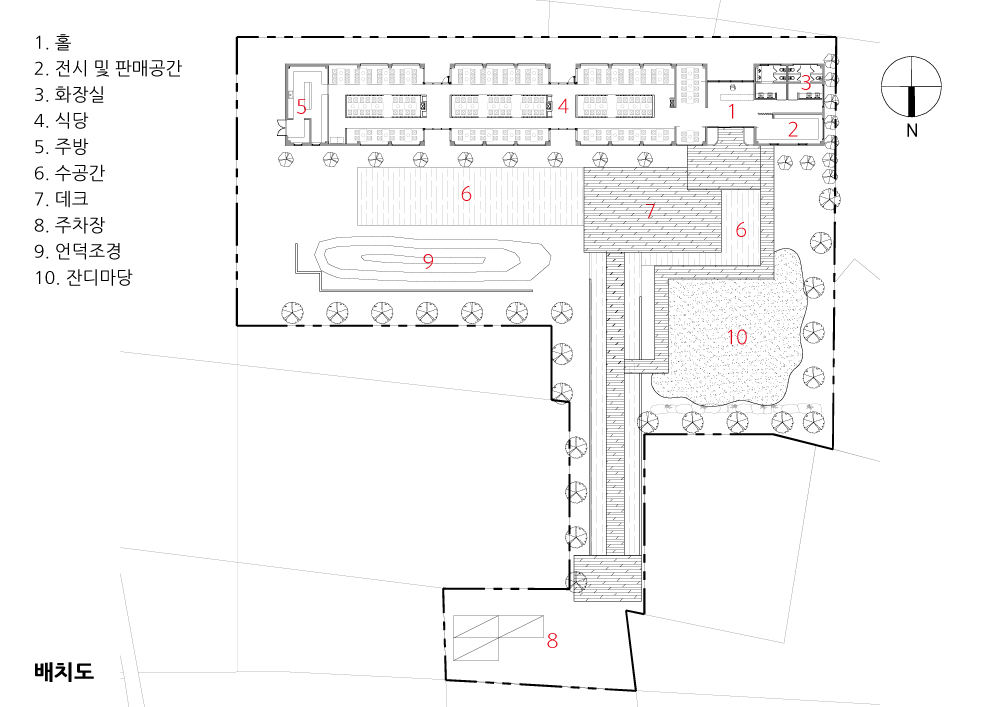
건물의 길이는 60미터로서 서비스 동선이 과도하게 길어지는 현상이 발생하기에 중간에 두 곳의 서비스존을 두어 운영에 대한 해결과 내부공간의 변화로 단조로움을 극복했다. 이곳에 실내조경처럼 보이는 외부 조경공간을 조성했고, 뒷마당으로 출입하는 외부동선을 제공했다.
내부 인테리어 컨셉은 목재를 주요 자재로 선정하고 지붕 루버의 개념을 연속해서 실내 천장에도 적용했다. 구조적으로 필요했던 사선 보에 대한 마감도 목재로 감싸주었다. 의장적인 목재 기둥과 보를 설치하여 높은 천장고에 대한 상쇄를 주도록 계획했다. 이로써 사선, 수직 수평의 목재라인이 조합되어 내부는 복잡해 보이는 공간이 조성됐다.

The client wanted to design a restaurant with a different concept from typical spicy stir-fried chicken restaurants in Cheonjeon-ri, Sinbuk-eup where similar restaurants and cafes are located in the lower part of Soyang Dam. The building is designed to be simple and clear for a better understanding of space and to relieve monotony by giving variety to landscaping and interior design.
We planned a one-story building in consideration of the circulation of the service and located it deep inside from the road considering the customer's parking. Thus, if a single-story building is located about 60 meters from the road, it is not easy to recognize the building from the outside, so we planned a large roof by devising elevation to recognize the building in a simple form.
To reduce construction costs for the building structure, the exterior walls and roof were selected as sandwich panels in a general steel structure, and a steel plate louver was installed as the point of the roof.
The building is 60 meters long, and the flow of service is excessively long, so we put two service zones in the middle to solve the problem of operation and change internal space. We created an outdoor landscaping space that looks like indoor landscaping and provided the outdoor movement flow to the backyard.
For the interior, we selected wood as the main material and applied a roof louver continuously to the interior ceiling. The finish of diagonal beams needed structurally was also covered with wood. Aesthetical wooden columns and beams were planned to offset high ceiling height. This combination of diagonal, vertical, and horizontal timber lines creates a rich interior space..






| 큰지붕 닭갈비 설계자 | 이승철_건축사사무소 품은 건축주 | 김성배 감리자 | 하금현 시공사 | 김성배 설계팀 | 황석구, 송선아 대지위치 | 강원도 춘천시 신샘밭로 652 주요용도 | 일반음식점 대지면적 | 2,884.00㎡ 건축면적 | 575.05㎡ 연면적 | 494.54㎡ 건폐율 | 19.94% 용적률 | 17.14% 규모 | 지상 1층 구조 | 일반철골구조 외부마감재 | 스타코, 로이복층유리 내부마감재 | 내부용 수성페인트, 미송 판재 및 각재 설계기간 | 2017. 05. ~ 2018. 01 공사기간 | 2018. 02 ~ 2018. 12 사진 | 윤준환 전문기술협력 - 구조분야 : 서상혁 _ 미담구조 엔지니어링 - 기계설비분야 : 최병필 - 전기분야 : 박정일 _ 예강 이엔지 - 소방분야 : 박정일 _ 예강 이엔지 |
Largeroof Dakgalbi Architect | Lee, Seungchul_Pumeun Architects Client | Kim, Sungbae Supervisor | Ha, Kumhyeon Construction | Kim, Sungbae Project team | Hwang, Seokgu / Song, Seona Location | 652, Sinsaembat-ro, Sinbuk-eup, Chuncheon-si, Gangwon-do, Korea Program | Restaurant Site area | 2,884.00㎡ Building area | 575.05㎡ Gross floor area | 494.54㎡ Building to land ratio | 19.94% Floor area ratio | 17.14% Building scope | 1F Structure | Steel-frame Exterior finishing | Staco, Low-E paired glass Interior finishing | Paint, Pine Design period | 2017. 05. ~ 2018. 01 Construction period | 2018. 02 ~ 2018. 12 Photograph | Yoon, Joonhwan Structural engineer | Seo, Sanghyeok Mechanical engineer | Choi, Byeongpil Electrical engineer | Park, Jungil Fire engineer | Park, Jungil |

'회원작품 | Projects > Commercial' 카테고리의 다른 글
| 호텔 소울하다 2021.11 (0) | 2023.02.13 |
|---|---|
| 한화갤러리아 광교점 2020.4 (0) | 2023.01.12 |
| 더 임프린트 2019.10 (0) | 2023.01.05 |
| 3/1(일삶)빌딩 2019.5 (0) | 2022.12.21 |
| 스테이비 호텔 2019.3 (0) | 2022.12.16 |