2023. 1. 12. 09:21ㆍ회원작품 | Projects/Commercial
Hanwha Galleria in Gwanggyo

광교 갤러리아 백화점은 지난 2010년 갤러리아 센터시티(천안불당점) 이후 거의 10여 년 만의 출점이다. 지하 7층, 지상 12층 규모(연면적 13.7만제곱미터, 영업면적 7.1만제곱미터)의 복합엔터테인먼트형 판매시설로, CGV(아이맥스관 포함), 수원컨벤션센터, 한화 아쿠아플레닛, 호텔(메리어트), 주상복합 등 다양한 시설이 집중연계된 형태로 구성되어 있다.
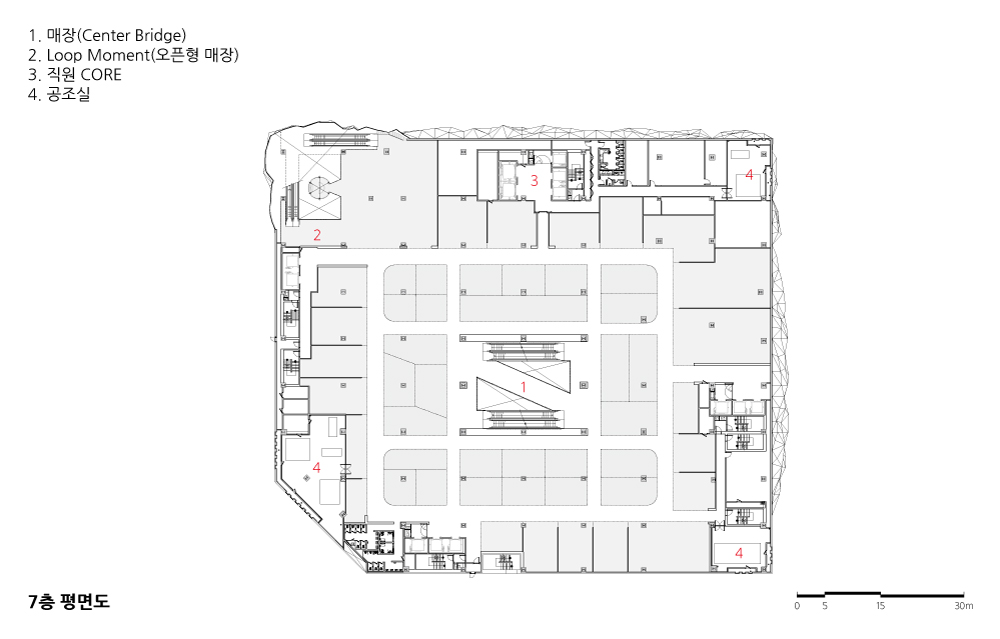
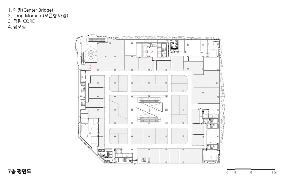
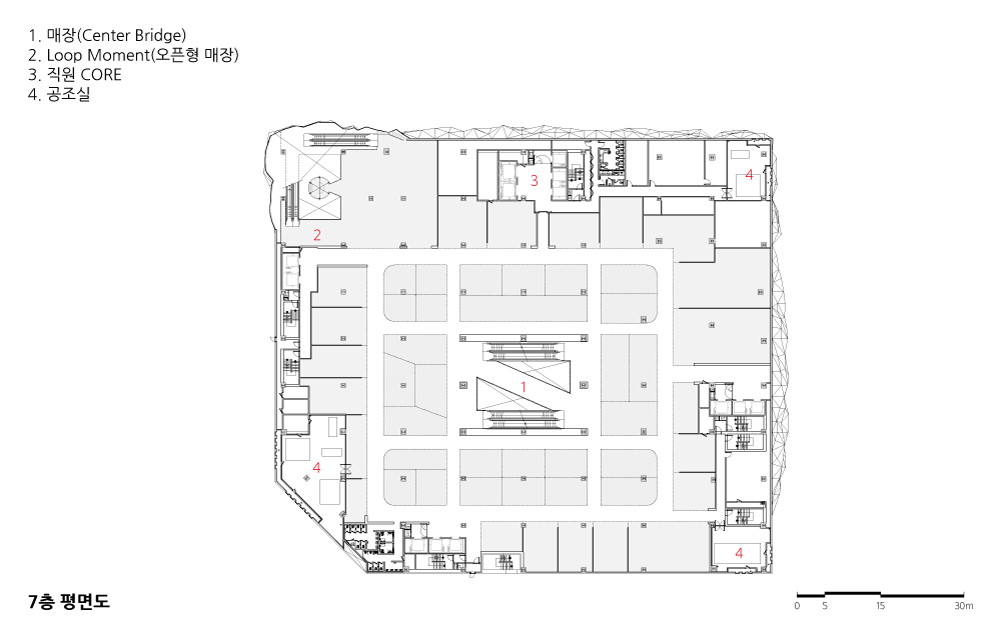
기존 백화점의 공식이었던 무창 형식의 개념을 깨고 기획 이벤트, 전시, 강연 등 다양한 엑티비티 공간을 매장 외부에 배치해 새로운 고객 동선과 연결시키는 한편 루프 코리더(Loop corridor)를 통해 외관 디자인과 내부 프로그램을 차별화시켰다.
루프 커튼월(Loop Curtainwall)로 정의되는 3D 입체커튼월시스템의 경우, 최고 수준의 난이도로서 국내 실정법과 기후, 시공성을 고려해 풀어냈으며, 이로써 세계적인 수준의 불규칙한 커튼월 패턴이 적용됐다. 외부 석재 커튼월은 14가지 석종을 모자이크식으로 패턴화해서 이 땅의 지층과 암석을 형상화했는데, 국내 기후와 시공, 유지 관리를 고려한 화강석 계열의 석종을 적용해 초기 콘셉트를 그대로 구현해냈다.
중심 상권의 역할이 미약하고 대형 판매시설이 부족했던 광교 신도시에 들어서는 첫 명품백화점으로서, 주민들의 생활 편의와 서비스의 질을 높여줄 뿐만 아니라 판교 등 다른 상권으로 유출됐던 원정 쇼핑고객들의 발걸음을 돌려놓아 지역상권 활성화에도 큰 기여를 할 것이다. 더 나아가 경기 남부권에서는 최초로 조성되는 아쿠아리움(한화 아쿠아플레닛)을 비롯해 집객력이 높은 테넌트 시설들이 포함된 복합엔터테인먼트 시설이므로 광역 상권 랜드마크로 자리 잡을 것이라 기대한다.

The Galleria is Korea’s first and largest upscale department store franchise founded in the 1970s, and has remained at the forefront of the premium retail market in the country since then. The store in Gwanggyo—a new town just south of Seoul—is the sixth branch of Galleria. Located at the center of this young urban development surrounded by tall residential towers, the Galleria’s stone-like appearance makes it a natural point of gravity for public life in Gwanggyo.
The store is located between the Suwon Gwanggyo Lake Park and ubiquitous buildings in the city: an intersection between nature and the urban environment. The store has a textured mosaic stone façade that evokes nature of the neighbouring park. Appearing as a sculpted stone emerging from the ground, the store is a visual anchor in the city.
A public route is excavated from the stone volume and connects the public side walk to a roof garden—including both retail and cultural activities. It introduces an innovative element to the traditional typology of a department store.
The public route has a multifaceted glass façade that contrasts with the opacity of the stone. Through the glass, retail and cultural activities inside are revealed to the city’s passers-by, while visitors in the interior acquire new vantage points to experience Gwanggyo. Formed with a sequence of cascading terraces, the public loop offers spaces for exhibitions and performances.
A place where retail and culture, city and nature collide, Galleria in Gwanggyo offers a get away from the predictability of shopping.











| 한화갤러리아 광교점 설계자 | OMA - Partner(크리스 반 두진 _ 네덜란드 건축사) - OMA Hong Kong Team (주)간삼건축 종합건축사사무소 김태집(대표이사)/ 김태성(대표) / 원신희(설계총괄 PM) 건축주 | (주)한화갤러리아 감리자 | (주)간삼건축종합건축사사무소 시공사 | (주)한화건설 설계팀 | 오지승, 박상미, 공준, 박기형, 양서인, 백승엽, 이정현, 주혜진, 이윤형, 김천로 대지위치 | 광교지구 택지개발지구내 일상6-1블럭 _ 백화점 부지 (특별계획구역2-컨벤션지원상업) 주요용도 | 판매시설 / 문화 및 집회시설 대지면적 | 12,288.81㎡ 건축면적 | 7,367.91㎡ 연면적 | 136,879.77㎡ 건폐율 | 59.96% 용적률 | 589.38% 규모 | 지하 7층 - 지상 12층 구조 | SRC 라멘구조 외부마감재 | THK30 화강석, 3D 커튼월 시스템 내부마감재 | UHPC panel, Stone tile, Wood, Alum. anodizing panel, SUS panel 설계기간 | 2016. 06 ~ 2019. 12 공사기간 | 2017. 11 ~ 2020. 02 사진 | 홍성준 전문기술협력 - 3D커튼월컨설팅 : (주)위드웍스에이앤이 건축사사무소 - 외벽석재패널 : (주)대혜건축 - 구조분야 : (주)코펙 엔지니어링 - 기계설비분야 : ENG에너지 연구소 - 전기분야 : 나라기술단 - 소방분야 : (주)삼우엠이피컨설턴트 |
Hanwha Galleria in Gwanggyo Architect | OMA _ Chris Van Duijn - OMA Hong Kong Team _ Gansam Architects & Partners_ Kim, Taijip _ Kim, Taesung / PM_ Won, Shinhee Client | Hanwha Galleria Supervisor | Gansam Architects & Partners Construction | Hanwha E&C Project team | Oh, Jiseung / Park, Sangmi / Gong, Joon / Park, Gihyeong / Yang, Seoin / Baek, Seungyeob / Lee, Jeonghyeon / Ju, Hyejin / Lee, Yunhyeong / Kim, Cheonro Location | Gwanggyo, Korea Program | Retail Site area | 12,288.81㎡ Building area | 7,367.91㎡ Gross floor area | 136,879.77㎡ Building to land ratio | 59.96% Floor area ratio | 589.38% Building scope | B7 - 12F Structure | SRC Frame Structure Exterior finishing | THK30 Granite Stone, Smart Node 3D Curtain wall Interior finishing | UHPC panel, Stone tile, Wood, Alum. anodizing panel, SUS panel Design period | Jun. 2016 ~ Dec. 2019 Construction period | Nov. 2017 ~ Feb. 2020 Photograph | Hong, Seongjun 3D Curtain Wall Consulting | WITHWORKS Architects & Engineers Exterior Stone Panel | DAEHYE Interior Design & Architecture Structural engineer | KoPEG Engineering Mechanical engineer | ENG Engineering Electrical engineer | NARA Engineering Fire engineer | Samoo M.E.P Consultant |

'회원작품 | Projects > Commercial' 카테고리의 다른 글
| 골프존카운티 청통 GC 클럽하우스 2021.11 (0) | 2023.02.13 |
|---|---|
| 호텔 소울하다 2021.11 (0) | 2023.02.13 |
| 큰지붕 닭갈비 2020.2 (0) | 2023.01.10 |
| 더 임프린트 2019.10 (0) | 2023.01.05 |
| 3/1(일삶)빌딩 2019.5 (0) | 2022.12.21 |