2023. 1. 19. 21:12ㆍ회원작품 | Projects/Religious
Construction of Nammoon Church in Gwangju

광주 남문교회는 광주광역시 봉선동에 기존 교회를 1995년에 건축하여 교회 설립 후, 40년이 되는 2011년에 희년을 준비하는 프로젝트의 일환이다. 2021년 도심에 다음 세대를 위한 새 성전, 아름다운 전원교회를 건축하기로 결정한 후 토지 매입을 위한 작업을 지속적으로 검토하여 교회 인근에 자연녹지 약 20,589제곱미터(6,228평)를 매입했다. 양원용 담임 목사의 목회철학을 담은 중형교회로, 교인들만의 공간이 아닌 그리스도를 믿지 않는 지역주민들에게도 교회 공간을 개방하여 지역 공동체를 위한 커뮤니티센터의 역할을 할 수 있도록 열린 교회이자 하나의 공동체를 이루는 교회를 건축하고자 했다.
아름다운 마당을 담은 교회를 계획하여 친교마당, 갈멜광장, 하늘정원, 잔디마당 등을 계획하였으며 십자가 아래 남문가족들의 두 손을 모아 기도하는 형상에 안과 밖을 나누는 경계점인 게이트 기능을 두어 세상에 상처받은 영혼들이 모든 근심, 걱정, 고난을 뒤로하고 영적공간으로 들어와 말씀으로 치유받고 평강의 은혜를 받을 수 있는 영역을 구분하였다. 또 예수님께서 무거운 십자가를 짊어지고 골고다 언덕길을 오르셨던 고난의 길을 상징하는 외부 계단을 통하여 성도들이 그 길을 걸으면서 예배의 장으로 들어서기 전 주님의 값진 보혈의 피로 새롭게 태어남을 고백하도록 언덕길을 두었으며, 동쪽의 햇빛이 스탠드글라스를 통하여 예배당 안으로 빛이 들어오는 창을 7개의 금촛대를 상징하는 의미로 담았다. 예배당은 구원의 방주로 광주남문교회가 지역사회를 품는 교회가 되어 새 하늘, 새 땅에 빛과 소금의 사명을 감당하는 사랑의 교회가 되도록 디자인하였다.
나는 “이 성전의 나중 영광이 이전 영광보다 크리라(학2:9)”는 말씀이 다가올 100년의 남문교회 영광이 더 클 줄로 확신하며 마음을 담아 설계하였다.

Gwangju Nammoon Presbyterian Church is part of a project to celebrate its jubilee in 2011, the 40th anniversary of the church since its establishment in Bongseon-dong, Gwangju, in 1995. I kept trying to find land to build a beautiful pastoral church, a new church for the next generation in the center of the city in 2021, and finally purchased about 20,589㎡ (6,228 pyeong) of natural greenery near the church. It is a medium-sized church that embodies Pastor Yang Won-yong’s religious philosophy. It aims to become an open church, a kind of community that serves as a community center for the local community by opening the church space not only to the church members but also to local residents who do not believe in Christ.
A church is designed to have beautiful yards, including a communion yard, a Carmel square, a sky garden, and a lawn yard. With a gate function that is a boundary point distinguishing between the inside and the outside in the image of the church members joining their hands in prayer under the cross, the church has an area in which the souls wounded by the world can enter the spiritual space so that they can be healed by the sword of the Spirit and blessed with God's grace, forgetting all worldly cares. Also, it has a hill where the church members can confess that they are reborn by the precious blood of Jesus before entering the place of worship through external stairs that symbolize the Way of Suffering, where Jesus walked up the hill of Golgotha while carrying his cross. The windows, which allow light from the east into the chapel through stained glass, represent the menorah, a seven-branched candelabrum. The chapel is designed to make Gwangju Nammoon Presbyterian Church a church that embraces the local community and becomes a church of love that carries out the mission of Salt & Light in the new heaven and new earth by the Ark of Salvation.
I designed it with all my heart and confidence that Nammoon Presbyterian Church will be greater than the glory of the former church, as the Lord Almighty says: “The glory of this present house will be greater than the glory of the former house (Haggai 2:9).”










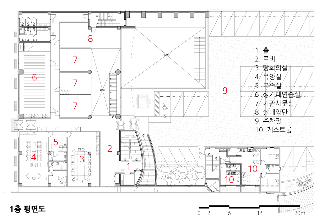
| 광주 남문교회 설계자 | 안길전 _ (주)일우엔지니어링건축사사무소 건축주 | (재)대한예수교장로회전남노회유지재단 감리자 | (주)미드엔지니어링건축사사무소 설계팀 | 배미연, 송다영, 김영곤 대지위치 | 광주광역시 남구 제석로 93-13 주요용도 | 종교시설(교회) 대지면적 | 4,980.00㎡ 건축면적 | 954.00㎡ 연면적 | 4,408.02㎡ 건폐율 | 19.16% 용적률 | 42.32% 규모 | B2F - 3F 구조 | 철근콘크리트구조 외부마감재 | 화강석, 노출콘크리트, 합성목재 사이딩판넬(지정색) 내부마감재 | 기능성 흡음 바닥재, 안전바닥재, 플로텍스, 친환경 수성페인트 설계기간 | 2018. 10 - 2019. 08 공사기간 | 2019. 09 - 2021. 07 사진 | 윤준환 구조분야 : 도화구조 기계설비분야 : 팔마ENG 전기분야 : 팔마ENG 소방분야 : 팔마ENG |
Construction of Nammoon Church in Gwangju Architect | An, Kiljeon _ ILWOO-Engineering Architects Client | Korean Presbyterian Church of Jesus Foundation in Jeollanam-do Supervisor | Mid-Engineering Architects Project team | Bae, Miyeon / Kim, Yeonggon / Song, Dayoung Design intention realization | Location | 93-13, Jeseok-ro, Nam-gu, Gwangju, Korea Program | Religious facilities (church) Site area | 4,980.00㎡ Building area | 954.00㎡ Gross floor area | 4,408.02㎡ Building to land ratio | 19.16% Floor area ratio | 42.32% Building scope | B2F - 3F Structure | RC Exterior finishing | granite, Exposed concrete, Stone coat finishing Interior finishing | Functional sound absorption floor material, Safety flooring, Flotex, Eco-friendly water-based paint Design period | Oct. 2018 - Aug. 2019 Construction period | Sep. 2019 - Jul. 2021 Photograph | Yoon, Joonhwan Structural engineer | Do-hwa Structural Engineering Mechanical engineer | Palma Engineering Electrical engineer | Palma Engineering Fire engineer | Palma Engineering |

'회원작품 | Projects > Religious' 카테고리의 다른 글
| 만리현교회 2022.4 (0) | 2023.02.18 |
|---|---|
| 천주교 인천교구 간석2동 성당 2021.2 (0) | 2023.01.31 |
| 원불교 소태산 기념관 2020.6 (0) | 2023.01.16 |
| 새문안교회 2020.3 (0) | 2023.01.11 |
| 대전 관평동성당 2020.1 (0) | 2023.01.09 |