2023. 1. 31. 09:19ㆍ회원작품 | Projects/Religious
Diocese of Incheon, Kansuk-2Dong Church

설계공모를 통하여 당선된 후 4년여의 우여곡절을 거치며 계획되었다. 성당 인근은 밀집된 건물들로 인해 열린 공간과 녹지공간이 부족하였으며, 대지는 전체적으로 조망이 차단되어 새로운 접근이 필요했다.
성당은 본당과 소예배당, 교육관 등으로 구성된다. 비교적 넓은 대지 조건이 허락되어 몇 단계의 레벨 변화와 여러 마당들을 마련하고, 각각 소통할 수 있는 장소가 될 수 있도록 계획하였다. 이 과정에서 한국적 배치와 정서를 담고자 노력했다.
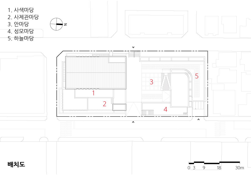
가로로 긴 형태의 대지 중심에 위치하는 마당은 모두에게 열려 있다. 지나가는 길로, 잠시 앉았다 갈 수 있는 공간으로 주변지역 사람들에게 도심 속 쉼터가 된다. 이곳이 밀집된 건물들 사이에서 작지만 소통을 이루어 낼 수 있는 열린 공간이 되기를 바라였다. 소통은 길-마당-길로 이어지는 외부공간에서 끝나지 않는다. 마당은 대성당과 연계된 홀, 중정형의 사색마당으로 이어져 성당 내외부로의 연결을 이루어 낸다. 이로 인해 마당뿐만 아니라 성당 전체가 모두에게 열려있는 소통의 장이 될 것이다. 오랜 시간 동안 기억되는 장소로 남기를 바란다.

After winning in Architectural Competition, it was finally planned after four years of hardships. Due to the dense buildings around the cathedral, open space and green space were insufficient, and the view from the site was entirely blocked, so we had to take a new approach.
The cathedral consists of the main hall, a small chapel, and an education hall. As relatively wide site conditions were allowed, it is designed to be a place to interact with individuals by having several steps of level changes and some yards. In this process, we tried to embody Korean style layout and sentiment.
The yard, located in the center of the horizontally long site, is open to all. It becomes a shelter in the city, where people can pass or rest for a while. We hoped that this place would be an open space to lead communication, although it is a small area surrounded by dense buildings. The transmission doesn't end in the outside space that leads to the road-yard-road. The yard leads to a hall connected to the cathedral and courtyard space for thinking, relating to the cathedral's interior and exterior. As a result, the yard and the entire cathedral will become a place for communication open to all. Hopefully, it will be a special place to remain for a long time.







| 천주교 인천교구 간석2동 성당 설계자 | 조성기, 우대성, 김형종 _(주)건축사사무소 오퍼스 건축주 | (재)인천교구천주교회유지재단 감리자 | (주)예인엔지니어링건축사사무소 시공사 | (주)보정종합건설 설계팀 | 양군수, 김종도, 송병철, 김원겸, 김영환, 이연경 대지위치 | 인천광역시 남동구 용천로143 주요용도 | 종교시설(성당) 대지면적 | 3,441.30㎡ 건축면적 | 1,396.79㎡ 연면적 | 6,120.69㎡ 건폐율 | 40.59% 용적률 | 42.15% 규모 | 지하 2층, 지상 2층 구조 | 철근콘크리트구조 외부마감재 | 전벽돌(주.청화요업 브릭코 벽돌, 커스터마이징 청고) 내부마감재 | 전벽돌(주.청화요업 브릭코 벽돌, 커스터마이징 청고), 석재 설계기간 | 2017. 06 ~ 2018. 11 공사기간 | 2018. 11 ~ 2020. 04 사진 | 박완순 구조분야 : (주)제네랄구조엔지니어링 기계설비분야 : (주)건창기술단 전기분야 : (주)건창기술단 소방분야 : (주)건창기술단 |
Diocese of Incheon, Kansuk-2Dong Church Architect | Cho, Seongki / Woo, Daeseung / Kim, Hyoungjong_ OP’US Architects Client | Diocese of Incheon Supervisor | Ye-in Engineering Architects Construction | Bo-jeong Construction Company Project team | Yang, Gunsu / Kim, Jongdo / Song, Byeongcheol / Kim, Wongyeom / Kim, Yeonghwan / Lee, Yeongyeong Location | 143, Yongcheon-ro, Namdong-gu, Incheon, Korea Program | Religious facilities Site area | 3,441.30㎡ Building area | 1,396.79㎡ Gross floor area | 6,120.69㎡ Building to land ratio | 40.59% Floor area ratio | 42.15% Building scope | B2 - 2F Structure | RC Exterior finishing | Black brick, stone Interior finishing | Black brick Design period | Jun. 2017 ~ Nov. 2018 Construction period | Nov. 2018 ~ Dec. 2020 Photograph | Park, Wansun Structural engineer | General Structural Engineering Mechanical engineer | Geon-chang Techology Team Electrical engineer | Geon-chang Techology Team Fire engineer | Geon-chang Techology Team |
'회원작품 | Projects > Religious' 카테고리의 다른 글
| 새문안교회 추모관 2022.6 (0) | 2023.02.20 |
|---|---|
| 만리현교회 2022.4 (0) | 2023.02.18 |
| 광주 남문교회 2023.1 (0) | 2023.01.19 |
| 원불교 소태산 기념관 2020.6 (0) | 2023.01.16 |
| 새문안교회 2020.3 (0) | 2023.01.11 |
