2023. 2. 20. 09:22ㆍ회원작품 | Projects/Religious
Saemoonan Memorial

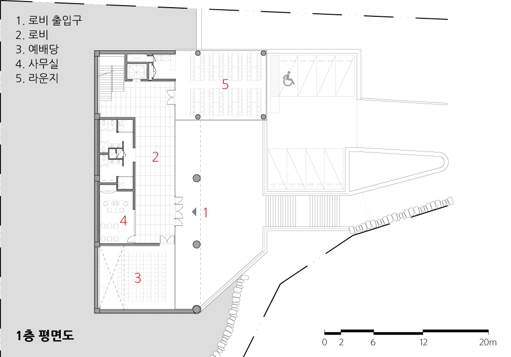
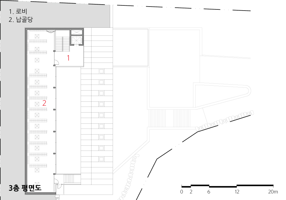
파주에 위치한 교회의 부속 추모관이며 화장한 유골함을 모시는 납골공간이다. 
우선 주어진 대지 전면과 후면의 표고차가 무려 3개 층 높이라 건축이 대지에 순응하기로 했다. 우선 운구차가 도착하는 레벨은 지하 1층, 그 위가 1층으로, 사무실과 추모예배공간 그 위 레벨에서부터 납골공간으로 중정을 구심점으로 둘러싸고 있다. 
납골공간 섹터에서 나오면 즉시 회랑을 통해 중정이 보이고, 자연광이 들어오는 밝은 공간으로 구성된다. 그리고 모든 동선이 다시 되돌아 나오지 않아도 되게끔 구성하였다. 
납골공간 섹터에서도 섹터마다 천창을 두어 비상시 정전이 되더라도 당황하지 않도록 배려하였다.

It is a church memorial hall in Paju and is a place for the charnel house in which urns holding the ashes of dead people cremated are placed. 
First of all, the difference in elevation between the front and the rear of the site is three-story high. The intention is that the building follows the site's height difference. Funeral cars arrive on the first basement level and the upper level, the first floor has an office and a memorial service space, and from the higher floors, charnel houses are placed around the courtyard. 
As soon as you come out of the charnel house sectors, you can see the courtyard through the corridor, and it consists of bright space with natural light. In addition, it is designed to have all movement flows without the need to turn back again.  
In the charnel house sectors, skylights are placed in each sector to ensure that people would not panic in a power failure.







| 새문안교회 추모관 설계자 | 최동규_(주)서인종합건축사사무소 건축주 | 대한예수교장로회 새문안교회 감리자 | (주)중앙종합건축사사무소 시공사 | (주)거성토건 설계팀 | 최일종, 김민경, 이은경 설계의도 구현 | (주)서인종합건축사사무소 대지위치 | 경기도 파주시 광탄면 보광로 389 주요용도 | 묘지관련시설(봉안당) 대지면적 | 3,662.00㎡ 건축면적 | 707.22㎡ 연면적 | 1,114.61㎡ 건폐율 | 19.31% 용적률 | 26.29% 규모 | 지하 1층 - 지상 3층 구조 | 철근콘크리트구조 외부마감재 | 사암 설계기간 | 2011. 04 – 2016. 06 공사기간 | 2016. 06 – 2019. 10 사진 | 채수옥 전문기술협력 구조분야 : 환구조기술사사무소 기계설비분야 : (주)맥엔드엠이씨 전기분야 대경전기설계사무소 소방분야 : (주)맥엔드엠이씨, 대경전기설계사무소  | 
Saemoonan Memorial Architect | Choi, Dongkyu_ SEOINN DESIGN GROUP Client | Manrihyun Church Supervisor | SEOINN DESIGN GROUP Construction | YEIL DESIGN Project team | Choi, Iljong / Kim, Minkyung / Lee, Eunkyung Design intention realization | SEOINN DESIGN GROUP Location | 389, Bogwang-ro, Gwangtan-myeon, Paju-si, Gyeonggi-do, Korea Program | Cemetery-related facilities (Charnel house) Site area | 3,662.00㎡ Building area | 707.22㎡ Gross floor area | 1,114.61㎡ Building to land ratio | 19.31% Floor area ratio | 26.29% Building scope | B1F - 3F Structure | RC Exterior finishing | Sand Stone Design period | Apr. 2011 -Jun. 2016 Construction period | Jun. 2016 - Oct. 2019 Photograph | Chae, Soo-Ok Structural engineer | Hwan Structure Mechanical engineer | Mac&MEC Electrical engineer | Daekyung Fire engineer | Mac&MEC, Daekyung  | 

'회원작품 | Projects > Religious' 카테고리의 다른 글
| 회원 첫 작품_약수교회 2024.5 (0) | 2024.05.31 | 
|---|---|
| 세종중문교회 2023.11 (0) | 2023.11.30 | 
| 만리현교회 2022.4 (0) | 2023.02.18 | 
| 천주교 인천교구 간석2동 성당 2021.2 (0) | 2023.01.31 | 
| 광주 남문교회 2023.1 (0) | 2023.01.19 |