2023. 2. 18. 09:20ㆍ회원작품 | Projects/Religious
Manrihyun Church

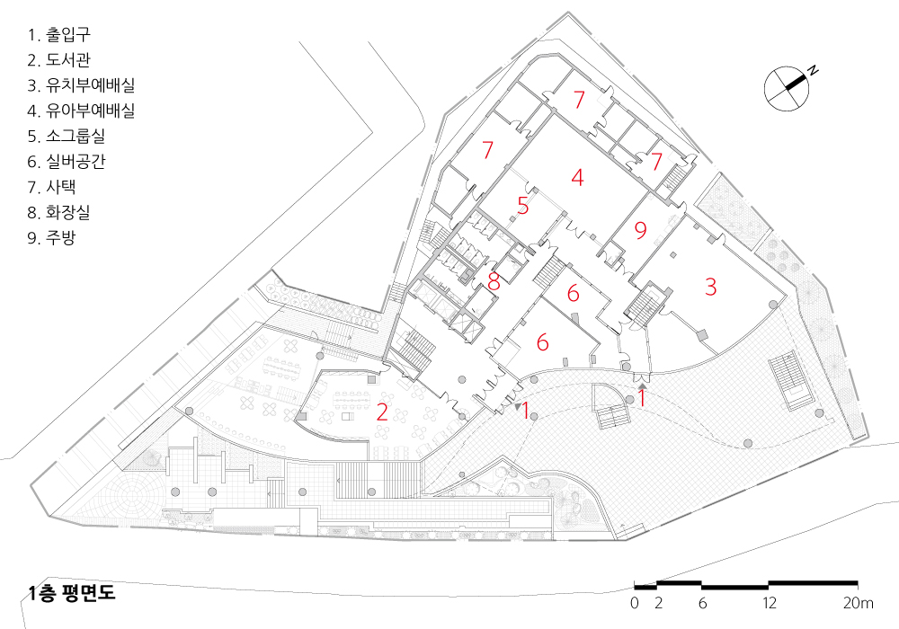
2018년 9월에 준공된 만리현교회는 이번이 네 번째 건축이라고 한다.
기존 교회는 전형적인 주택가 중심에 교회 전면에 차 두 대 교행이 겨우 가능한 도로에 면하고 있다. 주택가 내 교회 신축이 만만치 않음은 준공이 돼서야 깨닫게 되었다.
기존 교회를 리모델링하고 신규로 확보한 대지에 필요한 공간들을 덧붙여 겉보기에는 마치 신축한 건물처럼 보인다. 기존 부분을 리모델링하기로 결정한 것은, 공사비 절약과 더불어 공사기간 동안 예배를 계속 볼 수 있다는 점 때문이었다. 부가적인 이점은 기존교회의 신축 당시에 기여한 교회 내 많은 분들이 지니고 있는 추억과 기억이 유지될 뿐 아니라 낡은 공간을 새롭게 하는 것이어서 교인들의 거부감 없이 설계를 진행하였다.
건축적으로는 신축의 경우 만들어지는 유사한 공간이 아니라 곳곳에 전혀 생경한 내부공간이 불쑥불쑥 튀어나와 제법 공간을 탐험하는 재미가 있다. 결과적으로 공사비 절약은 시작할 때 생각이고, 실제로는 공기와 비용 측면에서 신축보다 절약된다는 보장이 없다는 점을 깨달았다.
주변 민원으로 대폭 변경이 한번 있었는데 바로 이웃한 빌라에서 그동안 보이던 조망에 방해가 된다고 해서 우측에 있던 식당은 좌측으로 옮기게 되었다. 설계하다 보면 이렇듯 변경은 필수적이기 마련인데, 이웃과의 조화를 고려하여 조정한다면 당연하다고 생각한다. 교회는 상당 기간 사용한바 사용자들의 만족도가 높다고 한다.

Manrihyeon Church, completed in September 2018, is said to be the fourth construction.
The existing church is located in the center of a typical residential area and faces a road where two cars can barely cross in front of the church. I realized that building a new church in a residential area was not easy only after the construction.
The necessary spaces are added to the site newly secured after remodeling the existing church, so it looks like a newly built building. The decision to remodel the existing part is made because the chapel can be conducted even during the construction period and save construction costs. The additional advantage is maintaining the memories of church members who contributed to the existing church and making the old space new. Therefore, the design progressed without the refusal feeling of church members.
In the case of new construction, not similar space but unfamiliar internal space suddenly pops up, adding interest in exploring the spaces. As a result, the construction cost was the thinking when the construction started, but I realized the saving of construction cost couldn’t be guaranteed in terms of construction period and cost.
There was extensive scale modification once due to a civil complaint, and the adjacent villa complained the existing view was disrupted, and we had to move the restaurant from right to left. During the design process, the modification is inevitable like this, and I think it is natural to adjust by considering the harmony with neighbors. The church users were said to have felt high satisfaction after using it for a considerable period.







|
만리현교회 설계자 | 최동규_(주)서인종합건축사사무소 건축주 | 기독교대한성결교회만리현교회 감리자 | (주)서인종합건축사사무소 시공사 | (주)예일디자인그룹 설계팀 | 최유철, 정동조, 주효진, 김민경, 이동준, 임수지, 채진범, 김동오 설계의도 구현 | (주)서인종합건축사사무소 대지위치 | 서울특별시 용산구 효창원로 93길 24 주요용도 | 종교시설 대지면적 | 2,816.00㎡ 건축면적 | 1,687.73㎡ 연면적 | 8,854.30㎡ 건폐율 | 59.93% 용적률 | 159.44% 규모 | 지하 3층 - 지상 4층 구조 | 철골철근콘크리트구조 외부마감재 | THK30 사비석, THK24 로이복층유리, 징크, 노출콘크리트 설계기간 | 2013. 08 – 2015. 03 공사기간 | 2015. 03 - 2018. 08 사진 | 김재경, 채수옥 전문기술협력 - 구조분야 : 환구조기술사사무소 - 기계설비분야 : (주)맥엔드엠이씨 - 전기분야 대경전기설계사무소 - 소방분야 : (주)맥엔드엠이씨, 대경전기설계사무소 |
Manrihyun Church Architect | Choi, Dongkyu_SEOINN DESIGN GROUP Client | Manrihyun Church Supervisor | SEOINN DESIGN GROUP Construction | YEIL DESIGN Project team | Choi, Yoocheol / Jung, Dongjo / Ju, Hyojin / Kim, Minkyung / Lee, Dongjun / Lim, Suji / Chae, Jinbeom / Kim, Dong-oh Design intention realization | SEOINN DESIGN GROUP Location | 24, Hyochangwon-ro 93-gil, Yongsan-gu, Seoul, Korea Program | Religious Facilities Site area | 2,816.00㎡ Building area | 1,687.73㎡ Gross floor area | 8,854.30㎡ Building to land ratio | 59.93% Floor area ratio | 159.44% Building scope | B3 - 4F Structure | SRC Exterior finishing | Granite Stone, Low-E double-layered glass, Zinc, Exposed concrete Design period | Aug. 2013 - Mar. 2015 Construction period | Mar. 2015 - Aug. 2018 Photograph | Kim, Jaekyung / Chae, Suok Structural engineer | Hwan Structure Mechanical engineer | Mac&MEC Electrical engineer | Daekyung Fire engineer | Mac&MEC, Daekyung |

'회원작품 | Projects > Religious' 카테고리의 다른 글
| 세종중문교회 2023.11 (0) | 2023.11.30 |
|---|---|
| 새문안교회 추모관 2022.6 (0) | 2023.02.20 |
| 천주교 인천교구 간석2동 성당 2021.2 (0) | 2023.01.31 |
| 광주 남문교회 2023.1 (0) | 2023.01.19 |
| 원불교 소태산 기념관 2020.6 (0) | 2023.01.16 |