2023. 1. 30. 09:15ㆍ회원작품 | Projects/Education
Seoul Street Arts Creation Center Renovation

서울거리예술창작센터의 옛 이름은 구의취수장이다.
1972년 취수장을 시작으로 1984년에 관사를 만들면서 취수장은 4개동으로 운영되어졌다. 강북취수장을 만들면서 구의취수장은 2011년에 취수장의 운명을 다하고, 또 다른 행보를 모색하게 된다. 그리하여 2013년 서울문화재단 거리예술가들의 창작공간으로 재생(재해석)을 시작하게 된다.
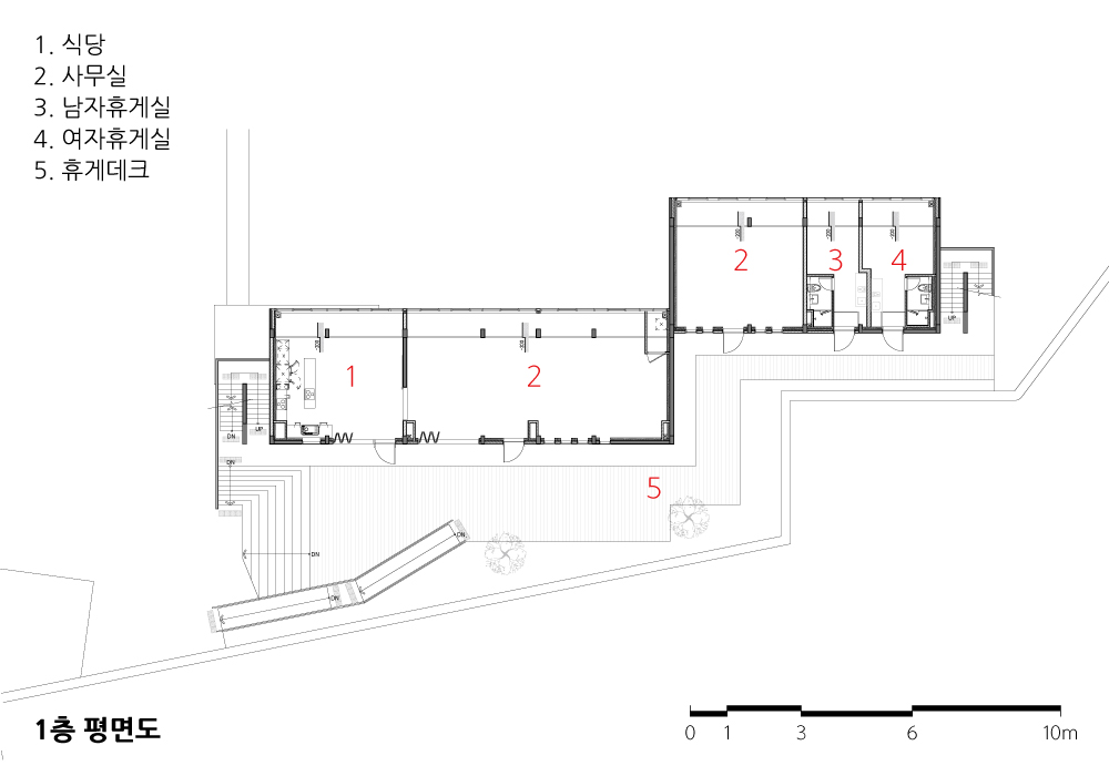
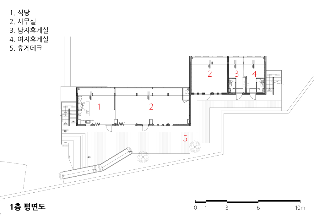
광진구 워커힐 호텔 아래 한강변에 위치한 서울거리예술창작센터는 거리예술가들의 창작공간으로 창작기획, 활동, 연습, 사무, 창작물 작업 및 보관, 해외예술가 레지던시 등의 거리예술 창작 베이스캠프로 다양한 창작활동이 이뤄지는 공간이다.
설계 공모 당시 제안했었던 많은 아이디어는 사용자와 많은 소통의 결과물로 1동 공연홀, 트러스, 3동 외벽개선 및 창고 조성, 4동 레지던시 만들기, 기타 환경개선 작업으로 압축되어 설계가 진행된다. 현장조사 당시 폐허를 방불케 하는 4동 관사는 꼭 귀신이 나올 것만 같았다.
옛것과 새로움의 조화를 어떻게 건축적 텍스트로 옮겨야 하는가에 대한 고민과 집착 속에 설계는 시작되었고, 수많은 고민은 오히려 과정 속의 즐거움이었다. 경사지붕을 일부 철거하고 옥상 휴게데크를 조성하여 한강으로의 조망을 선택하고, 후정을 마련하여 새로운 공간을 해석한다. 기존 경사지붕은 천창을 만들어 빛을 끌어들임으로 공간의 변화를 꾀한다.
서울시 정책방향의 내진설계를 적용한 전단벽 만들기, 기존 뼈대의 부족한 강성을 보강하여 차근차근 설계를 진행하였다. 기존 재료의 활용으로 지붕기와를 조각조각 내어 파사드를 책임지는 전면에 입히게 된다. 철거공사를 끝낸 후 발견한 기존 구조의 상이함과 부족함을 긴급하게 기술적 보강방향을 제시하고 재해석한 프로젝트로 하루하루 롤러코스트를 탄 듯한 기분으로 감리를 하였다. 철거과정 중에 발견한 2층 슬라브 하단에 묻혀있던 청자 담배각은 세월을 가늠케 하였고 어려운 프로젝트에 새로운 활기를 불어넣어 주었다.
서울문화재단 관계자의 슬로건이 기억에 남는다. “물 대신 예술 들어갑니다.”
605일 동안 긴 여정의 설계•감리는 건축을 대하는 나의 태도를 재해석하는 또 하나의 계기가 되었다.

The old name for the Seoul St. Art Creation Ctr. was Gui water intake station. Since 1972 the intake station operated with its four wings by adding an official residence in 1984. In 2011, Gui intake station stopped to operate, and it retired honorably by replacing a newly made Gangbook intake station. It was seeking for the second phase of its life after retirement.
Accordingly, it was reborn with the space for the street artists facilitated by the Seoul Culture Foundation in 2013.
It was recreated under the name of the Seoul Street Art Creation Center. Underneath the Walkerhill hotel in GwangJin gu, siding with Han-river, the building is functioning as a creative space for street artists, and is a space where various creative activities are performed as a base camp such as creative planning, activities, practice, office works, creative work and storage, and overseas artist residency.
Plentiful ideas were suggested during the design competition that the efforts were summarized as a performance hall in the 1st wing with truss structure, 3rd wing with improved walls and a storage, 4th wing for residency, and with other improvements around. Especially, the 4th wing was in a horrible status before renovation.
The basic direction for the design was the harmony of the old and the new, and the issue was how to speak in the context of construction. Such anguish of creation and fixation to the basic design direction were pervaded in the whole process of the project and felt myself into a pleasure eventually.
Part of the slanted roof was replaced into a rooftop rest deck which guarantees Han river view, and a new space was presented by adding a backyard. The remaining part of slanted roof was equipped with a window that invites the day-light. Such renovations generated a whole new impression of the space.
In accordance with the Seoul city’s policy direction, a shear wall with seismic design was made by reinforcing existing structure. The fragmented roof tiles from the original building were covered on the front. After the demolition, the differences and deficiencies of the existing structures were emerged unexpectedly which was immediately strengthened. The project was supervised with the feeling of riding a roller coaster day after day. During the demolition, a pack of old cigarette was found on the 2nd floor slave, which reminisce the time and joy that rejuvenated the troubled project.
Still the slogan from the Seoul Culture Foundation stays in my mind “The Art flows in, not the Water!” Throughout the process of design and inspection for this project, it was invaluable that I had a second chance to look on myself during the 605 days of journey.









| 서울거리예술창작센터 리노베이션 설계자 | 백창용 _ 해담은풍경 건축사사무소 건축주 | 서울특별시장 감리자 | 백창용 _ 해담은풍경 건축사사무소 시공사 | 위니드건설(주) 설계팀 | 강한솔 대지위치 | 서울특별시 광진구 아차산로 710 주요용도 | 교육연구시설, 취수시설 대지면적 | 17,838.00㎡ 건축면적 | 3,339.13㎡ 연면적 | 5,060.81㎡ 건폐율 | 18.72% 용적률 | 20.53% 규모 | 지하 1층, 지상 3층 구조 | 철근콘크리트조, 철골조 외부마감재 | 전벽돌, 니아또 루버, 기존 지붕기와 재활용 내부마감재 | 친환경페인트, 낙엽송합판 설계기간 | 2017. 12 ~ 2018. 07 공사기간 | 2018. 09 ~ 2019. 06 사진 | 박성희 _ FACE Studio, FLYIST 드론팀 구조분야 : (주)BASE 구조기술사사무소 기계설비분야 : (주)보우엔지니어링 전기분야 : (주)건창기술단 소방분야 : (주)보우엔지니어링 |
Seoul Street Arts Creation Center Renovation Architect | Baek, Changyong _ Haedameun Pungkyeong Architects & Planners Client | Seoul Special City Supervisor | Baek, Changyong _ Haedameun Pungkyeong Architects & Planners Construction | Weneed Construction Co. Ltd. Project team | Kang, Hansol Location | 710, Achasan-ro, Gwangjin-gu, Seoul, Korea Program | Education and research facilities, Intake facilities Site area | 17,838.00㎡ Building area | 3,339.13㎡ Gross floor area | 5,060.81㎡ Building to land ratio | 18.72% Floor area ratio | 20.53% Building scope | B1 - 3F Structure | RC, Steel structure Exterior finishing | Brick, Nyatoh louver, Recycling Roof tile Interior finishing | Eco-friendly paint, Larch plywood Design period | 12, 2017 ~ 07, 2018 Construction period | 09, 2018 ~ 06, 2019 Photograph | Park, Seonghee _ FACE Studio, FLYIST Drone team Structural engineer | BASE Structural Consultants Co. Ltd. Mechanical engineer | Bowoo Engineering Co. Ltd. Electrical engineer | Gunchang Engineering Co. Ltd. Fire engineer | Bowoo Engineering Co. Ltd. |
'회원작품 | Projects > Education' 카테고리의 다른 글
| 충남과학교육원 2021.4 (0) | 2023.02.02 |
|---|---|
| 영월 바이오 산업센터 2021.3 (0) | 2023.02.01 |
| 남양주시 중앙도서관 2020.10 (0) | 2023.01.25 |
| 화성시 시립 향남공원어린이집 2020.5 (0) | 2023.01.13 |
| 의정부 미술전문 공공도서관 2020.5 (0) | 2023.01.13 |
