2023. 2. 2. 09:12ㆍ회원작품 | Projects/Education
Chung-Nam Office of Education Institute of Science

Science Curve_사이언스 커브 : 과학과 자연의 곡선을 연결하다
지역과학의 활성화와 전시 및 체험기능을 하는 사이언스 커브는 각각의 영역이 융합되어 과학, 전시, 체험의 다양성을 만들어낸다.
Link with Science Curve_과학의 선형을 연결하다
- 과학 + (전시 / 자연 / 교육 / 체험)
다양성을 융합하는 방법으로서 수많은 정보를 전달하는 매개체인 DNA 세포의 형태를 모티브로 나선형의 매스를 형성하고 교육과 전시의 영역을 연결시킨다.
과학과 자연의 형태를 담은 새로운 과학관의 선형을 그리다
자연의 선형과 과학의 상징적인 형태 및 패턴을 과학교육원에 담아내어, 과학의 정보를 공유하며 교류하는 새로운 선형의 풍경을 연출하였다.
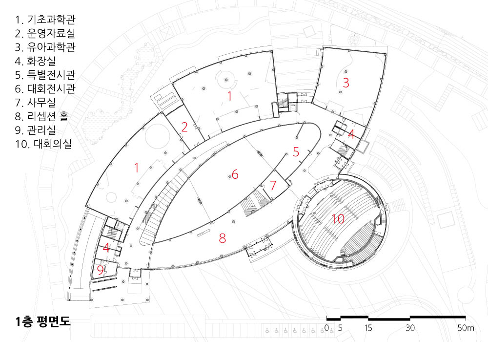
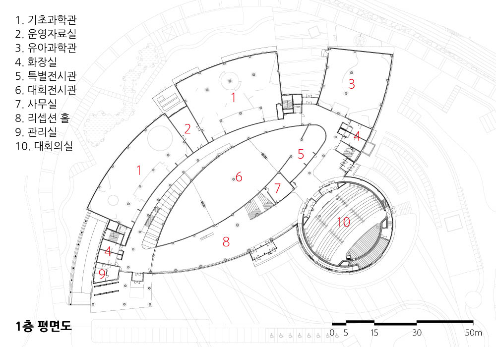
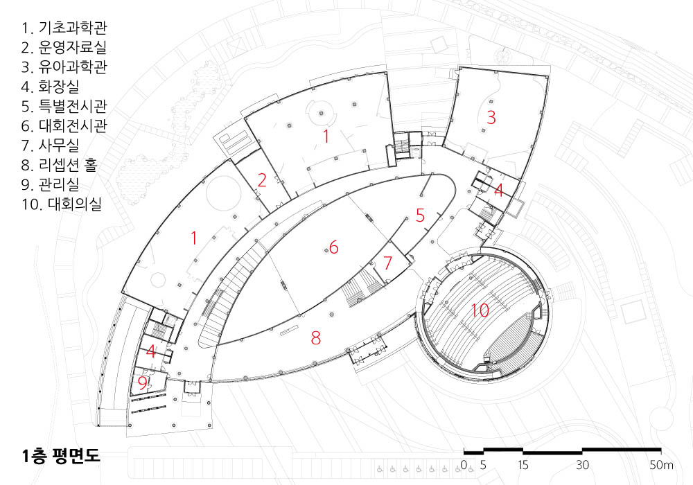
Program Zonning
메인도로를 통해 진입하면 평지에서 산으로 자연스럽게 올라가는 대지의 모습이 사업부지를 둘러싸고 있다. 그러한 대지의 흐름을 모티브로 입체적인 공간의 흐름을 만들었으며, 프로그램의 특성을 고려하여 두 개의 매스를 과학교육존과 업무·관리존으로 명확히 구성하였다.

Science Curve :
Connecting the curves of science and nature
The Science Curve, which revitalizes regional science and functions as an exhibition and experience, creates the diversity of science, exhibition, and experience through a blend of different domains.
Link with Science Curve_
Connecting the linearity of science
-Science + (Exhibition / Nature / Education / Experience)
It forms a spiral mass based on the form of DNA cell, which is the medium to deliver a lot of information to combine diversity and connect the areas of education and exhibition.
Drawing linearity of a new science museum containing both science and nature
The linearity of nature and the symbolic forms and patterns of science are incorporated in the Science Education Center, creating a new linear landscape to share and exchange scientific information.
Program Zoning
When you enter through the main road, the site that naturally rises from the flatland to the mountain surrounds the project site. Using the flow of the land as a motif, a three-dimensional spatial was created. The two masses were clearly constructed into a science education zone and a work/management zone in view of the program's characteristics.







| 충남과학교육원 설계자 | 조도연_(주)디엔비건축사사무소 건축주 | 충청남도교육청 교육감 감리자 | 선엔지니어링 종합건축사사무소 시공사 | 금동종합건설(주) 설계팀 | 임정훈, 한고은, 김현태 대지위치 | 충청남도 아산시 순천향로 624-30 주요용도 | 교육연구시설 대지면적 | 42,263.00㎡ 건축면적 | 6,826.20㎡ 연면적 | 14,526.28㎡ 건폐율 | 17.95% 용적률 | 33.72% 규모 | 지하 1층 - 지상 3층 구조 | 철근콘크리트조, 철골조 외부마감재 | T3 AL SHEET, T0.6 접합제진강판 내부마감재 | 인테리어마감, 노출콘크리트 면처리, 친환경 수성페인트 설계기간 | 2016. 01 - 2017. 03 공사기간 | 2017. 05 - 2019. 10 사진 | 채수옥 전문기술협력 - 구조분야 : (주)동양구조엔지니어링 - 기계설비분야 : 하나설비엔지니어링 - 전기분야 : (주)유일엔지니어링 - 소방분야 : (주)유일엔지니어링 |
Chung-Nam Office of Education Institute of Science Architect | Cho, Doyeon_ D&B Architects Design Group Client | Chungcheongnam-do Office of Education Superintendent Supervisor | SEON ARCHITECTURE & ENGINEERING GROUP Construction | Kumdong Construction Inc. Project team | Lim, Jounghun / Han, Goeun / Kim, Hyuntae Location | 624-30, SoonChunHyangro, Asan-si, Chungcheongnam-do, Korea Program | Educational research facilities Site area | 42,263.00㎡ Building area | 6,826.20㎡ Gross floor area | 14,526.28㎡ Building to land ratio | 17.95% Floor area ratio | 33.72% Building scope | B1F - 3F Structure | RC / Steel frame Exterior finishing | T3 AL SHEET, T0.6 Bonded damping steel sheet Interior finishing | Interior finish, Expose concrete, Eco-friendly water paint Design period | Jan. 2016 - Mar. 2017 Construction period | May 2017 - Oct. 2019 Photograph | Chae, Suok Structural engineer | Dongyang Structural Engineering Inc. Mechanical engineer | Hana Equipment Engineering Electrical engineer | YUIL ENGINEERING Inc. Fire engineer | YUIL ENGINEERING Inc. |
'회원작품 | Projects > Education' 카테고리의 다른 글
| 청송 지역아동센터 2021.6 (0) | 2023.02.06 |
|---|---|
| 하이덴하인코리아 안양연구소 2021.4 (0) | 2023.02.02 |
| 영월 바이오 산업센터 2021.3 (0) | 2023.02.01 |
| 서울거리예술창작센터 리노베이션 2021.1 (0) | 2023.01.30 |
| 남양주시 중앙도서관 2020.10 (0) | 2023.01.25 |
