2023. 1. 31. 09:18ㆍ회원작품 | Projects/Hospital
St.mary's Hospital

수원 호매실에 위치한다. 대지는 경사가 없는 직사각형이다. 주요 용도는 산부인과, 소아과, 내과 및 산후조리시설, 건강검진센터 등의 시설이며, 대지는 925제곱미터, 연면적은 6,700제곱미터, 지하 3층, 지상 9층의 건물이다.
건물은 큰 도로에 면하도록 정동향으로 건물이 배치되었다. 중앙에 코어를 배치하였으나, 건물의 앞과 뒤에 테라스와 중정을 만들어 큰 건물이 가지는 답답함을 해소하였다. 이를 통해 자연광이 실내까지 유입되도록 하였다.
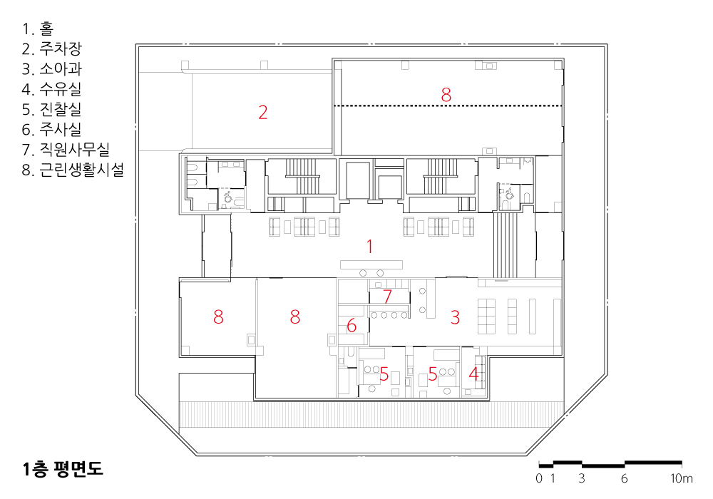
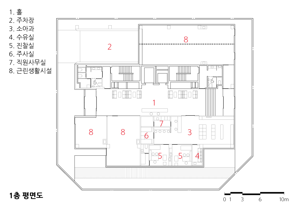
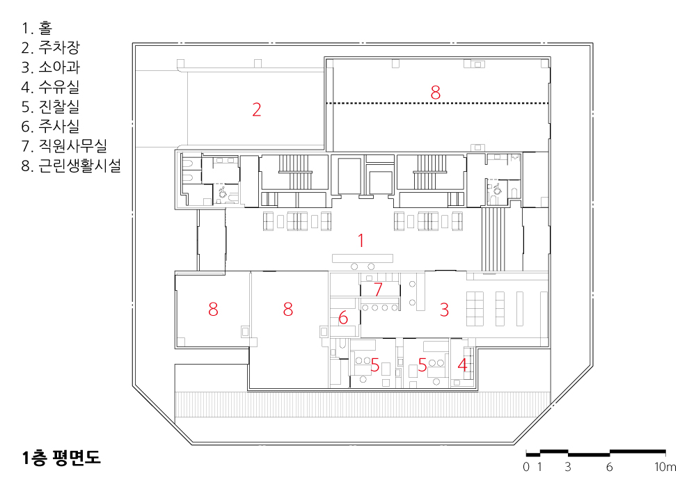
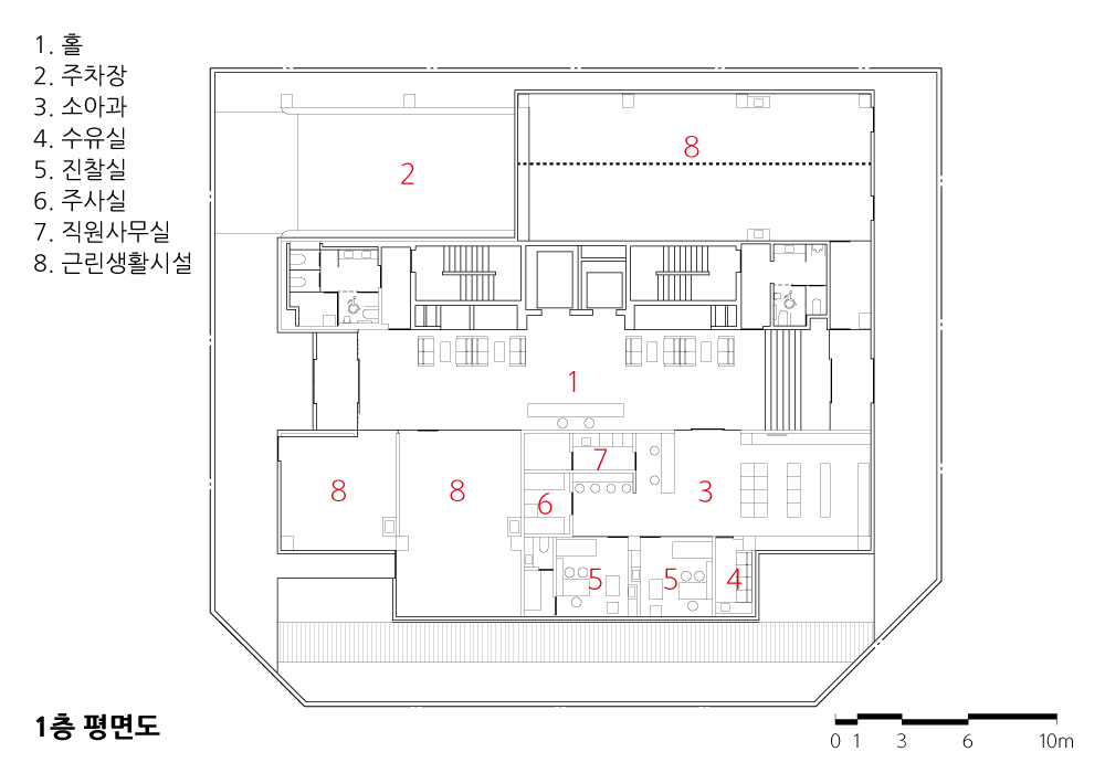
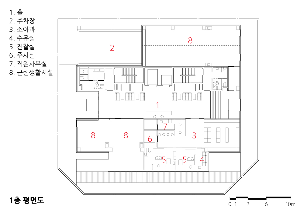
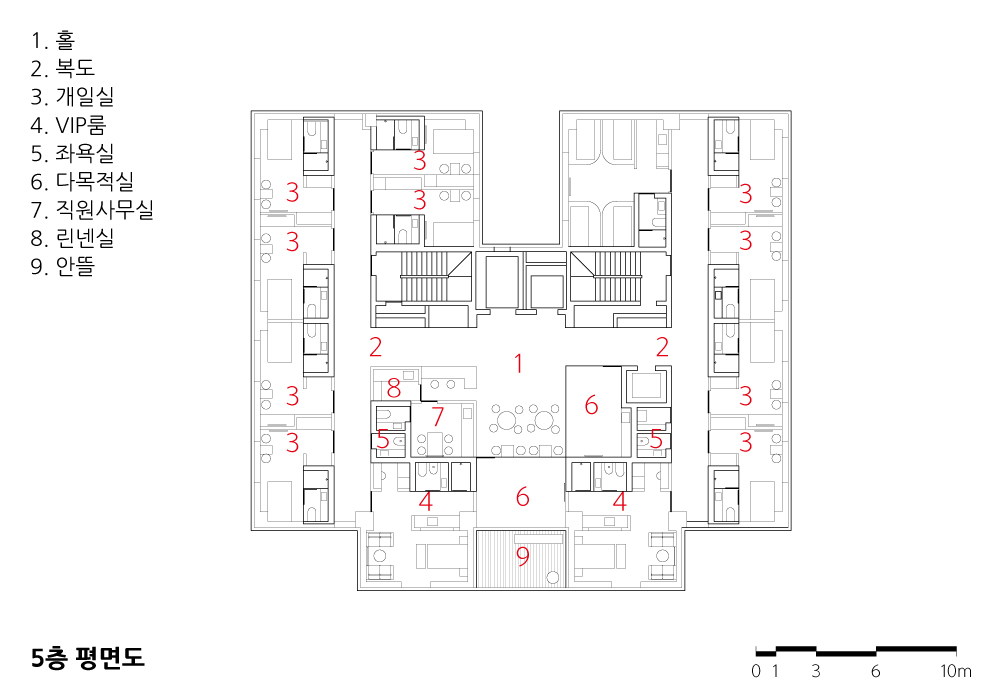
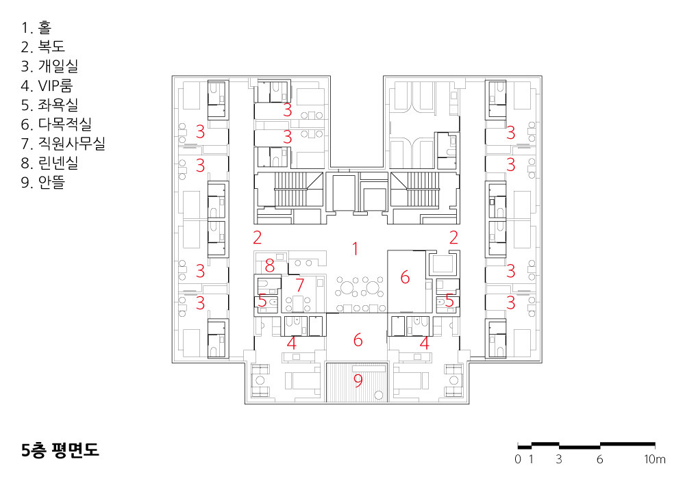
1층에는 소아과, 내과, 약국, 카페 등의 근생시설을 계획하고, 2층에 외래시설, 3층에 분만,수술존 및 신생아실, 4층에 입원실, 수유실, 통증외래실, 5층에는 입원실, VIP실, 6층과 7층은 산후조리원 및 신생아실, 8층에는 식당·주방, 세탁실 등을 계획하였다.
3층 이상의 모든 층에는 좌욕실, 옥외 테라스를 만들고, 각 층마다 산모들을 위한 발 마사지실, 산모전용 카페, 마사지실, 요가 및 교육실, 강당 및 다용도실 등을 설치하여 다른 병원과의 차별화하는 서비스를 제공하고 있다.
건물의 내부와 외부에 산책을 할 수 있는 산책로를 만들어서, 산모들이 계절에 상관없이 건물의 내외부를 산책하는 것이 가능하도록 했다. 각층마다 휴식 및 전망을 위한 외부 테라스 및 중정들이 위치하고 있어서, 산책을 하면서 여러 곳에서 휴식을 할 수 있도록 하였다.
산모와 신생아를 위한 전용환기시설, 전용엘리베이터, 에어샤워 시설, 천연재료의 사용 등으로 편의성뿐 아니라 건강을 고려하였다.
인테리어 역시 단순한 구성이 되도록 계획되었다. 입면구성뿐 아니라 각 재료의 연결 및 마무리에 대해서도 매우 단순하고 근사하게 보일 수 있도록 디자인되었다. 또한 유리벽체를 많이 사용하였다. 유리벽체는 두께가 얇아서 내부를 훨씬 크게 사용하는 것이 가능할 뿐 아니라, 복도와 화장실에까지 외부의 자연광을 자연스럽게 유입되도록 한다.
내부 마감재는 자작나무 합판, 아이보리색 친환경 도장, 친환경 벽지로 마감하였다. 또한, 내부의 조명은 일반적인 다운라이트를 최소로 줄이고, 간접조명만으로 이용이 가능하도록 하고 있다.

The site is a rectangle site with no slope in Homaesil in Suwon. Its main uses are the facilities for obstetrics and gynecology, pediatrics, internal medicine, postpartum care facilities, and a health check-up center. It is a building with three floors below ground and nine floors above ground with a land area of 925 square meters and a total floor area of 6,700 square meters.
The building is due east facing a big road. The core was placed in the center, but terraces and courtyards in front of and behind the building relieve a large building's closeness, which allowed natural light to flow indoors.
The first floor has neighboring facilities such as pediatrics, internal medicine, pharmacies, cafes, etc.; an outpatient facility on the 2nd floor; a delivery/operation zone and newborn rooms on the 3rd floor; patient rooms, feeding rooms, and pain treatment outpatient rooms on the 4th floor; patient rooms and VIP rooms on the 5th floor; postpartum care centers and newborn rooms on the 6th and 7th floors; and a restaurant, kitchen, and laundry rooms on the 8th floor.
All floors above the third floor have a sitting bathroom and an outdoor terrace. Each floor has a foot massage room for mothers, a mothers’ cafe, a massage room, a yoga room and a training room, an auditorium, and a multipurpose room to provide differentiated services from other hospitals.
Besides, we constructed a path for walking inside and outside the building, allowing mothers to walk indoors and outdoors in any season. There are outdoor terraces and courtyards to relax and enjoy a view on each floor so that they can relax in many places while taking a walk.
With the use of ventilation facilities for mothers and newborns, exclusive elevators, air shower facilities, and natural materials, we considered convenience and health.
The interior was also constructed to be simple. It was designed to look simple and pleasant in terms of the elevation composition and the connection and finish of different materials. Also, we used many glass walls because the glass wall is so thin that it allows the interior to be used much more extensively and natural light from outside to flow into the hallway and toilets naturally.
The interior finishing materials were birch plywood, ivory eco-friendly painting, and eco-friendly wallpaper. Furthermore, interior lighting was designed to minimize general down light and make indirect lighting enough to illuminate.







| 세인트마리 여성병원 설계자 | 황준 _ (주)황준도시 건축사사무소 건축주 | 세인트마리 여성병원 감리자 | 황준 _ (주)황준도시 건축사사무소 시공사 | 광원건설, 세움건설 설계팀 | 박소영, 정윤경, 남해룡, 고주형, 이현경, 박진호 대지위치 | 경기도 수원시 권선구 금곡로197번길 70 (금곡동) 주요용도 | 의료시설 대지면적 | 925㎡ 건축면적 | 591㎡ 연면적 | 6,705㎡ 건폐율 | 63% 용적률 | 459% 규모 | 지하 3층, 지상 9층 구조 | 철근콘크리트조 외부마감재 | 자작나무합판, 목재바닥판, 친환경 페인트, 대리석 내부마감재 | 칼라복층유리, 아연판 접기, 인조목재 설계기간 | 2014. 05 ~ 2014. 12 공사기간 | 2013. 02 ~ 2016. 06 사진 | 박영채 구조분야 : 이우호 _ 티섹구조 |
St.mary's Hospital Architect | Hwang, June _ Hwang June architect & associates Client | St.mary's Hospital Supervisor | Hwang, June _ Hwang June architect & associates Construction | GWANGWON Constuction co., ltd / SEUM Constuction co., ltd Project team | Park, Soyeong / Jeong, Yungyeong / Nam, Haeryong / Go, Juhyeong / Lee, Hyeongyeong / Park, Jinho Location | 70, Geumgok-ro 197beon-gil, Gwonseon-gu, Suwon-si, Gyeonggi-do, Korea Program | Medical facility Site area | 925㎡ Building area | 591㎡ Gross floor area | 6,705㎡ Building to land ratio | 63% Floor area ratio | 459% Building scope | B3 - 9F Structure | RC Exterior finishing | Birch plywood, Wood floor, Eco paint, Marble Interior finishing | Color pair glass, Zinc, Wood panel Design period | 2014. 05 ~ 2014. 12 Construction period | 2013. 02 ~ 2016. 06 Photograph | Park, Youngchae Structural engineer | Lee, Wooho _ TSEC GROUP |
'회원작품 | Projects > Hospital' 카테고리의 다른 글
| 소리메디컬센터 2025.4 (0) | 2025.04.30 |
|---|---|
| 온스타치과병원 2023.7 (0) | 2023.07.21 |
| 융기된 퇴적층 2019.10 (0) | 2023.01.05 |
| 눈빌딩 2019.8 (0) | 2022.12.24 |
| 공립치매전담형 김해시립요양원 2022.11 (0) | 2022.11.14 |
