2025. 4. 30. 09:55ㆍ회원작품 | Projects/Hospital
SOREE MEDICAL CENTER

선진국형 귀 전문 클리닉 병원
소리의원은 ‘세상의 모든 귀 환자들이 가장 오고 싶어 하는 병원 만들기’라는 비전을 갖고 국내 최대 규모의 귀 전문클리닉으로 개원한 이래 전문성, 규모, 인력, 진료 시스템 등에서 명실공히 세계적인 유명 귀 전문 클리닉들과 비견할 만한 병원으로 성장했다.
2002년 개원 이래 20년 가까이 새로운 개념과 치료법, 시스템을 만들었고, 치료 결과에 도움이 된다면 투자와 노력을 아끼지 않았으며, 다가올 새로운 미래를 준비하고 선진국형 진료 서비스로 업그레이드하기 위해 소리의원 본원을 확장·이전하는 프로젝트를 오랜 기간 준비해 완성하기에 이르렀다.
SITE
사업 부지는 상봉역과 면목역 중간에 위치하고, 주변 주거지역이 넓게 조성돼있어 유동인구의 유입에 유리한 입지를 갖고 있다. 25미터와 8미터 두 도로와 접해있는 삼각형 코너대지의 형태를 띠고 있어 내부 공간 구성에 어려움이 있었지만, 오히려 한계를 기회로 활용해 두 도로의 접점에 위치한 랜드마크로서의 존재감을 드러낼 수 있는 계획을 하고자 했다.
MASS AND MATERIALS
두 도로에 대응하는 2개의 큰 매스가 어떻게 만나야 편안해 보이도록 할 수 있을지 고민한 끝에, 각 매스가 만나는 접점 부위는 최대한 성격이 다른 외장재가 만날 수 있도록 계획했다. 대로변에 면한 북측 매스의 주재료를 투명한 유리로 처리하고, 이면도로에 면한 남측매스의 주재료를 치장벽돌로 처리하여 솔리드와 보이드 매스의 만남으로 최대한 충돌이 발생하지 않도록 배려하고자 했다.
두 도로에 면한 2개의 큰 매스에는 주된 전용의 공간들이 자리를 잡아나갔고, 삼각형 대지에서 큰 매스들이 자리하고 남는 한 변의 공간에는 자연스럽게 공용공간이 배치되어 투명한 유리 재질로 마감할 수 있게 됐으며, 치장벽돌의 색상은 모든 사람에게 친근하고 병원의 성격에 맞는 웜(WARM) 계열의 색상으로 자연스럽게 결정됐다.
FUNCTION
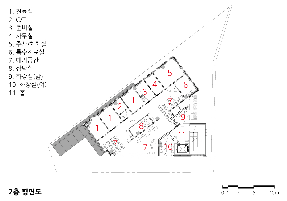
병원 내부 공간구성은 귀와 관련된 다양한 분야의 관련 센터들을 총망라하고 있다. 1차 의료기관 기능부터 3차 의료기관의 모든 기능들이 한 건물에 모두 담겨 있어, 환자가 방문하면 이곳에서 모든 서비스를 받을 수 있게 된다. 간단한 진료 및 투약 위주의 경증환자 케어부터 정밀한 진단과 수술 및 입원, 그리고 수술 이후의 재활센터와 보청기 센터까지 환자의 생애주기와 관련된 거의 모든 기능이 담겨있으며, 이러한 전분야의 서비스는 성인에만 국한된 것이 아니라 유·소아들을 위한 별도의 공간도 빠짐없이 배려해 구축했다.
접근성이 좋은 1층에 카페 임대공간이 있으며, 지하 2층의 직원식당과 사무공간을 제외한 나머지 모든 층은 환자들을 위한 공간으로 구성된다. 지하 1층의 보청기센터, 2층 외래진료공간, 3층 청각재활센터, 4층 입원실 ZONE, 5층 수술센터 및 어지럼증센터, 6층 소리 아카데미 홀, 그리고 옥상의 휴게정원으로 이어진다.




Sori Clinic: A World-Class Ear Specialist Hospital for the 21st Century
Sori Clinic was founded with the vision of becoming “the most desired hospital for every ear patient around the world.” Since its opening in 2002, it has grown into Korea’s largest ear specialist clinic, achieving global recognition in terms of expertise, scale, personnel, and its medical care system. Over the past two decades, the clinic has pioneered new treatment concepts and systems, investing generously wherever it could improve patient outcomes. In preparation for the future and to provide upgraded, first-class medical services, Sori Clinic undertook a long-term project to expand and relocate its main hospital—a vision that has now been realized.
SITE
The project site is located between Sangbong and Myeonmok stations, in a residential area with high pedestrian accessibility. Positioned on a triangular corner lot bordered by two roads—one 25 meters wide and the other 8 meters—this site presented spatial planning challenges. However, these constraints became opportunities. The design approach sought to turn this geometry into an advantage, using the intersection as a point of visibility and creating a prominent local landmark.
MASSING & MATERIALS
The design explored how two major masses facing different roads could meet in a visually comfortable way. The solution was to emphasize contrast rather than blend. The north-facing volume along the main street was clad in transparent glass, while the south-facing volume along the smaller road was constructed using exposed brick. This solid-and-void composition minimized visual conflict while creating a harmonious dialogue between the two materials.
The major programmatic volumes were placed along the site’s two road-facing edges. The leftover edge of the triangular site, framed by these two masses, was naturally suited for shared circulation and public spaces. These areas were finished in transparent glass, opening the building to the street and enhancing approachability. The brick’s warm tone was intentionally chosen to evoke familiarity and comfort, aligning with the clinic’s identity.
FUNCTION
The interior planning integrates a comprehensive range of services dedicated to ear care. The building accommodates everything from primary care to specialized tertiary medical functions—all in one location. Patients can receive the full continuum of services, from basic consultations and prescriptions to advanced diagnostics, surgery, inpatient care, post-operative rehabilitation, and hearing aid services. The clinic also includes dedicated pediatric areas, ensuring that services are inclusive of all age groups.
The first floor includes a street-facing café space, enhancing public accessibility and comfort. Except for staff facilities on the second basement level (cafeteria and offices), all other floors are designed entirely for patient use. The program is distributed vertically as follows:
B1: Hearing Aid Center
2F: Outpatient Consultation & Diagnostics
3F: Audiological Rehabilitation Center
4F: Inpatient Ward
5F: Surgery Center & Dizziness Clinic
6F: Sori Academy Hall
Rooftop: Healing Garden & Rest Area
By consolidating a full spectrum of ear-related care—from diagnosis to surgery, recovery, and education—within a single building, Sori Clinic represents a model for future-oriented, patient-centered medical design.









| 소리메디컬센터 설계자 | 박진태 _ PROJECT 91 건축사사무소 건축주 | 소리의원 감리자 | PROJECT91 건축사사무소 시공사 | (주)우산종합건설 설계팀 | 이효신, 서동희, 지수빈 대지위치 | 서울특별시 중랑구 봉우재로 주요용도 | 근린생활시설(의원) 대지면적 | 577.50㎡ 건축면적 | 274.48㎡ 연면적 | 2,148.07㎡ 건폐율 | 48.80% 용적률 | 249.80% 규모 | B2F - 6F 구조 | 철근콘크리트구조 외부마감재 | 치장벽돌(주.현대씨엠 : 노블래스 카카오), 알루미늄시트, 커튼월(주.남선알미늄), THK24로이복층유리(KCC글라스) 설계기간 | 2022. 09 – 2023. 05 공사기간 | 2023. 06 – 2024. 08 사진 | 김창묵 _ 프롬투 구조분야 | (주)본구조 기계설비·전기·소방분야 | (주)하나이엔지 |
SOREE MEDICAL CENTER Architect | Park, Jintae _ PROJECT91 ARCHITECT Client | Soree Ear Clinic Supervisor | PROJECT91 ARCHITECT Construction | Woosan E&C Project team | Lee, Hyoshin / Seo, Donghee / JI, Subin Location | Bongujae-ro, Jungnang-gu, Seoul, Korea Program | Neighborhood living facilities Site area | 577.50㎡ Building area | 274.48㎡ Gross floor area | 2,148.07㎡ Building to land ratio | 48.80% Floor area ratio | 249.80% Building scope | B2F - 6F Structure | RC Exterior finishing | Brick, Aluminum sheet, Curtain wall, THK24 Double low-e glass Design period | Sep. 2022 – May 2023 Construction period | Jun. 2023 – Aug. 2024 Photograph | Kim, Changmook _ Prom.to. Structural engineer | Bonst Mechanical·Electrical·Fire engineer | Hana E&G |
'회원작품 | Projects > Hospital' 카테고리의 다른 글
| 온스타치과병원 2023.7 (0) | 2023.07.21 |
|---|---|
| 세인트마리 여성병원 2021.2 (0) | 2023.01.31 |
| 융기된 퇴적층 2019.10 (0) | 2023.01.05 |
| 눈빌딩 2019.8 (0) | 2022.12.24 |
| 공립치매전담형 김해시립요양원 2022.11 (0) | 2022.11.14 |
