2026. 3. 31. 11:00ㆍ회원작품 | Projects/Hospital
Kwangju Christian Hospital Codington Rapha Memorial Hall

양림동은 500년 이상의 마을 역사와 중첩된 지문(地文, Landscript)을 지닌 장소다. 목조 기와집과 선교사 사택, 병원과 학교 등 근대건축이 시간의 켜를 이루고, 이후의 소규모 건축들이 더해지며 복합적인 장소성을 형성해 왔다. 광주기독병원은 이러한 양림동의 근대 의료·선교 역사를 상징하는 건축적 거점이다.
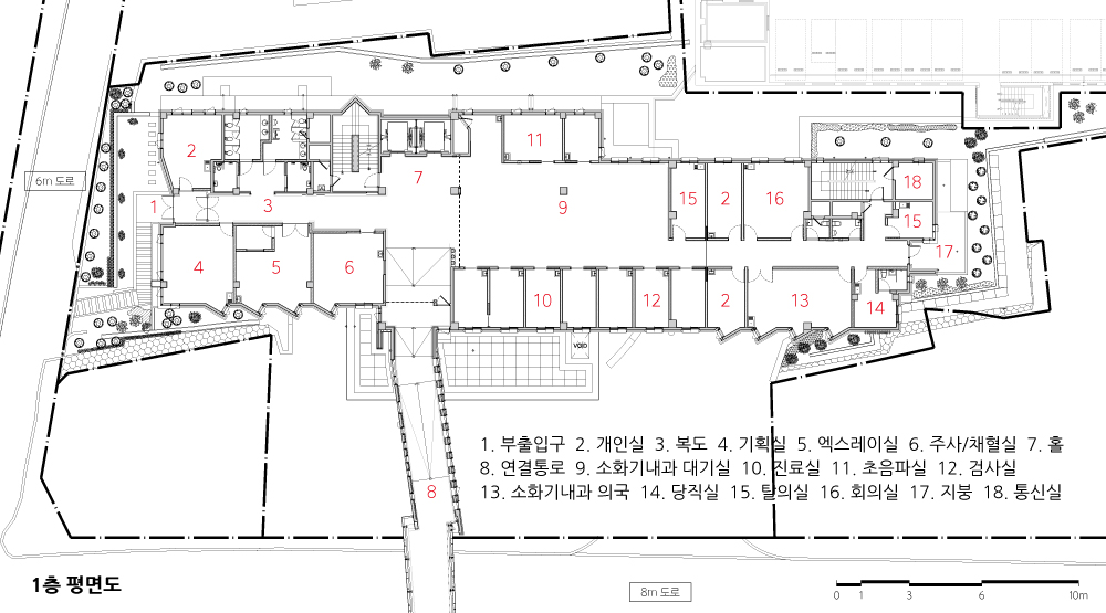
본 계획은 병원 본관동 북측 8m 도로 건너편 기존 옥외주차장 부지에 기념관을 포함한 진료동과 부설주차장을 조성하는 작업이다. 설계 부지는 기존 병원과 양림산 자락의 선교사 사택 사이에 놓인 경사지의 부정형 대지로, 문화재 영향에 따른 높이와 지붕 형식의 제한을 받고 있다. 법적으로는 2층 규모가 허용되었으나, 지형을 적극 활용해 가중평균 높이 산정 방식을 적용함으로써 도로면에서 지하층 정면이 노출되는 구성을 택할 수 있어, 전면에서 세 개 층이 인지되는 입면을 확보했다.
지하층에는 카딩턴 선교사의 기념관과 근린생활시설, 필로티로 구성된 부설주차장 진입부를 배치했다. 전면 보행로가 협소한 조건을 고려해 건물을 후퇴 배치하고, 마당을 조성해 휴게와 체류가 가능한 외부 공간을 마련했다. 이는 병원 이용자뿐 아니라 시민에게 열려 있는 공간을 지향한 결과다.
1층 외래 진료공간은 본관동과 단절된 조건을 극복하기 위해 약 36m 길이의 연결통로로 이어진다. 이 통로는 단순한 이동이 아닌 ‘길’로서의 공간 경험을 목표로 ▲바닥 폭과 층고의 변화 ▲보이드와 솔리드의 대비 ▲구조 시스템의 전환 ▲매스의 꺾임과 어긋남을 통해 연속적이면서도 다층적인 체험을 유도한다. 외관은 전벽돌을 주재료로 하여 주변 근대건축의 재료적 맥락을 잇고, 벽돌을 내부까지 연속 적용해 내·외부의 경계를 흐린다. 이 건축은 기능과 기억, 장소성이 균형을 이루는 일상의 장소가 되기를 지향한다.





Yangnim-dong is a place with a “landscript” (a cultural and spatial imprint) layered over more than 500 years of village
history. Traditional timber-and-tile houses and early modern buildings—missionary residences, hospitals, and schools—form distinct strata of time, and later small-scale buildings have been added on top of them, creating a richly layered sense of place. Gwangju Christian Hospital stands as an architectural anchor that symbolizes Yangnim-dong’s modern history of medical care and missionary work.
This project develops a new outpatient care building—including a memorial hall—and an attached parking facility on the former outdoor parking lot across an 8m-wide road on the north side of the hospital’s main building. The site is an irregularly shaped, sloping parcel situated between the existing hospital and the missionary residences along the foothills of Yangnim Mountain, and it is subject to height and roof-form limitations due to nearby heritage assets. Although the legal allowance was a two-story building, we actively used the terrain and applied a weightedaverage height calculation. This allowed the basement level to be exposed along the street frontage, securing an elevation where three levels are perceived from the front.
The basement level contains a memorial hall dedicated to Missionary Cuddington, neighborhood-serving retail facilities, and the piloti entry for the attached parking. Given the narrow condition of the front sidewalk, the building is set back to create a small yard—an outdoor space for rest and lingering. This reflects an intention to offer an open place not only for hospital users, but also for the wider public.
The first-floor outpatient clinic is connected to the main building by a passageway approximately 36 meters long, responding to the site’s physical separation. Rather than treating it as a mere corridor, the passage is designed as a “path” with a spatial narrative. Through changes in ▲floor width and ceiling height, ▲ the contrast of void and solid, ▲shifts in the structural system, and ▲bends and offsets in massing, the route offers a continuous yet multi-layered experience.
For the exterior, full brick is used as the primary material to extend the material lineage of the surrounding modern buildings. The brick continues into the interior, softening the boundary between inside and outside. Ultimately, the project aims to become an everyday place where function, memory, and local identity remain in balance.





| 광주기독병원 카딩턴라파기념관 설계자 | 박홍근 건축사_ (주)포유 건축사사무소 건축주 | (재)광주기독병원 감리자 | 박홍근 _ (주)포유 건축사사무소 시공사 | 남광건설(주) 설계팀 | 이광덕, 류연아, 이동근, 양정주 설계의도 구현 | (주)포유 건축사사무소 대지위치 | 광주광역시 남구 양림동 주요용도 | 의료시설(종합병원) 대지면적 | 2,525.00㎡ 건축면적 | 1,238.02㎡ 연면적 | 2,983.99㎡ 건폐율 | 49.03% 용적률 | 77.06% 규모 | B1F - 2F 구조 | 철근콘크리트구조 외부마감재 | 점토벽돌(삼한C1), 라인징크, 압출성형시멘트패널, 로이복층유리 내부마감재 | 화강석, IQ 옵티마, 점토별돌(삼한C1), 페인트 설계기간 | 2022. 02 – 2023. 03 공사기간 | 2023. 08 – 2025. 09 사진 | 김성희 구조분야 | (주)미르엔지니어링 기계설비·전기·소방분야 | (유)장강 |
Kwangju Christian Hospital Codington Rapha Memorial Hall Architect | Park Hong Guen_FORYOU Architects Client | Foundation corporation Kwangju Christian Hospital Supervisor | Park Hong Guen _ FORYOU Architects Construction | Namkwang Construction Co., Ltd. Project team | Lee Gwangdeok / Ryu Yeona / Lee Donggeun / Yang Jeongju Location | Yanglim-dong, Nam-gu, Gwangju Program | Medical Facility(General Hospital) Site area | 2,525.00㎡ Building area | 1,238.02㎡ Gross floor area | 2,983.99㎡ Building to land ratio | 49.03% Floor area ratio | 77.06% Building scope | B1F - 2F Structure | RC Exterior finishing | Clay brick(Samham C1), Line Zinc, Extruded Cement Panel, Low-E Double Glazing Interior finishing | Granite, IQ Optima, Clay brick(Samhan C1), Paint Design period | Feb. 2022 - Mar. 2023 Construction period | Aug. 2023 - Sep. 2025 Photograph | Kim Seong Hee Structural engineer | MIR ENGINEERING Co., Ltd. Mechanical·Electrical·Fire engineer | Janggang Co., Ltd. |
'회원작품 | Projects > Hospital' 카테고리의 다른 글
| 소리메디컬센터 2025.4 (0) | 2025.04.30 |
|---|---|
| 온스타치과병원 2023.7 (0) | 2023.07.21 |
| 세인트마리 여성병원 2021.2 (0) | 2023.01.31 |
| 융기된 퇴적층 2019.10 (0) | 2023.01.05 |
| 눈빌딩 2019.8 (0) | 2022.12.24 |
