2023. 2. 3. 16:25ㆍ회원작품 | Projects/House
^^hahaJip

매스는 서로 기댄 듯 위로하는, 혹은 고스란히 웃는 모습을 상징하는 ^^ 이모티콘을 모티브로 다소 직관적으로 시작되었다.
‘시옷(ㅅ)’자 두 개가 엇갈려 겹쳐진 형태인 ^^하하집은 크게 두 개의 공간으로 나뉜다.
동측면의 긴 ‘ㅅ’자 공간은 거실, 주방/식당, 서재 등 가족이 모일 수 있는 공적공간이고, 서측면의 긴 ‘ㅅ’자 공간은 사적인 침실이 자리한다.
엇갈린 형태는 단순히 공간만 구분하는 것이 아니다. 그 겹쳐진 면에는 층을 연결하는 계단과 서로의 공간을 넘나드는 중첩된 ‘창’이 있다.
‘창’은 서로 다른 공간과 중첩되어 2개, 4개 혹은 6개의 공간을 다른 깊이로 투영한다.
이는 사적인 영역은 보호하되 가족이 서로 대화할 수 있도록 1, 2층의 오픈된 공간을 통해 소통이 가능하도록 유도하는 장치이다.
외장재는 자연과 잘 어울리는 붉은색의 황토벽돌을 적용하였다. 따뜻함을 담기에 충분했고, 대지에 견고하게 자리하여 존재감 있는 구축미를 형성한다. 건축주, 건축사, 시공사 모두 다 같이 웃는 ^^하하집은 이런 소통에 의한 작품이다.

Massing design started somewhat intuitively with the motif of ^^, which symbolizes comforting or smiling as if leaning against each other.
The ^^hahajip, a form in which two "ㅅ" characters are crossed and overlapped, is divided mainly into two spaces.
The long "ㅅ" space on the east side is a public space where families can gather, such as the living room, kitchen/restaurant, and study room, and the long "ㅅ" space on the west side is a private bedroom.
The mixed form does not simply distinguish space. There are overlapping "windows" that span each other's space and stairs connecting the layers on the overlapping side.
"Window" superimposes different spaces and projects two, four, or six spaces to different depths.
This is a device that protects private areas but encourages families to communicate through open spaces on the first and second floors to talk to each other.
The exterior is made of red clay bricks that go well with nature. It was sufficient to contain warmth and is firmly located on the ground to form an existential beauty. Clients, architects, and construction companies all laugh together. ^^hahajip is a work of communication.










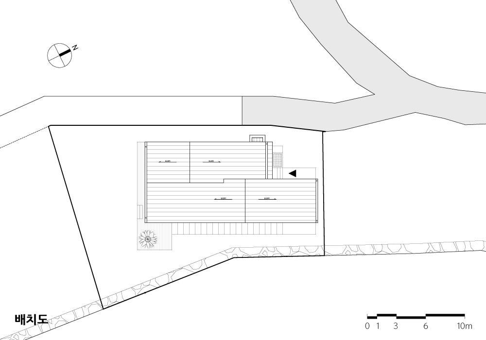
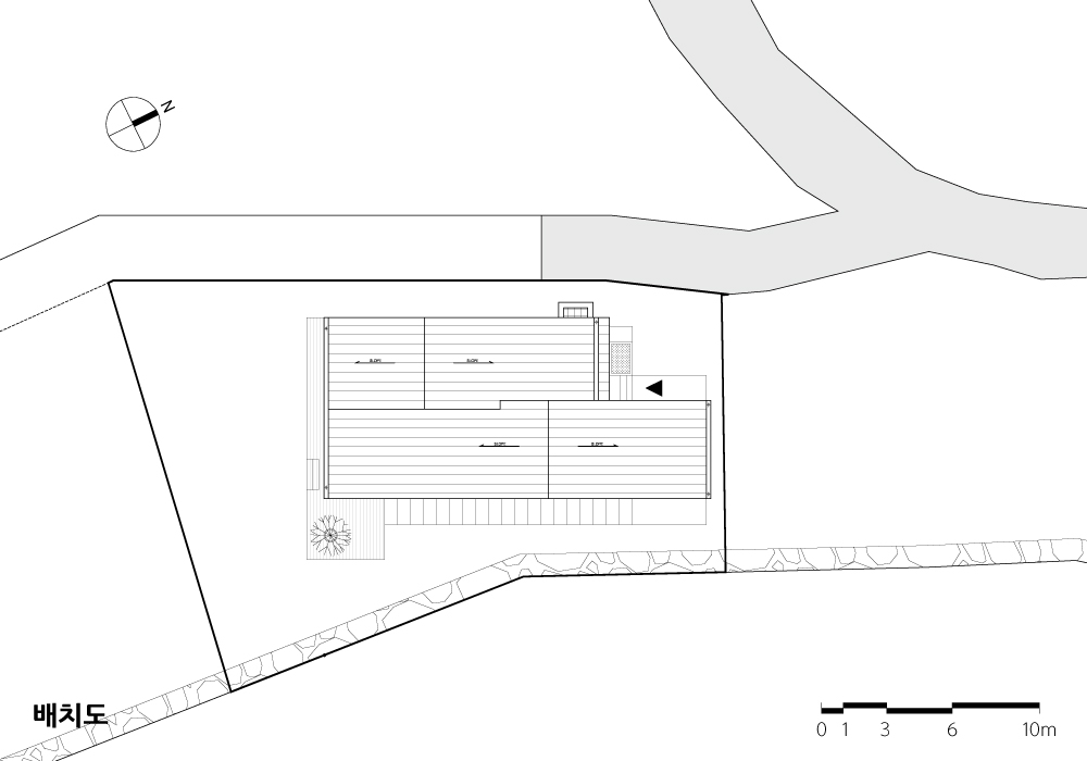
| ^^하하집 설계자 | 서경화 _ 플라잉 건축사사무소 건축주 | 김헌남 감리자 | 서경화 _ 플라잉 건축사사무소 시공사 | 케이에스하우징 대지위치 | 경기도 양평군 양서면 청계길57번길 34 주요용도 | 단독주택 대지면적 | 394.00㎡ 건축면적 | 92.13㎡ 연면적 | 150.16㎡ 건폐율 | 23.38% 용적률 | 38.11% 규모 | 지상 2층 구조 | 경골목구조 외부마감재 | 치장벽돌(다다벽돌 : 레드토석SS) 내부마감재 | 도배지, 강마루, 타일 설계기간 | 2017. 04 – 2017. 09 공사기간 | 2017. 09 – 2018. 01 사진 | 송정근 구조분야 : (주)두항구조안전기술사사무소 기계설비분야 : (주)코담기술단 전기분야 : 시엔에스엔지니어링 |
^^hahaJip Architect | Seo, Kyounghwa _ Flying Architecture Client | Kim, Heonnam Supervisor | Seo, Kyounghwa _ Flying Architecture Construction | KS Housing Location | 34, Cheonggye-gil 57beon-gil, Yangseo-myeon, Yangpyeong-gun, Gyeonggi-do, Korea Program | House Site area | 394.00㎡ Building area | 92.13㎡ Gross floor area | 150.16㎡ Building to land ratio | 23.38% Floor area ratio | 38.11% Building scope | 2F Structure | Light-frame wood structure Exterior finishing | Red brick Interior finishing | Wallpaper, Wood flooring, Tile Design period | Apr. 2017 – Sep. 2017 Construction period | Sep. 2017 – Jan. 2018 Photograph | Song, Jung Structural engineer | Doohang Structures & Consultants Co. Ltd Mechanical engineer | Codam Technical Group Electrical engineer | CNS Engineering |
'회원작품 | Projects > House' 카테고리의 다른 글
| 빛담집(빛을 담은 집) 2021.5 (0) | 2023.02.03 |
|---|---|
| 비비정(備比庭) 2021.5 (0) | 2023.02.03 |
| 팸벌리하우스 2021.5 (0) | 2023.02.03 |
| 낙락헌(樂樂軒) 2021.5 (0) | 2023.02.03 |
| 용인 i 주택 2021.4 (0) | 2023.02.02 |
