2023. 2. 3. 16:38ㆍ회원작품 | Projects/House
Light Gallery House

집은 가족의 흔적을 담는 배경
집에 꼭 담겨야 할 것은 가족들이다. 가족이 없는 집은 외롭고 공허하다. 그래서 그 가족을 연결하고 소통하게 해주는 집에 담겨야 할 것은 어둠이 아니라 빛이다. 어두운 집은 우울하고 외롭다. 자연의 빛과 바람과 소리를 통해 사람에게 개입하는 집은 생기가 생긴다. 빛과 바람과 소리에 의해 공간과 형태와 표피가 드러나고, 서로 만나며 흔적을 남긴다. 자연과 사람의 만남을 통해 생기가 집으로 전이되고, 집은 생명과 기억을 담는 그릇이 된다.
대지의 형태를 적극적으로 수용
대지는 판교신도시라 불리는 새로운 주거단지로 조성된 단지 내에 있다. 아파트에서 벗어나 땅과 접해서 살고 싶은 중산층에게 공급된 몇 안 되는 서울 근교의 주거지역으로 231~264제곱미터로 분할된 대지에 그들 가족 나름의 ‘꿈과 기억을 담는 우리 집’이라는 아이덴티티를 갖게 해준다. 서판교의 도시조직의 흐름을 적극적으로 수용하며, ‘우리만을 위한 우리 집’으로 구별하기 위해 대지의 형태(configuration)/외곽선을 지켜 건물의 외벽선으로 사용하였다.
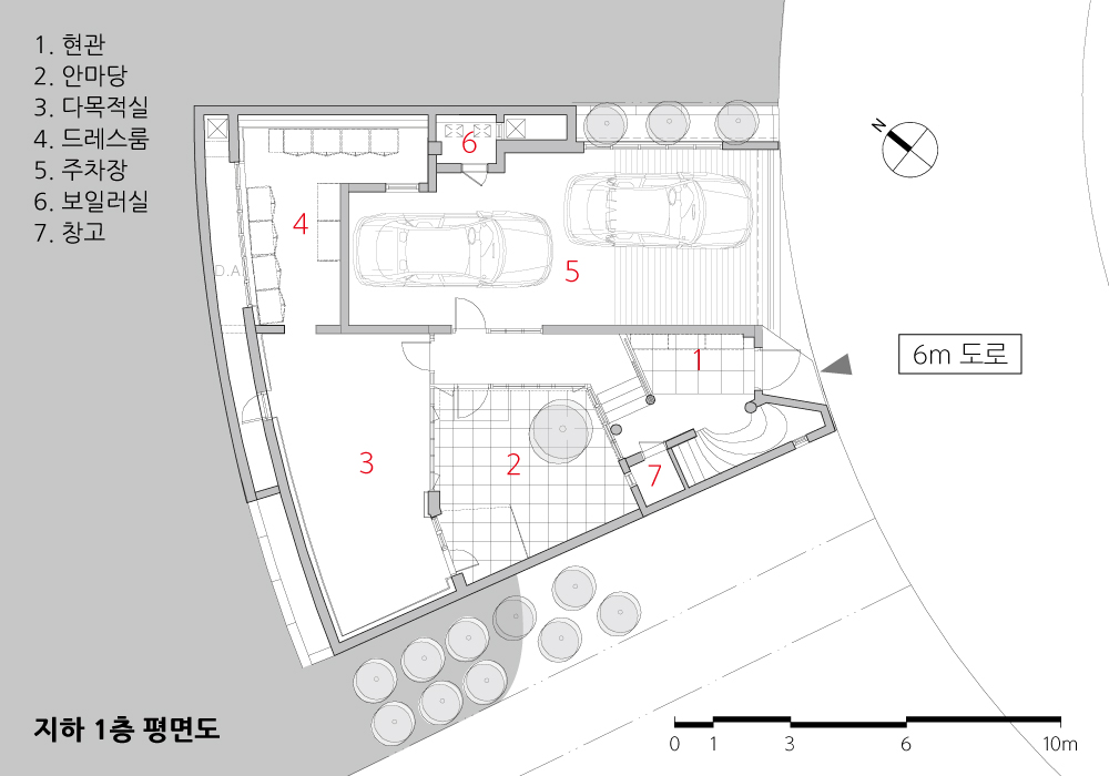
중정을 통해 집에 생기를
대지외곽선을 유지하면서 공간의 배치에 따라 여러 개의 중정을 배치하여, 프라이버시를 침해하는 외부로부터의 뷰는 막아주고, 집에 활기를 주는 빛과 바람의 흐름은 담는다. 중정은 3개로 구성되는데 집의 중심외부공간이 되는 ‘안마당 중정’, 할머님 방과 함께하는 ‘흰자갈마당’, 딸 방과 함께하는 ‘빛우물 중정’으로 각각 다른 중정의 역할과 분위기 그리고 같이할 가족들을 감당한다.
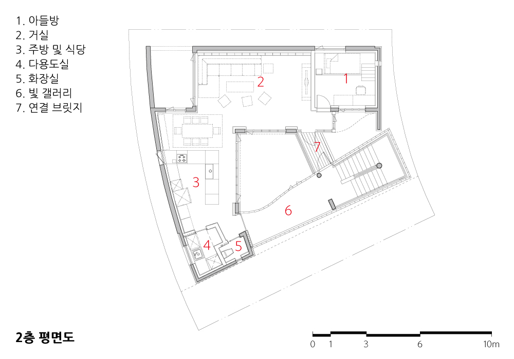
공간구성과 동선의 흐름
주택의 기본은 가족 간의 함께함과 흐름/소통이다. 외부로 향한 조망의 창문이 제한된 반면 내부동선을 따라 흘러가듯 주변을 살피면 다양하면서도 조금씩 변화되는 중정의 풍경이 새롭게 발견된다.
빛 갤러리 / 건축사의 바램
“일요일에 집에 있으면 옮겨가는 곳마다 새로운 뷰와 볼거리가 밖으로 열려있어서 매주 집이 새로운 것 같아요”라고 입주 후 한참 지난 어느 날 클라이언트가 빛담집에 대한 자신의 느낌을 이야기해 주었다.
빛담집이란 이름이 지어진 것은 3개의 중정을 갖고 있어서이기도 하지만, 무엇보다도 계단실과 작은 갤러리 공간을 싸고도는 U-Glass 외벽의 ‘빛 갤러리/Light Gallery’가 있어서이다. 이 ‘빛 갤러리’는 하루 종일 변화하는 빛의 밀도를 느낄 수 있는 공간이다. 피사체를 볼 수 있게 하는 빛의 기능적 효용 이전의 ‘빛의 농담의 변화’를 통해 ‘빛의 본질과 존재’를 새롭게 느껴볼 수 있는 곳이다.
빛담집이 3개의 중정을 통한 빛과의 다양한 교감과 빛 갤러리를 통한 빛의 본질적 발견, 다양한 재료의 물성의 확인 등을 통해 이 가정만을 위한 특별한 ‘기억의 장소’가 되길 바란다.

A house is the background that contains the trace of family.
What must be included in a house is family member. What must be contained in a house that connects family and communicate each other is a light. The house that interrupts with people through natural light and wind and sound gives the vitality to the house. The space, type and surface are exposed by light and wind and sound which meet each other and leave the trace. Through meeting of nature and humans, the vitality is transferred to the house and the house becomes a bowl that puts a life and memory in.
Accepting the type of site actively
The site is located in the new town of Pangyo which is a residential area in the suburb of Seoul and gives an identity 'our house that contains dream and memory of my family' on the site.
To identify it as 'our house only for us' by accepting the flow of urban organization of West Pangyo, we kept the configuration/out line of site and used it as the line of outer wall of building.
Giving a Vitality to the house through Courtyards
Keeping the outline of site, we arranged several courtyards according to the layout of space to prevent the eyes from outside and put the flow of light and wind that gives vitality to the house. There are three courtyards ‘courtyard inside garden’ which is the core space of house; ‘white gravel yard’ that has a room of grandmother; ’light-well courtyard’ that has a room of daughter. These courtyards have different role and atmosphere, respectively and responsible for family member.
Spatial Configuration and Flow of movement line
The basic role of house is being together with family, flow and communication. The windows toward outside are limited but if you look at the surrounding according to the inner movement line, you can find various and gradually changing views newly.
Light Gallery / An Architect’s Wish
"If I stay in the house, new views appear as I move and so I feel my house seems to be new everyweek" said the client.
The name Bitdamjip is also because it has three courtyards, but most of all, it is because there is a “Light Gallery” on the outer wall of U-Glass that encloses a staircase room and a small gallery space. This 'Light Gallery' is a space where you can feel the density of light that changes throughout the day. This is a place where you can feel the 'essence and existence of light' a new through the 'changes in the shades of light' before the functional utility of light that enables you to see the subject.
I hope that Bitdamjip will become a special “memory place” for this family through various communication with light through the three courtyards and the discovery of light through the light gallery and confirmation of the physical properties of various materials. My wish is that the house should be a place giving a pleasure of new discovery as well as the place of memory containing beautiful memories with the trace of family members.














| 빛담집(빛을 담은 집) 설계자 | 천근우 _ 주식회사 예천 종합건축사사무소 건축주 | 전세준, 이현미 감리자 | 천근우 _ 주식회사 예천 종합건축사사무소 시공사 | 아이디피건축, 제이아키브 건설 설계팀 | 양원모, 이은지, 정광훈, 이인혁, 김예슬, 정은미, 윤보현 대지위치 | 경기도 성남시 분당구 산운로 151번길 7-8 주요용도 | 단독주택 대지면적 | 231.00㎡ 건축면적 | 114.59㎡ 연면적 | 350.08㎡ 건폐율 | 49.60% 용적률 | 92.89% 규모 | 지상 2층, 지하 1층 구조 | 철근콘크리트조 외부마감재 | U Profile Glass, 라임스톤, 노출콘크리트+SST. Mirror Skin rod 매입, 육송무늬 거푸집 노출콘크리트 위 스테인 설계기간 | 2015. 01 - 2015. 04 공사기간 | 2015. 05 - 2016. 01 사진 | 천유진 / 김양길 _ J-archive 구조분야 : 한국재해예방기술원 기계설비분야 : (주)유영알엔디 전기·소방·통신분야 : 우림전기 |
Light Gallery House Architect | Cheon, Keunwoo _ Ye-cheon Architects Client | Jeon, Sejun / Lee, Hyunmi Supervisor | Cheon, Keunwoo _ Ye-cheon Architects Construction | IDP ARCH, J-archive Project team | Yang, Wonmo / Lee, Eunji / Jung, Gwanghun / Lee, Inhyeok / Kim, Yeseul / Jung, Eunmi / Yoon, Bohyun Location | 7-8, Sanun-ro 151beon-gil, Bundang-gu, Seongnam-si, Gyeonggi-do, Korea Program | Residence Site area | 231.00㎡ Building area | 114.59㎡ Gross floor area | 350.08㎡ Building to land ratio | 49.60% Floor area ratio | 92.89% Building scope | B1 - 2F Structure | RC Exterior finishing | U Profile Glass, Limestone, Exposed Concrete + SST. Mirror Skin Insert Steel Bar, Stein on Exposed Concrete Design period | Jan. 2015 ~ Apr. 2015 Construction period | May 2015 ~ Jan. 2016 Photograph | Cheon, Eugenie / Kim, Yanggil _ J-archive Structural engineer | Korea Safety Engineering Institute Co., Ltd. Mechanical engineer | Yooyoung R&D Co., Ltd. Electrical·Fire engineer | Woorim Electricity Co., Ltd. |
'회원작품 | Projects > House' 카테고리의 다른 글
| 파주 K 주택 2021.6 (0) | 2023.02.06 |
|---|---|
| 유취헌 2021.6 (0) | 2023.02.06 |
| 비비정(備比庭) 2021.5 (0) | 2023.02.03 |
| ^^하하집 2021.5 (0) | 2023.02.03 |
| 팸벌리하우스 2021.5 (0) | 2023.02.03 |
