2023. 2. 3. 16:21ㆍ회원작품 | Projects/House
Pemberley House

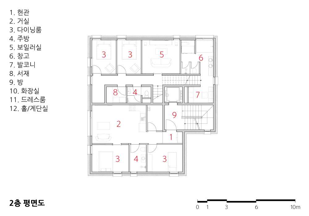
과거 해외 여러 곳에서 거주했던 건축주 부부는 아파트가 아닌 새로운 보금자리를 희망하고 있었다. 1층은 상가, 2층은 어머님과 간병인을 위한 공간으로 항상 밝은 분위기의 공간으로 계획되었다. 3층은 건축주 부부를 위한 공간과 딸들을 위한 영역과 홈시어터 룸, 사우나실 등 다양한 실들을 필요로 하였다. 이를 위해 스킵플로어 형태로 구성하였는데 자녀방과 공용욕실, 부부욕실로 구성된 아래층과 부부침실과 취미실로 구성된 위층 사이는 반 층 높이차로 접근 가능한 거실과 주방, 식당이 위치한다. 여기에 부부침실에서 부부욕실로 향하는 전용 계단을 설치하여 공간에 변화를 주고 있다. 이러한 프로그램들은 공간 이용의 편리성과 동선을 고려하여 입체적으로 조성되었다.
본 프로젝트는 ‘팸벌리하우스(Pemberley House)’라고 명명되었는데, 소설 『오만과 편견』의 주인공 팸벌리 가문의 다아시가 사는 저택을 떠오르게 한다. 아침 햇살을 받으며 깨어나 주택의 계단을 드레스를 끌며 내려오는 상상은 누군가에게는 로망인 반면, 공과대학 교수인 남편은 공대 감성으로 기밀과 단열에 중점을 둔 패시브하우스를 신축의 목표로 하였다.
팸벌리하우스는 기밀 및 성능테스트를 거쳐 3.0L 패시브하우스 인증을 받았다. 남측과 동측에 면한 실들에는 4중창 사이에 베네시안 블라인드를 설치하고, 식당의 천창은 전동 셔터를 설치하여 일사 조절이 가능하도록 하였다. 발코니에는 구조용 열교차단용 제품을 적용하고, 창호 주변에는 팽창 및 기밀테이프를 시공하여 기밀성을 확보하였다. 지붕에는 6KW 용량의 태양광설비가 있다. 이는 열교환환기장치와 더불어 패시브하우스를 위한 기본적인 요소가 된다.
유리칸막이 너머 시선이 통화는 침실, 거실과 식당이 내려다보이는 서재와 침실, 사우나실과 욕실로 접근하는 독립된 계단, 거친 표면의 노출콘크리트 등은 살고 싶은 집을 항상 머릿속으로 그려온 거주자의 희망사항에 건축적 요소를 담아 구현되었다. 거주자 본인이 살고자 하는 집을 디자인하고 구성하는 과정에서 거주자 자신의 마음의 소리에 귀를 기울인 결과이다.
집으로서의 팸벌리하우스는 단열과 기밀성능의 확보와 실내공기질의 쾌적함을 유지하면서, 동시에 주거 공간에서의 질적 만족도를 높이는 것에서 시작하였다. 이는 이성에 바탕을 둔 기능과 성능의 영역이었다. 한편, 내부 공간은 익숙함과 보편성을 추구하기보다는 거주자인 부부의 공간에 대한 기대와 인식의 확장을 통한 심미적 구성으로 귀결되었다.

The client couple, who lived abroad in several countries, was hoping for a new home instead of an apartment. The first floor is designed to be a shopping mall, and the second floor to be a space for their mother and the caregiver. The 3rd floor needed a space for the client couple, a space for their daughters, a home theater room, and a sauna room. To this end, it was constructed in the form of a skip floor. The lower floor has children's rooms, a shared bathroom, and the couple's bathroom. The upper floor consists of the couple's bedroom and hobby room. In addition, there are a living room, a dining room, and a kitchen between those floors, accessible with a half-story height difference as a skip floor. Finally, the couple's bedroom has an exclusive staircase to the couple's bathroom, which changes the spatial organization. These all functions are arranged in a three-dimensional relationship to consider the use and circulation.
This project, named “Pemberley House,” reminds us of the residence of Mr. Darcy of the Pemberley family, the protagonist of the novel 『Pride and Prejudice』. For some, it’s a dream to imagine you wake up in the morning sunshine and drag a dress down the stairs of a house. Still, the client’s husband, who is a professor at the College of Engineering, aimed to build a passive house that focuses on airtightness and insulation with an engineering sense.
Pemberley House has been certified as a 3.0L passive house through airtightness and performance tests. Venetian blinds were installed between the quadruple windows in the rooms facing the south and the east, and electric shutters were installed in the skylight of the dining room to allow solar control. A structural thermal break product was applied to the balcony, and airtightness was secured by using an expanding and sealing tape around the windows and the doors. A 6KW photovoltaic lighting system on the roof serves as a fundamental element for a passive house, together with a heat exchanging ventilation apparatus.
The bedroom gazed through a glass partition, the study and the bedroom overlooking the living and dining room, the independent staircase accessible to the sauna room and the bathroom, and the exposed concrete with the rough surface, which are all from the wishes of the clients who have always drawn a dream house in their heads. It is the result of listening to the clients' voices in the process of designing and planning the home they want to live in.
Pemberley House secures insulation and airtightness, keeping indoor air quality fresh, and increasing quality satisfaction in residential spaces. This was an area of function and performance based on rationality. On the other hand, the indoor space resulted in an aesthetic construction by expanding the client couple's expectation and perception of space rather than seeking familiarity and universality.










| 팸벌리하우스 설계자 | 전상규·황은 _ 보편적인 건축사사무소 건축주 | 송병호 감리자 | 전상규 _ 보편적인 건축사사무소 시공사 | (주)이에코건설 설계팀 | 최영미, 유인철 대지위치 | 전라북도 군산시 미장안5길 5 주요용도 | 다가구주택 대지면적 | 284.30㎡ 건축면적 | 162.76㎡ 연면적 | 402.29㎡ 건폐율 | 57.25% 용적률 | 141.5% 규모 | 지상 3층 구조 | 철근콘크리트구조 외부마감재 | 스터코 외단열시스템, 벽돌타일 내부마감재 | 노출콘크리트, 자작나무 합판, 벽지 설계기간 | 2018. 04 - 2018. 10 공사기간 | 2018. 10 - 2019. 04 사진 | 정진환 _ 보편적인건축사사무소 구조분야 : 은구조 기계설비분야 : 아이에코 ENG 전기분야 : 아이에코 ENG 소방분야 : 아이에코 ENG |
Pemberley House Architect | Jeon, Sangkyu·Hwang, Eun _ Office for Ordinary Architecture Client | Song, Byungho Supervisor | Jeon, Sangkyu _ Office for Ordinary Architecture Construction | E-eco construction Project team | Choi, Youngmi / You, Incheol Location | 5, Mijangan 5-gil, Gunsan-si, Jeollabuk-do, Korea Program | Multi-family House Site area | 284.30㎡ Building area | 162.76㎡ Gross floor area | 402.29㎡ Building to land ratio | 57.25% Floor area ratio | 141.5% Building scope | 3F Structure | RC Exterior finishing | Stucco external Insulation System, Brick tile Interior finishing | Exposed concrete, Birch plywood, Wall paper Design period | Apr. 2018 - Oct. 2018 Construction period | Oct. 2018 - Apr. 2019 Photograph | Jung, Jinhwan _ Office for Ordinary Architecture Structural engineer | EUN consulting structural engineers Mechanical engineer | IECO ENG Electrical engineer | IECO ENG Fire engineer | IECO ENG |
'회원작품 | Projects > House' 카테고리의 다른 글
| 비비정(備比庭) 2021.5 (0) | 2023.02.03 |
|---|---|
| ^^하하집 2021.5 (0) | 2023.02.03 |
| 낙락헌(樂樂軒) 2021.5 (0) | 2023.02.03 |
| 용인 i 주택 2021.4 (0) | 2023.02.02 |
| 봉양재(鳳陽齊) 2021.4 (0) | 2023.02.02 |
